63035 (588884), страница 4
Текст из файла (страница 4)
dA=42644* √1-0,2954*0,73 = 42644*0,885 = 37767 км,
cosψ = соs43,2°*соs13° = 0,7289*0,9743 = 0,71,
dв = 42644* -71-0,2954*0,71 = 42644*0,889 = 37909 км.
Lu - потери на передачу в свободном пространстве на линии Земля -спутник;
Ld - потери на передачу в свободном пространстве на линии спутник-Земля.
L
u = 20*(Lg 6268+Lg 37909)+32,45 = 199,9 дБ, Ld = 20*(Lg 3794+Lg 37767)+32,45 - 195,6 дБ.
Рисунок 9.- Пояснение к расчету ЭМС
Топоцентрический угловой разнос между двумя геостационарными спутниками
θt = аrc соs((dа2+dв2-(84322*sin(θg/2))2)/2*dа*dв), (35)
где θg - геоцентрический угловой разнос между спутниками;
θg —16 градусов.
θt = аrc соs((377672+379092-(84322*0,139)2)/2* 37767 * 37909) = 5°
.
Коэффициенты усиления антенн земной станции в направлении на другой спутник, определяется в зависимости от отношения В/Х и топоцентрического угла между спутниками и земными станциями.
Станция А:
λ= с/f = 3*108/6383*106 = 0,047 м,
D/λ= 93,7/0,047 = 197,87>10°
Формула для расчета Gзс (Ө) выбирается для случая D/ λ > 100,
Өr = 15,85*(197,87)-0,5 =1,1°,
Тогда
GЗС(Ө) = 32-25*lg Ө при Ө≤Ө≤48°,
GЗС(Ө) = 32-25* lg 5 =14,5 дБ.
Станция В:
λ=c/f=3*108/3794*106= 0,079 м,
D/λ=4,5/0,079=56,9<100
Формула для расчета GЗС(Ө)= выбирается для случая D/λ<100,
λ/D = 0,017,
GЗМ(Ө)= 52-10*lg(D/λ)-25*lgӨ при 100*λ/D≤ Ө < 48 т.е.1,7 ≤ 5 < 48,
GЗМ (Ө) =52 -10 * lg 57 - 25 * lg 5 = 16,5 дБ.
Так как известны сведения об используемой в системах поляризации, то учтем поляризационную развязку Ү.
Δ Тл = Δ Тл/Yd+γ* Δ Ткс/Yu
В связи с тем, что в системах используются системы с круговой поляризацией с разными направлениями вращения, тоҮ=4. Подставим найденные значения в выражения (32) и(33)
Т кс = Рзм + Gзм (Ө) + Gкс (δ) + 228,6 - Іи = -40,4+ 1 6,5+1 8+228,6- 1 99,9=22 дБК,
Следовательно Δ Ткс =186 К.
Δ Тзс=Р км+Gкм(η)+Gзс(Өi)+228,6-Ld =-51,4+17+14+228,6-195,6 = 12,6 дБК,
Следовательно Δ Тзс =18,2 К.
Δ Тл = Δ Тл/Yd+γ* Δ Ткс/Yu= 18,2/4 + 0,032 * 186/ 4= 4,5 + 1,4 = 5,9 К.
Отсюда Δ Т/T * 100% =5,9/150*100 = 3,99% .
Полученное значение 3,99 % не превышает пороговое 6%, то есть мешающая система В не оказывает существенного влияния на рассматриваемую систему А, следовательно координация не нужна.
7. Расчет РРЛ прямой видимости
Расчет РРЛ сводится к тому, что нужно определить качественные показатели двух пролетов, протяженность которых меньше средней дальности, на которую рассчитано оборудование РРЛ /8/.
Радиорелейная трасса состоит из двух пролетов: «Атакент»-«Рахат Палас» и «Рахат Палас»-«ТехаКа-банк» их протяженность 2,3 км и 5,8 км соответственно.
Данные пролеты находятся на территории города Алматы. Производитель оборудования Місrowave radio corporation Модель: Сalifornia Microwave-MNS
Диапазон частот 17,7-19,7 ГГц в соответствии с рекомендацией G.703.823,
| Модуляция 2FSK |
| Диаметр антенны 60 см |
| Усиление антенны 38 дБ |
| Мощность передатчика 21 дБ |
| Коэффициент системы 110 дБ |
| Средняя дальность 10 км |
7.1.Построение профилей пролетов и определение минимального просвета
Пролет «Атакент»-«Рахат-Палас»
Определим условный нулевой уровень по следующей формуле [8]:
y=﴾R20/2*a)*k(1-k) , (36)
Где а - радиус кривизны Земли 6370 км;
Rо - протяженность пролета;
к = Ri / R0- относительная координата точки, определения радиуса кривизны Земли.
К = Ri / Ro =1 / 2,3 = 0,43
Y1 = (R2 0 /2*a) K(1-k) = (2,32 / 26370)*0,43 (1-0,43) = 1*10 –4км = 0,1 м,
К = Ri / Ro =2 / 2,3 = 0,87
Y2 = (R2 0 / 2*a ) K (1-k) = (2,32 / 26370)*0,87 (1-0,87) = 5*10 –5км = 0,05 м,
Профиль данного пролета приведен на рисунке 10.
Р
исунок 10. - Профиль пролета РРЛ «Атакент»-«Рахат-Палас»
Определим радиус минимальной зоны Френеля в любой точке пролета, по следующей формуле:
Н0 = √ 1/3 *R 0 λ* k*(1-k),(37)
λ= c/f = 3*10-8/18*109 =0,016 м,
к = Ri / R0= 2/2,3 = 0,87
Н 0=√ 1/3 *2,3* 0,016 * 0,87 * (1 - 0,87) = 0,037м
Определим приращение просвета за счет рефракции:
ΔH(g+σ) = - R20/4* (g+σ)*K*(1-K) (38)
где g - среднее значение вертикального градиента, для Алматы равен -11*10-8 1/м;
σ - стандартное отклонение, для Алматы равно - 11*10 - 8 1/м.
ΔH(g+σ) = - 23002/4*(- 11*10 -8 +11 * 10 - '8) * 0,87* (1 – 0,87 ) = 0 м.
Тогда, просвет без учета рефракции (а именно для этого случая построен профиль пролета).
H (o) = H0 – ΔH (g+σ) = 0,037 - 0 = 0,037 м.
Аналогично производим расчет .
Пролет «Рахат-Палас»-«ТехаКа-банк»
Определим условный нулевой уровень по формуле:
к = Ri / R0= 1/5,8 = 0,17,
y1 = (R20/2*a)*k(1-k) = (5,82/2*6370)*0,17*(1-0,17) = 3*10 –4км = 0,3м.
к = Ri / R0= 2/5,8 = 0,34,
y2 = (R20/2*a)* k(1-k) =(5,82/2*6370)*0,34*(1-0,34) = 6*10 –4км = 0,6м.
к = Ri / R0= 3/5,8 = 0,51,
y3 = (R20/2*a)* k (1-k) = (5,82/2*6370)*0,51*(1-0,51) = 6,6*10 –4 км = 0,66 м.
к = Ri / R0= 4/5,8 = 0,68,
y4 = (R20/2*a)* k (1-k) = (5,82/2*6370)*0,68*(1-0,68) = 5,7*10 –4 км = 0,57 м.
к = Ri / R0= 5/5,8 = 0,86,
y5 = (R20/2*a)* k (1-k) = (5,82/2*6370)*0,86*(1-0,86) = 3,1*10 –4 км = 0,31 м.
Профиль данного пролета приведен на рис. 11.
Р
исунок 11. - Профиль пролета РРЛ «Рахат-Палас»-«Техака»
Определим радиус минимальной зоны Френеля в любой точке пролета, по формуле(37) :
K = Ri / R0 = 0,1/5,8 = 0,017
H0 = √ 1/3*5,8*0,016*0,017*(1-0,017) = 0,022 м.
Определим приращение просвета за счет рефракции по формуле (38)
ΔH (g+σ) = -58002/4*(-11*10-8 + 11*10-8)*0,017*(1-0,017) = 0.
Тогда, просвет без учета рефракции (а именно для этого случая построен профиль пролета).
H (0) = H0 - ΔH (g+σ) = 0,022 – 0 = 0,022 м.
7.2 Расчет запаса на замирание
Определим запас замирания по следующей формыле
F1 = SG + Gпрд + Gпрм – L0 - 2η, (39)
где SG - коэффициент усиления системы;
GПРМ, GПРД - усиление передающей и приемной антенны
соответственно ;
2η - КПД антенно-фидерного тракта, примем равным 3 дБ, так как используется компактное расположение наружного блока (ODU);
L0 = 20 * (lg f + lg R0 ) + 32,45 – где затухание радиоволн в свободном
пространстве;
f - средняя частота диапазона, МГц;
Rо - длина пролета в км.
Пролет «Атакент»-«Рахат-Палас»
L0= 20 * (lg 18000 + lg 2,3) + 32,45 = 1 44,8 дБ,
Ft = 110 + 38 + 38 - 144,8 - 3 = 35 дБ.
Пролет «Рахат-Палас»-«ТехаКа-банк»
L0 = 20 * (lg 18000 + lg 5,8) + 32,45 = 152 дБ,
Ft = 110 + 38 + 38 - 152 - 3 = 31 дБ.
7.3 Расчет времени ухудшения связи из-за дождя
Казахстан относится к зоне Е, для которой интенсивность осадков
(превышаемая в 0,01% времени) и R0,01 = 22 мм/час[9].
Коэффициенты а и к для горизонтальной и вертикальной поляризации на частоте 18 ГГц, равны:
ан =1,132, ау =1,1028,
ки = 0,0597, кү = 0,05486.
Опорное расстояние определяется по следующей формуле:
d 0= 35*ехр(-0,015*R001) = 35*ехр(-0,015*22) = 25,16 км.
Коэффициент уменьшения определяется по следующей формуле
r = 1/1 + (R0 / d0) определим для пролетов «Рахат – Палас»
Пролет «Атакент» - «Рахат – Палас»
r = 1/ 1 + (2,3/25,16) = 0,91.
Пролет «Рахат Палас»-«ТехаКа-банк»
r=1/ 1 + (5,8/25,16)= 0,81.
Удельное затухание в дожде для горизонтальной и вертикальной поляризаций:
үh = кн *ан *R001 = 0,0597*1,132*22 = 1,48дБ/км,
үv = кv*аv* R001 = 0,05486 * 1,1028*22 = 1,33 дБ/км.
Эффективная длина трассы определяется по формуле:
dэ= r*R0для пролетов:
Пролет «Атакент»-«Рахат Палас»
dЭ =0,91* 2,3=2,09км.
Пролет «Рахат Палас»-«ТехаКа-банк»
dЭ = 0,81*5,8 = 4,7 км.
Оценка затухания на трассе, которое превышается для 0,01% времени определяется выражением:
А0,01=ү* dЭ для пролетов:
Пролет «Атакент»-«Рахат Палас»
А0,01 = 1,48* 2,09 = 3,1 дБ.
Пролет «Рахат Палас»-«ТехаКа-банк»
А0,01 = 1,33* 4,7 = 6,25 дБ.
Затухание, которое превышается для другого процента времени Т может
быть определено из уравнения:
Ат/А0,01 = 0,12*Т –(0,546 + 0,043*lg T)
Подставляя сюда Аr = F1 получим время в течении которого дождь вызовет затухание, больше запаса на замирание.
T = 10 11,628*(-0.546+√ 0,29812 + 0,172*lg(0.12* (А0,01/F1)) (%).
Причем, если величина А0,01/F1 < 0,154023, то для получения действительного значения необходимо принять А0,01/F1= 0,155 .
Для отдельных пролетов:
Пролет «Атакент»-«Рахат Палас»
А0,01/F1 = 3,1/35 = 0,088 < 0,154023 = 0,155
Т = 10 11,628*(-0,546+√ 0,29812 + 0,172*lg(0,12*0,155)) = 8*10 –7 %
Пролет «Рахат Палас»-«ТехаКа-банк»
А0,01/F1 = 6,25/35 = 0,2,
Т = 10 11,628*(-0,546+√ 0,29812 + 0,172*lg(0,12*0,2)) = 1,9*10 –7 %
7.4 Расчет времени ухудшения связи, вызванного субрефракцией волн
В связи с тем, что протяженность пролетов очень мала, а размеры препятствий не значительны, а также то, что антенны расположены в зоне устойчивой видимости с большим относительным просветом, в то же время ухудшения связи, вызванное субрефракцией радиоволн можно не рассчитывать. Условно примем его равным 10 -5
Проверка норм на неготовность:
Норма на неготовность вычисляется по формуле:
URдоп = 0,3*L/2500.
Для отдельных пролетов:
Пролет «Атакент»-«Рахат Палас»
URдоп = 0,3*2,3/2500 = 0,000276 %
Пролет «Рахат Палас»-«ТехаКа-банк»
URдоп = 0,3*5,8/2500 = 0,000696 %
Время ухудшения связи, вызванное дождем и субрефракцией радиоволн на пролетах:
Пролет «Атакент»-«Рахат Палас»
Т% = 8*10-7 + 10 -5= 10 -5%.
Пролет «Рахат Палас»-«ТехаКа-банк»
Т% = 1,9*10 –7 + 10 –5= 10 –5%.
При сравнении полученных значений с нормами, видно, что эти начения меньше норм, т.е. нормы выполняются.
7.5 Расчет времени ухудшения связи из-за многолучевого распространения.
Общая длительность нарушения связи, вызванная многолучевым замиранием, равна сумме нарушений вызванных медленными и селективными замираниями [7]:
Р = Pflat + Рsel
Длительные нарушения связи, вызванные медленными замираниями, определяются по формуле [7].
Pflat =К*Q* Fb *dc *(W/Wb )=К* Q * Fb *dc *10 a/10, %
где А - глубина замирания, дБ, которая принимается равной запасу на замирание Ғt;
Wо - мощность принимаемого сигнала в отсутствии замирания;
d - длинна трассы, км;
f - частота несущей, ГГц;
В и С- коэффициенты, учитывающие региональные эффекты;
К- коэффициент, учитывающий влияние климата и рельефа местности;
Q - коэффициент, учитывающий другие параметры трассы, отличные от d и f.
Для наземной радиолинии, на которой наименьшая высота подвеса антенн приемника и передатчика составляет не менее 700 м над уровнем моря коэффициент К вычисляется по следующей формуле,
К = Р1,5l *10 –(6,5 – Сlat +Clon)
где РL = 5% - процент времени с вертикальным градиентом рефракции,из четырех месяцев берут худший. Коэффициенты Clat = 0 и Clon = 0 для данной местности.
Коэффициент Q вычисляется по формуле,
Q = (1+│ ε p │)-1,4,
Где │ ε p │угол наклона радиолуча
│ ε p │= │h1 – h2│/ d,
где h1, h2, высота подвеса антенн над уровнем моря, м;
d - длина трассы, км.
Рассчитаем длительность ухудшения связи из-за медленных замираний на каждом пролете: Пролет «Атакент»-«Рахат Палас»
К = 0,05 1,5*10 –6,5 = 3,5*10 –9,
│ ε p │=│900-872│/2,3 =12 мрад,
Q = (1+│12│) –1,4 = 0,027,
В = 0,89, С = 3,6,
Рflat = 3,5 *10 -9* 0,027 *І8 0,89*2,33'6* 10 35/10 = 7,8*10 -12%.
Пролет «Рахат Палас»-«ТехаКа-банк»
К = 0,05 1,5*10 –6,5 = 3,5*10 -9,
│ ε p │=│872 - 1100│/5,8 =39 мрад,
Q = (1+│39│) –1,4 = 0,0056,
В = 0,89, С = 3,6,
Рflat =3,5 *10 -9* 0,0056* 180,89*5,81,6*1031/10 = 181*10 –6 %
Определим норму на допустимое время ухудшения связи по пролетно: Пролет «Атакент»-«Рахат Палас»
SES = 0,054* L/2500 = 0,054*2,3/2500 = 49*10 -6%
Пролет «Рахат Палас»-«ТехаКа-банк»
SES = 0,054* L/2500 = 0,054*5,8/2500 = 125*10 –6%
При сравнении полученных значений с нормами, видно, что эти значения меньше норм, т.е. нормы выполняются.
8. Определение зоны обслуживания ЦС системы радиодоступа ІRТ-2000
Исходные данные для расчета:
Мощность передатчика 1 Вт
Минимальный порог уровня на входе приемника -77 дБм
Частота приема 2314 МГц
Частота передачи 2384 МГц
Затухание в фильтрах и антенных разделителях 7дБ
В качестве антенны ЦС используется четвертьволновой штырь
Диаграмма направленности 360 градусов
Коэффициент усиления антенны ЦС 8 дБ
В качестве антенны АС используется полупорабола
Диаграмма направленности 6,1 градус
Коэффициент усиления антенны АС 28,3 дБ
Высота на которой расположена антенна ЦС составляет 48 м
При этом длина соединительного фидера 12 м
В качестве фидера используется кабель АNDREW LDFS - 50А НЕLIАХ
Высота приемной антенны 10 м
Погонное затухание данного кабеля на частоте 2300 МГц равно 7,05 дБ на 100 м.
Напряженность поля при которой обеспечивается достаточное качество
приема равна 45 дБ
Определим зону обслуживания [10], для этого определим неровность местности по четырем направлениям относительно антенны ЦС: северное, южное, восточное, западное. При этом оставим неизменными все значения:
а) определим затухание в фидере ЦС по формуле [10]:
Вф=а*1Ф, (40)
где a - погонное затухание фидера, равное 7,05 дБ на 100 м;
1ф- длинна фидера, равна 12 м. подставим эти значения в формулу (40),
ВФЦС =7,05*0,12 = 0,8 дБ.
б) рассчитаем ВР.Н. -поправку, которая учитывает отличие номинальной мощности передатчика от мощности 1 кВт, по формуле:
В р. н.= 10 *lg (1000/Рн), (41)
тогда В р. н.= 10*lg(1000/1) = 30 дБ
в) рассчитаем Вһ2-поправку, учитывающую высоту приемной антенны отличную от 10 м, по формуле:
Вһ2 =10*lg(10/h2)
тогда Вһ2 = 10*lg (10/10) = 0 дБ (42)
г) Определяем Врел - поправку, учитывающую рельеф местности следующим образом. График для определения рельефа местности, приведен на рисунке 12 (а). Чтобы определить колебание уровня местности ΔҺ, рисуют рельеф местности и определяют колебание ΔҺ. Когда ΔҺотличается от 50 м в ту или иную сторону, следует вносить поправки, определяемые по графикам рисунка 12 (6) и рисунка 13 (в). Причем коэффициент Врел определим интерполируя между графиками рисунка 12 (6) и рисунка 13 (в) для г<100 км.
Рисунок 12.-График для определения поправки учитывающей рельеф местности
Северное направление:
ΔҺ1= 20 м - преобладают 4-5 этажные постройки на расстоянии до 8 км все постройки и деревья на более дальнем расстоянии не превышают 14 м.
ΔҺ2= 14 м
Следовательно поправка учитывающая рельеф местности равна:
В р. Н. =-6 дБ.
Восточное направление:
ΔҺ1= 14м - на протяжении 3,5 км жилые постройки отсутствуют, но есть деревья, на более дальнем расстоянии высота строений достигает 28 м.
ΔҺ1= 28 м
Следовательно поправка учитывающая рельеф местности равна: В р. Н. = - 4 дБ.
Южное направление:
Данное направление характеризуется тем, что строения не превышают ΔҺ1 = 10 м на расстоянии до 3 км на более дальнем расстоянии начинается предгорье Заилийского Алатау и на расстоянии 5 км высота местности достигает ΔҺ2= 200 м, относительно уровня на котором расположена ЦС
Врел= 7 дБ.
Западное направление:
Данное направление характеризуется тем, что высоты строений достигает 28
м, так как преобладают в основном 9-и этажные жилые дома
Врел= - ЗдБ.
д) РассчитаемΔВ0 - поправку, учитывающую уменьшение восприимчивости к помехам по сравнению с четвертьволновым штырем.
ΔВ0= 10*lg (Өк /360), (43)
Тогда ΔВ0= 10*lg (6,1/360) = - 17,7 дБ
е) Определим затухание в фидере АС по формуле (39):
ВФАС = 7,05*0,1 = 0,7 дБ.
ж) Определим напряженность поля, реально создаваемое передающей
станций ЦС в пункте приема АС по основной расчетной формуле:
Е = Ес + Вр.н. + Вфцс + Вфас + ВҺ2 + ВРеЛ +2*Вф – DАЦС - DААС + ΔВ0, (44)
тогда:
Северное направление:
Е = 45 + 30 + 0,8 + 0,7-6 + 14- 8 - 28,3 - 17,7 = 30,5 ДБ.
Восточное направление:
Е = 45 + 30 + 0,8 + 0,7 - 4 + 14 - 8 - 28,3 - 17,7 = 32,5 ДБ.
Южное направление:
Е = 45 + 30 + 0,8 + 0,7 + 7 + 14 – 8 - 28,3 - 17,7 = 43,5 ДБ.
Западное направление:
Е = 45 + 30 + 0,8 + 0,7 - 3 + 14 - 8 - 28,3 - 17,7 = 33,5 ДБ.
По графику рисунка 13 определим ожидаемую дальность связи для рассчитанной напряженности поля при высоте передающей антенны 48 м.
Рисунок 13. - Кривые для определения дальности связи
В северном направлении дальность связи составляет 25 км.
В восточном направлении дальность связи составляет 22 км.
В южном направлении дальность связи составляет 12 км.
В западном направлении дальность связи составляет 21 км.
Следует отметить, что даже в условиях города с довольно плотной застройкой и высотой антенны ЦС 48 м, целесообразно использовать абонентские станции с установкой антенны на высоте 15 м.
Для проверки правильности расчетов. Минимальный порог уровня на входе
приемника, определяется по следующей формуле:
Р прм= Рпрд *G прд*G прм* λ2/(4πr)2*Lдоп*Z(ВТ),
или в ДБ
Рпрм = Рпрд+ Gпрд+ Gпрм+20*lg λ – 20 lg(4π) – 20lgr -Lдоп- z,(45),
Где z = 5 дБ - запас помехоустойчивости к внешним помехам;
Lдоп = 10 дБ - дополнительные потери.
Подставим все известные значения в формулу (45)
Рпрм = -30 +8+ 28,3 +20* lg 0,125 -20lg (4*3,14) – 20 lg25 – 10 – 5 = -77 дБм.
Полученное значение получилось такое же как и в задании, следовательно расчет произведен верно.
9. Охрана труда и безопасность жизнедеятельности.
9.1. Меры безопасности при монтаже и эксплуатации антенны
Антенная система земной станции компании «Рахат Телеком» состоит из опорно-поворотного устройства и двух зеркальной антенны выполненной по схеме Касегрейна. Опорно-поворотное устройство, высота которого составляет 4,7 м. крепится к специально подготовленному фундаменту. Диаметр большого зеркала двух зеркальной антенны составляет 9,3 м. Общая масса конструкции 5 тонн.
В связи с тем, что антенная система представляет собой громоздкое сооружение, работающему персоналу следует соблюдать правила техники безопасности при проведении механосборочных и наладочных работ. В случае не соблюдения правил техники безопасности работающему персоналу грозит получение травм различной степени тяжести, начиная от ушибов и зажимов в движущихся элементах конструкции и заканчивая облучением электромагнитным полем в случае включенного передатчика. В связи с этим предусматривается ряд мер соблюдение которых исключает травматизм. Среди этих мер выделим такие как: работы ведутся квалифицированным персоналом, изучившим инструкцию по установке антенной системы, не моложе 18 лет и прошедшие медицинское освидетельствование; все производимые работы оформляются нарядом; перед выполнением работ бригадир бригады проводит инструктаж личного состава по мерам и правилам безопасности, при этом уделяет особое внимание на меры безопасности при перемещении грузов. Работы по сборке антенны выполняет бригада не менее 3-х человек; работающий персонал использует средства индивидуальной защиты такие как каски, страховочные ремни безопасности и т.д. Работы с составными частями антенной системы проводятся при помощи крана с вылетом стрелы не менее 10 метров и грузоподъемностью не менее 3-х тонн; разгрузочные работы осуществляются под руководством специально выделенного лица из административно-технического персонала, который определяет безопасные способы разгрузки и несет непосредственную ответственность за соблюдение правил техники безопасности при проведении этих работ. Автокрановщик имеет удостоверение на право проведения подъемно перегрузочных работ, имеет классность не ниже 2-го и выбирается из самых опытных автокрановщиков автохозяйства; автокран укомплектован стропом грузоподъемностью не менее 3-х тонн, количеством каналов не менее 4-х и длиной не менее 2-х метров, расстояние между поворотной частью крана и выступающими частями конструкции не менее 1 метра. По сигналу «стоп» машинист немедленно прекращает работу крана, не зависимо от того, кто подал сигнал, при подаче команды явно противоречащей правилам техники безопасности, машинист ее не выполняет; перед подъемом груза лицо подающее команду, сообщает вес поднимаемого груза. Вес поднимаемого груза с учетом грузозахватных устройств и приспособлений не превышает грузоподъемности крана при данном вылете стрелы. Перед выполнением рабочих операций (подъем груза, изменение вылета стрелы, поворот стрелы и т.д.) машинист подает звуковой сигнал; подъем и опускание груза и стрелы, поворот стрелы, перемещение крана, а также торможение во всех направлениях выполняются плавно, без рывков; в работе используется исправное такелажное оборудование; применяемые при такелажных работах подъемные механизмы и вспомогательные приспособления соответствуют по своей грузоподъемности поднимаемым грузам, на всех подъемных механизмах сделаны надписи о предельной нагрузке и указана дата последнего испытания, вспомогательные средства снабжены клеймом, указывающим время проведения последнего осмотра
Кроме этого запрещается: проводить работы при ветре более 3 м/сек; использовать инструмент и приспособления не по назначению; во время подъемно-перегрузочных работ находиться под грузом; проводить подъемно-перегрузочные работы автокраном вблизи ЛЭП ближе 10 метров; вставлять какие-либо предметы в подвижные сочленения, прикасаться руками к подвижным частям при работающих приводах; ослаблять винты крепления приводов к опорно-поворотному устройству во избежание потери ориентации антенны; изгибать кабели смонтированные на приводах при температуре воздуха ниже минус 10 градусов С; при включенном оборудовании и подаче мощности, обслуживающему персоналу проводить какие либо работы; находиться около заземлителей во время грозы и при ее приближении.
9.2. Безопасность труда оператора при работе с ЭВМ
Обслуживающий персонал компании «Рахат Телеком » работающий в спутниковом отделе, в основном имеет дело со считыванием информации обработанной ЭВМ. В качестве отображения обработанной информации служит монитор фирмы LG (модель "Flatгоп") с размерами по диагонали 15 дюймов, с возможностью настройки яркости, цветности и контастности, с плоским экраном, снабженным защитным фильтром, снижающим излучение.
Деятельность оператора при приеме информации связана с восприятием информации о состоянии объекта управления и внешней среды, а его действия заключаются в обнаружении, выделении, опознавании сигналов.
Для того, чтобы деятельность оператора была наиболее результативна и адекватна принимаемой информации и на него не действовали такие психофизические факторы, как умственное перенапряжение, перенапряжение зрительных анализаторов, монотонность труда, эмоциональные перегрузки. Компания уделяет большое внимание эргономике, микроклимату и устройству рабочего места оператора.
Температура воздуха оказывает существенное влияние на самочувствие и результаты труда человека. Низкая температура вызывает охлаждение организма и может способствовать возникновению простудных заболеваний. При высокой температуре возникает перегрев организма, что ведет к повышенному потовыделению и снижению работоспособности персонала. Работник теряет внимание, что может стать причиной несчастного случая[11].
Повышенная влажность воздуха затрудняет испарение влаги с поверхности кожи и легких, что ведет к нарушению терморегуляции организма и, как следствие, к ухудшению состояния человека и снижению работоспособности . При пониженной относительной влажности (менее 20 %) у человека появляется ощущение сухости слизистых оболочек верхних дыхательных путей [11].
Для обеспечения оптимальных микроклиматических условий в здании предусмотрена система отопления и кондиционирования воздуха, в результате чего параметры микроклимата удовлетворяют ГОСТ12.1.005-88 ССБТ «Воздух рабочей зоны, общие санитарно-гигиенические требования» для 1а категории работ (легкая физическая). Температура воздуха поддерживается постоянно на одном уровне 22-24 градуса С0, относительная влажность воздуха 40-60 %
Для того, чтобы оператор чувствовал себя комфортно, устройство рабочего места имеет очень важное значение, поэтому монитор размещается на столе или подставке так, чтобы расстояние до экрана не превышало 700 мм (оптимальное 450-500 мм), по высоте располагается так, что угол между нормалью к центру экрана и горизонтальной линии взгляда составлял 20 градусов и в горизонтальной плоскости угол наблюдения не превышал 60 градусов. Клавиатура размещается на стандартном столе высотой 750 мм под углом 15 градусов к плоскости стола, на расстоянии 100-130 мм от края. Используется кресло с регулируемой высотой сидения. Документ для ввода оператором данных располагается на расстоянии 450-500 мм от глаз оператора, слева, при этом угол между монитором в горизонтальной плоскости составляет 30-40 градусов [11].
9.3 Расчет искуственного освещения .
Большое внимание уделено освещению рабочего места оператора, так как свет влияет, а состояние организма человека. Правильно организованное освещение стимулирует протекание процессов высшей нервной деятельности и повышает работоспособность. При недостаточном освещении человек работает менее продуктивно, быстро устает, растет вероятность ошибочных действий. В зависимости от длины волны свет может оказывать возбуждающее (оранжево-красный) или успокаивающее (желто-зеленый) действие. Спектральный состав влияет на производительность труда. Исследования показывают, что если выработку человека при естественном освещении принять за 100 %, то при красном и оранжевом освещении она составляет лишь 76 %. У людей, которые по каким либо причинам частично или полностью лишены естественного света может возникнуть световое голодание. В связи с этим в компании уделяют болъшое внимание освещению рабочего места оператора и оно удовлетворяет следующим условиям [12]:
-
Уровень освещенности рабочих поверхностей соответствует гигиеническим нормам для данного типа работы;
-
Обеспечена равномерность и устойчивость уровня освещенности в помещении, отсутствуют резкие контрасты между освещенностью рабочей поверхности и окружающего пространства;
-
В поле зрения не создается блеска источниками света и другими предметами;
-
Искусственный свет, используемый в помещении, посвоему спектральному составу приближается к естественному в помещении используется совмещенная система освещения, недостаток естественного освещения компенсируется искусственным освещением, для этого используются люминесцентные лампы типа ЛДЦ (лампы дневного света улучшеной цветопередачи).
Так как при работе оператора размер объекта различения составляет 0,15 мм, то его работу можно отнести к 1 разряду зрительной работы (работы наивысшей точности) [13].
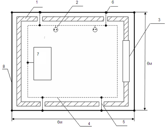
Для того чтобы обеспечить приемлемую освещенность, удовлетворяющую 1 разряду зрительной работы, данного помещения необходимо рассчитать количество светильников. В связи с тем что разряд зрительной работы 1 г, освещенность должна составлять 400 лк. Для обеспечения этой освещенности зададимся тем, что подвесной потолок оборудуется потолочными осветителями для общего равномерного освещения (четырехламповые) с люминесцентными лампами типа ЛДЦ-80. Помещение имеет следующие размеры: длина А = 6 м, ширина В = 6 м, высота Н = 2,5 м, потолок белый, стены светлые.
Коэффициенты отражения потолка стен пола, соответственно равны ρп = 70% и рс = 50 %,ρП= 30%
Для данного помещения уровень рабочей поверхности (стол) над полом
Һ1 = 0,75 м.
Определим расстояние между рабочей поверхностью (стол) и потолком:
Һр = Н-Һ1 = 2,5-0,75 = 1,75 м.
У данного типа наивыгоднейшееотношение [14].
λ = L/h = 1,4,
где L - расстояние между рядами светильников, м.
H - высота подвеса, м.
hP –расчетная высота.
Определим расстояние между рядами светильников .
L = Һ* λ = 1,75*1,4 = 2,45 м,
тогда число рядов светильников будет =2
Расстояние между стенами и крайними рядами светильников определяется по следующей формуле:
L = 0,3*L = 0,3*2,45 = 0,7 м.
С учетом значений коэффициента рс , рн при I = A*B/h*(A+B) = 6*6/1,75*(6+6) = 1,7 тогда коэффициент использования светового потока равен η = 0,48. Номинальный световой поток лампы ЛДЦ-80 равен Fл = 2720 лм. Следовательно световой поток светильника, равен
Fсв = Fл *n
где n = 4 - число ламп в светильнике. Тогда
Fсв = 2720*4 = 10880 лм.
Определим необходимое число светильников в ряду по следующей формуле:
N = E*K*S*Z*/n*Fсв* η, (46)
где Z =1,1-коэффициент неравномерности освещения;
К =1,5 - коэффициент запаса, учитывающий запыление светильников, при условии чистки светильников не реже двух раз в год;
n - число рядов светильников.
Подставим известные значения в формулу (46) и определим число светильников в ряду:
N = 400*1,5*36*1,1/2*10880*0,48 = 3.
По результатам проведенного расчета можно сделать вывод, что для обеспечения требуемой освещенности (400 лк) помещения площадью 36 кв. метров, в котором работает оператор, достаточно использовать шесть 4-х ламповых светильников с лампами ЛДЦ-80.
Схема расположения светильников на потолке помещения приведена на рисунке
Рисунок 14.План помещения операторской с размещением светильников.
9.4. Пожарная безопасность
Согласно прил.2. СНиП 2.04.09-84 здание «Телепорт» компании «Рахат Телеком» по степени опасности развития пожара, от функционального назначения и пожарной нагрузки горючих материалов, относится к 1-ой группе, категории В. К категории В, помещение относится по тому, что в смежной комнате с комнатой обслуживающего персонала, расположена дизельная установка.
В помещении горючими компонентами являются строительные материалы для акустической и эстетической отделки, перегородки, двери, полы, изоляция силовых, сигнальных кабелей, обмотки радиотехнических деталей, изоляция соединительных кабелей ячеек, шкафов, жидкости для очистки элементов и узлов ЭВМ от загрязнения и др.
Источниками зажигания могут оказаться электронные схемы ЭВМ, приборы, применяемые для технического обслуживания, устройства электропитания, кондиционеры воздуха, и др.
В связи с тем, что в помещении находится дорогостоящее оборудование, и многие процессы выполняются в автоматическом режиме, следует установить газовую систему автоматического пожаротушения дренчерного типа[14].
В качестве огнетушащего вещества применяется комбинированный углекислотно-хладоновый состав.
Расчетная масса комбинированного углекислотно-хладонового состава md кг, для объемного пожаротушения определяется по формуле[14]:
md =k*gn*V,
где k = 1,2 - коэффициент компенсации не учитываемых потерь углекислотно-хладонового состава,
gп = 0,4 - нормативная массовая концентрация углекислотно-хладонового состава,
V - объем помещения,
V = А*В*Н, (47)
где А = 6 м- длина помещения,
В = 6 м- ширина помещения,
Н = 2,5 м- высота помещения.
Тогда: V = 6*6*2,5=90 м3. Следовательно:
md =1,2*0,4*90 = 43 кг.
• При наличии постоянно открытых проемов, площадь которых составляет от 1% до 10% площади ограждающих конструкций помещений, следует принять дополнительный расход углекислотно-хладонового состава, равный 5 кг на 1 м2 площади проемов.
Расчетное число баллонов ε определяется из расчета вместимости в 40 - литровый баллон 25 кг углекислотно - хладонового состава.
-
Внутренний диаметр магистрального трубопровода di мм, определяется по формуле
dі = 12* √2= 17 мм.
•Эквивалентная длинна магистрального трубопровода I2, м, определяется по формуле:
I2 = k1*I.
где k1 = 1,2 - коэффициент увеличения длины трубопровода для компенсации не учитывающих местных потерь, I = 33м- длина трубопровода по проекту тогда, I2 = 1,2*33 = 40 м.
Площадь сечения выходного отверстия оросителя Аз, мм2, определяется по формуле:
Аз = S/ ε1, (48)
где S - площадь сечения магистрального трубопровода, мм2 ;
ε1 - число оросителей, тогда
Аз = 3,14*8,52/3 = 75 мм2.
Расход углекислотно-хладонового состава Q, кг/с, в зависимости от эквивалентной длины и диаметра трубопровода равна 1,4 кг/с
Расчетное время подачи углекислотно-хладонового состава t, мин, определяется по формуле:
t = md/60Q = 43/60*1,4 = 0,5 мин.
• Масса основного запаса углекислотно-хладонового состава m, кг, определяется по формуле:
m = 1,1*md*(1+k2/k),
где k2 = 0,2 - коэффициент учитывающий остаток углекислотно - хладонового состава в баллонах и трубопроводах тогда:,
m = 1,1*43*(1+0,2/1,2) = 55 кг.
Таким образом из полученных результатов можно сделать вывод, что для обеспечения нормального функционирования системы автоматического пожаротушения потребуется 2 баллона углекислотно-хладонового состава вместимостью 40 литров, с массой смеси 25 кг и рабочим давлением 12,5 МПа. В помещении установлено 3 оросителя, продолжительность выпуска заряда составляет 0,5 с.
Расстояние между двухструйными насадкамине более 4-х метров, а от насадок до стен не более 2-х м.
Автоматические установки газового пожаротушения имеют устройства для автоматического пуска в соответствии с ГОСТ 12,4.009-83
Магистральные и распределительные трубопроводы выполняются из стальных труб ГОСТ 8734-75.
Кроме того в помещении находятся ручные огнетушители, плакаты, запрещающие использование открытого пламени, пожарные щиты, а также плакаты запрещающие курение, так как в помещении установлен дымовой извещатель ионизационного вида, размещенный под потолком на высоте 2,45 м.
9.5 Расчет защитного заземления
Требования к заземлению электрооборудования:
Заземление теллекоммуникационного оборудования должно выполнятся с целью:
-защиты персонала от поражения электрическим током при повреждения изоляции.
-защиты от электрических разрядов.
-защиты оборудования от электромагнитных помех.
Стойки, металлические кронштейны с изоляторами, антенные устройства ТВ, а также металлические части шкафов, кроссов, пультов и другие металлоконструкции, должны быть заземлены .
Заземление оборудования связи следует выполнять согласно техническим требованиям на это оборудование.
Исходные данные.
Все оборудование здания питается от трехфазной сети, напряжением 380В с изолированной нетралью.Общая мощность источников питания сети превышает 100 кВА. Здание имеет железобетонный фундамент на суглинистом грунте.
Поскольку питающая сеть не привышает 1000 В, имеет изолированую нейтраль и мощность источников питания более 100 кВА, в качестве нормативного сопротивления заземления берем Rh=4 Ом.
Тип заземления - контурный, при котором заземлители располагаются по контуру внутри помещения. Помещение имеет следующие размеры: А=6 м, В =6 м
Контур состоит из вертикальных электродов — стальных труб длиной 1 = 2.6 м, из угловой стали шириной полки b = 0.5м, соединенных горизонтальной полосой длиной равной периметру контура.
В качестве горизонтального электрода применим стальную полосу сечением 50x4 мм. Глубина заложения электродов в землю t0 = 0,7 м.
Расчет сопротивления одноэлектроных вертикальных заземлений :
Сопротивление R трубчатого вертикального заземления,помещеного на глубину h от поверхности земли определяем по формуле:
Rв=p/6.28•I•(In• 2•I/d+I/2•In•3I+4h/I+4h),
Rв=80/6.28·2.6·(In·2·1/0.05+1/2·In·3·2.6+4·0.7/2.6+4·0.7)=25.5Ом
Удельное сопротивление грунта Р = 80 Ом*м,I-длина трубы (0.05м), h-расстояние поверхности земли до верхнего конца трубы (h=0.7м)
Rв=25.5 Ом.
Значения угловой стали d=0.95·b=0.0475
Расчет горизонтальных заземлений:
Сопротивление заземления в виде вытянутой металлической полосы, определим по формуле:
Ri=p/6.28·I·In·I2/0.5·b·h ,
Ri=80/6.28·2.6 ·In·2.62/0.5·0.05·0.7=28.91Ом
I-длина заземления (2.6м)
h-глубина прокладки полосы (0.7м)
b-ширина полосы (0.05м)
Ri =28.91Ом
Для снижения сопротивления горизонтального заземления более целесобразно увеличить его длину, а не диаметр и примерить оцинкованую стальную проволоку (4-5мм).
Расчет сопротивления многоэлектроных заземлений:
Так как вертикальные и горизонтальные заземлители имеют большое сопротивление, для получения требуемой величены сопротивления необходимо устраивать заземляющиее устройство из нескольких заземлителей, включеных параллельно.
Полное сопротивление нескольких вертикальных заземлителей одинакового сопротивления, соединеных параллельно с помощю горизонтальных заземлителей (полос или провода), определяется по формуле:
Ru =Rв·Rr / q1 ·Rr+ q2 ·n·Rв , (49)
Ru = 25.5·28.91/0.82·28.91+0.81·10·25.5=3.2 Ом
Rв - сопротивления горизонтального заземления
Rr-сопротивление вертикального заземления
q1 -коэффицеинт использования горизонтальных заземлений.
(табличное значение при n=10 q1= 0.82)
q2 – коэффициент использования вертикальных заземлений (табличные значения при n=10 q2= 0.81)
n- количество вертикальных заземлителей .
Примечание: заземлители размещены в ряд.
Ru=3.2 Ом меньше чем Rн= 4 Ом.
На рисунке 15. изображена схема расположения заземлителей.
1-расположение стойки оборудования (вид сверху)
2-электрическая розетка
3- входная дверь
4- магистраль заземления
5- металичиский стержинь
6- заземлитель
7- стойка оборудования
8- заземляющие устройство контурного вида
10.Бизнес - план
10.1 Сущность проекта
Использование спутниковых систем для передачи информации в последнее время получает весьма широкое распространение, так как имеет большие перспективы развития и является выгодным капиталовложением.
Фиксированная спутниковая служба это служба, занимающаяся организацией международных и национальных сетей связи, в которых обеспечивается передача различных видов информации: в данном случае телефонного обмена и обмена данными.
Проектирование данной радиолинии обусловленно созданием конкуренции и тем самым демонополизации рынка.
В партнерстве с австралийской компанией Теlstга и Вгitish Теlekom, Ratel предоставляет ряд услуг, включающих:
-
Высококачественную цифровую международную и междугородную телефонную связь по прямым международным каналам.
-
Беспроводные стационарные телекоммуникационные сети
-
Высокоскоростные магистрали передачи данных
-
Доступ к глобальной компьютерной сети Іnternet;
-
Интегрированные телекоммуникационные решения на базе оборудования Егісssоn, Nortel, Siemens для корпоративных сетей.
Развиваться будет наземный сегмент.
10.2 Характеристика проекта
Цель данного бизнес-плана- экономическое обоснование эффективности организации международной корпоративной системы связи в том, что данный проект является выгодной инвестицией. Компания «Рахат телеком» как телекоммуникационный оператор фиксированной спутниковой службы, предоставляет услуги международной и междугородней связи, посредством собственной выделенной телекоммуникационной сети. В соответствии с проектом на территории города Алматы будет введен в действие спутниковый телепорт, который соответствует международным стандартам. Вкладывание финансовых средств в данный проект, способствует развитию спутниковой связи в нашем государстве, в частности высокоскоростной связи за счет использования цифровой спутниковой системы связи.
Задача данной компании состоит в том, чтобы войти на мировой рынок на высоком техническом уровне при оптимальных затратах и укрепиться на нем в сфере предоставления услуг связи.
Продукцией данной компании являются услуги всех видов связи.
10.3 Маркетинг
а) Рынки
Сейчас в мире существует множество фирм предоставляющих услуги спутниковой телефонной связи, однако в Казахстане их не так много, т.е. данный род услуг не достиг своего насыщения. Путем совершенствования бортовой аппаратуры и земной станции (повышение качества приема, обработки и передачи сигнала, увеличение срока службы бортовой аппаратуры, точности удержания спутника на орбите) соответственно упрощая земные приемники и передатчики, снижая их стоимость. Данная компания пытается привлечь абонентов на свою сторону. Ниже перечислена информация о положении данной компании на рынке города Алматы.
Тарифная политика заключается в возможности доступа всех категорий к услугам связи, т.е. это означает что для разных категорий потребителей будут установленны различные тарифы. Кроме того, будут предположены различные виды тарифных планов учитывающие время суток, дни недели, праздничные дни, а таже проведение различных акций, таких как: ВОВ, женские праздники, для детей и т. д.
Как видно из таблицы самым сильным конкурентом является компания «Теlsat». В следующем пункте будет описана стратегия расширения рынка.
б) Продвижение услуг
Данная компания придерживается следующей политики: компания начинает свою деятельность с выходом рекламы, подчеркивая высокое качество связи, предоставляя такие услуги как: высококачественная цифровая международная, междугородняя телефонная связь по прямым международным каналам; беспроводные стационарные телекоммуникационные сети с использованием системы радиодоступа (ІRТ) и радиорелейного оборудования, что позволяет обеспечивать связью районы города и пригорода где не возможны кабельные соединения; высокоскоростные магистрали передачи данных; доступ к сети Internet и т.д.
Конкурентно способные тарифы на услуги международной связи, а также полный пакет услуг связи. Благодаря проведенным мероприятиям, таким как различные тарифные планы, акции, цены на услуги связи будут дешевле чем у конкурентов и при этом будет гарантированно соединение включая часы пик, при высоком качестве связи. Успехам данной компании будет содействовать такое же высокое сервисное обслуживание специалистами высокого класса по подключению, ремонту настройке аппаратуры, т.е. в случае поломки оборудования приезд специалистов и замена неисправных модулей и восстановление соединения.
Намечено четыре основных этапа реализации проекта:
-
Создание телекоммуникационной спутниковой линии связи, включающей в себя ЗС, взятый в аренду ствол бортового ретранслятора и абонентское оборудование.
-
Дальнейшее расширение потенциальных возможностей системы расширение телекоммуникационной сети, осуществление передачи через другие спутники. В осуществлении описанного плана возможны следующие трудности: невозможность сразу привлечь необходимое число абонентов, что сразу не позволит получить необходимое число прибыли. Низкая абонентская плата, что также будет отрицательно влиять на получение прибыли.
-
Длительный срок осуществления плана.
-
Развертка активной рекламной компании, поддержка высокого уровня квалификации обслуживающего персонала, а также предъявив высокие требования к исправности работы бортового ретранслятора на испытаниях.
Офис данной компании расположен в центре города, где в дальнейшем будет производиться ремонт и обслуживание абонентской аппаратуры.
10.4 Организационный план
Данный проект компания будет осуществлять в сотрудничестве с компаниями Теlstra (Австралия) и Вгitish Теlekom (Англия). Финансирование данного проекта осуществляет компания Теlstra, которая вкладывает свои инвестиции в страну. Установку и обслуживание будут осуществлять местные специалисты работающие в данной компании. Поставку всего необходимого оборудование будет осуществлять зарубежный партнер, являющийся одним из крупнейших мировых производителей оборудования ЗС. Для реализации данного проекта потребуется следующее оборудование.
Примем стоимость 1 у.е. равной 137 тг. по курсу Нац.банка РК.
Таблица 3 Стоимость оборудования
| Наименование оборудования | Цена оборудования у.е., тыс.тг. | Количество оборудования | Сумма с учетом транспортных расходов тыс.тг. | |
| 1 | 2 | 3 | 4 | |
| Передатчик ЗС | 120 000 у.е. | 1 | 122 400у.е. | |
| 16 440 000 тг. | 16 768 800 тг. | |||
| Приемник ЗС | 30 000 у.е. | 1 | 30 600 у.е. | |
| 1 110 000 тг. | 4 192 000 тг. | |||
| Антенна ЗС | 100 000 у.е. | 1 | 102 000у.е. | |
| 13 700 000 тг. | 13 974 000 тг. | |||
| Блок питания | 200 у.е. | 1 | 200 у.е. | |
| Продолжение таблицы 3 | ||||
| 27 400 тг. | 27 400 тг. | |||
| Маршрутизатор | 5 000 у.е. | 2 | 10 200у.е. | |
| 685 000 тг. | 1 397 400 т.г | |||
| Спутниковый | 4 000 у.е | 1 | 4 080 у.е | |
| Модем | 548 000 тг. | 558 960 тг. | ||
| Система | 35 000у.е. | 1 | 35 700 у.е. | |
| радиодоступа ІКТ | 4 795 000 тг. | 4 890 900 тг. | ||
| Оборудование РРЛ с мультиплексорами | 12000у.е. 1 644 000 т.г | 1 | 12 240у.е. 1 676 880 тг. | |
| Вышка системы радиодоступа | 11 000 у.е. 1 507 000 тг. | 1 | 11 200 у.е. 1 537 140 тг. | |
| Стоимость всего оборудования с учетом доставки. | 317 420у.е. 43 486 540 тг. | |||
Отдельная смета на установку оборудования не выделяется, так как установку оборудования будут осуществлять специалисты данной компании.
Предполагается следующая расстановка рабочего персонала для обеспечения функционирования разработанной системы.
Таблица 4 - штат сотрудников необходимых для функционирования системы
| Занимаемая должность | Количество человек | |
| Генеральный директор | 1 человек | |
| Главный бухгалтер | 1 человек | |
| Главный менеджер по продвижениюи реализации услуг | 1 человек | |
| Менеджеры по продвижению и реализации услуг | 2 человека | |
| Инженерыэлектронщики обслуживающие ЗС, систему радиодоступа и осуществляющие подключение абонентов. | 5 человек | |
| Операторы ЭВМ следящие за спутникового оборудования и состоянием радиодоступа системы состоянием радиодоступа. | 2 человека | |
| Монтер | 1 человек | |
| Итого | 13 человек | |
Заработная плата данного рабочего персонала будет производится за счет вырученных средств за предоставление услуг связи.
В процессе эксплуатации данной системы связи необходимо приобретение транспортного средства стоимость которого составляет 3% от стоимости оборудования т.е. 9 522 у.е. или 1304514 тг.
а) Капитальные вложения включают в себя:
К вл= К обр + К транс + К доп. об. и монт. ср. + К за.обл.част., (50)
где К 0бор - стоимость приобретаемого оборудования для функционирования данной системы связи;
К Трапс. - стоимость транспортного средства необходимого для эксплуатации, установки и ремонту данной системы связи. Определяется укрупненным методом и берется равным 3 % от стоимости оборудования.
КТра„с. = 0,03 * К0бор = 0,03 * 3 17420 = 9 522 у.е. или 1 304 514 тг.
К доп..об.имонт.ср. стоимость дополнитсльного оборудования (кабеля, изоляционная лента и т.д.) и монтажные средства (болты, гайки и т.д.). Определяется укрупненным методом и берется равным 3 % от стоимости оборудования.
К доп. об. и монт. ср. =0,03 * К06ор = 0,03 * 317420 = 9522у.е. или 1 304 514 тг.
К за.обл.част., - плата за обладание частотой, в настоящее время единовременной
платы за обладание частотой в Р.К. отсутствует.
Определим капитальные вложения по формуле (47).
К вл = 317420+9522 + 9522 + 0 = 336464у.е.или 46 095 568 тг.
б) Текущие затраты на эксплуатацию данной системы связи.
Эр= ФЗП + ОСС + А + Ап + Зэ„„ + Ккр +Нр+ АРС + НСрч . (48)Определим фонд заработной платы
ФЗП = ФОТ +3доп (51)
Таблица 5 Заработная плата .
| Должность | Кол-во человек | Оклад тг/мес | Сумма тг/мес |
| Генеральный директор | 1 | 40000 | 40000 |
| Главный бухгалтер | 1 | 25000 | 25000 |
| Главный менеджерпо продвижению и реализации услуг | 1 | 25000 | 25000 |
| Менеджеры по продвижению и реализации услуг | 2 | 20000 | 40000 |
| Техники электронщики | 5 | 15000 | 75000 |
| Операторы ЭВМ | 2 | 12000 | 24000 |
| Монтер | 1 | 9000 | 9000 |
| Итого | 238 000 | ||
Соответственно фонд оплаты труда за год составит:
ФОТ = 238 000* 12 = 2856000 тг.
Заработная плата с учетом премиальных составит:
Здоп=0,2*2856000 = 571200 тг.
Подставим найденные значения в формулу (51)
ФЗП = 2856000+571200 = 3427200 тг.
•Отчисления на социальный налог за вычетом пенсионного фонда составят:
ОСС = 0,21 *0,9*ФЗП = 0,21 *0,9*3427200 = 647740,8 тг.
•Амортизационные отчисления на систему связи по существующему положению в настоящее время 15%.
А = На (%)*Квл/100% = 15*52151920/100 = 7822788 тг.
•Аренда помещения находящегося на территории торгово-выставочного комплекса «Атакент» площадью 100 кв.м. стоимостью 600 тг. за 1 кв.м за месяц.
АРП= ПаР * S *T = 600*100*12* =720000 тг/год.
•Расходы на электроэнергию для производственных нужд, включают в себя расходы электроэнергии на оборудование и дополнительные.
ЗЭЛ.ЭН. = ЗЭЛ.ЭН.ОБР. + ЗДОП.НУЖ.,
ЗЭЛ.ЭН.ОБР = W*T*S*
где W = 15 кВт - потребляемая мощность;
Т = 8670ч - время работы;
S - тариф (1кВтч = 5,22тг).
ЗЭЛ.ЭН.ОБР = 15 * 8670* 5,22 = 678861 тг/год.
Затраты на дополнительные нужды возьмем по укрупненному показателю 5% от затрат на оборудование.
ЗДОП. НУЖ.,=0,05 * ЗЭЛ.ЭН.ОБР =0,05 * 678861 =33943 тг/год,
тогда ЗЭЛ.ЭН= 678861+33943 = 712804 тг/год.
•Арендная стоимость одного ствола бортового ретранслятора за 3 года составляет 231000 у.е. или 31647000 тг., данная сумма выплачивается ежегодно хозяину спутника т.е. организации Іntelsat;.
Арс = 31647000 тг/Згод.
• Так как кредит берется на сумму 43 486 540 тг. на оборудование и 31647000 тг за аренду ствола бортового ретранслятора сроком на 3 года, согласно процентной ставке равной 10% .
Кр = 1,1 * (31647000 + 43486540) / 3 = 27548964 тг.
•Накладные расходы составят:
Нр = 0,75 * ФЗП = 0,75 * 43486540= 32614905 тг.
• Определим налог за использование радиочастотного спектра в казну РК: спутниковая связь без НUВ-технологии (за использование частоты одной станции) 100 минимальные расчетные показателей.
Радиорелейные линии (за дуплексный ствол на одном пролете), местных 40 минимальных расчетных показателей, т.к. имеется 2 пролета, то оплата за РРЛ составит 80 минимальные расчетные показателей.
WLL (за дуплексный канал шириной 2,1 МГц на прием/2,1 МГц на передачу) 90 минимальных расчетных показателей.
Соответственно налоги за использование спектра радиочастот составят:
НРч = 825 * (100 + 80 + 90) = 222750 тг.
Таким образом годовые эксплуатационные расходы составят, по формуле (49)
ЭР = 3427200 + 647740 + 7822788 + 720000 + 712804 + 29975036 + 11935000 +32614905 +222750 = 87176751 тг.
10.5 Доходы компании
Доходы компании состоят из разовых и постоянных платежей клиентов, за установку и подключение оборудования 250 у.е. или 34250 тг. (1 линия) и за постоянное использование цифровых каналов связи по следующим тарифам :
Казахстан и страны СНГ 164 тг/мин.
Дальнее зарубежье 46 тг/мин.
Тарифы взяты, исходя из существующих на сегодняшний день тарифов других компаний.
Будем считать, что в среднем каналы связи одним клиентом используются со следующей интенсивностью:
Казахстан и СНГ 100 мин. в год
Дальнее зарубежье 100 мин в год
расчет проводим без учета инфляции, дисконтной ставки и прочих потерь, а также с нарастающим итогом. Дисконтирование – это предвидение разновременых затрат и результатовк текущему моменту времени.
Таблица 6 Технико- экономические показатели
| Период ввода системы в эксплуатацию | ||||||||
| 1 год | 2 года | 3 года | 4 года | 5 лет | ||||
| Число | 500 | 1500 | 2500 | 4500 | 6500 | |||
| абонентов, | ||||||||
| По нарастающей. | ||||||||
| Разовые | 19375000 | 58125000 | 96875000 | 174375000 | 251875000 | |||
| Продолжение таблицы 6 | ||||||||
| Платежи | ||||||||
| за подкл. | ||||||||
| тг., по | ||||||||
| нараст. | ||||||||
| Трафик по | 50000 | 150000 | 250000 | 450000 | 650000 | |||
| СНГ | ||||||||
| (мин),по | ||||||||
| нараст. | ||||||||
| Трафик по | 50000 | 150000 | 250000 | 450000 | 650000 | |||
| Д.З.(мин) , | ||||||||
| по нараст. | ||||||||
| Средняя | 164 | 164 | 164 | 164 | 164 | |||
| Доходная | ||||||||
| такса 1 мин | ||||||||
| ММТРпо | ||||||||
| СНГ,тг. | ||||||||
| Доходы за | 8200000 | 24600000 | 41000000 | 73800000 | 106600000 | |||
| трафик по | ||||||||
| СНГ тг. , | ||||||||
| по нараст. | ||||||||
| Средняя доходная | 246 | 246 | 246 | 246 | 246 | |||
| такса 1 мин | ||||||||
| ММТР по | ||||||||
| ДЗ, тг. | ||||||||
| Доходы за | 13950000 | 41850000 | 69750000 | 125550000 | 181350000 | |||
| тр. по Д.З. | ||||||||
| тг., по | ||||||||
| нараст. | ||||||||
| Общие доходы тг. по нараст. | 42625000 | 127875000 | 213125000 | 383625000 | 554125000 | |||
| Эксплуат. | 58033718 | 115057436 | 174101154 | 232134872 | 290168590 | |||
| Расходы | ||||||||
| Т.Г.,ПО | ||||||||
| нараст. | ||||||||
| Прибыль | -15408718 | 11807564 | 39023846 | 151490128 | 463956410 | |||
| тг., по | ||||||||
| нараст. | ||||||||
| Накоплен- | 7822788 | 15645576 | 23468364 | 31291152 | 79113940 | |||
| ие аморт. | ||||||||
| отч. тг., по | ||||||||
| нараст. | ||||||||
| Денежные | -7585930 | 27453140 | 62492210 | 182781280 | 543070350 | |||
| поступлен | ||||||||
| ия тг., по | ||||||||
| нараст. | ||||||||
| Инв-ции | 52151920 | 52151920 | 52151920 | 52151920 | 52151920 | |||
| тг., по | ||||||||
| нараст. | ||||||||
| Чистая прибыль, тг | -59737850 | -24698780 | 10340290 | 130629360 | 490918430 | |||
Рисунок 17.- Определение срока окупаемости
Из данного графика видно, что система окупает себя уже через 2 года и 9 месяцев и начинает приносить стабильно увеличивающуюся чистую прибыль, что в дальнейшем послужит для ее расширения не только в городе Алматы, но и по городам Республики Казахстан.
10.6 Сравнение данной системы с системой использующей кабельные соединения
В качестве сравнения, возьмем, предприятие которое тоже занимается предоставлением услуг международной и междугородней телефонии. В качестве абонентских линий используются кабельные соединения по медным кабелям и по оптоволокну. Сравнение будем проводить при равных условиях, т.е. тарифы на предоставляемые услуги одинаковые, при одинаковом количестве абонентов, одинаковой заработной плате работающего персонала, и т.д.
Предположим, что этому предприятию для предоставления услуг связи по кабельным соединениям потребуется 100 км. кабеля со средней стоимостью 100 тг за 1м. , для создания оптоволоконного кольца 5 км оптоволокна со средней стоимостью 3100 тг за 1 м., стоимость оптических мультиплексоров возьмем такую же как и обычных, также учтем аренду емкости в канализации у компании «Казахтелеком» предположим что стоимость прокладки 1м кабеля в канализации состаляет 10 тг за 1 м в год. , потребуется 50 км емкости в канализации.
Определим капитальные затраты:
Таблица 7 Капитальные затраты.
| Наименование оборудования | Цена оборудования у.е. тыс.тг. | Количество оборудования | Сумма с учетом транспортных расходов тыс.тг. |
| Передатчик ЗС | 120 000 у.е. | 1 | 122400у.е. |
| 16 440 000 тг. | 16 768 800 тг. | ||
| Приемник ЗС | 30 000 у.е. | 1 | 30 600 у.е. |
| 4 110 000 тг. | 4 192 200 тг. | ||
| Антенна ЗС | 100 000 у.е. | 1 | 102000у.е. |
| 13 700 000 тг. | 13 974 000 тг. | ||
| Блок питания | 200 у.е. | 1 | 200 у.е. |
| 27 400 тг. | 27 400 тг. | ||
| Маршрутизатор | 5 000 у.е. | 2 | 10200у.е. |
| 685 000 тг. | 1 397 400 т.г | ||
| Спутниковый модем | 4000 у.е 548 000 тг | 1 | 4080 у.е 558 960 тг. |
| Оптоволокно, 1м | 3100 тг | 5000 | 1 5500000 тг |
| Емкостьв | 10 тг | 50000 | 500000 тг |
| канализации ,1м | |||
| Медный кабель, | 100 тг | 100000 | 100000000 тг |
| 1м | |||
| Оптические | 12000 у.е. | 1 | 12240 у.е. |
| мультиплексоры и модемы | 1 644 000 тг. | 1 676 880 тг. |
Стоимость всего оборудования с учетом доставки. 64 595 640 г.
Капитальные затраты определяются по формуле в тг. (49):
К Вл = 64595640 +1759998 +1759998 = 8115636
Определим текущие затраты:
Э Р = ФЗП + ООС+ А + АП + З ЭЛ.ЭН. + ККР + НР + АР.С. + Н Срч.,
где - ФЗП, ОСС, Ап, Зэл.эн, АР.С- остаются такими же как и для предыдущей системы:
Кр = 1,1*(Квл+Арс) =1,1*(68115636+31647000)/3 = 36579633 тг,
А = 0,15*Квл = О,15*68115636 = 10217345 тг,
Нрч = 100*825 = 82500тг.
Тогда,
Эр = 3427200+647741+720000+712804+35805000+2570400+36579633+
+10217345+82500 = 88823202 тг.
Построим для сравнения таблицу в которой отразим только изменения по сравнению с предыдущей системой.
Таблица 8 Период ввода системы.
| Период ввода системы в эксплуатацию | |||||||
| 1 год | 2 года | 3 года | 4 года | 5 лет | |||
| Общие | 42625000 | 127875000 | 213125000 | 383625000 | 554125000 | ||
| доходы тг. | |||||||
| По нараст. | |||||||
| Эксплуат. | 85957499 | 171914998 | 257872497 | 343829996 | 429787495 | ||
| расходы | |||||||
| тг., по | |||||||
| нараст. | |||||||
| Прибыль | -43332499 | -44039998 | -44747497 | 39795004 | 124337505 | ||
| тг., по | |||||||
| нараст. | |||||||
| Накоплен-ие аморт. | 9327989 | 18655978 | 27983967 | 37311956 | 46639945 | ||
| отч. тг., по | |||||||
| нараст. | |||||||
| Денежные | -34004510 | -25384020 | -16763530 | 77106960 | 170977450 | ||
| поступлен | |||||||
| ия, тг., по | |||||||
| нараст. | |||||||
| Инв-ции | 62186596 | 62186596 | 62186596 | 62186596 | 62186596 | ||
| тг., по нар | |||||||
| Чистая | -96191106 | -87570616 | -78950126 | 14920364 | 108790854 | ||
| прибыль, тенге | |||||||
Рисунок 18. - Определение срока окупаемости для системы использующей кабельные соединения
Из данного графика видно, что система окупает себя через 3 года и 10 месяцев и начинает приносить прибыль.
При проведении сравнительного анализа двух систем использующих различные виды соединений с абонентами, видно, что система использующая кабельные соединения значительно уступает нашей системе, это отражается в сроке окупаемости системы, а также в приносимой ею прибыли.
Заключение
В дипломном проекте произведен энергетический расчет спутниковой линии связи ЗС 1 (Алматы) - ИСЗ (Іntelsat 804) - ЗС 2 (Лондон). Исходя из расчетов которые показывают, что на данной линии связи происходит незначительное ослабление сигнала из-за поглощения энергии радиоволн в газах атмосферы и чуть большее ослабление происходит в результате влияния дождевых осадков, особенно на втором участке ИСЗ (Іntelsat) - ЗС 2 (Лондон). Шумы атмосферы и планет оказывают влияние на качество передачи сигналов, но не очень существенное.
Полученные значения мощностей бортового передатчика и передатчика ЗС, при их практическом применении, обеспечат необходимое качество связи на всем участке .
Расчет качественых показателей радиорелейной трассы, а именно ухудшение связи вызванное дождем, замирания вызванные рефракцией радиоволн, замирания вызванные многолучевым распространением, показывает, что полученные значения норм не превышают. Связь на данном участке будет устойчевой и надежной.
Расчет зоны обслуживания ЦС системы радиодоступа позволяет утверждать, что требуемая дальность устойчивой связи обеспечивается. Предлагаемые в проекте мероприятия по эксплуатации и технике безопасности обеспечиваемый безаварийный проектный срок работы оборудования и позволяет свести к минимуму травматизм и несчастные случаи.
Разработанный бизнес-план оператора связи и произведено сравнение данной корпоративной международной системы связи системой использующий только кабельные соединения, при чем АТС поддерживает дальность до 5 км без применения дополнительных усилителей и регенераторов с абонентами по медным кабелям и по оптоволокну.
Перечень принятых сокращений
ЦС- центральная станция,
ИСЗ- искусственный спутник Земли,
ССС- система спутниковой связи,
ГО- геостационарная орбита,
ЗС- земная станция,
ЭИИМ- эффективно излучаемая изотропная мощность,
РРЛ- радиорелейная линия,
SЕS- сильно пораженные секунды,
АС- абонентская станция,
ЛЭП- линии электропередачи,
ЭВМ- электронная вычислительная машина,
ЛДЦ- лампы дневного света правильной цветопередачи,
СНиП- санитарные нормы и правила.
Список литературы
1 Спутниковая связь и вещание: Справочник. - 3-е изд., перераб. и доп. / В.А. Бартенев, Г.В. Болотов, В.Л. Быков и др.; под ред. Л.Я. Кантора. - М.: Радио и связь, 1997.
2 АлекперовА.Геостационарная орбита заселена плотно// Мир связи. - 1999. - №2. - С. 84-93.
3 Спутниковая связь и вещание: Справочник. - 2-е изд., перераб. и доп. / Г.В. Аскинази, В.Л. Быков, М.Н. Дьячкова и др.; под ред. Л.Я. Кантора. - М.: Радио и связь, 1988. - 344 с.
4 Кантор Л.Я., Тимофеев В.В. Спутниковая связь и проблема геостационарной орбиты. - М.: Радио и связь, 1988. - 168 с.
-
Бородич С.В. ЭМС наземных и космических радиослужб. Критерии, условия и расчет. - М.: Радио и связь, 1990. - 272 с.
-
Системы спутниковой связи / А.М. Бонч-Бруевич, В.Л. Быков, Л.Я. Кантор и др.; под ред. Л.Я. Кантора: Учебное пособие для вузов. - М.: Радио исвязь, 1992. -224 с.
-
Меныников В.А., Чернов В.В., Феоктистов Н.Н., Александров И.Е. Космос и связь // Электросвязь. - 1995. - №6. - С. 10-12.
-
Мордухович Л.Г. Радиорелейные линии связи: курсовое и дипломное проектирование. - М.: Радио и связь, 1989.-160 с.
-
Мордухович Л.Г., Степаненко А.П. Системы радиосвязи: курсовое проектирование. - М.: Радио и связь, 1987.-191 с.
10 Мясковский Г.М. Системы производственной радиосвязи: Справочник. - М.: Связь 1980.
-
Баклашов Н. И. и др. Охрана труда на предприятиях связи и охрана окружающей среды: Учебник для вузов/Н. И. Баклашов, Н. Ж. Китаева, Б. Д. Терехов. — М.: Радио и связь, 1989.—288 с.: ил.
-
Сабиров Ю.Г., Сколотнев Н.И. Охрана труда в вычислительных центрах. - М.: Машиностроение,1985. - 210 с
-
Производственное освещение. Методические указания к выполнению раздела "Охрана труда" в дипломном проекте (для студентов энергетических специальностей всех форм обучения)-Алма-Ата,изд. РУМКД989, 40 с.
14 Иванов Е.Н. Расчет и проектирование систем противопожарной защиты. М.: Химия,1990.
15 Буров В.П., Морошкин О.К., Новиков О.К. Бизнес-план. Методика составления. Реальный пример. — М.: Изд-во ЦИПКК АП — Отраслевая библиотека "Технический прогресс и повышение квалификации кадров в авиационной промышленности", 1995.
Приложение А
Зона покрытия ИСЗ INTELSAT 804
Приложение Б
Диаграмма для определения угла места и азимута при направлении антенны ЗС на геостационарный ИСЗ (ф° - широта ЗС; λ – λ0 - долгота ЗС относительно долготы позиции ИСЗ)
Приложение В
Среднемесячные значения концентрации водяного пара в августе на Земле
Приложение Г
Дождевые климатические районы на карте мира
Приложение Д
Приложение Е
Приложение Е
100>100>100>















