62946 (588868), страница 10
Текст из файла (страница 10)
Проведением оптимизации сетевого графика стадия составления исходного плана заканчивается. Далее начинается стадия оперативного управления ходом работ, когда в службу сетевого планирования поступает с определенной периодичностью информация о фактическом ходе смоделированного процесса. Производятся перерасчеты графика и разрабатываются мероприятия по ликвидации возникших от него отклонений.
Таким образом, в целом сетевой график позволяет наиболее рационально построить план работы, установить строгую последовательность и очередность в выполнении всех необходимых операций и действий. С помощью сетевого графика можно с достаточной точностью определить сроки свершения каждого события и, следовательно, срок достижения результата - завершающего события; оптимизировать использование выделяемых ресурсов; организовать контроль, наблюдение и управление действиями ответственных исполнителей с помощью ЭВМ.
12 Охрана труда и окружающей среды
Охрана труда - это система законодательных актов, социально-экономических, организационных, технических, гигиенических и лечебно-профилактических мероприятий и средств, обеспечивающих безопасность, сохранение здоровья и работоспособности человека в процессе труда.
Полностью безопасных и безвредных производств не существует. Задача охраны труда - сведение к минимуму вероятности поражения или заболевания работающего с одновременным обеспечением комфорта при максимальной производительности труда.
Необходимо подчеркнуть, что охрана труда обычно рассматривается в узком смысле и ограничивается изучением факторов производственной среды, оказывающих влияние на работоспособность человека в процессе труда. В условиях постоянного развития техники такой подход сужает профилактические возможности охраны труда. Повсеместная электрификация хозяйства и быта, развитие транспорта, широкое внедрение машин и механизмов способствует созданию опасности для людей, находящихся вне сферы производства. Не являясь формально производственными, такие опасности нередко по существу имеют непосредственную связь с тем или иным производством. Поэтому следует отметить, что безопасность труда - это безопасность всех компонентов процесса труда, т.е. людей, участвующих в труде, предметов труда, средств производства и продуктов труда. Именно продукты труда - машины, механизмы, различные предметы быта - часто становятся источниками опасностей. Это усугубляется тем, что выпускаемая предприятиями техника психологически воспринимается как абсолютно безопасная.
Поэтому вопросы охраны труда необходимо рассматривать в широком смысле, имея в виду все моменты процесса труда и его стадий.
12.1 Анализ опасных и вредных факторов при проектировании
Конструирование пульта входного контроля аппаратуры электронной и приемника излучения специзделия осуществляется с применением персонального компьютера с соответствующим программным обеспечением. Эксплуатация ПЭВМ связана с воздействием на работающего таких вредных и опасных факторов, как повышенная температура окружающей среды, недостаток естественного освещения, недостаточная освещенность рабочей зоны, электрический ток, статическое электричество, шум, повышенный уровень электромагнитного, ультрафиолетового и инфракрасного излучений.
Многие сотрудники лаборатории связаны с воздействием таких психофизических факторов, как умственное перенапряжение, напряжение зрительных и слуховых анализаторов, монотонность труда, эмоциональные перегрузки.
Воздействие указанных неблагоприятных факторов приводит к снижению работоспособности, вызванной развивающимся утомлением. Появление и развитие утомления связано с изменениями, возникающими в процессе работы в центральной нервной системе, с тормозными процессами в коре головного мозга. Так при длительной работе за видеомонитором, у человека возникает повышенная утомляемость и головная боль. Длительное нахождение человека в зоне комбинированного воздействия различных неблагоприятных факторов может привести к профессиональным заболеваниям, например, ухудшение зрения, бессонница.
12.2 Мероприятия по уменьшению и устранению вредных и опасных факторов
12.2.1 Шум на рабочем месте
В соответствии с ГОСТ 12.1.003 – 83 /2/ допустимые значения уровней звукового давления и уровней звука, создаваемого ПЭВМ не должны превышать значений, представленных в таблице 12.1:
Таблица 12.1 – Уровни звукового давления
| Уровни звукового давления в октавных полосах со среднегеометрическими частотами | Уровень звука в дБА | |||||||||
| 31,5 Гц | 63 Гц | 125 Гц | 250 Гц | 500 Гц | 1000 Гц | 2000 Гц | 4000 Гц | 8000 Гц | 50 | |
| 86 дБ | 71 дБ | 61 дБ | 54 дБ | 49 дБ | 45 дБ | 42 дБ | 40 дБ | 38 дБ | ||
Шум создается вентиляционной системой ПЭВМ и печатающим устройством.
Сократить время работы на принтере невозможно по двум причинам:
-
сократить количество выходной документации не представляется возможным;
-
сокращение работы принтера ведет к неэффективному использованию дорогостоящего оборудования.
Поэтому необходимо либо применить малошумящее оборудование, либо произвести облицовку помещения звукопоглощающим материалом.
12.2.2 Организация рабочего места.
Производственные здания и помещения должны обеспечивать наиболее благоприятную производственную обстановку и устранять пожарную опасность.
Пространственная организация рабочего места должна обеспечивать следующие требования:
-
Cоблюдение санитарно-гигиенических требований и требований безопасности;
-
Соответствие пространственных соотношений между элементами рабочего места и биомеханическими, физиологическими и физическими возможностями работающего;
-
Возможность выполнения основных и вспомогательных операций в рабочем положении, соответствующем специфике трудового процесса, в рациональной рабочей позе с применением наиболее эффективных приёмов труда;
-
Свободное перемещение рабочего по оптимальной траектории;
-
Достаточную площадь для размещения оборудования, инструментов и средств контроля.
В соответствии с СН 245 – 71 ("Санитарные нормы проектирования промышленных предприятий"), СанПиН 2.2.2.542 – 96 /18/ объём помещений должен быть таким, чтобы на каждого работающего приходилось не менее 15 м 3, а площадь - не менее 4,5 м 2; в помещениях оборудованных ЭВМ необходимый объём помещений должен быть таким, чтобы на каждого работающего приходилось не менее 20 м 3, а площадь - не менее 6 м 2.
Так как проектирование устройства проводилось в помещении оборудованном ЭВМ, то должны использоваться последние данные (V = 20 м3, S = 6 м 2).
Схема размещения рабочих мест с ПЭВМ должна учитывать расстояния между мониторами:
-
в направлении тыла одного и экрана другого монитора - 2 м;
-
между боковыми поверхностями - 1,2 м.
Дверь должна открываться наружу, чтобы в случае массового движения из помещения двери не являлись препятствием для выхода.
Помещение (площадь, объём) должно соответствовать количеству работающих и размещённому в них комплексу технических средств.
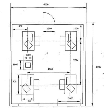
В лаборатории одновременно работают четыре человека в смену. В лаборатории размещены пять столов, четыре стула, четыре системных блока и монитора и один принтер. План помещения с размещенным в нем оборудованием приведен на рисунке 12.1.
Рисунок 12.1 – План помещения с размещенным оборудованием
Принимая во внимание, что приведенное оборудование с мебелью занимает объем примерно:
V = 4 · 1,5 · 0,8 · 1 + 4 · 0,5 · 0,5 · 0,5 + 4 · 0,5 · 0,5 · 0,7 + 1 · 1 ·1+ 0,8 · 0,5 · 0,З = 7,12 м3 и площадь:
S = 4 · 1,5 · 1 + 4 · 0,5· 0,5 + 1 · 1 = 8 м2,
размер помещения выбран 6x6x4.
Общая площадь пола: F = 6 · 6 = 36 м2.
Общий объем помещения: V=6 · 6 · 4=144 м3 .
Тогда на каждого человека будет приходиться площади помещения:
м2,
А объем помещения:
м3.
Из расчетов видно, что выбранные габариты помещения соответствуют нормам.
Для обеспечения естественного освещения предусмотрено наличие двух окон. Для предотвращения поступления в помещение лишнего тепла и попадания прямых солнечных лучей на экраны монитора, окна должны выходить на север, либо на восток, В соответствии с СанПиН 2.2.2.542-96 /18/, стены и потолок окрашены в светлые тона матовой и полуматовой фактуры.
12.2.3 Микроклимат на рабочем месте
Одним из необходимых условий здорового и высокопроизводительного груда является обеспечение чистоты воздуха и нормальных метеорологических условий в рабочей зоне помещений.
Метеорологические условия, или микроклимат, в производственных условиях определяются следующими факторами:
-
Температурой воздуха – t;
-
Относительной влажностью – ;
-
Скоростью движения воздуха на рабочем месте – v.
-
Интенсивность теплового облучения.
В помещении лаборатории на рабочих местах параметры микроклимата, согласно ГОСТ 12.1.005-88 /3/ для категории работ 1а устанавливают оптимальные нормы температуры - в холодные периоды года +22 +24 °С, в теплые периоды времени года +23 +25 °С, температура воздуха может колебаться в пределах от 20 до 24 °С в холодные периоды года и от 22 до 26 °С в теплые периоды; относительной влажности воздуха 40 60 % и скорости движения воздуха не более 0,1 м/с.
Поскольку, в лаборатории происходит небольшое выделение тепла от работающего оборудования, предусмотрено наличие естественной вентиляции. В помещении лаборатории имеются два окна по 2 м высотой на расстоянии 0,8 м от пола. В каждом имеется форточка размером 0,3 0,6 м.
Для создания благоприятных микроклиматических условий в холодный период года помещение оборудовано батареями парового отопления.
Расход воздуха для проветривания помещения:
, (12.1)
где L – объем приточного воздуха, м3/ч;
с – теплоемкость воздуха, принимается 1,005 кДж/кгС;
н – плотность приточного воздуха, принимается 1,2 кг/ м3;
ty, tп – температура уходящего и приходящего воздуха, С;
Qизб – теплоизбытки, кДж/ч.
В помещении лаборатории имеются избытки:
Qизб = Qоб + Qл + Qосв + Qрад, (12.2)
где Qоб – выделение теплоты от оборудования;
Qл – поступление тепла от людей;
Qосв - поступление тепла от электрического освещения;
Qрад - поступление тепла от солнечной радиации.
Выделение тепла от оборудования:
Qоб = 3600 · N · ψ1 · ψ2, (12.3)
где ψ1 – коэффициент использования установочной мощности, принимается 0,7;
ψ2 – коэффициент одновременности работы, принят 0,85;
N – суммарная установочная мощность оборудования.
Для данной лаборатории суммарная установочная мощность оборудования, равна сумме установочной мощности четырех ПЭВМ и одного принтера:
N = 250 · 4 + 200 = 1200 Вт или 1,2 кВт.
Qоб = 3600 · 1,2 · 0,7 · 0,85 = 2570,4 кДж/ч.
Поступление тепла от людей:
Qл = n ·q, (12.4)
где n – количество людей, работающих в помещении;
q – количество тепла, выделяемого одним человеком, принимается 120 ккал/ч (502,8 кДж/ч).
Qл = 4 · 503 = 2012 кДж.
Тепловыделения от электрического освещения:
Qосв = 3600 · N · К1 · К2, (12.5)
где N – суммарная мощность светильников, кВт;
К1 – коэффициент, учитывающий способ установки светильников, принят 0,35;
















