48327 (588543), страница 13
Текст из файла (страница 13)
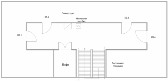
Рисунок Г.1 – Размещение концентраторов на этажах домов
12 К
11
10
9
8 К
7
6
5
4 К
3
2
1
9 К
8
7
6
5
4 К
3
2
1
а) б)
Рисунок Г.2 – Расположение концентраторов в многоэтажных домах:
а) 12-ти этажный; б) 9-ти этажный.
ПРИЛОЖЕНИЕ Д
ХАРАКТЕРИСТИКИ КОНЦЕНТРАТОРОВ COMPEX TP1016C E-net HUB 10Base-T 16 port
Таблица Д.1 – Характеристики концентратора COMPEX TP1016C E-net HUB 10Base-T 16 port
| Тип оборудования | Концентратор |
| Серия | MicroHub |
| Внешний интерфейс | 16 UTP разъемов / 1BNC / 1AUI |
| Uplink | Есть |
| Блок питания | Встроенный |
| Поддержка ОС | Не требуется |
| Потребление энергии | 25 ватт |
| Размеры внешние | 11 х 43.1 х 4.5 см |
Рисунок Д.1 – Внешний вид концентратора COMPEX TP1016C E-net HUB 10Base-T 16 port
ПРИЛОЖЕНИЕ Ж
МОНТАЖНЫЕ КАРТЫ ВКЛЮЧЕНИЯ КОНЦЕНТРАТОРОВ
Таблица Ж.1 – Монтажная таблица подключения магістрального концентратора К-1
| Приход | Расположение | Концентратор | Вывод | Направлениевключения |
| Сервер | № 4 - 6/12 | К-1 | 1 | №2, 4,К-20, |
| -«- | 2 | №4,6,К- 2 | ||
| -«- | 3 | №4,6,К-21 | ||
| -«- | 4 | Кв. № 287 | ||
| -«- | 5 | Кв. № 285 | ||
| -«- | 6 | Кв. №284 | ||
| -«- | 7 | Кв. №283 | ||
| -«- | 8 | Кв. №282 | ||
| -«- | 9 | Кв. №281 | ||
| -«- | 10 | Кв. №280 | ||
| -«- | 11 | Кв. №279 | ||
| -«- | 12 | Кв. №278 | ||
| -«- | 13 | Кв. №277 | ||
| -«- | 14 | Кв. №276 | ||
| -«- | 15 | Кв. №275 | ||
| -«- | 16 | Резерв |
ПРИЛОЖЕНИЕ Ж
(Продолжение)
Таблица Ж.2 – Монтажная таблица подключения магістрального концентратора К-2
| Приход | Расположение | Концентратор | Вывод | Направление включения |
| К-1 №4,6 | № 4 - 5/12 | К-2 | 1 | №4, К-3 |
| -«- | 2 | №4, К-23 | ||
| -«- | 3 | Кв. №240 | ||
| -«- | 4 | Кв. № 239 | ||
| -«- | 5 | Кв. № 238 | ||
| -«- | 6 | Кв. №237 | ||
| -«- | 7 | Кв. №236 | ||
| -«- | 8 | Кв. №235 | ||
| -«- | 9 | Кв. №234 | ||
| -«- | 10 | Кв. №233 | ||
| -«- | 11 | Кв. №232 | ||
| -«- | 12 | Кв. №231 | ||
| -«- | 13 | Кв. №230 | ||
| -«- | 14 | Кв. №229 | ||
| -«- | 15 | Кв. №228 | ||
| -«- | 16 | Резерв |
ПРИЛОЖЕНИЕ Ж (Продолжение)
Таблица Ж.3 – Монтажная таблица подключения подъездного концентратора К-21
| Приход | Располож. | Концен. | Вывод | Направление включения |
| К-1 №4,6/12 | № 4 - 6/8 | К-21 | 1 | №4, К-22 |
| -«- | 2 | Кв. №274 | ||
| -«- | 3 | Кв. №273 | ||
| -«- | 4 | Кв. № 272 | ||
| -«- | 5 | Кв. № 271 | ||
| -«- | 6 | Кв. №270 | ||
| -«- | 7 | Кв. №269 | ||
| -«- | 8 | Кв. №268 | ||
| -«- | 9 | Кв. №267 | ||
| -«- | 10 | Кв. №266 | ||
| -«- | 11 | Кв. №265 | ||
| -«- | 12 | Кв. №264 | ||
| -«- | 13 | Кв. №263 | ||
| -«- | 14 | Кв. №262 | ||
| -«- | 15 | Кв. №261 | ||
| -«- | 16 | Резерв |
ПРИЛОЖЕНИЕ И
РАСПОЛОЖЕНИЕ КОНЦЕНТРАТОРОВ «ДОМАШНЕЙ» ЛОКАЛЬНОЙ СЕТИ
Таблица И.1
| № концентратора | Расположение * | № концентратора | Расположение * | № концентратора | Расположение * |
| К-1 | №4/6/12 | К-19 | №2/3/9 | К-37 | №3/1/8 |
| К-2 | №4/5/12 | К-20 | №2/4/9 | К-38 | №3/1/4 |
| К-3 | №4/4/12 | К-21 | №4/6/8 | К-39 | №3/2/8 |
| К-4 | №4/3/12 | К-22 | №4/6/4 | К-40 | №3/2/4 |
| К-5 | №4/2/12 | К-23 | №4/5/8 | К-41 | №3/3/8 |
| К-6 | №4/1/12 | К-24 | №4/5/4 | К-42 | №3/3/4 |
| К-7 | №1/1/9 | К-25 | №4/4/8 | К-43 | №3/4/8 |
| К-8 | №1/2/9 | К-26 | №4/4/4 | К-44 | №3/4/4 |
| К-9 | №1/3/9 | К-27 | №4/3/8 | К-45 | №3/5/8 |
| К-10 | №1/4/9 | К-28 | №4/3/4 | К-46 | №3/5/4 |
| К-11 | №3/1/12 | К-29 | №4/2/8 | К-47 | №3/6/8 |
| К-12 | №3/2/12 | К-30 | №4/2/4 | К-48 | №3/6/4 |
| К-13 | №3/3/12 | К-31 | №4/1/8 | К-49 | №2/1/4 |
| К-14 | №3/4/12 | К-32 | №4/1/4 | К-50 | №2/2/4 |
| К-15 | №3/5/12 | К-33 | №1/1/4 | К-51 | №2/3/4 |
| К-16 | №3/6/12 | К-34 | №1/2/4 | К-52 | №2/4/4 |
| К-17 | №2/1/9 | К-35 | №1/3/4 | ||
| К-18 | №2/2/9 | К-36 | №1/4/4 |
*- расположение № дома / №подъезда / этаж.
ПРИЛОЖЕНИЕ К
















