151392 (580579)
Текст из файла
ВАРИАНТ №12
Расчётно-графическая работа № 2
По дисциплине: «Электроснабжение промышленных и коммунальных объектов».
Тема: Определение электрических нагрузок и расчет электрических сетей жилых зданий.
Задание на расчетно-графическую работу РГР-2
| № варианта | Количество этажей | Количество квартир на этаже | Плиты | Количество стояков |
| 12 | 12 | 5 | Э | 3 |
Площадь однокомнатной квартиры - 55 м2
Площадь двухкомнатной квартиры - 95 м2
Площадь трехкомнатной квартиры - 135 м2
Удельная мощность для квартир с газовыми плитами - 0,56 квт/ед.
Удельная мощность для квартир с электроплитами - 0,92 квт/ед.
СОДЕРЖАНИЕ
-
Вступление
2. Принцип построения схем распределения электрической энергии внутри жилых зданий
3. Схема 12-ти этажного односекционного жилого дома
4. Описание схемы электроснабжения 12-ти этажного дома
5. Метод определения электрических нагрузок в жилых зданиях
6. Расчётные нагрузки жилых домов 2 категории
6.1 Расчетная нагрузка питающих линий, вводов и на шинах 0,4 кВ ТП от электроприемников квартир
6.2. Расчетная нагрузка силовых электроприемников жилого дома
6.3. Расчёт нагрузки освещения общедомовых помещений
6.4. Расчетная нагрузка жилого дома в целом (от жилья, силовых электроприемников и встроенных или пристроенных помещений)
7. Выбор линий стояков.
8. Электропроводка в доме
9. Выводы
1. Вступление
-
Принцип построения схем распределения электрической энергии внутри жилых зданий
Схемы распределения электрической энергии внутри жилых зданий зависят от надёжности электроснабжения, числа этажей, секций, планировочного решения здания, наличия подвального этажа, и встроенных предприятий и учреждений (магазины, ателье, сберкассы, мастерские, и т.п.)
Эти схемы имеют общий принцип построения. В каждом многоэтажном здании устанавливаются вводно-распределительное устройство для присоединения внутренних электрических сетей к внешним питающим линиям, а также для распределения электрической энергии внутри здания и защиты отходящих линий от перегрузок и коротких замыканий. Для электроснабжения квартир от ВРУ отходят питающие линии, состоящие из горизонтальных и вертикальных (стояков) участков. К горизонтальному участку каждой линии могут присоединятся один или несколько стояков.
Однако следует учитывать, что при коротком замыкании на одном из стояков сработает защита на ВРУ и питающая линия отключится, при этом большое количество квартир останется без питания. Поэтому для повышения надёжности питания квартир, а также для удобства выполнения ремонтных работ следует на каждом ответвлении к стояку устанавливать отключающий и защитный аппарат (рис. 1).
1-питающая линия; 2-стояки; 3-отключающий и защитный аппараты.
Кроме линий, питающих квартиры, от ВРУ отходят внутридомовые линии, питающие освещение холлов, лестниц, коридоров, а также электродвигатели лифтов, насосов, вентиляторов и электроприёмников системы дымозащиты.
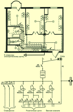
3. Схема 12-ти этажного односекционного жилого дома
П
ринципиальная схема 12-этажного односекционного жилого дома приведена на рис.2.
Рис.2. Принципиальная схема 12-ти этажного односекционного жилого дома
-
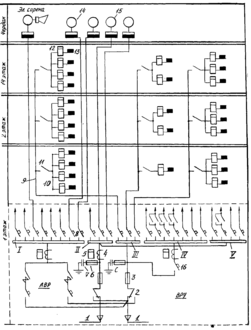
Описание схемы электроснабжения 12-ти этажного дома
Как видно из схемы, питание электроприёмников здания осуществляется двумя взаиморезервируемыми кабелями 1, рассчитанные на питание (в аварийном режиме) всех его нагрузок. При выходе из строя одного из питающих кабелей все электроприёмники с помощью переключателей 2, установленных на панели ВРУ, подключаются к кабелю, оставшемуся в работе.
Для защиты панелей ВРУ от короткого замыкания на вводах установлены плавкие предохранители 3.
Для учёта расхода электроэнергии от электроприёмников общественного назначения (рабочее освещение лестничных клеток, подвала, чердака, домовых помещений и силовые потребители, в том числе лифты, и аварийное освещение лестничных клеток) устанавливается трёхфазный счётчик 5, включаемый через трансформатор тока 4. Для подавления радиопомех на каждой фазе вводов устанавливают по одному помехозащитному конденсатору типа КЗ-05 ёмкостью 0,5 мкФ. Конденсаторы 7 снабжены предохранителями 6 и заземлены. Отходящие линии от ВРУ защищаются автоматическими выключателями 8. К стоякам 9 (секция III), питающим квартиры, подключены этажные квартирные щитки, которые установлены в электрошкафах 10, размещённых на лестничных клетках (ЛК).
На каждую группу квартир устанавливается один трёхполюсный пакетный выключатель 11, который подключается к двум фазам и нулевому проводу стояка.
В электрошкафу устанавливают также однофазные квартирные счётчики 12 и групповые щитки 13 с автоматическими выключателями или предохранителями для защиты групповых линий квартир. К специальной панели (секция I), на которой предусмотрено устройство АВР (автоматическое включение резерва), подключаются вентиляторы системы дымозащиты 14, щитки управления и эвакуационное освещение. Присоединение этой панели к двум вводам до переключателей 2 с помощью устройства АВР всегда обеспечивает бесперебойное её электроснабжение. От секции II по питающим линиям питаются лифтовые установки 15 и эвакуационное освещение. К секции III через автоматический выключатель16 и приборы учёта расхода электроэнергии подключена секция IV, от которой питаются общедомовые помещения. От панели V питаются штепсельные розетки для уборочных машин и аварийное освещение машинного лифтов и электрощитовой.
В каждую квартиру независимо от количества в ней комнат для питания осветительных и бытовых электроприёмников с газовыми плитами, как правило, проложены две однофазные группы с алюминиевыми проводами сечением 2,5
. Одна питает общее освещение, другая - штепсельные розетки. Допускается и смешанное питание, при этом штепсельные розетки, устанавливаемые в квартире, должны присоединятся к разным групповым линиям. Там, где есть кухонные электрические плиты, предусматривается третья групповая линия для их питания.
Нормами регламентировано число штепсельных розеток, устанавливаемых в квартирах: в жилых комнатах и общежитиях—одна розетка на каждые полные и неполные
площади комнаты; в коридорах квартир—одна розетка на каждые полные и неполные
площади; в общей комнате квартир, оборудованных кондиционерами,--дополнительная розетка на ток 10А для подключения кондиционера. В кухнях площадью до
--три штепсельные розетки на ток 6 А, а на
и более—четыре для подключения холодильника, бытового прибора, надплитного фильтра, динамика радиовещания.
Одна штепсельная розетка с заземляющим контактом:
на ток 10А для подключения бытового прибора мощностью 2,2кВт,
на ток 25А для подключения бытового прибора мощностью до 4 кВт или электроплиты мощностью до 5,8кВт, на то 40А для подключения электроплиты мощностью от 5,9 до 8кВт. Допускается установка розеток в ванных комнатах для подключения электробритв, массажных приборов и т.п. при условии, что они подключены через разделяющие трансформаторы мощностью 20ВА, имеющие коэффициент трансформации 1:1 и конструкцию повышенной надёжности. Эти трансформаторы служат для отделения электроприёмников от первичной сети и заземления.
Штепсельные розетки должны быть установлены на высоте 0,8-1м от пола.
При скрытой проводке розетки допускается устанавливать на высоте 0,3 м от пола, а также непосредственно над плинтусом или встроенными в плинтус, с защитными устройствами, закрывающими штепсельные гнёзда при вынутой вилке.
Горизонтальные линии, отходящие от ВРУ дома и питающие электроприёмники квартир, лестничных клеток, лифтовых установок и т.д., могут выполнятся проводами марок АПВ, АВР и АПРТО, прокладываемых по техническому подполью или подвалу открыто в тонкостенных металлических и винипластовых трубах или коробах и лотках. При отсутствии в здании таких помещений эти линии прокладываются под полом первого этажа.
Вертикальные линии (стояки) выполняются проводами тех же марок, но прокладываются скрыто каналах стен лестничных клеток или по поэтажным коридорам (карманам). В крупнопанельных и крупноблочных зданиях стояки прокладываются по каналам, выполненным на заводе в стеновых бетонных электроблоках или электропанелях.
Питающие линии лифтовых установок прокладываются либо в каналах электропанелей, либо в трубах шахт лифтов. Если к одной питающей линии подключено несколько лифтов, то для присоединения последующих лифтовых установок прокладывается магистраль в кровле или по чердаку в трубах.
Групповая сеть квартир выполняется плоскими проводами марок ППВ, АППВ и АПН. Эти провода прокладываются без труб в слое подготовки пола, под штукатуркой стен и потолков, в щелях и пустотах строительных конструкций, а также в каналах строительных конструкций, образуемых при изготовлении железобетонных, гипсобетонных и других панелей на заводе.
Если создание каналов в строительных конструкциях затруднено, групповая сеть квартир закладывается в толщу железобетонных, керамзитовых, и газобетонных конструкций в процессе их изготовления на заводе. Такая проводка является несменяемой, и на практике её называют «замоноличенной». Применение этих проводок допускается с некоторыми ограничениями, в частности, их запрещается закладывать в конструкции, в которых бетонные смеси имеют добавки, вредно действующие на изоляцию и жилы проводов (алюминат натрия, поташ и т.п.). Тепловая обработка строительных конструкций должна длиться не более 24часов при температуре не выше 100 С.
Начинают применять прокладку всех видов квартирной сети в электрических плинтусах: проводов освещения и подключения бытовых приборов, сети телефона, радиотрансляции и телевидения. Проводку в плинтусах легко можно сменить, она удобна для монтажа и эксплуатации.
5. Метод определения электрических нагрузок в жилых зданиях
Метод определения электрических нагрузок в жилых зданиях существенно отличается от методов определения электрических нагрузок в производственных, общественных и подсобных зданиях. Если электрические нагрузки (осветительная и силовая) в производственных, общественных и подсобных зданиях определяют, исходя из установленной мощности, полученной в результате светотехнического расчёта, и установленной мощности технологического оборудования с учётом режимов его работы, то величины электрических нагрузок в жилых зданиях зависят от насыщенности квартир осветительными и электробытовыми приборами (телевизоров, радиоприёмников, холодильников и т.п.). Поскольку количество электроприборов и время их использования жильцами зависят от многих факторов, то электрические нагрузки жилых квартир являются случайными, что создаёт трудности для их определения. В жилых зданиях при определении нагрузок используют метод, основанный на теории вероятностей и многолетних исследований. За основу метода принята удельная нагрузка в киловаттах на одну квартиру (семью). Значение удельной нагрузки зависит от размера жилой площади каждой квартиры, числа квартир присоединённых к данному элементу сети, вида кухонных приборов (газовые, электрические и прочие плиты).
Многоквартирные жилые дома относятся ко II категории комфорта.
Жилые дома II категории имеют два уровня электрификации быта: с газовыми плитами и с электроплитами для пищеприготовления, как по заданию.
В состав электроприемников квартир II категории входят: освещение, розеточная сеть, электроплита, стиральная машина с электроподогревом, телерадиоаппаратура, бытовой прибор мощностью до 2,2 кВт, пылесос, холодильник.
При проектировании многоквартирных домов и при определении удельных нагрузок приняты следующие мощности электроприемников: Освещение – 2,8 кВт ;Розеточная сеть – 2,8 кВт ;Электроплиты – 9-1 0,5 кВт;Стиральная машина – 2,2 кВт; Водонагреватель аккумуляционный – 2 кВт;Бытовые электроприборы – 4 кВт.
В первом приближении расчетная нагрузка группы жилья с одинаковой удельной электрической нагрузкой, приведенная к линии питания, вводу в жилой дом, шин напряжением 0,4 кВ ТП: где
- удельная расчетная электрическая нагрузка одного жилья (квартиры), которое задано по условию или выбирается из справочной таблицы в зависимости от принятого уровня электрификации и количества квартир, присоединенных к данному звену электросети, кВт/квартира; N - количество квартир, присоединенных к вводу, линии, ТП. Удельные расчетные электрические нагрузки жилья охватывают нагрузку освещения общедомовых помещений.
Рж.п.=0,92 кВт/кв ; N=60кв ; РжN =0,92*60=55,2 кВт. Уточним эту цифру с учётом поправочных коэффициентов для удельной электрической нагрузки.
-
Расчётные нагрузки жилых домов 2 категории
С
хема электроснабжения квартиры- на рис.3.
Расчетную нагрузку питающих линий, вводов и на шинах 0,4 кВ ТП от электроприемников квартир следует определять по формуле:
Характеристики
Тип файла документ
Документы такого типа открываются такими программами, как Microsoft Office Word на компьютерах Windows, Apple Pages на компьютерах Mac, Open Office - бесплатная альтернатива на различных платформах, в том числе Linux. Наиболее простым и современным решением будут Google документы, так как открываются онлайн без скачивания прямо в браузере на любой платформе. Существуют российские качественные аналоги, например от Яндекса.
Будьте внимательны на мобильных устройствах, так как там используются упрощённый функционал даже в официальном приложении от Microsoft, поэтому для просмотра скачивайте PDF-версию. А если нужно редактировать файл, то используйте оригинальный файл.
Файлы такого типа обычно разбиты на страницы, а текст может быть форматированным (жирный, курсив, выбор шрифта, таблицы и т.п.), а также в него можно добавлять изображения. Формат идеально подходит для рефератов, докладов и РПЗ курсовых проектов, которые необходимо распечатать. Кстати перед печатью также сохраняйте файл в PDF, так как принтер может начудить со шрифтами.















