145002 (580041), страница 2
Текст из файла (страница 2)
Рукомойники устанавливают в туалетных комнатах. По конструкции они устроены так же, как раковины или умывальники. Чаша рукомойника имеет размеры 480Х Х320Х130. В качестве рукомойников могут быть использованы умывальники или раковины малых размеров.
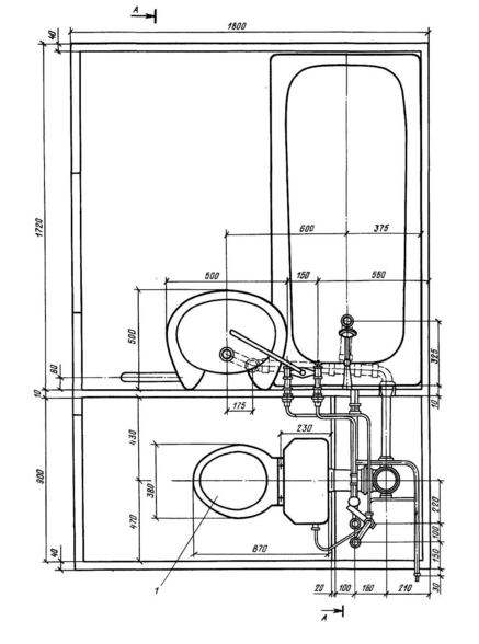
Трапы — приемники для отвода сточных вод с поверхности пола, из сборных лотков в канализационную сеть; изготовляют их из чугуна с эмалированной или асфальтированной внутренней поверхностью со встроенным или приставным гидравлическим затвором, с прямым или косым выпуском. Размеры трапов в плане 200X200 мм при диаметре выпуска 50 мм; 300X300 — при 100 мм. Глубина трапов 130 и -195 мм. В трапах диаметром 300 мм в плане с прямыми выпусками диаметром 100 мм применяют приставные гидрозатворы. Трапы тщательно заделывают в полу с надежной гидроизоляцией. Сток с пола к трапам осуществляется благодаря уклону пола 0,01—0,02. Один трап диаметром 50 мм устанавливают на три унитаза, на 1—2 душа, на 5 и более умывальников, а с выпуском диаметром 100 мм — на 3—4 душевые кабины (в банях).
Производственные здания
В производственных зданиях уборные, умывальные и душевые размещают в бытовых помещениях, располагаемых или в пристройке к производственному зданию, или в отдельно стоящем здании, но с максимальным приближением их к рабочим местам.
Душевые. Число душевых сеток следует принимать по числу работающих в наиболее многочисленной смене, исходя из расчетного числа человек на одну душевую сетку (таблица 11.1 )
Душевые кабины могут быть открытыми и закрытыми. В закрытой кабине предусматриваются запираемая дверь и место для переодевания, отделенное от душевой водонепроницаемой шторой. В закрытых душевых, кабинах расчетное число человек на одну сетку следует уменьшать на 30%.
Душевые рекомендуется размещать смежено с гардеробными, но не у наружных стен здания. Душевые кабины оборудуют, как правило, индивидуальными смесителями холодной и горячей воды, с арматурой управления, расположенной у входа в кабину.
Расчетная продолжительность работы душевых составляет 45 минут после каждой смены.
Вместо кабин можно применять групповые душевые установки.
Размеры между осями перегородок душевых кабин должны быть: открытых 0,9 х 0,9 м, закрытых- 1,8 х 0,9 м.
Ширина прохода принимается равной (не менее), м
между рядами душевых кабин или между душевыми установками квадратного сечения при числе кабин в ряду:
6 и менее 1,5
более 6 2
между душевыми установками круглого очертания
в плане 1
между установками и стеной (перегородкой) . . 0,7
Уклон пола в душевых помещениях уклон пола в сторону лотка или трапа принимается равным 0,01 -0,02.
В душевых, расположенных на междуэтажных перекрытиях, рекомендуется применять душевые поддоны.
При наличии производственных процессов со значительным тепловыделением (группа IIб), преимущественно в виде лучистого тепла, помимо душей дополнительно вблизи рабочих мест устанавливают полудущи - умывальники с душевыми сетками, отделяемые экранами из водонепроницаемых и водостойких материалов, из расчета один полудуш на 15 чел.
Устройства для мытья рабочей обуви следует предусматривать при производствах групп IIг и IIд.
Полудуш - устройство для охлаждения, применяемое в течение смены работающими при производственных процессах с тепловым облучением интенсивностью более 2520 кДж [600 ккал/(м2 ч)].
Число полудушей следует принимать из расчета один полудуш на 15 чел, пользующихся полудушами в наиболее многочисленной смене. Полудуши размещают в открытых кабинах размером 900 х 900 мм. Серийно полудуши промышленность не изготовляет. Применяемые устройства состоят из душевой сетки и смесителя. Для приема воды может быть использован умывальник четвертой или пятой величины.
Уровень установки душевой сетки над полом составляет-1,3 м, водоприемной чаши - 0,75 м. Для удаления воды с пола следует устанавливать трапы диаметром 50 мм.
Уборные. Расстояние от рабочих мест до уборных, размещаемых в здании, должно быть не более 75 м, а до уборных, размещаемых вне здания,- не более 150 м.
В многоэтажных производственных зданиях уборные должны быть на каждом этаже.
Примечание. Исключение составляют следующие случаи: при числе работающих на двух смежных этажах до 30 чел уборные размещают через этаж; при отсутствии работающих на одном этаже, а также при числе работающих на трех этажах более 10 человек - через два этажа.
На промышленных предприятиях уборные, как правило, оборудуют напольными чашами; допускается установка и унитазов. При числе кабин более трех одна из них должна быть оборудована унитазом. В мужских уборных необходимо устанавливать писсуары.
Число напольных чаш (или унитазов) и писсуаров в уборной определяется в зависимости от числа человек из расчета одна напольная чаша (или один унитаз) на 15 чел в наиболее многочисленной смене. Число напольных чаш (или унитазов) и писсуаров в одной уборной должно быть не более 16.
Число писсуаров в мужских уборных должно быть равно числу напольных чаш (унитазов). При числе мужчин 15 и менее писсуар в уборной не предусматривается.
Если в наиболее многочисленной смене работает менее 10 чел, то допускается устройство одной уборной для мужчин и женщин.
* Кабина или уборная на одну напольную чашу (или унитаз) должна иметь размеры в плане 1,2 х 0,8 м.
Рекомендуется устанавливать индивидуальные настенные писсуары, но допускаются и индивидуальные напольные писсуары. При установке писсуаров принимаются следующие расстояния, м:
между настенными писсуарами 0,7
ширина прохода между двумя рядами кабин при числе писсуаров в ряду
6 и более 2
менее 6 1,5
расстояние между крайним рядом кабин уборных и стеной или перегородкой 1,3
ширина прохода при расположении писсуаров против кабин 2
В шлюзах при уборных устанавливают один умывальник на четыре у ни газа или писсуара, а при меньшем числе приборов - один на каждую уборную.
Помещения для личной гигиены женщин предусматривают в том случае, если в наиболее многочисленной смене работает более 14 женщин (одна кабина на каждые 100 женщин); располагают их смежно с женскими уборными. При размещении помещений для личной гигиены женщин отдельно от уборных следует предусматривать в них унитаз и умывальник с подводом к нему холодной и горячей воды.
Размеры индивидуальной кабины должны быть 1,8 х 1,2 м; ширина прохода между рядами кабин 2 м, между рядом кабин и стеной или перегородкой -1,3 м.
Умывальные размещают смежено с гардеробными рабочей одежды. Умывальники могут быть одиночными или групповыми. Групповые умывальники применяют на производствах, где мытье тела не требуется (производства группы 1а, 16, IVb).
Число кранов в умывальных следует принимать по числу работающих в максимальной смене, исходя из расчетного числа человек на один кран (табл. 11.2).
При определении числа кранов в умывальных краны в столовых и уборных не учитывают.
В конструкторских бюро, помещениях общественных организаций и в помещениях для учащихся число кранов следует принимать из расчета 40 чел на один кран.
При производственных процессах групп IIIa, IIIb, Шг и IVб умывальники должны быть оборудованы педальными или локтевыми пусковыми устройствами
При установке умывальников принимаются следующие расстояния, м-
между кранами в ряду 0,65
ширина прохода между рядами умывальников при числе их в ряду
5 и более 2
менее 5 1,8
ширина прохода между рядом умывальников и стеной (перегородкой) при числе их в ряду
5 и более 1,5
менее 5 1,35
при расположении умывальников
параллельно ряду шкафов 2
вдоль торцов шкафов 1,5
между групповыми круглыми умывальниками 1,2
между групповыми круглыми умывальниками и стеной (перегородкой) 0,9
Ручные ванны предусматриваются при производственных процессах, связанных с передающейся на руки вибрацией. Число пользующихся ручными ваннами должно приниматься в соответствии с технологической частью проекта.
Число ванн принимается из расчета одна ванна на 3 чел в наиболее многочисленной смене. Расстояние от помещения для ручных ванн до рабочих мест, располагаемых в здании должно быть не более 7,5 м, а до рабочих мест, размещаемых на площадке предприятия, не более 150 м.
При числе пользующихся ручными ваннами до 110 чел ручные ванны можно располагать в производственном здании, при большем числе пользующихся в отдельном помещении
Ручные ванны оборудуются индивидуальными смесителями холодной и горячей воды и душевыми сетками (взамен кранов).
В качестве ручных ванн можно использовать полукруглые умывальники четвертой и пятой величины.
Ножные ванны устанавливают в пред-душевых или умывальных. Ножные ванны должны иметь индивидуальные смесители холодной и горячей воды.
При установке ножных ванн принимаются следующие расстояния, м:
ширина прохода между:
рядами ножных ванн 2
крайним рядом ножных ванн и стеной или
перегородкой 1,2
между кранами ножных ванн 0,7
Для производств групп 1а, 16, 1в, Па исходят из расчета 50 мужчин или 40 женщин на одну ножную ванну при работе, производимой в основном стоя или в условиях малой подвижности и охлаждения ног работающих.
Современные санитарно-технические приборы
Ванны
Чугунная ванна
Главный факт, говорящий в пользу покупки чугунной ванны - долговечность и прочность. Но вряд ли Вам захочется выбрать чугунную ванну, если живете на верхних этажах. Чугун довольно тяжелый, и даже, несмотря на то, что современные технологии позволяют сделать чугунные ванны тонкими, весят они, тем не менее, в среднем 120 кг. Значительный вес гарантирует устойчивость ванны после корректной установки. Другими словами чугунная ванна не будет отходить от стены, кафель можно наклеивать вплотную к ней.
Эмалевое покрытие чугунной ванны отличается большим блеском по сравнению с акрилом, но требует более бережного ухода. Восстановление поверхности эмали может быть проблематичным. При правильном уходе без едких моющих веществ эмаль не пожелтеет и не будет шероховатой долгие годы.
Сохранение тепла также немаловажно. Теплоемкость достаточно высока - она долго нагревается, но температура воды также держится длительное время (остывание до комнатной температуры происходит в среднем за полтора часа).
Еще одним достоинством ванн от иностранных производителей являются ножки, которые позволяют облегчить монтаж ванны, а также установить необходимую высоту для оптимального соответствия ванны и канализационного слива. Наиболее качественные ванны из чугуна изготавливаются в Испании и Франции. На дно эти ванн нанесено специальное покрытие, которое не позволяет человеку скользит. Это защищает от падения. Более того, некоторые модели оснащены специальными ручками для обеспечения дополнительного удобства. Расположены эти ручки по боковым стенкам ванны. При подключении ванны к канализационной сети, а также при установке необходимо оборудовать ее специальным полуавтоматическим современным сифоном-обвязкой (сливом-переливом). Важно, чтобы сифон был хорошего качества, так как это единственная деталь в ванной, которая может протекать. Наиболее прочными и долго не теряющими своего цвета и не тускнеющими являются именно ванны, изготовленные из чугуна. Однако главным их отличием от своих «сестер» является большая теплоемкость и значительно более низкий уровень шума.
По форме выбрать чугунную ванну можно только прямоугольную. Чугун - материал, из которого сложно сделать ванну более замысловатой форму. Т.е. если Вы хотите выбрать ванну треугольной или круглой формы, то искать придется среди акриловых либо стальных.
Акриловая ванна
Акриловые ванны появились относительно недавно, но уже успели заслужить большую популярность. Акрил по сути представляет собой пластик, для производства ванн его укрепляют (армируют), иначе он бы прогибался уже под толщей воды. От качества акрила и количества слоев армирования и зависит качество самой ванны и, естественно, её цена.
Многие предпочитают выбрать среди ванн именно акриловую по причине её малого веса. Это значительно облегчает доставку и установку. К тому акриловую ванну выбрать можно любой формы. Но слишком изощряться тоже не стоит, качественному акрилу тяжело придать сложную форму, поэтому многообразие извилистых линий в ванне должно настораживать. Вполне достаточно будет подлокотников, остальное излишне. Цветовая гамма также разнообразна, поэтому легко можно выбрать акриловую ванну желаемого цвета. Цвет акрилу придается ещё на стадии изготовления, поэтому не стоит бояться, что ванна потеряет свой первоначальный облик.
Плюсом акриловых ванн также является значительная теплоемкость, даже в сравнении с чугунными. Вода в акриловых ваннах остывает на градус в течение 30 минут, падение температуры воды на градус в чугунной ванне происходит за 5-10 минут. Это ещё один факт в пользу акрила, особенно если Вы хотите выбрать ванну, в которой можно долго полежать.
Относительно прочности акриловых ванн необходимо сказать, что самые лучшие из них те, что имеют в основе металлическую сетку. Но большинство акриловых ванн всё же укрепляются несколькими слоями стекловолокна. Поверхность акриловых ванн легко повредить, но и удалить мелкие царапины довольно просто, отшлифовав наждачной бумагой. Положительной стороной акриловых ванн является и легкость в уходе, гигиеничность.
















