24856 (568833)
Текст из файла
Контрольная работа
По геологии
Задача 1
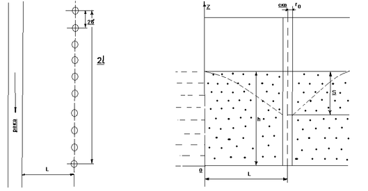
Определить понижение уровня в центральной скважине водозабора, состоящего из n=3 скважин, расположенных параллельно совершенному урезу реки на расстоянии 2
100 м друг от друга. Расход каждой скважины Q0=800 м3/сут, радиус фильтра r0=0.1м. Водоносные аллювиальные пески имеют мощность hст=40 м, коэффициент фильтрации К=8 м/сут ; водоотдача
0.1 Прогноз выполнить для t=700 сут . Рассмотреть два варианта расстояния скважин до реки d1=100м ;и d2=500 м. Сопоставить полученные решения.
Решение:
Рассмотрим 1 вариант d1=100м Величина уровнепроводности определяется по формуле:
а=
м2/сут
Время наступления стационарного режима фильтрации определим по формуле:
tс=
Rк=2(d+
н.д) т.к река с совершенным урезом то Rк=2d
tс=
31 сут.
Так как длинна водозаборного ряда 2l=(n-1)*2
=(3-1)*100=200 м и соблюдается условие d
l, можем использовать формулу Маскета Лейбензона:
S0=
*
*[
]=4.52 м
Так как S
0.25hст данное решение не подлежит корректировке.
Рассмотрим 2 вариант при d2=500 м.
tс=
= 781 сут
Радиус контура питания Rк=2d2=2*500=1000 м .
Так как расстояние между взаимодействующими скважинами ri=2
0.3Rk, можем использовать формулу:
S=
S=
Увеличение расстояния скважины от реки существенно увеличило период нестационарного режима фильтрации, но мало повлияло на величину понижения.
Задача 2
Кольцевой водозабор ,состоящий из n=8 скважин ,вскрывает напорный пласт известняков мощностью m=50 м, коэффициент фильтрации К=4 м/сут. Выше залегает весьма водообильный горизонт грунтовых вод, отделенный от известняков слоем суглинков мощностью m0=25 м и коэффициентом фильтрации К0=10-4 м/сут. Упругая водоотдача известняков
=4*10-5. Расстояние между скважинами 2
, суммарный водоотбор Qсум=8000м3/сут. Радиус фильтра скважины r0=0.15м, длина фильтра l0=15м. Фильтр расположен в средней части пласта. Избыточный напор над кровлей известняков Н=25 м.
Необходимо определить: время наступления стационарного режима фильтрации в скважинах, величину сработки уровня и остаточный напор.
Решение:
Определим радиус кольцевого водозабора:
R0=
=
Оценим величину параметра перетекания по формуле:
В=
7071м
Величина радиуса контура питания:
Rk=1.12*B=1.12*7071=7919.5м
Условие ri
k соблюдается
Величина пьезопроводности известняков:
а#=
м2/сут
Стационарный режим наступит через время :
tс=
=31 сут
Величину понижения уровня в совершенной скважине определим по формуле:
S=
S=
+
*
Величину сопротивления, учитывающего несовершенство скважин, определяем по графику:
нс=8 , тогда дополнительное понижение за счет несовершенства определим по формуле:
м
А общее понижение уровня :
S=23.9+6.37=30.27м
Остаточный напор над кровлей отсутствует.
Понижение ниже кровли :
25-30.27=-5.27 м , что сопоставимо с
.
Задача 3
Водоносный горизонт мощностью 40 м приурочен к водоносным аллювиальным пескам с коэффициентом фильтрации К=15 м/сут, водоотдачей
0.05. На расстоянии d=300 м от уреза реки эксплуатируются две скважины с расходами Q1=1500 м3/сут и Q2=1000 м3/сут, расположенные на расстоянии 2
друг от друга. Радиус фильтра скважин r0=0.1м. Определить: понижение уровня в скважине 2 на моменты времени 1;3;10;100 и 500 суток. Качественно описать развитие понижения во времени. Построить график S-
. Графически сравнить полученные результаты с понижением уровня в неограниченном пласте.
Решение:
Определим величину уровнепроводности пласта:
а =
=
=12000 м2/сут
Понижение в скважине 2 будет формироваться под воздействием четырех скважин: двух реальных и двух отображенных. Определим расстояние до каждой из них.
До скв1: r1=2
250м; до скв 2: r 2=r0;
По теореме Пифагора:
=
До отображенной скв 2:
Используя формулы:
rкв
;
t
;
Т
=
;
Определим начало влияния каждой скважины на формирование понижения в скважине 2 и время наступления квазистационарного режима от влияния каждой скважины. Вычисления сводим в таблицу 1
Таблица 1
| Номер скважины | tвл , сут | tкв ,сут |
| | ||
| | ||
| | ||
| |
Для t= 1сут согласно таблице 1 ,учитывается влияние скважины 1, однако ее режим неустановившийся:
S0=
S0=
Для t=3 сут, согласно таблице 1, учитывается влияние скважины 1 и скважины 2/, но режим неустановившийся. С учетом того что имеем расчетную схему в виде реки (Н=const), то отображенная скважина задается как нагнетательная (-Q0),тогда:
S0=
S0=
2.27 м
Для t= 10 сут учитывается влияние скважин 1 , 1/ ,и 2/, но режим неустановившийся:
S0=
S0=
=2.38 м
Для t=100 сут учитывается влияние всех скважин при этом режим во всех скважинах квазистационарный , тогда:
Расчет для t=500 суток аналогичен расчету при t=100сут так как режим квазистационарный, а центральная скважина еще раньше выходит на стационарный режим, что связано с границей постоянного напора.
Отразим полученные результаты расчетов на графике и убедимся, что график для схемы неограниченного пласта является медианным по отношению к схемам полуоткрытого и полузакрытого пласта.
Задача 4
Водозабор из двух скважин работает в напорном, неограниченном в плане пласте известняков с К= 25 м/сут, мощностью m=30 м ,упругой водоотдачей
10-4. Остаточный напор на начало эксплуатации Н=20 м . Расходы скважин изменяются во времени. Первые t1=700 сут , 1 скв эксплуатируется с расходом
м3/сут, а скв 2-
м3/сут; затем
2000 м3/сут;
м3/сут. Скважины расположены на расстоянии 2
друг от друга. Скважины совершенные по степени вскрытия пласта, r0=0.1м.
Определить понижение уровня в СКВ 2 спустя t=1500 сут после начала работы этой скважины.
Решение:
График изменения дебита взаимодействующих водозаборных скважин
Определим величину пьезопроводности пласта:
а#=
м2/сут
Найдем время наступления квазистационарного режима по формуле:
Т.е к расчетному периоду, режим можно считать квазистационарным и используя формулы имеем:
S2=
S2=
Т.е меньше остаточного напора.
Задача 5
Водозаборный ряд из n = 10 скважин эксплуатирует с суммарным расходом Qсум = 20000 м /сут грунтовые воды в долине реки с совершенным врезом. Водоносный горизонт приурочен к аллювиальным пескам. Мощность обводненной толщи hе = 40 м, коэффициент фильтрации k=20 м/сут, водоотдача μ= 0,2. Расстояние между скважинами в ряду составляет 2σ=200м. Оценить время наступления стационарного режима фильтрации. Определить понижение уровня в центральной скважине, радиус фильтра которой ro=0,1м. Скважина совершенная. Рассмотреть два варианта размещения водозабора относительно реки: параллельно урезу на расстоянии L1=300м и L2 = 1200м от него.
Решение:
1 Определяем величину коэффициента уровнепроводности
а=
=
Время наступления стационарного режима фильтрации для обоих вариантов размещения водозабора составит:
по первому варианту
tc=
=
сут,
по второму варианту
tc=
=3600сут.
2. Определяем величину понижения уровня в скважине водозабора при его размещении в L1=300 м от уреза реки. Учитывая, что длина ряда 2l=2σ·n=200·10=2000 м и L1 Так как S0,25hе (6.1<10,0), данное решение не подлежит корректировке. 3. Определяем величину понижения уровня в скважине водозабора при ее размещении на расстоянии L2=1200 м от уреза реки. Учитывая что, L2 > l , можем воспользоваться методом обобщенных систем, используя формулы: S=Sw+ΔSСКВ; Sw= ΔSСКВ= Rw= rn= Отметим, что полученное решение будет справедливо для периода эксплуатации водозабора, превышающего время наступления стационарного режима, т.е. tпрог >3600 сут. Предварительно схематизируем пласт как неограниченный, принимая Rk = 2L, тогда Rотобр =0. Sw= ΔSСКВ= Суммируя получим: S= Так как S> 0,25hе, переходим к расчету для грунтовых вод, составляя квадратное уравнение: 2*mSн=(2he-S)*S 2*40*8.36=2*40S-S2; S2-80S+668.8=0; откуда определяем понижение в грунтовых водах: S=40- Задача 6 Песчаный карьер имеет размеры b х L равные 600 х 1200 м. По контуру карьера пробурены скважины с шагом 2σ =300 м, из которых осуществляется водоотбор с целью водопонижения с расходом Qо=1200м3/сут из каждой скважины. Водоносный горизонт заключен в песках и имеет мощность hе=40м. Коэффициент фильтрации песков k=10 м/сут, водоотдача μ=0,1. Определить величину понижения уровня под карьером и в скважинах, имеющих радиус фильтра ro=0,1м. Скважины совершенные. Продолжительность разработки карьера t=5 лет. Решение: 1. Определим количество скважин по контуру карьера: n= Суммарный водоотбор равен: Qсум=n*Q0=12*1200=14400 м3/сут 2. Величина коэффициента уровнепроводности пласта: а= Проверяем условии: R0= Это означает наступление квазистационарного режима фильтрации к этому времени по всему водозабору, что позволяет использовать для его расчета метод обобщенных систем. 4. Так как режим фильтрации квазистационарный, определим величину понижения уровня под карьером по формулам: Sw= Rw= rпр=R0; Sw= Дополнительное понижение в скважинах определим по формулам: ΔSСКВ= rn= ΔSСКВ= Общее понижение в скважине равно: S=Sw+ ΔSСКВ=12.26+1.48=13.74 м. Так как S0.25he , то переходим к расчету для грунтовых вод: (2he-S)S=2*40*13.74; S2-80S+1099.2=0; S=40-
;
;
8.63 м
=9.48 м.
м2/сут
=479 м.
что меньше расчетного срока в 1825 сут.
;
;
;
;
=17.6м.
Характеристики
Тип файла документ
Документы такого типа открываются такими программами, как Microsoft Office Word на компьютерах Windows, Apple Pages на компьютерах Mac, Open Office - бесплатная альтернатива на различных платформах, в том числе Linux. Наиболее простым и современным решением будут Google документы, так как открываются онлайн без скачивания прямо в браузере на любой платформе. Существуют российские качественные аналоги, например от Яндекса.
Будьте внимательны на мобильных устройствах, так как там используются упрощённый функционал даже в официальном приложении от Microsoft, поэтому для просмотра скачивайте PDF-версию. А если нужно редактировать файл, то используйте оригинальный файл.
Файлы такого типа обычно разбиты на страницы, а текст может быть форматированным (жирный, курсив, выбор шрифта, таблицы и т.п.), а также в него можно добавлять изображения. Формат идеально подходит для рефератов, докладов и РПЗ курсовых проектов, которые необходимо распечатать. Кстати перед печатью также сохраняйте файл в PDF, так как принтер может начудить со шрифтами.
=
1
2
1/
2/















