Пособие к ТСН 31-312-98 (МГСН 4.10-97) Выпуск 1 (524720), страница 7
Текст из файла (страница 7)
Планировка кабинетов начальников отделов показана на рис. 5.10, а общих рабочих комнат с числом сотрудников от двух до шести - на рис. 5.11 и 5.12.
А - кабинет площадью 18 м
/количество мест для посетителей - до 6/
Б - кабинет площадью 12 м
/количество мест для посетителей - до 4/
В - кабинет площадью 9 м
/количество мест для посетителей - до 3/
Г - кабинет площадью 16 м
/количество мест для посетителей - до 5/
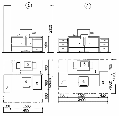
1 - рабочее место руководителя отдела - см. рис. 5.2.
2 - рабочее место руководителя отдела - см. рис. 5.1
3 - рабочее место сотрудников отделов банка - см. рис. 5.4
4 - шкаф для одежды
5 - шкаф для документов
6 - стулья для посетителей
7 - шкаф металлический
8 - стол приставной для посетителей
Рис. 5.10. КАБИНЕТЫ РУКОВОДИТЕЛЕЙ ОТДЕЛОВ
| А - помещения на 2 рабочих места - 12 м | Е - помещение на 6 рабочих мест - 36 м |
| Б - помещение на 3 рабочих места - 16 м | 1 - комплект рабочего места - см. Рис. 5.4 |
| В - помещение на 4 рабочих места - 24 м | 2 - стул для посетителей |
| Г - помещение на 3 рабочих места - 18 м | 3 - шкаф для одежды |
| Д - помещение на 4 рабочих места - 24 м | 4 - шкаф для документов |
Рис. 5.11. ОБЩИЕ РАБОЧИЕ КОМНАТЫ НА 2-6
РАБОЧИХ МЕСТ /ВАРИАНТ 1/
| А - помещение на 2 рабочих места - 12 м | Е - помещение на 6 рабочих мест - 36 м |
| Б - помещение на 3 рабочих места - 16 м | 1 - комплект рабочего места - см. Рис. 5.5 |
| В - помещение на 4 рабочих места - 24 м | 2 - стул для посетителей |
| Г - помещение на 3 рабочих места - 18 м | 3 - шкаф для одежды |
| Д - помещение на 4 рабочих места - 24 м | 4 - шкаф для документов |
Рис. 5.12. ОБЩИЕ РАБОЧИЕ КОМНАТЫ НА 2-6
РАБОЧИХ МЕСТ /ВАРИАНТ 2/
Блок помещений для работы с секретной документацией приведен на рис. 5.13.
| А - служебное помещение на 1 рабочее место | 6 - стул |
| Б - помещение для хранения документов | 7 - шкаф металлический для документов |
| В - помещение для приема и выдачи документов | 8 - машина для уничтожения бумаг |
| Г - помещение для работы посетителей с документами. | 9 - контейнер для сухого мусора |
| 1, 2 - столы рабочие | 10 - шкаф канцелярский для документов |
| 3, 4 - тумбы | 11 - сейф |
| 5 - стул подъемно-поворотный | 12 - передаточное окно |
Рис. 5.13. БЛОК ПОМЕЩЕНИЙ ДЛЯ РАБОТЫ С ДОКУМЕНТАМИ
ОГРАНИЧЕННОГО РАСПРОСТРАНЕНИЯ
5.3. Вспомогательные помещения
В состав вспомогательных помещений входят помещения для оперативных совещаний и переговоров при руководстве и помещения для хранения, обработки и размножения документации.
Примеры планировки залов для оперативных совещаний и переговоров при руководстве банка приведены на рис. 5.14. В залах, где предусматривается использование видеопроекции, на окнах рекомендуется применять шторы и жалюзи.
ВАРИАНТ 1 - зал совещаний на 20 мест
ВАРИАНТ 2 - зал совещаний на 20 мест с оборудованием для видеопроекции и местом для стенографистки
| 1 - стол для заседаний | 5 - тумба передвижная для видеопроекционной аппаратуры |
| 2 - стол аудиторный | 6 - видеопроекционный шкаф |
| 3 - кресло для заседаний | 7 - экран для видеопроекции |
| 4 - стул |
Рис. 5.14. ЗАЛ ДЛЯ ОПЕРАТИВНЫХ СОВЕЩАНИЙ
Планировка архива финансовых документов и архивов делопроизводственных документов зависит от способа их хранения - в металлических шкафах, на передвижных стеллажах или на открытых стационарных стеллажах. Первые два способа рекомендуются для хранения финансовых документов, третий - характерен в основном для делопроизводственных архивов. Примеры планировки помещений архивов с различными способами хранения документации приведены на рис. 5.15.
ВАРИАНТ 1 и 3 - с хранением документов на открытых стеллажах
ВАРИАНТ 2 и 4 - с хранением документов на передвижных стеллажах
ВАРИАНТ 5 - с хранением документов в металлических шкафах
| А - помещение для хранения | 6 - каталожный шкаф |
| Б - помещение для архивариуса и обслуживания посетителей | 7 - стул подъемно-поворотный |
| 1 - стол для обработки документов | 8 - стол читательский |
| 2 - стол для обработки документов и обслуживания посетителей | 9 - стул |
| 3 - стол для обслуживания посетителей | 10 - стеллажи стационарные |
| 4 - тумба для оргтехники | 11 - стеллажи передвижные |
| 5 - каталожный бокс настольный | 12 - металлические шкафы |
Рис. 5.15. ПОМЕЩЕНИЯ АРХИВОВ
В архиве финансовых документов рекомендуется предусматривать специальный настольный сейф для хранения ключей электронной подписи, паролей доступа и т.п.
Ограждающие конструкции, двери и окна архива финансовых документов должны быть устойчивы к взлому. Класс устойчивости определяется заданием на проектирование. Требования к архивам электронных носителей информации см. в разделе 5.1 данного пособия.
Помещения архивов должны оборудоваться автоматическим пожаротушением, а архивов финансовых документов также охранной сигнализацией. Отделка помещений не должна являться источником пыли.
Примеры устройства рабочих мест машинистки, оператора текстового компьютера, оператора настольного ксерокопировального аппарата и сотрудников экспедиции приведены на рис. 5.16-5.19.
| 1 - рабочее место машинистки | 4 - стол для принтера |
| 2 - рабочее место оператора текстового компьютера | 5 - стол-вставка |
| 1 - стол для машинистки | 6 - стул подъемно-поворотный |
| 2 - тумба | 7 - персональный компьютер |
| 3 - стол для дисплея | 8 - пишущая машина |
Рис. 5.16. РАБОЧЕЕ МЕСТО МАШИНИСТКИ И ОПЕРАТОРА ТЕКСТОВОГО КОМПЬЮТЕРА
| ВАРИАНТ 1 - со шкафом для документов | 3 - шкаф для документов |
| ВАРИАНТ 2 - с тумбой для хранения документов | 4 - стул подъемно-поворотный |
| 1 - стол | 5 - ксерокопировальный аппарат |
| 2 - тумба |
Рис. 5.17. РАБОЧЕЕ МЕСТО ОПЕРАТОРА НАСТОЛЬНОГО
КСЕРОКОПИРОВАЛЬНОГО АППАРАТА
| 1, 2 - рабочие столы | 8 - пачковязальная машина |
| 3 - стол для компьютера или пишущей машины | 9 - персональный компьютер или пишущая машина |
| 4 - тумба | 10 - весы |
| 5 - шкаф для документов | 11 - конвертозаклеивающая машина |
| 6 - стул подъемно-поворотный | 12 - машина маркировальная |
| 7 - контейнер для сухого мусора | 13 - нумератор |
Рис. 5.18. РАБОЧЕЕ МЕСТО ЭКСПЕДИТОРА НА ОБРАБОТКЕ
ОТПРАВЛЯЕМОЙ КОРРЕСПОНДЕНЦИИ
| 1, 2 - рабочие столы | 8 - стул подъемно-поворотный |
| 3, 4 - тумбы | 9 - нумератор |
| 5 - шкаф-картотека | 10 - сшиватель документов |
| 6 - контейнер для сухого мусора | 11 - машина для вскрытия конвертов |
| 7 - машина для уничтожения бумаг | 12 - лоток для бумаг |
Рис. 5.19. РАБОЧЕЕ МЕСТО ЭКПЕДИТОРА НА ОБРАБОТКЕ
ПОСТУПАЮЩЕЙ КОРРЕСПОНДЕНЦИИ
6. Требования к помещениям охраны и
службы безопасности
6.1. В состав помещений охраны банка входят:
- пультовая для технических средств охраны;
- помещение для хранения, заряжения и чистки оружия;
- комната отдыха охраны;
- посты охраны;
- кабинеты и рабочие комнаты службы безопасности.
Примеры планировки помещений пультовой и хранения, заряжания и чистки оружия приведены на рис. 6.1 и 6.2.
| ВАРИАНТ 1 - для зданий общей площадью 1-2 тыс. м | 4 - рабочее кресло подъемно-поворотное |
| ВАРИАНТ 2 - для зданий общей площадью 2-3,5 тыс. м | 5 - металлический шкаф для документации, расходных материалов и оперативного архива |
| ВАРИАНТ 3 - для зданий общей площадью 3,5-6 тыс. м | 6 - стол |
| 1 - модули для размещения аппаратуры видеонаблюдения | 7 - тумба |
| 2 - стойки для коммутационного и электропитающего оборудования | 8 - диван |
| 3 - приемная аппаратура охранной и пожарной сигнализации | 9 - холодильник |
Рис. 6.1. ПОМЕЩЕНИЕ ПУЛЬТОВОЙ
















