МГСН 3.01-96 дополнение 3 (524688), страница 12
Текст из файла (страница 12)
Площадь помещений под антресолями следует принимать с коэффициентом 1.
В площадь помещения не включается площадь, занимаемая печью или камином на твердом топливе, а также подъемником.
Площадь внутриквартирной лестницы учитывается однократно вне зависимости от числа этажей (уровней) в квартире (коттедже) и определяется как площадь проекции маршей и междуэтажных площадок, если эти площадки не являются одновременно внутриквартирными коридорами, частью холла или передней.
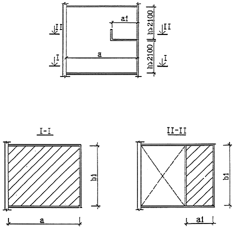
При определении площади мансардного помещения или помещения с наклонными ограждающими конструкциями учитывается часть площади этого помещения, имеющего высоту до наклонного потолка, м: не менее 1,6 - при углах наклона потолка к горизонту от 45 град. и более; не менее 1,9 - при углах наклона потолка к горизонту до 45 град. При этом при высоте менее 2,5 м площадь помещений следует учитывать с коэффициентом 0,7.
Площадь мансардного помещения или помещения с наклонными ограждающими конструкциями (S) в зависимости от углов наклона к горизонту и минимально нормируемых высот от пола до наклонного потолка (h) подсчитывается следующим образом (см.рис. 1,2):
S= a x b+ c x b x 0,7, где
а - глубина помещения, имеющего высоту не менее 2,5 м;
b - ширина помещения;
с - глубина части помещения, имеющая высоту до 2,5 м, но не менее 1,6 м при углах наклона к горизонту 45 град. и более (или 1,9 м- при наклоне менее 45 град.);
d - глубина части помещения, имеющая высоту менее 1,6 м при углах наклона к горизонту 45 град. и более (или 1,9 м - при наклоне менее 45 град.).
При подсчете площади помещения его часть, имеющая размеры d x b, не учитывается.
Площадь двухсветных помещений при наличии в них балконов или галерей следует принимать с коэффициентом 1, учитывая площадь в уровне основного пола, а также в уровне пола балконов или галерей (см.рис.3):
S=a x b+al x bl, где
а - глубина двухсветного помещения;
b - ширина двухсветного помещения;
al - ширина галереи (балкона) в двухсветном помещении;
bl - длина галереи (балкона) в двухсветном помещении
9. Строительный объем коттеджа - (блокированного жилого дома) определяется как сумма строительного объема выше отметки ±0.000 (надземная часть) и ниже этой отметки (подземная часть).
Строительный объем надземной и подземной частей здания определяется в пределах ограждающих конструкций, световых фонарей и др., начиная с отметки чистого пола каждой из частей здания, без учета выступающих архитектурных деталей и конструктивных элементов, портиков, террас, лоджий, балконов, объема проездов и пространства под зданием на опорах (в чистоте).
Схемы разрезов
Рис. 1
Схемы разрезов
Схемы планов
Рис. 2
Схема разреза
Рис. 3
Приложение 6
Рекомендуемое
Классификация коттеджей
| Тип одноквартирного дома (коттеджа) | Площадь, м | Площадь застройки, м |
| С минимальньм составом помещений | до 200 | не более 250 |
| от 200 до 250 | 70-210 | |
| С развитым составом помещений | от 250 до 350 | 78-290 |
| от 350 до 500 | 110-340 | |
| от 500 до 750 | 156-375 | |
| от 750 до 1000 | 235-500 | |
| от 1000 до 1500 | 310-630 | |
| от 1500 | 470 и более |
Приложение 7
Рекомендуемое
Классификация блокированных жилых домов
| Квартира блокированного жилого дома | Площадь, м | Площадь застройки, м |
| С минимальным составом помещений | от 60 до 150 | 70-94 |
| от 80 до 150 | 70-94 | |
| С развитым составом помещений | от 150 до 200 | 70-125 |
| от 200 до 250 | 70- 125 | |
| от 250 до 350 | 70-146 | |
| от 350 до 500 | 90-210 |
Приложение 8
Рекомендуемое
Схемы подключения коттеджей и блокированных жилых домов к наружным электрическим сетям
Рис.1 . Варианты подключения коттеджей к воздушной линии 0,4 кВ
Рис. 2. Варианты подключения коттеджей к кабельной линии 0,4 кВ
Приложение 9
ПОЛОЖЕНИЕ
о составе, порядке проектирования, согласования и утверждения
проектно-сметной документации на строительство коттеджей в г.Москве
ОБЩИЕ ПОЛОЖЕНИЯ
Настоящее положение разработано на основании "Положения о едином порядке предпроектной и проектной подготовки строительства в г.Москве", утвержденного распоряжением мэра от 11 ноября 1994 года № 561-РМ с учетом специфики коттеджного строительства.
Положение определяет состав, порядок разработки, согласования и утверждения проектно-сметной документации коттеджной застройки на территории г. Москвы.
Проектирование коттеджей осуществляется на основании утвержденных генерального плана города и проекта планировки района.
Стадийность и состав проектно-сметной документации.
1. Стадийность разработки проектно-сметной документации определяется утвержденным заданием на проектирование.
2. Для коттеджного строительства устанавливаются три стадии проектирования:
I стадия. Технико-экономическое обоснование (ТЭО) с разбивкой на пусковые комплексы из расчета 20-25 участков;
II стадия. Рабочий проект застройки (РПЗ) пускового комплекса с полным инженерным обеспечением и благоустройством в составе:
1. Плана застройки в масштабе 1:500 с нанесением:
- красных линий улиц и проездов;
- сводного плана инженерных сетей с заходом на участок;
- границы участков коттеджной и общественной застройки;
- границ застройки (максимально допустимые размеры в габаритах наружных стен) на каждом участке коттеджной и общественной застройки;
- план организации рельефа и земляных масс.
2. Пояснительная записка к РПЗ с основными технико-экономическими показателями и обоснованиями принятых решений по всем разделам проекта.
В пояснительной записке отражается:
а) территория пускового комплекса (га), в том числе:
- территория коттеджной застройки;
- территория общественной застройки;
- территория улиц, дорог, общественного озеленения.
б) ожидаемая площадь коттеджей и объектов общественного назначения.
в) расчетный расход воды, сточных вод, газа с учетом 20% резерва, в т.ч. по каждому участку.
г) расчетный расход по электронагрузкам с учетом 25% резерва, в т.ч. по каждому участку.
3. Проект организации строительства.
4. Охрана окружающей среды.
5. Утверждаемая часть проекта (основные технико-экономические показатели).
6. Сметная документация.
Рабочий проект застройки (утверждаемая часть) при наличии согласованного ТЭО представляется в Мосгосэкспертизу и в согласованном виде передается в Инспекцию государственного архитектурно-строительного надзора для получения разрешения на строительство.
В административно-технической инспекции оформляется ордер на производство работ.
Законченные строительством инженерные сети и дороги сдаются в эксплуатацию.
III стадия. Рабочий проект коттеджа (РПК), учреждений общественного назначения.
Привязка проекта коттеджа и подключения его к инженерным сетям производится после окончания строительства инженерных сетей, дорог и продажи участка.
Для привязки применяется проект коттеджа прошедшего предварительные согласования с городскими организациями по выбору застройщика.
По желанию застройщика может быть разработан индивидуальный проект коттеджа с последующим его согласованием с городскими организациями до привязки к участку.
Рабочий проект коттеджа разрабатывается в составе:
1. Исходно-разрешительная документация на основе ТЭО и РПЗ;
2. Пояснительные записки по основным разделам проекта.
3. Утверждаемая часть проекта (основные технико-экономические показатели).
4. Сметная документация.
5. Основные чертежи:
- ситуационный план М 1:2000;
- генплан М 1:500 на геоподоснове;
- схема организации рельефа и подсчета земляных масс;
- схема благоустройства и озеленения территории;
- схема инженерных сетей М 1:500;
- внутренние разводки;
- чертежи поэтажных планов;
- фасады и разрезы;
- узлы и детали;
- схема стройгенплана;
- проект организации строительства;
- карта отделочных работ.
Рабочий проект коттеджа (утверждаемая часть) при наличии согласованного ТЭО представляется в Мосгосэкспертизу и в согласованном виде со штампом передается в Инспекцию Государственного архитектурно-строительного надзора для получения разрешения на строительство.
В административно-технической инспекции оформляется ордер на производство работ.
Законченные строительством коттеджи и общественные здания сдаются в эксплуатацию.
Порядок согласования и утверждения проектно-сметной документации.
1. В соответствии с требованиями распоряжения мэра от 1 сентября 1998 года № 890-РИ согласование проектно-сметной документации производится один раз на стадии ТЭО.
2. Согласование ТЭО производится со следующими организациями:
- Москомархитектура (архитектурные решения);
- АПУ административного округа;
- НИиПИ генплана Москвы;
- Управление Госконтроля охраны памятников истории и культуры (при необходимости);
- Штаб ГО;
- отдел подземных сооружений МГГТ (сводный план инженерных сетей);
- Управление Государственной противопожарной службы;
- Мослесопарк (в случае перепосадки или вырубки насаждений);
- Государственный санэпиднадзор;
- Москомприрода;
- Мосводоканал;
- Мосэнерго;
- Мосгаз;
- Московско-окское бассейновое воднохозяйственное объединение;
- Мосгосэкспертиза;
3. Утверждение проектно-сметной документации производится заказчиком строительства после согласования ее с городскими организациями.
















