Для студентов МГТУ им. Н.Э.Баумана по предмету Детали машин (ДМ)Привод ленточного транспортера (задание №785)Привод ленточного транспортера (задание №785)
4,8858699
2021-05-052021-05-05СтудИзба
Курсовая работа ДМ: Привод ленточного транспортера (задание №785) вариант 785
Описание
Представлен графический материал, РПЗ отсутствует.
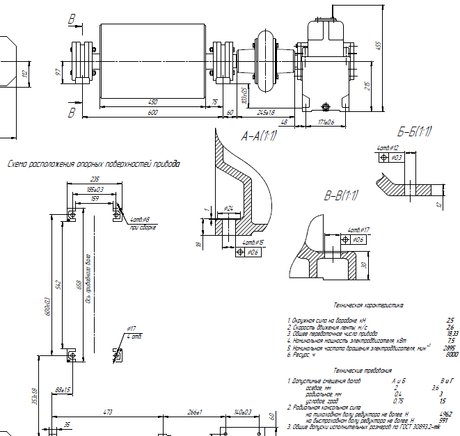
Фрагмент СБ Привод ленточного конвейера:
Фрагмент СБ Привод ленточного конвейера:

Характеристики курсовой работы
Предмет
Учебное заведение
Семестр
Номер задания
Вариант
Просмотров
64
Размер
972,1 Kb
Список файлов
Привод ленточного транспортера (задание №785) (г.м
Вал тихоходный.pdf
Колесо зубчатое.pdf
Муфта упруго-компенсирующая.pdf
Привод ленточного конвейера.pdf
Редуктор коническо-цилиндрический.pdf
Сечение плоскости разъема.pdf
Спецификация 2.pdf
Спецификация.pdf

НОВИНКА: отчеты по практикам! Поиск - по названию предприятия в тэге. База учебных материалов МГТУ им. Н.Э. Баумана в формате pdf, оригиналы файлов отсутствуют (если иное не оговорено в описании). Вопросы задавайте ДО покупки в комментариях под файлами.