Методичка к ДЗ (1246547), страница 2
Текст из файла (страница 2)
Прочие поверхности крышки – свободные, они не сопрягаются с другими деталями узла при сборке и эксплуатации и, следовательно, на них не назначают дополнительных технических требований.
Исходя из вышесказанного можно сделать вывод, что назначенные технические требования на чертеж крышки обоснованы.
Рассмотрим возможные варианты обеспечения технических требований при механической обработке заготовке крышки.
1. Точность размера наружной цилиндрической поверхности 120h8 и шероховатость Ra = 3,2 мкм, а также шероховатость прилегающего к ней торца Ra = 3,2 мкм обеспечивают чистовым точением (см. табл. 4 в [3]).
2. Шероховатость левого торца крышки Ra = 1,6 мкм может быть обеспечена чистовым точением или однократным шлифованием.
3. Точность размера внутренней цилиндрической поверхности 70 H9 и шероховатость Ra = 1,6 мкм могут быть обеспечены чистовым растачиванием.
4. Заданные отклонение от соосности и торцевые биения относительно базы Г в пределах допустимых в данном случае могут быть обеспечены обработкой базовой (наружной цилиндрической поверхности 120 h8) и контролируемых поверхностей (торцов и внутренней цилиндрической поверхности 70 H9 мм) с одного установа на токарном станке.
5. Позиционный допуск на расположение крепежных отверстий может быть обеспечен при обработке на универсальном (например, радиально-сверлильном) станке с использованием кондукторного приспособления либо на станке с ЧПУ за счет точности позиционирования инструмента.
2. Анализ технологичности конструкции детали (качественная оценка)
Технологичность конструкции детали в данном разделе, рассматривают, в первую очередь, с точки зрения механической обработки: обеспечивают ли основные особенности конструкции детали удобство закрепления заготовки и обработки поверхностей, а также с точки зрения удобства контроля технических требований.
При анализе технологичности конструкции детали, рассматривают:
-
Типы поверхностей, ограничивающих форму детали; является ли деталь телом вращения или нет. Таким образом определяют, какие основные методы формообразования следует использовать (точение, фрезерование и т.п.).
-
Конструктивные особенности поверхностей и их размеры: обеспечивают ли они удобный подвод и отвод инструмента, например:
-
для удобства точения целесообразно, чтобы диаметры наружных цилиндрических поверхностей постепенно увеличивались от одного края детали к другому или от краев детали к центру, а диаметры внутренних цилиндрических поверхностей постепенно уменьшались;
-
для удобства обработки наружные цилиндрические поверхности следует разделять канавками для выхода инструмента;
-
фрезеровать открытые пазы удобнее, чем закрытые, так как из открытого паза легче удаляется стружка;
-
сверлить сквозные отверстия удобнее, чем глухие; из сквозного отверстия легче удалить стружку и смазочно-охлаждающую жидкость, меньше влияние повышенных температур в зоне резания и пр.
-
Наличие сложных фасонных поверхностей, которые будут определять необходимость использования специального инструмента либо станков с числовым программным управлением (ЧПУ).
-
Наличие у детали удобных развитых (т.е. протяженных, широких) поверхностей, по которым удобно было бы базировать и закреплять заготовку для обработки.
-
Возможность совместить измерительную и технологическую базы для повышения точности обработки.
-
Является ли конструкция детали жесткой. Для деталей пониженной жесткости применяют:
-
дополнительные приспособления (средства технологического оснащения СТО), например, люнеты;
-
приспособления с распределенными силами закрепления.
-
Принадлежность размеров детали рядам предпочтительных чисел [9]. Это показывает возможность использовать стандартный инструмент, стандартные программы ЧПУ и др.
-
Наличие унифицированных8 поверхностей и унифицированных размеров. Это дает возможность использовать унифицированный инструмент, сократить номенклатуру используемых СТО, а следовательно, снизить затраты на изготовление детали.
-
Возможность совместить переходы для увеличения производительности.
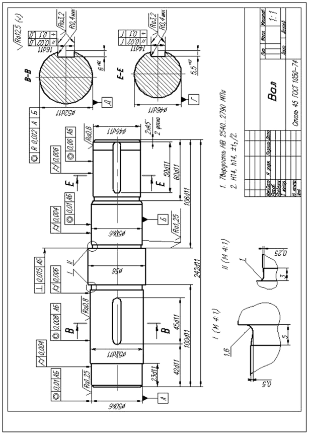
ПРИМЕР 2: Проанализируем технологичность конструкции вала крыльчатки вентилятора (Рис. 6).
1) Рассматриваемая деталь является телом вращения, следовательно, основным методом формообразования будет точение. Диаметры основных наружных цилиндрических поверхностей вала увеличиваются от торцов к центру, что обеспечивает удобство подвода к ним режущего инструмента.
Поверхности разной точности разделены канавками для выхода инструмента, кроме левой шейки 50 k6. Для повышения технологичности целесообразно выполнить канавку между этой шейкой и наружной цилиндрической поверхностью 52 d11.
2) Сложных фасонных поверхностей нет, следовательно, возможна обработка на универсальных станках и без использования специального фасонного инструмента.
Рис. 6. Вал крыльчатки вентилятора
3) Специальные резцы понадобятся для обработки канавок. Форма резцов должна соответствовать форме канавки по ширине с учетом скруглений R = 1,6 мм и 1 мм.
4) Все шейки вала имеют одну геометрическую ось (соосны). Следовательно, для обработки можно использовать одну технологическую базу – ось детали (центровые отверстия).
Диаметр крайних шеек достаточно большой для выполнения таких отверстий. Однако, дополнительное отверстие для поводка (как показано на Рис. 7), передающего крутящий момент при токарной или шлифовальной операции, может снизить прочность изделия. В этом случае передачу крутящего момента целесообразно осуществлять с помощью хомутика, одетого на шейку вала (см. Рис. 3). Однако при этом невозможно будет обработать все цилиндрические поверхности вала с одного установа.
Рис. 7 Центр с поводком
5) Жесткость вала достаточна для его установки на двух опорах без люнета, так как
,
где l – длина вала; d – приведенный диаметр вала [7].
Следовательно, использование дополнительных приспособлений (например, люнетов) не требуется.
6) Размеры 52 d11, 46 d11 не входят в ряды предпочтительных чисел в соответствии с ГОСТом 8032 – 84 [9]. Однако поскольку диаметральные размеры заготовок при точении получают за счет настройки технологической системы, а не за счет размера самого инструмента (как, например, при сверлении), то данные размеры допустимо не приводить к предпочтительным.
7)Размеры шпоночных пазов соответствуют ряду предпочтительных чисел, следовательно можно использовать стандартный инструмент, что снижает затраты на изготовление детали.
8) Размеры канавок разные, что требует применения двух разных канавочных резцов. Причем, одна из канавок (на диаметре 52 мм) стандартная, а вторая нестандартная. Можно предположить, что в данном случае изменение ширины и глубины второй канавки не повлияет на эксплуатационные свойства вала, тогда целесообразно заменить ее на стандартную с теми же размерами, что и первая, выбрав при этом стандартный размер, например, 5 мм [11]. Тем самым размеры канавок будут стандартизованы и унифицированы.
9) Размеры фасок вала также целесообразно унифицировать, что позволит обрабатывать их одним инструментом либо по одной и той же программе на станке с ЧПУ.
3. Выбор вида заготовки, метода ее изготовления, проектирование эскиза заготовки
Особенности конструкции заготовки и технология ее изготовления влияют на структуру технологического процесса изготовления детали и ее эксплуатационные характеристики.
Исходными данными для этого этапа построения технологического процесса являются:
-
материал детали (указанный на чертеже);
-
конструктивные и геометрические параметры детали (указанные на чертеже).
-
объем выпуска изделия данного наименования за отчетный период времени (месяц, квартал, год и т.п.).
На основе исходных данных необходимо выбрать способ изготовления заготовки, определить ее рациональный вид и изобразить эскиз.
Материал детали задает конструктор в соответствии со служебным назначением детали. Физико-механические свойства материала детали непосредственно влияют на выбор метода получения заготовки.
Основными видами заготовок, рассматриваемых в рамках домашнего задания, являются отливки, поковки и прокат [3, 12 – 17].
Форма, масса и размеры заготовки ограничивают возможные способы изготовления заготовки в рамках выбранных методов. Также влияет наличие поверхностей, которые не обрабатывают механически, так как точность их размеров и шероховатость должны соответствовать возможностям способа получения заготовки.
Дальнейшее уточнение способа получения заготовки выполняют с учетом объема выпуска и соответствующего типа производства. Объем выпуска изделия (детали) влияет на способ изготовления заготовки. Общее правило: чем больше объем выпуска, тем точнее и сложнее заготовка, т.е. при увеличении объема выпуска экономически оправдана более сложная технологическая оснастка.
Дополнительным критерием выбора являются требования к структуре материала заготовок: плотность, ориентированность волокон, размер зерен. Например, штамповка позволяет получить более плотную структуру, а после проката волокна металла направлены вдоль оси прокатки; литье в кокиль из-за хорошей теплопроводности металлической формы обеспечивает более мелкозернистую структуру, чем литье в песчаные формы.
Если на детали есть поверхности, которые не обрабатываются резанием, способ изготовления заготовки должен обеспечивать заданную для этих поверхностей точность размеров и шероховатость. Если предполагается, что вся заготовка обрабатывается резанием, то можно выполнить не слишком точную и, следовательно, более дешевую заготовку.
Сформулируем рекомендации для определения необходимости обработки поверхностей механическим способом.
-
Обрабатывают сопрягаемые поверхности (те поверхности, по которым происходит соприкосновение (контакт) с поверхностями других деталей в изделии или сборочной единице);
-
Обрабатывают рабочие поверхности (см. сноску 2 на стр. 2).
Если из чертежа не понятно, какие поверхности являются сопрягаемыми или рабочими, тогда следует ориентироваться на назначенные на них технические требования и их геометрическую форму.
-
Значок
шероховатости поверхности указывает на то, что она получена без снятия слоя материала, без механической обработки. Значит, ее обрабатывать не следует. -
Поверхности с максимальной шероховатостью (самой высокой для данной детали), которые ограничены плавными линиями (например, переход к другой поверхности с радиусами скругления), могут быть получены литьем или штамповкой.
-
Если на поверхности с низкой шероховатостью переход к другой поверхности реализован без радиуса скругления (или небольшим радиусом порядка 1…2 мм), который невозможно получить штамповкой или литьем, эти поверхности необходимо обработать однократно.
-
Поверхности, на которые назначены требования к точности формы и расположения, или которые являются измерительными базами (стоит значок
базы) обрабатывают.
Основные сведения о видах заготовок и методах их изготовления, а также содержание основных этапов выбора заготовок рассмотрены в [12, 13]. Кратко характеристики методов изготовления заготовок представлены в Приложениях 2 и 3.
ПРИМЕР 3: Необходимо выбрать заготовку для вала (см. Рис. 6) из стали 45 [8], для условий серийного производства.
-
Материал вала – сталь 45 обладает низкой жидкотекучестью, но хорошей пластичностью, следовательно, предпочтительно получать заготовку методами обработки давлением (прокат, ковка, штамповка), а не литьем.
-
Размеры и масса вала небольшие, следовательно, оборудование и оснастку подбирать или изготавливать несложно, в этом отношении ограничений по методам обработки давлением нет.
-
Также нужно учесть форму вала: если перепад (разность) диаметров смежных ступеней вала небольшой (не более 2,5 … 5,0 мм для деталей с размерами до 500 мм), выгоднее будет выбрать заготовку из проката, чем полученную штамповкой. Для более точной оценки следует определить припуски9 на последующую обработку заготовки с учетом требуемой точности [3], а также напуски на поковку [14, 15], рассчитать и сравнить коэффициенты использования материала для двух заготовок.
-
Для серийного типа производства целесообразно форму заготовки приблизить к форме готовой детали.
Например, при получении поковки горячей объемной штамповкой на прессе затраты на изготовление сложной оснастки и получение более точной поковки будут распределены на партию деталей, т.е. себестоимость одной детали увеличится на себестоимость оснастки, деленной на количество деталей в партии, а это при больших объемах выпуска будет небольшой величиной. При этом трудоемкость и стоимость механической обработки снизятся.
При ковке, наоборот, получают упрощенную форму заготовки с большими напусками и допусками на размеры. Однако, несмотря на дешевую оснастку, себестоимость готовой детали увеличится из-за перерасхода материала (много металла уйдет в стружку) и большого объема последующей механической обработки. В связи с вышесказанным, более предпочтительно получение заготовки штамповкой, чем ковкой. С другой стороны, ковка, по сравнению со штамповкой, обеспечивает более высокие физико-механические свойства детали. Поэтому, если деталь ответственная и работает в тяжелых условиях, то заготовку получают ковкой.















