диплом (1235147), страница 6
Текст из файла (страница 6)
Сушила непрерывного действия подразделяют в зависимости от способа перемещения материала на барабанные и конвейерные. Широко распространены в литейном производстве конвейерные сушила для сушки стержней.
Сыпучие материалы (песок и глину) сушат в барабанных сушилах, а также в сушилах с сушкой в кипящем слое.
Горизонтальные конвейерные сушила имеют горизонтально расположенную рабочую камеру. Изделия в нем перемещаются конвейером с подвесными грузовыми этажерками и сушатся нагретыми продуктами горения топлива. Продукты горения равномерно подают и отводят по длине сушила, что обеспечивает необходимый режим сушки. Иногда конвейер внутри сушила совершает 2 - 4 оборота.
На рисунке 6. показано одноходовое конвейерное горизонтальное газовое сушило для подсушки стержней после окраски. Температура в сушиле 200 - 250о С. Изделия перемещаются через сушило (рисунок 2.6) по конвейеру с электромеханическим приводом 1 и механизмом натяга 10. Сушильная камера 3 представляет собой горизонтальный коридор, собранный из металлических панелей, который заполнен шлаковой ватой.
Газ сжигают в выносной топке 5 с помощью инжекционной горелки 4. Рециркуляцию газов в сушиле осуществляют вод охлаждаемым вентилятором 6, расположенным вместе с топкой на площадке 7. Циркулирующие газы движутся по системе коробов 8. Избыток газов выбрасывается в атмосферу через патрубки 2 и 9. Горячие газы, многократно омывая изделия, передают им свою теплоту конвекцией. Конвейер сушила загружают со стороны привода 1.
1 – электромеханический привод; 2, 9 – патрубок; 3 – сушильная камера; 4 – горелка;
5 – топка; 6 – вентилятор; 7 – площадка; 8 – система коробов; 10 – механизм натяга
Рисунок 2.6 – Одноходовое конвейерное сушило для подсушки стержней
2.5 Описание ковшей для разливки
Ковш - это стальной сосуд, используемый для работы с расплавленными металлами (сталь, чугун).
Корпус ковша представляет собой сварную конструкцию, футерованную огнеупорным кирпичом под чайник. Для чайника в корпусе ковша имеется выступ по всей высоте корпуса. Снаружи на сварной корпус навариваются обечайки и плиты, к которым крепятся цапфовые плиты с запрессованными в них цапфами.
Транспортировка ковша осуществляется мостовым краном при помощи траверсы. При необходимости возможен поворот ковша относительно цапф за скобу. Скоба служит для заваливания ковша вспомогательным крюком крана и технологической чалкой.
Фиксация корпуса ковша от раскачивания при транспортировке осуществляется фиксаторами, откидывающиеся вверх при сливе шлака.
Траверса представляет собой металлоконструкцию, состоящую из двух балок, выполненных из швеллера или двутавра, соединенных между собой болтами. Между балками в центральной части вставляется петля и крепится на 4 болта М24.
За петлю траверса зацепляется крюком мостового крана. По краям балок на болтах М24 закреплены подвески, в которые устанавливается раздаточный ковш.
Для предохранения петли и балок траверсы от теплового излучения на нижней части балок закреплен металлический кожух, отделенный от балок асбестовыми прокладками.
Перед каждой заливкой металла литейные ковши должны осматриваться мастером, ответственным за эксплуатацию ковшей, в целях проверки их исправности. При осмотре мастер обращает внимание на состояние всех болтовых соединений, работоспособность фиксаторов, отсутствие трещин, надрывов и деформаций во всех силовых частях, на состояние футеровки, особенно дна и прилегающих к нему стенок.
Перед заливкой металла ковш необходимо просушить и прогреть до необходимой температуры.
Разливочные ковши до сдачи их в эксплуатацию (в том числе после каждого ремонта) должны быть тщательно освидетельствованы и приняты механиком цеха. Техническое освидетельствование должно быть возложено на инженерно-технического работника по надзору за грузоподъемными механизмами и производиться при участии лица, ответственного за исправное их состояние. Кроме того, не реже одного раза в 6 месяцев испытаны на статическую нагрузку, превышающую на 25% максимальную рабочую нагрузку, в течение 15 минут следующим образом:
– пустой ковш, подвешенный к крюку крана, нагрузить дополнительным грузом так, чтобы суммарный вес, действующий на петлю траверсы, был 11,9 тонн. Нагрузку прикладывать к корпусу ковша. Выдержать под нагрузкой в течение 15 минут;
– подвесить пустой ковш за скобу и нагрузить корпус ковша дополнительным грузом так, чтобы суммарный вес, действующий на скобу, был 6,8 тонн. Выдержать под нагрузкой в течение 15 минут;
– после снятия нагрузки производят тщательный осмотр ковша: трещины, надрывы и остальные деформации не допускаются. Особенно тщательно должны проверяться корпус ковша, цапфы, цапфовые плиты, скоба, оси, а также весь крепеж, соединяющий их;
– перед испытанием металлические части ковша должны быть очищены от грязи, коррозии, брызг металла и шлака;
– при освидетельствовании проверять состояние силовых частей траверсы, износ цапф, цапфовых плит, скобы, фиксаторов, стенок ковша и крепежа. При износе свыше 10% от первичного сечения, наличии трещин и деформаций детали бракуются и заменяются новыми;
– перед сдачей ковша в эксплуатацию, после каждого ремонта и не реже, чем 1 раз в 6 месяцев, проводить дефектоскопию цапф на отсутствие наружных и внутренних дефектов металла;
– при замене футеровки обращать внимание на качество головок болтов, крепящих цапфовую плиту к корпусу ковша. При оплавлении и пережоге головок болты заменять новыми;
– при пережоге корпуса, корпус заменить новым.
2.6 Описание ваграночной плавки
Основным плавильным агрегатом чугунолитейного производства является вагранка. Во вновь строящихся и в крупных действующих цехах вагранки для плавки чугуна работают с подогревом дутья, газоочисткой, имеют продолжительный межремонтный цикл. В целях получения чугуна различных марок при унифицированной шихте, обеспечения возможности регулирования состава, температуры и свойств чугуна, улучшения условий работы в плавильном отделении на крупных заводах применяют дуплекс-процесс, плавку чугуна ведут в вагранках, доводку по составу и температуре и термов ремённую выдержку проводят в индукционной или дуговой печи. Однако на действующих заводах пока работают и вагранки без подогрева дутья, многие из которых в настоящее время оборудуются вторичным дутьем и мокрыми пылеуловителями.
При плавке чугуна в вагранке применяют:
– огнеупорные материалы для футеровки печи, защищающие ее от воздействия высоких температур;
– металлическую шихту, смешение и расплавление компонентов которой обеспечивают необходимое количество и заданный химический состав чугуна;
– топливо, при горении выделяющее теплоту, необходимую для плавления и перегрева чугуна и шлака до заданных температур:
– флюсы, понижающие вязкость шлака и обеспечивающие более полное протекание металлургических процессов между жидким чугуном и шлаком, который образуется из продуктов окисления золы кокса и загрязнения шихты в результате оплавления футеровки печи.
На участке навески шихты осуществляется хранение, переработка и дозирование (шихтовка) материалов, необходимых для плавки, хранение и подготовка огнеупорных материалов, предназначенных для футеровки печей. Затем дозированные компоненты шихты (колоши) подают в плавильное отделение для завалки в печь.
В ходе плавки контролируют основные параметры процесса: производительность вагранки, температуру, химический состав жидкого чугуна и его литейные свойства. В вагранках для плавки чугуна в основном используются кокс и термоантрацит. При необходимости проводят корректировку расхода кокса и воздуха, подаваемого в печь. После окончания плавки вентиляторы останавливают, удаляют остаток кокса после плавки, и вагранка охлаждается для проведения ремонта.
В настоящее время наибольшее распространение для плавки серого чугуна марок от СЧ10 до СЧ30 получили коксовые вагранки, а для плавки высокопрочных, ковких и легированных чугунов (дуплекс) процессы: вагранки и электропечи или плавка моно процессом в дуговых или индукционных печах.
Развитие плавки чугуна в электропечах способствовало возникновению новых видов дуплекс-процессов, когда в качестве первичного плавильного агрегата применяют не вагранки, а индукционные или дуговые печи. Замена вагранки как первичного плавильного агрегата объясняется дефицитностью кокса и необходимостью использования не кондиционированных шихтовых материалов.
Классификация вагранок:
Вагранки классифицируются по следующим признакам:
– по профилю – цилиндрические, конические, доменные;
– по принципу очистки ваграночных газов – открытые, полузакрытые, закрытые (типы);
– по виду применяемого дутья – без подогрева дутья, с подогревом, с обогащением дутья кислородом (исполнение);
– по виду используемой энергии – коксовые, коксогазовые и газовые, плазменные, индукционные (классы);
– по конструктивным особенностям – с копильником и без копильника;
– по применяемому технологическому процессу плавки – переплавочные и металлургические (модели);
– по продолжительности межремонтного цикла с суточным межремонтным циклом и многонедельным (модификации).
В открытых вагранках производится только грубая очистка газов от крупных частиц пыли, в сухих или мокрых искрогасителях, в полузакрытых очищается только часть газов, в закрытых эффективной очистке подвергаются все газы. Перед выбросом в атмосферу газы должны быть дожжены для очистки от СО, содержание которой должно быть не более 0,1%.
Эксплуатация коксовых и коксогазовых вагранок открытого типа допускается санитарными нормами только в исключительных случаях при установке на них устройств, для дожигания газов и мокрых искрогасителей. Для дожигания газов на уровне загрузочного окна или выше его устанавливают горелки природного газа и принимают специальные меры по уменьшению подсоса через загрузочное окно воздуха, снижающего температуру отходящих газов и разбавляющего их негорючими составляющими. С этой целью загрузочные отверстия в вагранках делают минимальными, а загрузку шихты осуществляют через вибрационные или перекидные лотки. Мокрые пылеуловители, устанавливаемые на трубе открытых вагранок, должно иметь небольшое сопротивление движению газов, которое может быть преодолено за счет естественной тяги из трубы. Именно этим обуславливается их относительно невысокая эффективность. Средний коэффициент полезного действия мокрых искрогасителей составляет 70 - 85%.
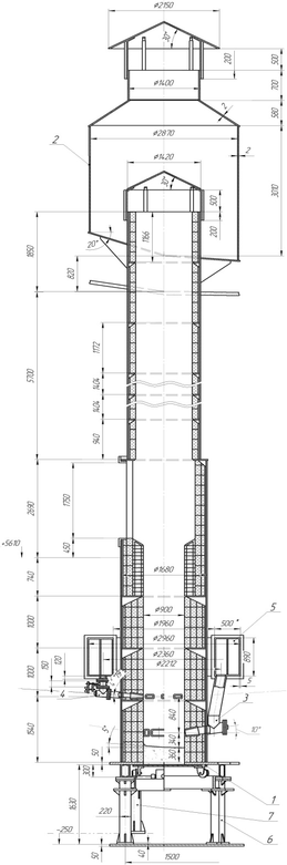
Вагранка представляет собой шахтную печь, диаметр которой колеблется в пределах 700 - 2300 мм, а производительность 4 - 50 т/ч. По конструктивным особенностям вагранки делят на два типа: с копильником и без него. Первые применяют при производстве крупных отливок, когда необходимо накопить большое количество расплава, а вторые - при получении мелких и средних отливок с небольшой толщиной стенок, когда требуется расплав, обладающий более высокой жидко текучестью.
Кожух вагранки изготавливают из листовой стали толщиной 12 мм в виде цилиндра, внутренняя поверхность которого выкладывается огнеупорным кирпичом. Для свободного расширения футеровки между кожухом и огнеупорным кирпичом оставляется зазор размером 20 - 50 мм, который засыпается кварцевым песком. Кожух вагранки устанавливается на массивную стальную подовую плиту, имеющую посредине отверстие равное внутреннему диаметру футеровки, которое закрывается двумя полукруглыми дверцами, подвешенными на петлях и снабженными запорным устройством, что исключает возможность их открытия. Иногда дверцы подпираются снизу стойкой. Дверцы служат для быстрого опорожнения шахты вагранки при ремонтах. Часть вагранки от загрузочного окна до плиты называют шахтой, а выше загрузочного окна – дымовой трубой. Шахту футеруют огнеупорным кирпичом в два ряда толщиной до 250 мм, а дымовую трубу – в один ряд шамотным кирпичом на «плашку». Часть шахты между подиной и нижним рядом фурм называется горном, в нем происходит горение топлива.
Для обеспечения жесткости к кожуху с внутренней стороны по высоте привариваются кольца (сегменты) из уголка на расстоянии 1000 мм друг от друга. Одновременно эти кольца служат для поддержания огнеупорной кладки.
Подовая плита опирается на четыре колонны, установленные на бетонный фундамент. В центре плиты имеется круглое отверстие для удаления остатков плавки.
Дно вагранки, называемое лещадью, или подом, набивается слоем (100 - 300 мм.) формовочной смеси через рабочее окно, которое плотно закрывается дверцей. Именно на лещади скапливается расплавленный металл, в процессе плавки. В нижней части вагранки у лещади предусмотрено отверстие – летка для выпуска чугунного расплава в копильник, а затем через летку и желоб в разливочный ковш. Для выпуска шлака в копильнике предусмотрена шлаковая летка, она находится выше уровня металла в копильнике. Для введения необходимого для горения топлива воздуха в шахте вагранки предусмотрены фурмы и специальные фурменные трубы, по которым воздух поступает их фурменной коробки, соединенной с вентилятором. Чтобы обеспечить равномерность распределения воздуха, он вводится в плавильную зону двумя рядами фурм, располагаемых в шахматном порядке.
Завалка исходных материалов в вагранку производится с колошниковой площадки через загрузочное окно бадьей. Для предохранения футеровки печи от ударов кусками загружаемой шихты верхнюю часть шахты вагранки высотой 1 м выкладывают пусто тельными чугунными кирпичами.
Полезной высотой шахты вагранки называют расстояние между нижним рядом фурм и порогом загрузочного окна.
Через дымовую трубу вагранки, выходящую из здания, продукты горения топлива удаляются из шахты наружу. Труба заканчивается искрогасителем, который улавливает раскаленную пыль и искры, выбрасываемые из трубы, и предохраняет от пожара соседние помещения (рисунок 2.7).
1 – механизм открывания и закрывания днища; 2 – искрогаситель; 3, 4 – фурменное колено; 5 – фурменный пояс; 6 – опора; 7 – опора рамы пневмопривода; 8 – копильник
Рисунок 2.7 - Схема устройства вагранки открытого типа с копильником








