ПЗ ВКР (1233733), страница 2
Текст из файла (страница 2)
toнад – температура надувочного воздуха, оС;
toВ – температура воды, оС;
toМ – температура масла, оС.
д) производится проверка работы системы регулирования теплоносителей.
После обкаточных испытаний проконтролировать:
а) контроль дымности отработавших газов (ОГ):
- коэффициент ослабления светового потока К,%.
б) контроль выбросов вредных веществ (ВВ) с ОГ:
- содержание окислов азота СNох (объемная доля, %; массовая концентрация, г/н'м3);
- содержание окиси углерода СCO (объемная доля, %; массовая концентрация, г/н·м3);
содержание углеводородов ССnHn (объемная доля, %; массовая концентрация, г/н·м3);
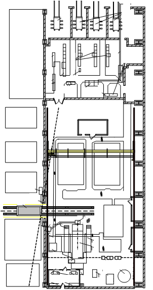
1.2 План станции
Схема расположения разрабатываемой Станции Испытания Дизелей на Уссурийском Локомотиворемонтном заводе (СОД- Станция Обкатки Дизелей) показана ниже на рисунке 1.1.
Рисунок 1.1 - Станция Обкатки Дизелей на УЛРЗ
1.3 Позиции для установки дизеля
Дизель пройдя сборку на сборочном участке кантуется мостовым краном сборочного цеха на подвижную рельсовую тележку, и затем посредством электрического привода тележки закатывается в помещение станции. С тележки дизель-генератор кантуется уже мостовым краном самой станции, на стойло испытания., закрепляется на поддизельную раму дизель-генератора установленную на СОД вместе с генератором ГП–311(эталонным), затем производится монтаж и центровка.
Дизель-генератор (рисунок 1.2) устанавливается на раму стойла станции на 22 плоских резинометаллических амортизаторах 4, расположенных по длине поддизельной рамы 5. Амортизаторы 4 крепятся болтами к нижнему листу поддизельной рамы и также крепятся к раме тепловоза. Опорные амортизаторы одновременно удерживают дизель-генератор от боковых перемещений. От продольных перемещений дизель-генератор фиксируется упорными резинометаллическими амортизаторами 3. Между амортизаторами и платиками на раме имеются распорные планки 1, установка и съем которых производится с помощью болтов 2.
После монтажа дизеля монтируются генератор, и системы питания дизеля включая датчики.
Рисунок 1.2 – Схема установки дизеля на стойло СОД
1 – распорная планка; 2 – болт; 3 – резино-металический амортизатор; 4 – амортизатор.
1.4 КДН Магистраль
Диагностический комплекс параметров работы дизель – генераторной установки «КИПАРИС» в виду своего морального и физического устарения заменим более современным и прогрессивным диагностическим комплексом «Магистраль», далее опишем, что представляет собой данный комплекс.
Комплекс «Магистраль» предназначен для автоматического диагностирования, а в перспективе и прогнозирования технического состояния магистральных тепловозов при проведении их реостатных испытаний. Технические средства КДН организованы таким образом, чтобы максимально облегчить и упростить технологический процесс обследования дизеля, в том числе и сократить длительность этого процесса.
В частности, в диагностическом комплексе применен выносной сборщик информации измерительно-вычислительная подстанция (ИВП) из двух независимых модулей – статического (медленных измерений – ИВП–М) и динамического (быстрых измерений – ИВП–Б), которые располагаются непосредственно на дизеле (рисунок 1.3). Так достигается минимальная длина кабельных связей, передающих аналоговые сигналы от датчиков для снятия параметров дизеля. Это также позволяет значительно снизить уровень помех. Здесь же происходят усреднение и первичная обработка измерительной информации, после чего уже в цифровом виде она передается в управляющий персональный компьютер, установленный в помещении реостатной станции, где работает оператор.
Рисунок 1.3 – Принципиальная схема КДН «Магистраль»
БНХ – блок настройки характеристик; ПЭВМ –персональный компьютер; ИВП-Б – измерительно-вычислительная подстанция (большая); ИВП-М – измерительно-вычислительная подстанция (малая); БП – блок питания; РРИ – розетка реостатных испытаний; ВВК - высоковольтная камера; ОВИ – индукционный отметчик вращения; ТСМ, ТСП - термосопротивления (медные, платиновые); Рст – статическое давление; Рц – давление в цилиндре
Надо отметить, что система представляет собой не просто измерительно-вычислительный модульный комплекс с индикацией результатов измерений на мониторе ЭВМ, а гораздо более функционально сложную, интеллектуально насыщенную систему. Наиболее технологически совершенным является модуль измерения динамических параметров. Он обеспечивает контроль быстротекущих процессов – рабочего давления в цилиндрах дизеля, результаты которого представляются в развернутых индикаторных диаграммах с заданной величиной усреднения, а также в синхронных, наложенных на рабочий процесс, виброграммах впрыска топлива в соответствующий цилиндр, При этом выделяются и анализируются вибро-импульсы начала и конца топливоподачи, а так – же работы клапанов газораспределения, ударов перекладки поршней и «звучания» поршневых колец в случае сухого трения. Кроме того, в перечень контролируемых признаков входит группа статических параметров, характеризующих работу газовоздушного тракта дизеля (давление и их перепады – датчики типа «Сапфир», КРТ, «ТИ-МОС»), температуры рабочих сред (платиновые и медные терморезисторы ТСП, ТСМ), мощностные показатели дизель-генератора (ток, напряжение, частота вращения), параметры розетки реостатных испытаний.
Помимо выносных измерительных подстанций, в составе системы имеется также специализированный модуль – блок настройки характеристик (БНХ) «Гранит», который может работать в составе системы или применяться автономно как самостоятельный портативный прибор (рисунок 1.4). В этом случае его располагают непосредственно на тепловозе, что позволяет оперативно проводить настройку внешней и селективной характеристик генератора, регулятора скорости и нагрузки, контролировать параметры розетки реостатных испытаний. В комплект БНХ «Гранит» входит также датчик давления в цилиндре. Его переустановкой из одного цилиндра в другой можно фиксировать значение максимального давления сгорания, а также автоматически по частоте вспышек определять частоту вращения вала двигателя в любой момент времени.
Рисунок 1.4 – Блок настройки характеристик (БНХ) «Гранит»
Таким образом, специализированный модуль в автономном режиме может автоматически проводить реостатные испытания тепловоза по минимально требуемому перечню параметров. Блок БНХ имеет свой жидкокристаллический (либо люминесцентный) дисплей для оперативного отображения информации, клавиатуру для ввода данных, выносной пульт для переключения номеров индицируемых цилиндров в процессе переустановки датчика.
Кроме того, модуль может быть непосредственно связан с компьютером, куда будет передаваться вся накопленная информация для последующей обработки – построение развернутых индикаторных диаграмм, графиков, таблиц, сравнительных характеристик с эталонами, технических рекомендации. Для работы в составе системы блок БНХ «Гранит» устанавливают в помещении реостатной станции рядом с центральным компьютером. В этом случае он выполняет чисто измерительные функции для контроля электрических параметров тепловозных цепей и передачи полученной информации в базовую ЭВМ.
Вся динамическая информация собирается одновременно по всем цилиндрам с помощью высокотемпературных (до 700 градусов Цельсия) неохлаждаемых датчиков давления, устанавливаемых на индикаторные краны (совместная разработка фирмы «Гарант» и ЗАО «Техтранс»), а также накладных виброакселерометров типа ABC, которые крепятся на топливные трубки высокого давления перед форсунками.
Быстротекущие процессы разворачиваются по углу поворота коленчатого вала с шагом 0,7 градуса, обеспечивая виртуальную привязку ВМТ по зубчатому венцу валоповоротного механизма При этом четко фиксируются характерные фазы протекания рабочего цикла, процессов сжатия, сгорания и расширения, углы регулировки топливной аппаратуры и клапанного механизма газораспределения. В процессе эксплуатации дизеля зачастую наличие уже этих потребительских функций в системе подпадает под понятие «диагностика».
Однако сейчас, когда наблюдается снижение общей квалификации персонала, отсутствует опыт обработки данных на ЭВМ, получение качественного диагноза инженерно – логическим методом весьма проблематично. Поэтому под системой автоматической диагностики нужно подразумевать систему, способную решать весь перечень задач по выявлению неисправностей: от проведения комплексных измерений до формирования карты технического состояния каждого контролируемого объекта. При этом требуется количественная и качественная оценка всех выявленных дефектов с выдачей подробных рекомендаций по их устранению и регулировке.
Именно такая задача и была поставлена при разработке КДН «Магистраль». На базе многолетних исследований, проводимых как на специальных стендах, так и на реостатных станциях Октябрьской дороги и в КТБ «Техтранс», разработали уникальное программное обеспечение, реализующее сложные диагностические модели различных типов двигателей и их систем.
1.5 Монтаж топливной системы
Производим подключение топливной аппаратуры и датчиков для ее диагностики схема топливной аппаратуры представлена на рисунке 1.5.
Каждый цилиндр дизеля имеет свою, независимую от других топливную аппаратуру, состоящую из форсунки, топливного насоса и топливопровода высокого давления.
Топливо из системы тепловоза через фильтр грубой очистки поступает к насосу топливоподкачивающему 10, затем через фильтры тонкой очистки 1 к топливным насосам высокого давления 4. Избыток топлива через перепускной клапан 7 отводится по трубе 8 в топливный бак тепловоза.
Из топливных насосов высокого давления по топливопроводам высокого давления 5 топливо поступает к форсункам 6. Топливо, просочившееся из полости высокого давления форсунок, а также с подшипника топливоподкачивающего насоса, по трубе 9 сливается в топливный бак тепловоза.
Манометры 2 служат для замера давления топлива до и после . фильтра тонкой очистки.
Карман 11 предназначен для замера температуры .топлива с помощью ртутного термометра.
Клапан предохранительный 13 срабатывает при повышении давления в системе до 0,6-0,8 МПа (6-8 кгс/см2).
Воздух и топливо из топливной системы дизеля удаляются посредством вентиля 12.
Для снятия топливных насосов с дизеля топливо из системы сливается через вентиль 12.
Рисунок 1.5 Схема топливной системы
1 – труба слива избыточного топлива с топливных насосов; 2 – труба слива протечек топлива с форсунок; 3 – топливный насос; 4 – топливопровод высокого давления; 5 – форсунка; 6 – труба подвода топлива к фильтрам тонкой очистки; 7 – манометры; 8 фильтры тонкой очистки топлива; 9 – вентиль для выпуска воздуха из топливной системы дизеля; 10 клапан редукционный
Более высокий технический уровень проводимых испытаний получается при создании полностью автономной топливной системы на пункте диагностики. Вариант такой автономной топливной системы представлен на рисунке 1.6.
Основное отличие заключается в том, что на пункте реостатной диагностики продублирована топливная система тепловоза, и питание дизеля на время проведения испытаний производится из стационарного топливного бака. В качестве такого бака рекомендуется использовать бак списанного тепловоза. В автономную систему устанавливаются также базовое оборудование и арматура тепловоза.
После установки дизеля на позицию входной 8 и выходной 7 штуцеры идут на питание дизеля. Затем выполняют подсоединение двух трубопроводов 6 автономной топливной системы пункта диагностики.
Перед пуском дизеля производится прокачка топлива топливоподкачивающим насосом 12 с приводом от электродвигателя 10. Топливо из стационарного бака 16 через входной штуцер 14 поступает в фильтр грубой очистки 11 и далее через фильтр тонкой очистки 13, расходомер "Н" 9 и шланг 6 поступает в топливную систему тепловоза (к фильтру грубой очистки топлива тепловоза). При повышенном гидравлическом сопротивлении на каком-либо участке цепи нагнетания срабатывает предохранительный клапан 1. Контроль за давлением в системе и степенью загрязненности фильтра 13 ведут по манометру 4.
Проверяют герметичность подсоединенных шлангов 6, удаляют воздух из систем и запускают дизель. Слив топлива из системы тепловоза происходит подругой цепи: выходной штуцер 7, шланг 6, фильтр тонкой очистки 5 (необходимая защита расходомера "С" 3 от грязи и отложений, скопившихся в шланге 6 и подсоединительных штуцерах), расходомер "С" 3, подпорный клапан 2, предназначенный для подпора сливной магистрали и предотвращения образования парогазовой фазы на этом участке системы. Далее топливо через выходной штуцер 16 поступает в стационарный бак 16.
Рисунок 1.6 – Схема автономной топливной системы















