ВКР Сухарь К.А. 946 гр по теме Реконструкция резервуара на (1232794), страница 9
Текст из файла (страница 9)
16 ГОСТ 19903-74. Прокат листовой горячекатаный. Сортамент. [Текст] – М.: ИПК ИЗДАТЕЛЬСТВО СТАНДАРТОВ, 1976. – 19 с.
17 СП 155.13130.2014. Склады нефти и нефтепродуктов. Требования пожарной безопасности. [Текст] – утв. приказом МЧС России от 26.12.2013 г., N 837 – 55 с.
18 ГОСТ Р 53324-2009. Ограждения резервуаров. Требования пожарной безопасности. [Текст] – М.: Стандартинформ, 2009. – 11 с.
19 СП 28.13330.2012. Свод правил. Защита строительных конструкций от коррозии. Актуализированная редакция СНиП 2.03.11-85. [Текст] – утв. Приказом Минрегиона России от 29.12.2011 г., N 625. – 99 с.
20 ГОСТ 6465-76. Эмали ПФ-115. Технические условия. [Текст] – М.: ИПК ИЗДАТЕЛЬСТВО СТАНДАРТОВ, 1977. – 14 с.
21 СП 63.13330.2012. Бетонные и железобетонные конструкции. Основные положения. [Текст] – утв. приказом Министерства регионального развития Российской Федерации (Минрегион России) от 29 декабря 2011 г. N 635/8. – 168 с.
22 ГОСТ 12.1.018-93. Система стандартов безопасности труда. Пожаровзрывобезопасность статического электричества. Общие требования. [Текст] – М.: МЕЖГОСУДАРСТВЕГГЫЙ СОВЕТ ПО СТАНДАРТИЗАЦИИ, МЕТРОЛОГИИ И СЕРТИФИКАЦИИ, 1995. – 7 с.
23 СП 36.13330.2012. Свод правил. Магистральные трубопроводы. Актуализированная редакция СНиП 2.05.06-85*. [Текст] – утв. Приказом Госстроя от 25.12.2012 г., N 108/ГС. – 97 с.
24 СП 16.13330.201. – Свод правил. Стальные конструкции. Актуализированная редакция СНиП II-23-81*. [Текст] – утв. Приказом Минрегиона РФ от 27.12.2010 г., N 791 – 177 с.
25 ВУПП-88. Ведомственные нормы технологического проектирования. Ведомственные указания по противопожарному проектированию предприятий, зданий и сооружений нефтеперерабатывающей и нефтехимической промышленности. [Текст] – утв. Приказом Миннефтехимпром СССР от 17 августа 1979 г. N 726.
26 РД 153-39.4-078-01. – Правила технической эксплуатации резервуаров магистральных нефтепроводов и нефтебаз. РД 153-39.4-078-01. [Текст] – утв. Минэнерго РФ 06.03.2001. – 28 с.
27 ГОСТ 23407-78. Ограждения инвентарные строительных площадок и участков производства строительно-монтажных работ. Технические условия. [Текст] – М.: ИПК ИЗДАТЕЛЬСТВО СТАНДАРТОВ, 1979. – 7 с.
28 СП 70.13330.2012. Свод правил. Несущие и ограждающие конструкции. Актуализированная редакция СНиП 3.03.01-87. [Текст] – утв. Приказом Госстроя от 25.12.2012 г., N 109/ГС. – 205 с.
29 ТТК 07.22.09. Устройство бетонной подготовки под монолитное днище в кольцевой фундамент. [Текст] – 14 с.
30 Лапшин, А. А. Конструирование и расчѐт вертикальных цилиндрических резервуаров низкого давления: учебное пособие [Текст] / А. А. Лапшин, А. И. Колесов, М. А. Агеева; Нижегород. гос. архит.-строит. ун-т. – Н. Новгород, ННГАСУ, 2009. – 122 с.
31 ВСН 311-89. Монтаж стальных вертикальных цилиндрических резервуаров для хранения нефти и нефтепродуктов объемом от 100 до 50000 м³. [Текст] – утв. Минмонтажспецстроем СССР 30.10.1989 г. – 34 с.
32 СНиП 21-01-97*. Пожарная безопасность зданий и сооружений. [Текст] – утв. Минстрой России 13.02.1997 г. – 50 с.
33 НПБ 104-03. Системы оповещения и управления эвакуации людей при пожарах в зданиях и сооружениях. [Текст] – утв. Приказом МЧС РФ от 20.06.2003 г., N 323, ред. от 07.02.2008. – 16 с.
СПИСОК СОКРАЩЕНИЙ
НПЗ – нефтеперерабатывающий завод.
ЭЛОУ -– электрообессоливающая установка.
АГФУ – газофракционирующая установка.
ТУ – технические условия.
ЛВЖ – легковоспламеняющиеся жидкости.
ГЖ – горючие жидкости.
ВКР – выпускная квалификационная работа.
ПРИЛОЖЕНИЕ 1
Ситуационный план НПЗ (М 1:10000)
ПРИЛОЖЕНИЕ 2
Общий вид резервуара
1 – стенка; 2 – днище; 3 – крыша; 4 – лестница;
5 – площадка на крыше; 6 – люки, штуцера и патрубки в стенах и крыше
ПРИЛОЖЕНИЕ 3
Генеральный план резервуарного парка (М 1:500)
1 – резервуар №5; 2 – резервуар №6; 3 – резервуар №7;
-
– резервуар №8; 5 – резервуар №9
ПРИЛОЖЕНИЕ 4
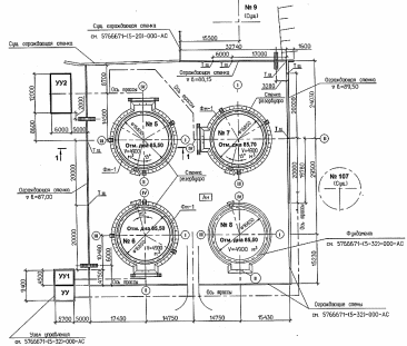
План схема резервуарной группы
3















