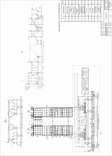
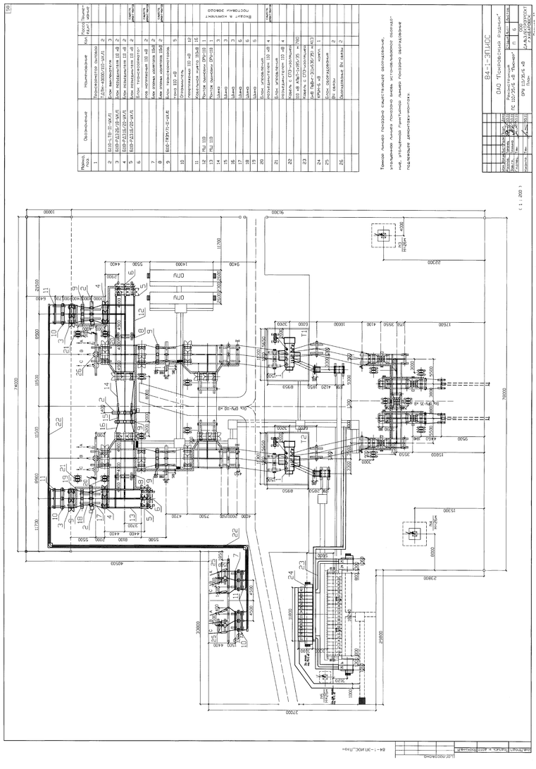
РЕКОНСТРУКЦИЯ ПС 110 35 6 кВ ПИОНЕР МАГДАГАЧИНСКОГО РАЙОНА АМУРСКОЙ ОБЛАСТИ (1232678), страница 7
Текст из файла (страница 7)
ОКОНЧАНИЕ ПРИЛОЖЕНИЯ З
Продолжение таблицы 8.9
| КРУН-6кВ яч.1 СВ-10 | ТОЛ-10-IM-4 |
|
| КРУН-6кВ яч.17 Эвор. ЛПХ (Ф-17) 1СШ | ТОЛ-10-IM-4 |
|
| КРУН-6кВ яч.4 Эвор. ЛПХ (Ф-4) 2СШ | ТОЛ-10-IM-4 |
|
| КРУН-6кВ яч.10 ТСН-2 2СШ | ТОЛ-10-IM-4 |
|
| КРУН-6кВ яч.12 Ввод 2Т 2СШ | ТОЛ-10-IM-4 |
|
| КРУН-10 кВ яч.16 ОАО "РЖД" (Ф-16) 2СШ | ТОЛ-10-IM-4 |
|
| КРУН-6кВ яч.18 Гор. ЛПХ (Ф-18) 2СШ | ТОЛ-10-IM-4 |
|
| КРУН-6кВ яч.20 МП Быт (Ф-20) 2СШ | ТОЛ-10-IM-4 |
|
ПРИЛОЖЕНИЕ И
Таблица 8.10 - потребители трансформаторов напряжения
| Прибор | Тип | Число приборов, шт | Число катушек напряжения в приборе, шт | Мощность одной катушки, ВА |
|
| Вт | ВАр |
| ОРУ-110 кВ: 1СШ – В составе ELK-14 | ||||||||
| Счетчик активной и реактивной энергии | Альфа А 1800 | 4 | - | - | 0,38 | 0,925 | 1,824 | 6,7488 |
| Реле напряжения | РН-54 | 1 | 1 | 1,0 | 1,0 | 0 | 1,0 | 0 |
| Вольтметр | Э-377 | 1 | 1 | 2,0 | 1,0 | 0 | 2,0 | 0 |
| Всего: | 4,824 | 6,7488 | ||||||
| Для ОРУ-35 кВ: 1СШ – ЗНОЛ-СЭЩ-35 | ||||||||
| Счетчик активной и реактивной энергии | Альфа А 1800 | 5 | - | - | 0,38 | 0,925 | 1,824 | 6,7488 |
| Реле напряжения | РН-54 | 1 | 1 | 1,0 | 1,0 | 0 | 1,0 | 0 |
| Вольтметр | Э-377 | 1 | 1 | 2,0 | 1,0 | 0 | 2,0 | 0 |
| Всего: | 4,824 | 6,7488 | ||||||
ПРОДОЛЖЕНИЕ ПРИЛОЖЕНИЯ И
Продолжение таблицы 8.10
| Для КРУН-6кВ: 1СШ- ЗНОЛ-СЭЩ-10 | ||||||||
| Счетчик активной и реактивной энергии | Альфа А 1800 | 8 | - | - | 0,38 | 0,925 | 4,104 | 34,1658 |
| Реле напряжения | РН-54 | 1 | 1 | 1,0 | 1,0 | 0 | 1,0 | 0 |
| Вольтметр | Э-377 | 1 | 1 | 2,0 | 1,0 | 0 | 2,0 | 0 |
| Всего: | 7,104 | 34,1658 | ||||||
| ОРУ-110 кВ: 2СШ – В составе ELK-14 | ||||||||
| Счетчик активной и реактивной энергии | Альфа А 1800 | 4 | - | - | 0,38 | 0,925 | 1,824 | 6,7488 |
| Реле напряжения | РН-54 | 1 | 1 | 1,0 | 1,0 | 0 | 1,0 | 0 |
| Вольтметр | Э-377 | 1 | 1 | 2,0 | 1,0 | 0 | 2,0 | 0 |
| Всего: | 4,824 | 6,7488 | ||||||
| Для ОРУ-35 кВ: 2СШ – ЗНОЛ-СЭЩ-35 | ||||||||
| Счетчик активной и реактивной энерг. | Альфа А 1800 | 5 | - | - | 0,38 | 0,925 | 1,824 | 6,7488 |
| Реле напряжения | РН-54 | 1 | 1 | 1,0 | 1,0 | 0 | 1,0 | 0 |
| Вольтметр | Э-377 | 1 | 1 | 2,0 | 1,0 | 0 | 2,0 | 0 |
| Всего: | 4,824 | 6,7488 | ||||||
ОКОНЧАНИЕ ПРИЛОЖЕНИЯИ
Продолжение таблицы 8.10
| Для КРУН-6кВ: 2СШ- ЗНОЛ-СЭЩ-10 | ||||||||
| Счетчик активной и реактивной энергии | Альфа А 1800 | 8 | - | - | 0,38 | 0,925 | 4,104 | 34,1658 |
| Реле напряжения | РН-54 | 1 | 1 | 1,0 | 1,0 | 0 | 1,0 | 0 |
| Вольтметр | Э-377 | 1 | 1 | 2,0 | 1,0 | 0 | 2,0 | 0 |
| Всего: | 7,104 | 34,1658 | ||||||
,
,









