Паспорт (1232364)
Текст из файла
Паспорт проекта
Реконструкция вокзала в городе Владивосток
Класс капитальности здания – II;
степень огнестойкости – II;
степень долговечности – II;
класс функциональной пожарной опасности – Ф 3.3;
Расчетная температура наружного воздуха – - 23 °С;
Вес снегового покрова – 1,2кПа (120кг/м2);
Климатический район и подрайон строительства – I I Г.
Фасад в осях 7-1
Фасад в осях А-Ж
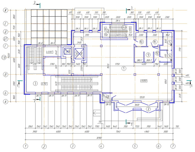
План 1-го этажа
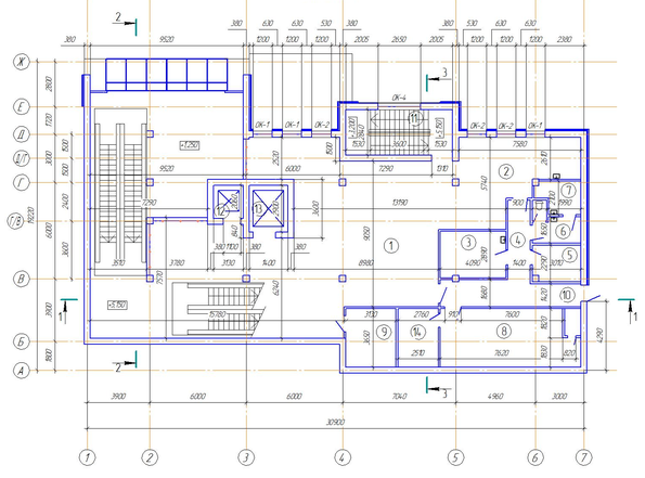
План 2-го этажа
План 3-го этажа
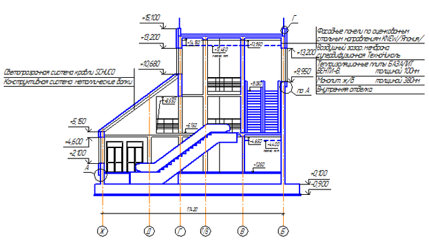
Разрез 1-1
Разрез 2-2
Перспектива
Характеристики
Тип файла документ
Документы такого типа открываются такими программами, как Microsoft Office Word на компьютерах Windows, Apple Pages на компьютерах Mac, Open Office - бесплатная альтернатива на различных платформах, в том числе Linux. Наиболее простым и современным решением будут Google документы, так как открываются онлайн без скачивания прямо в браузере на любой платформе. Существуют российские качественные аналоги, например от Яндекса.
Будьте внимательны на мобильных устройствах, так как там используются упрощённый функционал даже в официальном приложении от Microsoft, поэтому для просмотра скачивайте PDF-версию. А если нужно редактировать файл, то используйте оригинальный файл.
Файлы такого типа обычно разбиты на страницы, а текст может быть форматированным (жирный, курсив, выбор шрифта, таблицы и т.п.), а также в него можно добавлять изображения. Формат идеально подходит для рефератов, докладов и РПЗ курсовых проектов, которые необходимо распечатать. Кстати перед печатью также сохраняйте файл в PDF, так как принтер может начудить со шрифтами.















