Разработка технологии восстановления готовый (1231283)
Текст из файла
ВВЕДЕНИЕ
Большинство деталей тепловоза работает при тяжелых режимах нагружениях и часто выходит из строя по причине износа рабочих поверхностей. В связи с этим все больший интерес проявляется к защитным покрытиям. Покрытия, как правило, наносят на менее качественную основу, что обеспечивает необходимый уровень эксплуатационных свойств.
Разработка, производство и эксплуатация мощных дизелей постоянно сопровождаются поиском путей повышения коэффициента полезного действия (КПД), снижения затрат, использования доступных и дешевых материалов, облегчения, ускорения и повышения гибкости ремонта. Наиболее значимым для надежной работы дизеля узлом является цилиндро-поршневая группа, а важнейшую роль в этом играет правильный выбор материалов сопряжения трущейся пары «втулка-кольцо». Поскольку допустимая величина износа рабочих поверхностей втулки и кольца составляет всего десятые доли миллиметра, то в последние годы активно развивается новый подход к их конструированию – на дешевое и массивное основание наносить дорогое и эффективное покрытие.
Существует большое количество химических, гальванических и физических методов нанесения покрытий, но особое место среди них занимает плазменное напыление. Плазменный метод о нанесения покрытий один из наиболее перспективных. Данный метод позволяет наносить покрытия различного функционального назначения на поверхности деталей из самых разнообразных материалов.
Плазменные защитные покрытия на деталях цилиндропоршневой группы (ЦПГ) и элементах камеры сгорания позволяют в 3–4 раза уменьшить износ, увеличить время их жизни практически до выработки запаса усталостной прочности материала, улучшить технические характеристики двигателя (снизить расход топлива и масла, количество вредных выбросов, повысить мощность) и получить значительную экономию. Плазменная технология хорошо вписывается в современные тенденции развития двигателестроения, связанные с ростом удельных мощностей дизелей за счет форсирования среднего эффективного давления в цилиндрах и направленные на повышение топливной экономичности двигателя. Как следствие форсирование приводит к увеличению механической и тепловой напряженности деталей дизеля. При этом вопросы долговечности и надежности дизеля, определяемые в целом по отдельным его деталям и в первую очередь по работоспособности цилиндровой втулки, обостряются.
В зависимости от назначения напыляемого порошкового материала получают различные виды покрытий: износостойкие, антифрикционные, термостойкие, жаростойкие, коррозионно-стойкие и декоративные. Напыление позволяет также восстановить изношенные детали.
К достоинствам метода плазменного напыления можно отнести высокую производительность, простоту технологии, относительно низкую себестоимость, экологическую чистоту процесса, возможность обработки деталей различной конфигурации и габаритов. Процесс является многофакторным и позволяет в широких пределах управлять качеством покрытий на основе оптимизации режимов напыления.
1 КОНСТРУКЦИЯ ГИЛЬЗЫ ЦИЛИНДРА ДИЗЕЛЯ М756
Цилиндровая втулка локомотивного дизеля практически всегда рассматривается как монолитная деталь и изготавливается из одного материала. Как правило, это серый высокопрочный чугун, легированный редкоземельными элементами. Следует отметить, что внутренняя и наружная поверхности цилиндровой втулки а также её каркас работают в совершенно разных условиях и к ним необходимо предъявлять совершенно разные требования. Если наружная поверхность втулки должна обладать, в первую очередь, высокой кавитационной и эрозионной стойкостью при сравнительно низких температурах, редко превышающих 100 °С, то для внутренней поверхности в этих свойствах нет необходимости. Внутренняя поверхность цилиндровой втулки должна обладать износо, задиро - коррозионной стойкостью при высоких температурах. Сочетать такие свойства в одном материала достаточно сложно. Наиболее оптимальный путь внутренняя и наружная поверхности цилиндровой втулки должны быть изготовлены из различных материалов. Часть цилиндровой втулки, служащая ее каркасом, должна обладать только необходимой механической прочностью и нет необходимости легировать эту область втулки дорогостоящими редкоземельными элементами. Исходя из условий работы цилиндровой втулки, ее можно разбить на три основные зоны, к каждой из которых предъявляются различные требования:
- Первая зона, внутренний поверхностный слой цилиндровой втулки, должна обладать низкой теплопроводностью, высокой износостойкостью, противозадирными свойствами, стойкостью к термическим циклам, низким коэффициентом трения в паре с поршневым кольцом. Материал этой зоны должен иметь достаточную механическую и термическую прочность.
- Вторая, каркас цилиндровой втулки, как основная несущая часть втулки, должна иметь необходимую механическую прочность.
- Третья зона, примыкающая к наружной поверхности втулки, должна обладать высокой кавитационной и эрозионной стойкостью [1].
В настоящее время применяемые материалы для изготовления цилиндровых втулок, не могут оптимально удовлетворить все эти требования. В связи с этим, наиболее целесообразным является формирование каждой зоны детали из материалов с заранее заданными свойствами так, чтобы во взаимосвязи между собой зоны представляли единое целое. Задача облегчена тем, что внутренняя и наружная зоны втулки представляют собой поверхностные слои малой толщины.
Цилиндровые втулки двигателей внутреннего сгорания выполняют ряд важных функций в процессе преобразования энергии топлива в механическую работу. Стенки втулки вместе с крышкой (головкой) цилиндра и поршнем образуют камеру сгорания двигателя, служат направляющими для движения поршня, передают тепло от газов и поршня в систему охлаждения, воспринимают и передают на остов (блок) двигателя давление газов и боковые силы от поршня. Применение вставных втулок (гильз) позволяет увеличить срок службы блока цилиндров путем замены изношенных втулок, а также изготовлением втулок из высококачественного износостойкого чугуна или стали.
Гильза цилиндра состоит из собственно гильзы 16 и рубашки 17 (рисунок 1.1). Собственно гильза изготовлена из специальной стали, для повышения износоустойчивости внутренняя поверхность гильзы азотирована. На водяной поверхности гильзы 16 под углом 30° к ее оси нарезаны 36 спиральных канавок 18. В нижней части гильзы 16 сделана кольцевая выточка 19, с ней соединены половины канавок, а другие половины канавок 18 не доходят до выточки 19. Рубашка гильзы 17 изготовлена из углеродистой стали. Рубашка представляет собой трубу с двумя рядами отверстий по окружности 20 меньшего диаметра и 21 большего диаметра.
Р
исунок 1.1 – Гильза цилиндра
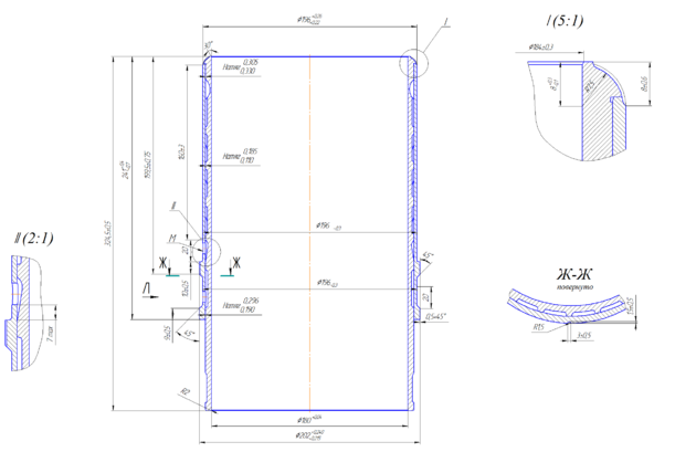
Гильза (рисунок 1.1.1 и рисунок 1.1.2) изготовлена из стали 38ХМЮА. Внутренняя, рабочая, поверхность гильзы азотируется, глубина азотации 0,35—0,6 мм НВ750.
Рисунок 1.1.1 – Гильза цилиндра дизеля М756
Рисунок 1.1.2 – Гильза цилиндра дизеля М756
На наружной поверхности гильзы профрезеровано 30 винтовых канавок под углом 30° к оси гильзы.
Кольцевая проточка соединена с 15 канавками (через одну). Все канавки выходят в проточку, расположенную в верхней части гильзы [13].
1.1 Работоспособность гильзы и способы восстановления дефектов
Отказы гильз цилиндров происходят в результате износа внутренних поверхностей вследствие трения с поверхностью поршневых колец, коррозии в результате попадания воды, сернистых соединений и соединений ванадия из топлива и масла, высокой теплонапряженностью.
Вследствие этого возникают такие дефекты как: трещины,глубокие риски, износ гильзы по рабочей поверхности, овальность рабочей поверхности гильзы, задиры на рабочей поверхности гильзы, потери герметичности водяных стыков.
Для восстановления и упрочнения втулок цилиндров применяются различные способы (например, хромирование, осталивание, электродуговое и газопламенное напыление, наплавка), однако наиболее перспективным методом является плазменное напыление. Этот процесс характеризуется возможностью создавать на поверхности детали слои с требуемыми физико-механическими и триботехническими свойствами[9].
В таблице 1.3 представлены дефекты гильзы цилиндра.
Дефект - задир зеркала гильзы. Причины возникновения неисправности – отсутствие или недостаток смазки на стенках поршня и гильзы; выгорание смазки из-за низкого ее качества или высокой температуры стенки, прорыва газов через кольца, попадания топлива на зеркало гильзы; нарушение температурного режима работы дизеля (при температуре воды более 95 оС), которое приводит к быстрому нагреву поршня и как следствие – к уменьшению зазора между гильзой, повышению удельного давления и схватыванию металла; деформация стенок втулок и поршня, что приводит к увеличению удельных нагрузок и к схватыванию металла. Задир выявляется визуально, при ее наличии гильза бракуется[11].
Дефект - трещина. Трещины можно обнаружить осмотром, более точно при помощи цветного метода или магнитопорошковой дефектоскопии.
При цветном методе предполагаемые места образования трещин тщательно очищают, протирают бензином и на них наносят красящую смесь, которую приготовляют из 95 % (по объему) бензола и 5 % трансформаторного масла. В этой жидкости растворяют анилиновый темно-красный краситель «Судан-4» из расчета 10 г на 1 л жидкости. Приготовленная таким образом смесь обладает большой текучестью.
Через 2—3 мин место, на которое нанесена жидкость, протирают салфеткой, слегка смоченной в бензине, и покрывают его тонким слоем быстросохнущей краски, которая состоит из коллодия на спиртоэфирной смеси, ацетона, бензола и 50 г густотертых цинковых белил. При наличии трещин красящая жидкость выступит на белой краске, точно обозначив контур трещины.
Магнитопорошковый метод определения трещин. Технология проверки состоит в следующем. Место предполагаемого повреждения тщательно очищают, протирают бензином, включают понижающий трансформатор в сеть.
Низковольтную цепь трансформатора замыкают проводом, пропущенным через два противоположных адаптерных отверстия. Проверяемую поверхность смачивают смесью керосина с магнитным порошком. При наличии трещины порошок скапливается по краям трещины, обозначая ее конфигурацию. Цветным и магнитопорошковым методами можно выявить трещины, находящиеся с наружной стороны, и не снимая рубашку с гильзы. При полной проверке (снаружи и внутри) рубашку с гильзы спрессовывают. При наличии трещин гильзу бракуют.
Максимальный износ гильз наблюдается в зоне её контакта с верхними компрессионными кольцами при положении поршней в верхней мертвой точке и особенно в плоскости, перпендикулярной оси коленчатого вала. Вызывается такой износ, во-первых, повышенным давлением от верхнего кольца на гильзу и частичным выдавливанием смазки. Давление возрастает из-за того, что газы, попавшие при сгорании топлива за кольцо, сильно распирают его. Во-вторых, от высокой температуры и попадания части несгоревшего топлива масло разжижается и стекает со стенок цилиндра, что приводит к полусухому трению между кольцами и гильзой. В-третьих, эта часть гильзы в большей степени подвержена коррозирующему действию продуктов сгорания.
Дефект-овальность рабочей поверхности. Овальность гильзы вызывается давлением поршня на ее стенку от нормальной силы, которая является одной из составляющих силы давления газов. Несколько повышенный износ наблюдается также в зоне впускных и выпускных окон, особенно у перемычек из-за заметного увеличения удельного давления от колец в этом месте. Вследствие этого у нижних кромок окон образуются уступы с острыми краями.
Характеристики
Тип файла документ
Документы такого типа открываются такими программами, как Microsoft Office Word на компьютерах Windows, Apple Pages на компьютерах Mac, Open Office - бесплатная альтернатива на различных платформах, в том числе Linux. Наиболее простым и современным решением будут Google документы, так как открываются онлайн без скачивания прямо в браузере на любой платформе. Существуют российские качественные аналоги, например от Яндекса.
Будьте внимательны на мобильных устройствах, так как там используются упрощённый функционал даже в официальном приложении от Microsoft, поэтому для просмотра скачивайте PDF-версию. А если нужно редактировать файл, то используйте оригинальный файл.
Файлы такого типа обычно разбиты на страницы, а текст может быть форматированным (жирный, курсив, выбор шрифта, таблицы и т.п.), а также в него можно добавлять изображения. Формат идеально подходит для рефератов, докладов и РПЗ курсовых проектов, которые необходимо распечатать. Кстати перед печатью также сохраняйте файл в PDF, так как принтер может начудить со шрифтами.









