ведомость черт. Паспорт done (1218459)
Текст из файла
Ведомость рабочих чертежей основного комплекта
| Обозначение | Наименование | Примечание |
| ГП-1 | Генеральный план | А1 |
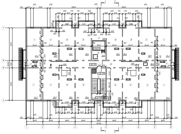
| АР-1 | План повала и технического этажа | А1 |
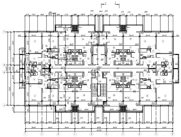
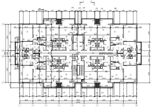
| АР-2 | План 1 и 2 этажей | А1 |
| АР-3 | План 3-5, 6-8 этажи | А1 |
| АР-4 | План 9 этажа. Узлы сопряжения. | А1 |
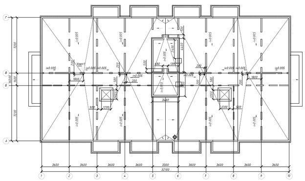
| АР-5 | План кровли | А1 |
| АР-6 | Разрезы 1-1, 2-2 | А1 |
| АР-7 | Цветовое решение фасада в осях 1-10, А-Г | А1 |
| АР-8 | Цветовое решение фасада в осях 10-1, Г-А | А1 |
| КМ-1 | План лестницы | А1 |
| КЖ-2 | План перекрытия, опалубочный чертеж, схемы армирования, спецификация | А1 |
| СГП | Строительный генеральный план | А1 |
ПАСПОРТ ПРОЕКТА
9-ти этажный жилой дом на пересечении ул. Бумажная и ул. Физкультурная в
г. Южно-Сахалинске
Класс капитальности здания – II,
Степень огнестойкости – II,
Степень долговечности – II,
Класс функциональной пожарной опасности – Ф1.3
Расчетная температура наружного воздуха – минус 24 °С.
Вес снегового покрова – 600 кг/м2.
Климатический район и подрайон строительства – II Г.
Фасад в осях 1-10
Фасад в осях А-Г
Разрез 1-1
Разрез 2-2
План подвала
План технического этажа
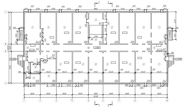
План 1-го этажа
План 2-го этажа
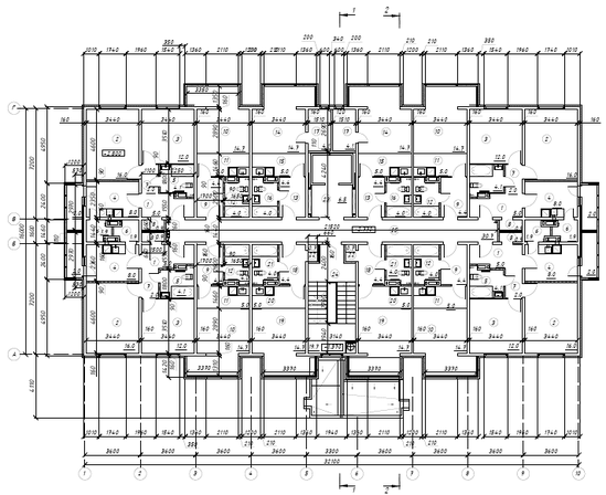
План 3 – 5 этажи
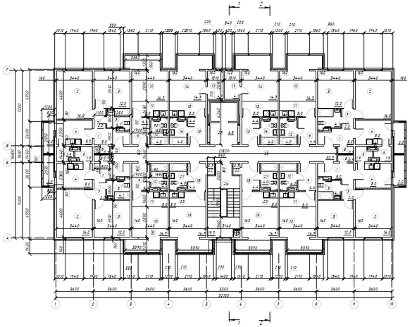
План 6 - 8 этажи
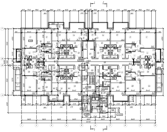
План 9-го этажа
План кровли
Характеристики
Тип файла документ
Документы такого типа открываются такими программами, как Microsoft Office Word на компьютерах Windows, Apple Pages на компьютерах Mac, Open Office - бесплатная альтернатива на различных платформах, в том числе Linux. Наиболее простым и современным решением будут Google документы, так как открываются онлайн без скачивания прямо в браузере на любой платформе. Существуют российские качественные аналоги, например от Яндекса.
Будьте внимательны на мобильных устройствах, так как там используются упрощённый функционал даже в официальном приложении от Microsoft, поэтому для просмотра скачивайте PDF-версию. А если нужно редактировать файл, то используйте оригинальный файл.
Файлы такого типа обычно разбиты на страницы, а текст может быть форматированным (жирный, курсив, выбор шрифта, таблицы и т.п.), а также в него можно добавлять изображения. Формат идеально подходит для рефератов, докладов и РПЗ курсовых проектов, которые необходимо распечатать. Кстати перед печатью также сохраняйте файл в PDF, так как принтер может начудить со шрифтами.















