5. архитектурно-строительный раздел - копия (1218314), страница 5
Текст из файла (страница 5)
В соответствии с [12, таблица 3, примечание 1], значение R0тр для величин, отличающихся от табличных, следует определять по формуле:
R0тр = a * ГСОП + b (1.5)
a = 0,00045, b = 1,9 [14, таблица 3, поз. 1].
R0тр = 0,00045*7102,2 + 1,9 = 5,1 м2·°С/Вт
R0тр = 5,1 * 1 = 5,1 м2·°С/Вт
Перекрытие состоит из следующих слоев:
-
Армированная цементно-песчаная стяжка – δ = 30 мм, λ = 0,93 Вт/(м2
° С) [12, таблица Т.1, поз. 201]; -
Слой пергамина – δ = 1,3 мм, λ = 0,17 Вт/(м2
° С) [12, таблица Т.1, поз. 222]; -
Маты из базальтового волокна – δ = 300 мм, λ = 0,045 Вт/(м2
° С); -
Железобетонное перекрытие – δ = 220 мм, λ = 2,04 Вт/(м2
° С) [12, таблица Т.1, поз. 199].
R1 =
м2·°С/Вт
R2 =
м2·°С/Вт
R3 =
м2·°С/Вт
R4 =
м2·°С/Вт
Rк = 0,032 + 0,008 + 6,67 + 0,11 = 6,82 м2·°С/Вт
R0 =
м2·°С/Вт.
Требование удовлетворяется.
1.6.4. Лестницы
Внутренние лестницы зданий любой конструктивной системы, принятой в проекте, проектируются полносборными. В каркасных зданиях лестница в пределах этажа расчленяется на два сборных элемента – марши с полуплощадками (рисунок 1.19).
В проектируемом здании лестничные клетки размещены в модульных ячейках, ограждённых по четырём углам колоннами и стенами жёсткости. При примыкании лестницы к фасаду она ограждается стенами жёсткости с четырёх сторон (за исключением фасадной).
Лестничные марши со стороны фасада опираются на фасадные ригели, внутри здания – на полки стен жёсткости, рядовые или лестничные ригели, металлические консоли, приваренные к закладным деталям стен лестничных клеток.
Основные характеристики элементов лестниц приведены в таблице 1.7.
Таблица 1.11 – Элементы лестниц
| Марка | Размеры, мм | Масса, кг | |||
| Длина | Ширина | Толщина | |||
| ПЛ-28-22 | 2760 | 2130 | 300 | 1300 | |
| ЛМ-33-60-13 | 5760 | 1350 | 1650 | 4000 | |
Рисунок 1.6 – Элементы лестниц
1.6.5. Перегородки
Перегородки должны удовлетворять основным требованиям, предъявляемым к ним: устойчивости, прочности, гвоздимости, звукоизоляции, санитарной гигиены и т.д.
Толщина панельных перегородок принимается в зависимости от требований звукоизоляции (определяется индекс звукоизоляции IВ). С учетом этого перегородки принимаются одинарные и двойные.
Приняты панельные перегородки из шлакопемзобетона толщиной 200 мм.
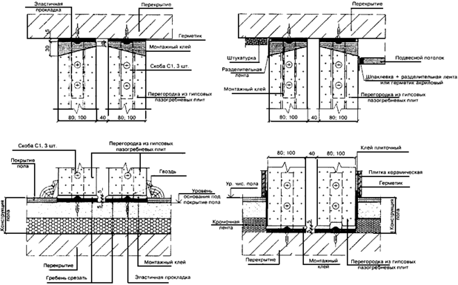
Конструктивные решения сопряжения перегородки с ограждающими конструкциями показаны на рисунке 1.7.
Рисунок 1.7 – Конструктивные решения эластичного сопряжения двухслойной перегородки с ограждающими конструкциями
1.6.5.1. Расчет звукоизоляции перегородок
Расчет звукоизоляции ограждения от воздушного шума сводится к сравнению его звукоизолирующей способности (по отношению к звукоизоляции условного ограждения эталона). При этом требуется, чтобы для применяемой конструкции удовлетворялось условие:
Jф в Jвн (1.8)
Jвн – нормируемый индекс звукоизоляции от воздушного шума,дБ.
Jвн = 47 дБ – для перегородок между групповыми комнатами, спальнями и между другими детскими комнатами ДОУ [13, таблица 2].
Jвф - фактический индекс звукоизоляции от воздушного шума, дБ.
Jвф = 23 lg mэ – 10 дБ при m
200 кг/м2; (1.9)
Jвф = 13 lg mэ – 13 дБ при m
200кг/м2, (1.10)
mэ = Кm; (1.11)
где mэ – эквивалентная поверхностная плотность, кг/м2;
m – поверхностная плотность, кг/м2, определяемая по формуле:
m = δγ, (1.12)
где δ – толщина конструкции, м; γ – объёмный вес, кг/м3.
m = 0,2*1700 = 340 , кг/м2
К = 1,2 [14, таблица 10].
mэ = 1,2*340 = 408
Jвф = 23 lg 408 – 10 дБ = 50,05 дБ
Jф в Jвн (50,05 дБ > 47 дБ) – условие звукоизоляции перегородок выполняется.
1.6.6. Полы
Полы общественных зданий проектируются в зависимости от назначения здания и отдельных его помещений. Для принятых типов полов составляется экспликация полов (таблица 1.12).
Таблица 1.12 – Экспликация полов
| Наименование или номер помещения по проекту | Схема пола | Элементы пола и их толщина, мм | Площадь пола, м2 | |
| 1, 30, 31, 32, 36, 40, 41, 42, 45, 53. |
| 1.Плита мраморная – 10мм; 2.Прослойка и заполнения швов из ц.п. р-ра – 15мм; 3.Стяжка из цем.песчанного раствора – 30мм; 4.Железобетонная плита – 220мм. | 478,35 | |
Продолжение таблицы 1.12
| 5, 6, 7, 8, 9, 10, 11, 12, 15, 16, 19, 20, 21, 22, 46, 47. |
| 1.Керамическая плитка ГОСТ 6878-88 на ц.п. р-ре – 10мм; 2.Прослойка и заполнения швов из ц.п. р-ра – 25мм; 3.Стяжка из цем.песчанного раствора – 30мм; 4.Гидроизоляция – мастика битумная МБК-Г-55-ГОСТ 2889-80 – 10мм; 5.Стяжка из цем.песчанного раствора – 30мм; 6.Железобетонная плита – 220мм. | 242,52 | |
| 13, 14, 17, 18, 23, 49, 50, 54. |
| 1.Керамическая плитка ГОСТ 6878-88 на ц.п. р-ре – 10мм; 2.Прослойка и заполнения швов из ц.п. р-ра – 25мм; 3.Стяжка из цем.песчанного раствора – 30мм; 4.Стяжка из цем.песчанного раствора – 30мм; 5.Железобетонная плита – 220мм. | 22,29 | |
| 2, 3, 4, 24, 25, 26, 27, 28, 29, 34, 44, 51, 52. |
| 1.Паркет – 15мм; 2.Утеплитель базалит 200кг/м3 – 30мм; 3.Стяжка из цем.песчанного раствора – 30мм; 4.Железобетонная плита – 220мм. | 301,26 |
Окончание таблицы 1.12
| 33, 35, 37, 38, 39, 43, 48, 55, 56, 57, 58, 59, 60. |
| 1.Доска половая – 20мм; 2.Утеплитель базалит 200кг/м3 – 30мм; 3.Стяжка из цем.песчанного раствора – 30мм; 4.Железобетонная плита – 220мм. | 1923,27 |
1.6.7. Окна
Окна выполнены из ПВХ профилей с тройным остеклением (двухкамерный стеклопакет).
1.6.7.1. Определение конструкции окон по условиям теплопередачи
Конструкция окон определяется по условиям теплопередачи:
(1.13)
где
– требуемое сопротивление теплопередаче оконного заполнения, (м2
°С)/Вт, определяемое в зависимости от назначения помещения и разности температур воздуха внутри помещения и снаружи;
– приведенное сопротивление теплопередаче оконного заполнения различной конструкции.
ГСОП = (22+4,6)*267 = 7102,2 °С·сут/год (п. 1.6.6.1).
В соответствии с [12, таблица 3, примечание 1], значение R0тр для величин, отличающихся от табличных, следует определять по формуле:
R0тр = a * ГСОП + b (1.5)
a, b – коэффициенты, значения которых следует принимать по данным таблицы для соответствующих групп зданий, за исключением графы 6 (окна и балконные двери). Для интервала ГСОП 6000-8000 °С·сут/год:
a = 0,00005, b = 0,3 [12, таблица 3, примечание 1].
R0тр = 0,00005*7102,2 + 0,3 = 0,66 м2·°С/Вт
R0тр = 0,66 * 1 = 0,66 м2·°С/Вт
Сопротивление теплопередаче центральной части стеклопакета принимается по результатам испытаний в аккредитованной лаборатории. В случае отсутствия данных испытаний допускается принимать значения сопротивления теплопередаче центральной части стеклопакета по таблице К.1 [12, п. К.1].
R0 = 0,82 м2·°С/Вт – для окон с двухкамерным стеклопакетом с двумя стеклами с низкоэмиссионным мягким покрытием с заполнением воздухом [12, таблица К.1].
Условие (1.13) выполняется.
Спецификация элементов заполнения проемов приведена в таблице 1.13.
Таблица 1.13 – Спецификация элементов заполнения проемов
| Поз. | Обозначение | Наименование h x b | Количество на этаж | Всего | Примечание | |
| 1 | 2 | |||||
| Окна | ||||||
| ОК - 1 | ПВХ | 900 х 1500 | 2 | - | 2 | |
| ОК - 2 | ПВХ | 1500 х 1200 | 4 | 2 | 6 | |
| ОК - 3 | ПВХ | 1350 х 1300 | 2 | 4 | 6 | |
| ОК - 4 | ПВХ | 1950 х 800 | 2 | - | 2 | |
| ОК - 5 | ПВХ | 1950 х 1500 | 17 | 16 | 33 | |
| ОК - 6 | ПВХ | 1950 х 1800 | 4 | 6 | 10 | |
| ОК - 7 | ПВХ | 1950 х 2400 | 4 | 6 | 10 | |
| ОК - 8 | ПВХ | 1950 х 3000 | 10 | 12 | 22 | |
| Двери | ||||||
| 1 | ГОСТ 6629-88 | ДГ21-9 | 40 | 20 | 60 | |
| 2 | ГОСТ 24698-81 | ДН21-13,5 | 13 | 6 | Остекление выполнить из безопасного стекла | |
| 3 | ГОСТ 6629-88 | ДГ21-13,5 | 34 | 26 | ||
| 4 | ГОСТ 6629-88 | ДС21-7 | 15 | 15 | ||
| 5 | ДГ21-6 | 8 | 16 | |||
| 6 | ГОСТ 24698-81 | ДС19-9 | 9 | 2 | противопожарная | |
| 7 | ГОСТ 24698-81 | ДС21-13,5 | 3 | 6 | противопожарная | |













