Черуканов А.С. 652 гр. ВКР (1217170), страница 10
Текст из файла (страница 10)
При выполнении работы под напряжением провода и оборудование в зоне (месте) работы находятся под рабочим или наведенным напряжением. Безопасность работающих должна обеспечиваться применением средств защиты (изолирующих вышек, изолирующих рабочих площадок дрезин и автомотрис, изолирующих штанг и др.) и специальными мерами (завешиванием стационарных и переносных шунтирующих штанг, шунтирующих перемычек и др.).
При выполнении работы вблизи частей, находящихся под напряжением, работающему, расположенному в зоне (месте) работы на постоянно заземленной конструкции, по условиям работы необходимо приближаться самому или через неизолированный инструмент к опасным элементам (в том числе к проводам осветительной сети) на расстояние менее 2 метров. Приближение к опасным элементам на расстояние менее 0,8 метров запрещено.
При выполнении работы вдали от частей, находящихся под напряжением, работающему в зоне (месте) работы отсутствует необходимость и запрещено, работая на земле или постоянно заземленной конструкции, приближаться к опасным элементам на расстояние менее 2 метров.
Существует правило, выполнение которого способно обезопасить работника от поражения электрическим током: «Все элементы (части) контактной сети, воздушной линии, оборудования на месте работы должны находиться под одним потенциалом». Для этого они электрически соединяются друг с другом заземлениями, шунтами, разъединителями, перемычками. Это правило распространяется на все категории работ, даже на работы со снятием напряжения, так как контактная сеть, ДПР, усиливающие и питающие провода наводят в отключенной линии опасное напряжение.
Произведем расчет напряжения, наводимого в смежной линии от контактной сети.
Наведённое напряжение представляет собой сумму напряжений магнитного и электрического влияния [27].
Формула наводимого напряжения магнитного влияния выглядит следующим образом, В:
, (6.1)
где
– угловая частота влияющего тока, рад/с;
– взаимная индукция между контактной подвеской и проводом связи, Гн/км;
– наибольший ток короткого замыкания, А;
– длина сближения, км;
– коэффициент экранирующего воздействия рельсов, при удельной проводимости земли 0,05..0,1 См/м равен 0,55..0,6.
Подставив значения, получим:
В.
Взаимная индуктивность между влияющей и подверженной влиянию линиями, Гн/км:
, (6.2)
где
– ширина сближения, м;
– удельная проводимость земли, См/м;
– частота влияющего тока, Гц.
Подставим исходные значения параметров в формулу 6.2 и произведём расчёт:
Гн/км.
При изоляции провода от земли на нём находится дополнительное напряжение за счёт электрического влияния, расчёт которого производится следующим образом, В:
, (6.3)
где
– коэффициент, учитывающий количество влияющих проводов, располагающихся на опоре контактной сети, для однопутного участка принимается равным 0,4;
– высота подвеса провода, эквивалентного контактной подвеске, м;
– высота подвеса провода смежной линии над землёй, м.
В.
Таким образом, результирующее наведённое напряжение определяется по формуле, В:
. (6.4)
В.
В результате расчёта было установлено, что в смежной линии будет находится опасное для жизни человека наведённое напряжение
кВ. Следовательно, для обеспечения безопасности при работе обслуживающего персонала все элементы контактной сети, воздушной линии и оборудования на месте работы должны быть заземлены.
Контактная сеть электрифицированных железных дорог является местом повышенной опасности, так как работы проводятся под высоким напряжением на большой высоте, в условиях непрерывного влияния перечисленных выше неблагоприятных факторов, а также в условиях интенсивного движения подвижных составов.
7 ЭЛЕКТРОБЕЗОПАСНОСТЬ ПРИ РАБОТЕ НА КОНТАКТНОЙ СЕТИ ПОД ДЕЙСТВИЕМ МАГНИТНОГО ПОЛЯ СОСЕДНЕГО
ПРОВОДА
7.1 Оценка воздействия электромагнитного поля на человека при
работе на двухпутном участке со снятием напряжения и заземлением контактной подвески одного пути
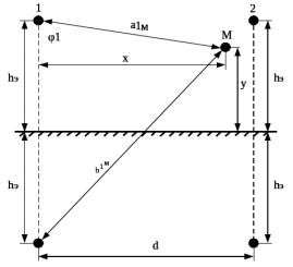
Оценка воздействия электромагнитного поля соседнего контактного провода на электромонтёра, выполняющего работу с рабочей площадки автомотрисы, осуществляется путём произведения соответствующих расчётов. Работа такого вида выполняется с снятием напряжения и заземлением контактной подвески одного пути. На рисунке 7.1 приведена расчётная схема.
Рисунок 7.1 – Расчётная схема для расчёта
электрического поля контактной сети.
Цепная подвеска на участке Бурлит – Спасск Дальний представляет собой несущий трос марки М-95 и контактный провод МФ-100. В рамках данного расчёта примем, что их радиусы одинаковы и равны
м. Расстояние между контактным проводом и несущим тросом принимаем равным
м. На перегонах высота, на которую подвешивается контактный провод, имеет значение
м. Напряжение контактной сети
кВ. Расстояние между путями на перегонах равно
м.
Произведём замену цепной подвески эквивалентным проводов по формуле [30], м:
, (7.1)
где
– количество проводов, принимается
;
– радиус одного провода;
– радиус окружности, по которой располагаются провода расщеплённой фазы.
Радиус окружности расположения проводов расщеплённой фазы находится по формуле, м:
, (7.2)
где
– среднее расстояние между контактным проводом и несущим тросом, м.
Подставив значения в формулы (7.1) - (7.2), получим:
м;
м.
Высоту подвеса эквивалентного провода рассчитывают следующим образом:
, (7.3)
где
– габариты контактного провода на перегоне, м.
Подставив значения в формулу (7.2) получим следующее выражение:
м.
В точке М (рисунок 7.1), который наводит электрическое поле рассчитываемого эквивалентного провода, определяется следующим образом:
, (7.4)
где
– напряжение контактной сети.
, (7.5)
. (7.6)
Подставим выражения (7.5) - (7.6) на соответствующие им места в формуле (7.4). Таким образом после некоторых преобразований выражение (7.4) примет следующий вид:
, (7.7)
Вертикальную составляющую напряжённости электрического поля в произвольно выбранной точке М (рисунок 7.1) с координатами (x; y) рассчитаем путём дифференциации уравнения (7.7). Таким образом:
. (7.8)
Электромонтёр, работающий на отключённой и заземлённой контактной подвеске второго пути с рабочей площадки автомотрисы, наиболее приближен к находящейся под напряжением контактной подвеске соседнего пути головой, следовательно,
(вертикальная координата поверхности контактного провода).
Определим значение первой части выражения:
.
Отсюда следует, что для
уравнение (7.8) будет выглядеть следующим образом:
. (7.9)
Формула (7.9) имеет вид уравнения с одной неизвестной. Следовательно, в данных условиях при неизменности других параметров напряжённость электрического поля
, под влиянием которого находится электромонтёр, можно определить, изменяя лишь горизонтальную координату
, отвечающую за расстояние контактной подвески соседнего пути, находящейся под напряжением. Подставим в формулу (7.9) несколько значений
и произведём расчёты, результаты которых сведём в таблицу 7.1.
Таблица 7.1 – Напряжённость электрического поля
в зависимости от расстояния
до контактной подвески, находящейся под напряжением.
| Расстояние | 0 | 0,5 | 1 | 1,5 | 2 | 3 | 4 | 5 |
| Напряжённость электрического поля | 7.24 | 5.37 | 3.13 | 1.96 | 1.38 | 0.86 | 0.65 | 0.54 |
Максимально допустимое значение, при котором обслуживающий персонал контактной сети может выполнять работу, составляет 5 кВ/м. Во время работы со снятием напряжения и заземлением контактной подвески одного пути на электромонтёра, находящегося на рабочей площадке автомотрисы, воздействует напряжённость электрического поля контактной подвески соседнего пути, принимающее значение
кВ/м (расстояние между соседними путями на перегоне равно
м). Такое влияние поля ниже допустимого предела. Однако, при работе на изолирующей вышке (
м) значение данного фактора возрастает и доходит до
кВ/м, что превышает максимально допустимый уровень. Отсюда следует, что при работе электромонтёров контактной сети под напряжением с изолирующей вышки необходимо ограничивать в соответствии с санитарными номами.
7.2 Последствия продолжительного воздействия электромагнитного поля промышленной частоты и способы защиты от него
Электромагнитные поля, попадающие в диапазон частот от 0 до 3000 Гц, условно именуют электромагнитными полями промышленной частоты. На объектах железнодорожного транспорта источниками такого поля являются системы электроснабжения электрифицированных железных дорог, электроподвижной состав, силовые трансформаторы тяговых подстанций, электросети производственных зданий и многое другое [30].
Воздействие электромагнитного поля на организм человека обусловлено тем, какую дозу облучения получил человек за промежуток времени. Основой этого воздействия служит преобразование энергии поля в тепловую энергию внутри организма. Наиболее опасно такое воздействие в тканях с недостаточным кровообращением, к примеру, в глазах, тканях мозга, почках и др.
















