Пояснительная записка (1215654), страница 6
Текст из файла (страница 6)
. 59\* MERGEFORMAT (.)
Таким образом, вакуумный выключатель ВВУ-СЭЩ-П2-35-25/1000 выбранный для КСО-35 кВ трансформаторной подстанции проходит по вышеописанным требованиям.
-
Замена выключателей КРУ 10 кВ
Ретрофит высоковольтных выключателей ЗРУ 10 кВ типа КРУ2-10 выполняется на серию ВВ/TEL. На основе типового проекта модернизации выкатных элементов в шкафах КРУ2-10 [36] производится замена установленных МВ (ВМПЭ-10) на BB/TEL-10-12,5/630 с учетом типового комплекта адаптации металлоконструкции [37].
Рисунок 5.5 – Старый ВВ на
выкатном элементе
Рисунок 5.6 – Новый ВВ на
выкатном элементе
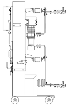
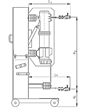
Конструкция полиса выключателя типа BB/TEL-10-12,5/630 [17] в положении отключено представлен на рисунке 5.5.
Рисунок 5.7 – Конструкция полюса выключателя
в положении отключено
Выключатель состоит из трех полюсов, установленных на металлическом основании, в котором размещены пофазные электромагнитные приводы с магнитной защелкой, удерживающей выключатель неограниченно долго во включенном положении после прерывания тока в катушке электромагнита привода [17].
Остальные узлы полюсов размещаются в изоляционном корпусе из прозрачного механически прочного и дугостойкого полимерного материала (лексана), который предохраняет их от возможных в эксплуатации механических повреждений и воздействий электрической дуги тока короткого замыкания. Все три полюса имеют одинаковую конструкцию [17].
Командой на включение от блока управления подается постоянное напряжение на катушку электромагнита 11 [17].
Под действием электромагнитных сил якорь 12 начинает двигаться вверх и через пружину поджатия 10 заставляет двигаться тяговый изолятор 5 и подвижный контакт 3, сжимая при этом пружину отключения 9 [17].
После замыкания контактов 1 и 3 якорь продолжает двигаться еще 2 мм до упора, сжимая пружину 10 и создавая необходимое поджатие между контактами ВДК 2 [17].
Общий ход якоря составляет 8 мм, а ход подвижного контакта 6 мм [17].
После снятия напряжения якорь остается во включенном положении благодаря остаточной индукции в кольцевом магните 13 [17].
Командой на отключение от блока управления на катушку 11 подается напряжение противоположной полярности, чем при включении. Магнит 13 при этом частично размагничивается, якорь 12 снимается с магнитной защелки и под действием пружин 9 и 10 перемещается совместно с подвижными частями выключателя в отключенное положение. В этом положении они удерживаются силой отключающей пружины 9 [17].
Ручное отключение осуществляется воздействием на кнопку ручного отключения, которая через тягу 15, шарнирно связанной с валом 8, и через кулачок 7 с якорем 12, срывает якорь с магнитной защелки и отключает выключатель [17].
Основные технические характеристики выключателя BB/TEL-10-12,5/630 сведены в таблицу 5.3.
Выполним проверку вакуумного выключателя BB/TEL-10-12,5/630 в соответствии с условиями (5.1–5.9), результаты сведем в таблицу 5.4.
Таблица 5.3 – Основные технические параметры вакуумных выключателей BB/TEL-10-12,5/630 У2
| Наименование параметра | BB/TEL-10-12,5/630 У2 |
| Номинальное напряжение, кВ | 10 |
| Номинальный ток, А | 630 |
| Номинальный ток отключения, кА | 12,5 |
| Ток электродинамической стойкости, (амплитуда), кА | 32 |
| Испытательное кратковременное напряжение (одноминутное) промышленной частоты, кВ | 42 |
| Ресурс по коммутационной стойкости: а) при номинальном токе, циклов "ВО" | 50000 |
| б) при номинальном токе отключения, операций «0» | 100 |
| в) при номинальном токе отключения, циклов «ВО» | 100 |
| Собственное время отключения, мс, не более | 15 |
| Полное время отключения, мс, не более | 25 |
Таблица 5.4 – Результаты проверки выключателей КРУ2-10 кВ
| н/п | Наименование проверки | Условие | Результат |
| | по напряжению |
|
|
| | по току |
|
|
| | на электродинамическую стойкость |
|
|
|
|
| ||
| | по отключающей способности |
|
|
|
|
|
Следовательно, выбранный выключатель удовлетворяет по всем соответствующим условиям.
-
ЭКОНОМИЧЕСКОЕ ОБОСНОВАНИЕ ЭФФЕКТИВНОСТИ РАЗРАБОТАННЫМ МЕРОПРИЯТИЙ
Equation Section (Next)
-
Экономическая оценка эффективности замены выключателей
Экономическое обоснование эффективности разработанным мероприятий выполнены в соответствии теории представленной в учебном пособии [38].
При экономическом обосновании замены выключателей критерием оценки является срок окупаемости затрат, вызванных установкой новых устройств. Он определяется по формуле
, 61\* MERGEFORMAT (.)
где
капитальные вложения, необходимые для установки нового оборудования;
,
– текущие расходы на содержание и обслуживание старых и новых выключателей, соответственно;
– экономический результат (эффект) от использования новых выключателей, который эквивалентен ущербу (Уств) от ненадежной работы старых выключателей.
Если
, то эффективность внедрения новых выключателей очевидна.
При определения капитальных вложений на новые выключатели учтем стоимость новых выключателей Квк, стоимость монтажных работ на установку новых выключателей Кмнж, стоимость демонтажа старых выключателей Кдем, остаточную стоимость старых выключателей Кост.
Годовые расходы на содержание и обслуживание новых выключателей
, 62\* MERGEFORMAT (.)
где
– текущие расходы на содержание и обслуживание новых выключателей (материалы, запасные части, оплата труда);
– амортизационные отчисления.
Годовые амортизационные отчисления определяются по формуле
, 63\* MERGEFORMAT (.)
где
рыночная стоимость объекта (без учета затрат на монтаж и установку);
нормативный срок службы объекта (по данным технического паспорта).
При определении годовых текущих расходов на обслуживание старых выключателей следует учитывать следующие виды затрат
, 64\* MERGEFORMAT (.)
где
– среднегодовые расходы на текущие и капитальные ремонты старых выключателей;
– дополнительные годовые затраты на обслуживание старых выключателей. Это затраты на масло для масляных выключателей.
Исследования показали, что для выключателей, находяцихся в эксплуатации более 70 % – ного их нормативного срока службы, расходы на ремонт существенно возрастают и в среднем составляют 25-30% от их стоимости Кств. Поэтому, при определении укрупненным методом расчетов Срем используется зависимость:
, 65\* MERGEFORMAT (.)
где
– норматив расходов на ремонт старых выключателей
Дополнительные расходы на обслуживание старых выключателей Сдоп могут включать годовые расходы на замену масла, определяемые по формулам:
,
,
где
,
– общий объем и среднегодовой объем заменяемого масла;
– периодичность замены масла в масляном выключателе, лет (мес);
– цена масла, р./л.
Работа предусматривает замену масляных выключателей типа ВМПЭ-10 20/630 на вакуумные.
Стоимость вакуумного выключателя типа ВВР-10-20/630 – 114750 р.
Требуемое количество выключателей N = 23 ед.
Срок службы новых выключателей – 30 лет
Стоимость масляных выключателей в текущих ценах Кмас – 63000 руб.
Срок службы маслянного выключателя – 25 лет. Они эксплуатируются с 1989 года (27 лет), следовательно срок службы масляных выключателей исчерпан Кост = 0.
Таблица 6.1 – Стоимость устанавливаемых выключателей
| Показатель | Кол-во, ед. | Стоимость, тыс. руб. | ||
| Оборудование | Монтажные работы (5% от стоимости) | Общая стоимость | ||
| Вакуумные выключатели | 23 | | | 2771,21 |
Определяем текущие расходы на содержание и обслуживание вакуумных выключателей методом укрупненных расчетов.
Текущее обслуживание:















