Пояснительная записка (1215654), страница 2
Текст из файла (страница 2)
Подстанция Огорон предназначена для питания устройств сигнализации, централизации и блокировки (СЦБ), котельной и районных бытовых потребителей, питающихся от ТП-1, ТП-2 и ТП-3 (рисунок 1.1) [1,8].
Рисунок 1.1 – Схема распределительной сети 10 кВ станции Огорон
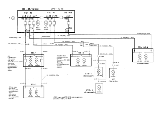
Схема внешнего электроснабжения рассматриваемой трансформаторной подстанции [2] Февральской дистанции электроснабжения представлена на рисунке 1.2.
Рисунок 1.2 – Схема внешнего электроснабжения
Трансформаторная подстанция представляет собой закрытые распределительные устройства (ЗРУ) 35, 10 и 0,4 кВ. Общий вид планировки этажей здания подстанции представлен на рисунках 1.3–1.4 [9,10].
Рисунок 1.3 – План первого этажа здания подстанции Огорон
Рисунок 1.4 – План второго этажа здания подстанции Огорон
Распределительное устройство 35 кВ выполнено на базе КСО, выполненное по схеме два блока с секционированием через выключатель и с вводом через воздушные фидеры с разъединителем, располагается на втором этаже здания. В состав ЗРУ 35 кВ входят два линейных разъединителя (ЛР) типа РЛНДЗ-35/1000, два секционных разъединителя (СР) типа РЛНДЗ-35/1000, два шинных разъединителя (ШР) типа РЛНДЗ-35/1000, два вводных трансформаторных выключателя (ВТ) типа С-35А-10/630. Два силовых трансформатора типа ТМ-1600/35 (Т1, Т2), расположенных с наружи здания. Для защиты силовых трансформаторов Т1 и Т2 от грозовых перенапряжений на каждой секции шин РУ 35 кВ установлены разрядники типа РВС-35 [9,10].
РУ 10 кВ типа КРУ2-10 подстанции включает 31 высоковольтную ячейку для фидерных вводов и выводов, силовых трансформаторов, измерительных трансформаторов, развратников и т.д., размещенных на первом этаже здания подстанции. Предназначено для питания устройств СЦБ, котельной и бытовых потребителей, питающихся от ТП-1, ТП-2 и ТП-3. Выполнено в виде двух секционированных шин и неавтоматической секционной перемычкой, расположенных в ячейках. В нормальном режиме секции шин работают раздельно, выключатель СВ-10, соединяющий две секции шин, находится в положение отключено. Количество отходящих фидеров 11, три из которых резервные. Каждая ячейка имеет входной масляный выключатель типа ВМПЭ-10-20/630. Шины имеют ячейки с трансформатором напряжения ТН-10 типа НТМИ-10 для измерения напряжений для нужд сигнализации, питания зарядных устройств, измерительных приборов, питания цепей устройств релейной защиты, которые защищены предохранителями типа ПК-10 1А [9,10].
В таблицах 1.1–1.2 приведены основные характеристики и эксплуатационные показатели работы подстанции [1].
Таблица 1.1 – Эксплуатационные показатели работы подстанции
| По состоянию на 1 января | Установленная мощность подстанции, кВА | Присоединенная мощность потребителей, кВт | |||||
| для эксплуатационных нужд железных дорог | прочие железнодорожные потребители | бытовые нужды | всего | ||||
| силовая | осветитель ная | силовая | осветитель ная | ||||
| 2014 | 4600 | 2060 | 300 | 401 | 50 | 41,5 | 2852,5 |
| 2015 | 4600 | 2060 | 300 | 401 | 45 | 40 | 2846 |
| 2016 | 4600 | 2060 | 300 | 401 | 48 | 40 | 2841 |
| 2017 | 4600 | 2060 | 300 | 401 | 40 | 40 | 2841 |
Таблица 1.2 – Силовые трансформаторы подстанции
| н/п | Наименование | Номер по однолинейной схеме | Тип | Номинальная мощность, кВА | Год изготовления | Номинальное напряжение, кВ | Соединение обмоток и группа | Напряжение короткого замыкания, % | |||
| высшее | низшее | ||||||||||
| 1 | Понижающий | Т1 | ТМН | 1600 | 1988 | 35 | 10 | Y/-11 | 6,5 | ||
| 2 | Понижающий | Т2 | ТМН | 1600 | 1970 | 35 | 10 | Y/-11 | 6,38 | ||
| 3 | Понижающий | ТСН1 | ТМ | 100 | 1986 | 10,5 | 0,4 | Y/Yн-0 | 4,69 | ||
| 4 | Понижающий | ТСН2 | ТМ | 100 | 1986 | 11 | 0,4 | Y/Yн-0 | 4,69 | ||
| 5 | Понижающий | ТСН1 СЦБ | ТМ | 400 | 1989 | 11 | 0,4 | Y/Yн-0 | 4,35 | ||
| 6 | Понижающий | ТСН2 СПБ | ТМ | 400 | 1989 | 11 | 0,4 | Y/Yн-0 | 4,41 | ||
| 7 | Повышающий | ТСЦБ | ТМ | 400 | 1989 | 11 | 0,4 | Y/Yн-0 | 4,9 | ||
Секции шин 1 и 2 СЦБ 10 кВ питает устройства сигнализации, централизации и блокировки в Западном и Восточном железнодорожных направлениях [9].
При отсутствии питания со стороны воздушной линии (ВЛ) 35 кВ от
РПС 220 Призейская и Тунгала аварийным источником электропитания выступает электростанция стационарная дизельная автоматизированная (ЭСДА) КАС – 500 РА [11]. ЭСДА подключена к секции шин 1 СЦБ 0,4 кВ, которая соединена с повышающим трансформатором ТСЦБ ТМ-400 10/0,4 кВ, размещенным в высоковольтные ячейки номер 1 ЗРУ 10 кВ.
Характеристика измерительного, коммутационного и др. оборудования трансформаторной подстанции представлена в таблицах 1.3–1.5.
Таблица 1.3 – Оборудование ЗРУ 35 кВ
| Наименование | Диспетчерское обозначение | Тип |
| Линейные разъединители | ЛР-1-35 ЛР-2-35 | РЛНДЗ-35/1000 РЛНДЗ-35/1000 |
| Заземляющие ножи | ЗН-35ЛР1 ЗН-35ЛР2 ЗН-35СШ1 ЗН-35СШ2 | — — — — |
| Секционные разъединители | СР-1 СР-2 | РЛНДЗ-35/1000 РЛНДЗ-35/1000 |
| Секционный выключатель | СВ-35 | С-35А-10/630 |
| Трансформаторы тока (2шт) | ТТ-СВ-35 | ТПОЛ-35 100/5 |
| Шинные разъединители трансформаторов напряжения | ШР-ТН1-35 ШР-ТН2-35 | РЛНДЗ-35/1000 РЛНДЗ-35/1000 |
| Трансформаторы напряжения | ТН1-35 ТН1-35 | ЗНОМ-35 ЗНОМ-35 |
| Шинные разъединители | ШР1-35 ШР2-35 | РЛНДЗ-35/1000 РЛНДЗ-35/1000 |
| Заземляющие ножи | ЗН-35ВТ1 ЗН-35ВТ2 | — — |
| Трансформаторы тока | ТТ-ВТ1-35 ТТ-ВТ2-35 | ТПОЛ-35 100/5 ТПОЛ-35 100/5 |
Окончание таблицы 1.3
| Наименование | Диспетчерское обозначение | Тип |
| Выключатели высоковольтные трехполюсные | ВТ1-35 ВТ2-35 | С-35А-10/630 С-35А-10/630 |
| Разрядник вентильный станционный | РВС1-35 РВС2-35 | РВС-35 РВС-35 |
Таблица 1.4 – Оборудование ЗРУ 10 кВ
| Наименование | Диспетчерское обозначение | Тип |
| Выключатели | — | ВМПЭ-10-20/630 |
| Разрядники вентильные подстанционные | — | РВП-10 |
| Трансформаторы тока | — | ТКВ-10 400/5 ТКВ-10 300/5 ТКВ-10 150/5 ТКВ-10 100/5 ТКВ-10 50/5 ТПЛ-10 50/5 ТПЛ-10 20/5 |
| Предохранитель кварцевый | — | ПК-10 1А |
| Трансформаторы собственных нужд | — | ТМ-100/10 (2шт) ТМ-400/10 (3шт) ТМ-100/10/0,4 |
| Трансформаторы напряжения | — | НТМИ-10 НАМИ-10 |
Таблица 1.5 – Оборудование ЗРУ 0,4 кВ
| Наименование | Тип | Кол-во |
| Выключатель автоматический | СА-1600А | 2 |
| Рубильник | РП-5 800А | 19 |
| Автоматический выключатель | 37/16 630А | 34 |
Выключатели 35 кВ размещены в КСО-35 кВ (бетон), выключатели 10 кВ – КРУ2-10.
Таблица 1.6 – Суточные нагрузки активной мощности за 15.06.2016
|
Время, ч | Мощность, перерабатываемая трансформаторами, кВт | Мощность питающих фидеров, кВт | |||||||||||
| Т1 | Т2 | ТСН1 | ТСН2 | ТСН1 СЦБ | ТСН2 СПБ | ТСЦБ | 2 | 3 | 4 | 5 | 9 | 13 | |
| 0 – 1 | 80 | — | — | — | 40 | — | 40 | — | 13,33 | — | 13,33 | 13,33 | 80 |
| 1 – 2 | 160 | 80 | — | 40 | 80 | — | 80 | 20 | 26,67 | 20 | 26,67 | 26,67 | 160 |
| 2 – 3 | 80 | — | — | — | 40 | — | 40 | — | 13,33 | — | 13,33 | 13,33 | 80 |
| 3 – 4 | 80 | 80 | — | 40 | 40 | — | 40 | 20 | 13,33 | 20 | 13,33 | 13,33 | 80 |
| 4 – 5 | 80 | — | — | — | 40 | — | 40 | — | 13,33 | — | 13,33 | 13,33 | 80 |
| 5 – 6 | 160 | 80 | — | 40 | 80 | — | 80 | 20 | 26,67 | 20 | 26,67 | 26,67 | 160 |
| 6 – 7 | 80 | — | — | — | 40 | — | 40 | — | 13,33 | — | 13,33 | 13,33 | 80 |
| 7 – 8 | 80 | 80 | — | 40 | 40 | — | 40 | 20 | 13,33 | 20 | 13,33 | 13,33 | 80 |
| 8 – 9 | 80 | — | — | — | 40 | — | 40 | — | 13,33 | — | 13,33 | 13,33 | 80 |
| 9 – 10 | 80 | 80 | — | 40 | 40 | — | 40 | 20 | 13,33 | 20 | 13,33 | 13,33 | 80 |
| 10 – 11 | 80 | — | — | — | 40 | — | 40 | — | 13,33 | — | 13,33 | 13,33 | 80 |
| 11 – 12 | 160 | 80 | — | 40 | 80 | — | 80 | 20 | 26,67 | 20 | 26,67 | 26,67 | 160 |
| 12 – 13 | 80 | — | — | — | 40 | — | 40 | — | 13,33 | — | 13,33 | 13,33 | 80 |
| 13 – 14 | 80 | 80 | — | 40 | 40 | — | 40 | 20 | 13,33 | 20 | 13,33 | 13,33 | 80 |
| 14 – 15 | 160 | — | — | — | 80 | — | 80 | — | 26,67 | — | 26,67 | 26,67 | 160 |
| 15 – 16 | 80 | 80 | — | 40 | 40 | — | 40 | 20 | 13,33 | 20 | 13,33 | 13,33 | 80 |
| 16 – 17 | 80 | — | — | — | 40 | — | 40 | — | 13,33 | — | 13,33 | 13,33 | 80 |
| 17 – 18 | 160 | 80 | — | 40 | 80 | — | 80 | 20 | 26,67 | 20 | 26,67 | 26,67 | 160 |
| 18 – 19 | 80 | — | — | — | 40 | — | 40 | — | 13,33 | — | 13,33 | 13,33 | 80 |
| 19 – 20 | 80 | 80 | — | 40 | 40 | — | 40 | 20 | 13,33 | 20 | 13,33 | 13,33 | 80 |
| 20 – 21 | 160 | — | — | — | 80 | — | 80 | — | 26,67 | — | 26,67 | 26,67 | 160 |
| 21 – 22 | 80 | 80 | — | 40 | 40 | — | 40 | 20 | 13,33 | 20 | 13,33 | 13,33 | 80 |
| 22 – 23 | 80 | — | — | — | 40 | — | 40 | — | 13,33 | — | 13,33 | 13,33 | 80 |
| 23 – 24 | 80 | 80 | — | 40 | 40 | — | 40 | 20 | 13,33 | 20 | 13,33 | 13,33 | 80 |
Таблица 1.7 – Суточные нагрузки активной мощности за 21.12.2016
|
Время, ч | Мощность, перерабатываемая трансформаторами, кВт | Мощность питающих фидеров, кВт | |||||||||||
| Т1 | Т2 | ТСН1 | ТСН2 | ТСН1 СЦБ | ТСН2 СПБ | ТСЦБ | 2 | 3 | 4 | 5 | 9 | 13 | |
| 0 – 1 | 80 | 240 | — | 120 | 40 | — | 40 | 40,00 | 40 | 40,00 | — | — | 40,00 |
| 1 – 2 | 80 | 160 | — | 80 | 40 | — | 40 | 26,67 | 40 | 26,67 | — | — | 26,67 |
| 2 – 3 | 80 | 160 | — | 80 | 40 | — | 40 | 26,67 | 40 | 26,67 | — | — | 26,67 |
| 3 – 4 | 80 | 160 | — | 80 | 40 | — | 40 | 26,67 | 40 | 26,67 | — | — | 26,67 |
| 4 – 5 | 160 | 160 | — | 80 | 80 | — | 80 | 26,67 | 80 | 26,67 | — | — | 26,67 |
| 5 – 6 | 80 | 160 | — | 80 | 40 | — | 40 | 26,67 | 40 | 26,67 | — | — | 26,67 |
| 6 – 7 | 80 | 240 | — | 120 | 40 | — | 40 | 40,00 | 40 | 40,00 | — | — | 40,00 |
| 7 – 8 | 160 | 160 | — | 80 | 80 | — | 80 | 26,67 | 80 | 26,67 | — | — | 26,67 |
| 8 – 9 | 80 | 240 | — | 120 | 40 | — | 40 | 40,00 | 40 | 40,00 | — | — | 40,00 |
| 9 – 10 | 80 | 160 | — | 80 | 40 | — | 40 | 26,67 | 40 | 26,67 | — | — | 26,67 |
| 10 – 11 | 160 | 240 | — | 120 | 80 | — | 80 | 40,00 | 80 | 40,00 | — | — | 40,00 |
| 11 – 12 | 80 | 160 | — | 80 | 40 | — | 40 | 26,67 | 40 | 26,67 | — | — | 26,67 |
| 12 – 13 | 160 | 240 | — | 120 | 80 | — | 80 | 40,00 | 80 | 40,00 | — | — | 40,00 |
| 13 – 14 | 80 | 80 | — | 40 | 40 | — | 40 | 13,33 | 40 | 13,33 | — | — | 13,33 |
| 14 – 15 | 80 | 240 | — | 120 | 40 | — | 40 | 40,00 | 40 | 40,00 | — | — | 40,00 |
| 15 – 16 | 160 | 160 | — | 80 | 80 | — | 80 | 26,67 | 80 | 26,67 | — | — | 26,67 |
| 16 – 17 | 80 | 160 | — | 80 | 40 | — | 40 | 26,67 | 40 | 26,67 | — | — | 26,67 |
| 17 – 18 | 80 | 240 | — | 120 | 40 | — | 40 | 40,00 | 40 | 40,00 | — | — | 40,00 |
| 18 – 19 | 160 | 240 | — | 120 | 80 | — | 80 | 40,00 | 80 | 40,00 | — | — | 40,00 |
| 19 – 20 | 80 | 160 | — | 80 | 40 | — | 40 | 26,67 | 40 | 26,67 | — | — | 26,67 |
| 20 – 21 | 160 | 160 | — | 80 | 80 | — | 80 | 26,67 | 80 | 26,67 | — | — | 26,67 |
| 21 – 22 | 80 | 240 | — | 120 | 40 | — | 40 | 40,00 | 40 | 40,00 | — | — | 40,00 |
| 22 – 23 | 80 | 160 | — | 80 | 40 | — | 40 | 26,67 | 40 | 26,67 | — | — | 26,67 |
| 23 – 24 | 80 | 160 | — | 80 | 40 | — | 40 | 26,67 | 40 | 26,67 | — | — | 26,67 |
В районе где размещена трансформаторная подстанция производство не развито, поэтому на ее приходится очень маленькая нагрузка (см. таблицы 1.1–1.2) относительно проектной (см. таблицы 1.6–1.7) [6,7], силовые трансформаторы работают при существенно малой нагрузки. Кроме того, прогнозируется снижение нагрузки трансформаторной подстанции на 1–2 % в год от фактической в настоящее время.















