Пояснительная записка (1215654), страница 5
Текст из файла (страница 5)
, 411\* MERGEFORMAT (.)
, 412\* MERGEFORMAT (.)
, 413\* MERGEFORMAT (.)
где
– коэффициент аварийной перегрузки трансформатора, учитывающий возможную перегрузку до 40 %,
;
– номинальная мощность силового трансформатора;
– мощность питающего i-го фидера, ВА;
– номинальная мощность i-го ТСН.
Результаты расчета по вышепредставленной методике сведем в таблицу 4.2.
Таблица 4.2 – Результаты расчетов максимальных рабочих токов
| н/п | Наименование | Максимальный расчетный ток, А |
| 1 | Ввод в силовой трансформатор 35 кВ | 9,24 |
| 2 | Ввод в ЗРУ 10 кВ | 32,33 |
| 3 | Ввод в ТСН1 | 8,08 |
| 4 | Ввод в ТСН2 | 8,08 |
| 5 | Ввод в ТСН СЦБ1 | 32,33 |
| 6 | Ввод в ТСН СЦБ2 | 32,33 |
| 7 | Ввод в ТСЦБ | 32,33 |
| 8 | Фидер 2 | 2,42 |
| 9 | Фидер 3 | 12,12 |
| 10 | Фидер 4 | 4,85 |
| 11 | Фидер 13 | 9,70 |
| 12 | Фидер СЦБ Запад | 7,43 |
| 13 | Фидер СЦБ Восток | 5,5 |
-
РЕТРОФИТ ВЫСОКОВОЛЬТНЫХ ВЫКЛЮЧАТЕЛЕЙ В ЗАКРЫТОМ РАСПРЕДЕЛИТЕЛЬНОМ УСТРОЙСТВЕ 35 И 10 кВ
Equation Section (Next)
-
Анализ современных технических решений
Существует два варианта ретрофита КРУ. Первый – это демонтаж старого выключателя с приводом на выкатном элементе (ВЭ) и монтаж нового выключателя с блоком управления при использовании типовых комплектов металлоконструкций, кабелей, крепёжных и иных деталей, представлен на рисунке 5.1. Второй – это замена целиком устаревшего ВЭ на новый с уже установленным выключателем. Такое обновление ячейки не требует проведения монтажных работ по замене старого (масляного, электромагнитного) выключателя, элементов ошиновки и схемы вторичной коммутации. Модернизация производится в разы быстрее, чем в первом варианте, поэтому в данном случае не требуется длительное отключение потребителей от электропитания или остановка производства. Полная взаимозаменяемость обеспечивается за счёт идентичности нового ВЭ по габаритно-присоединительным размерам и блокировкам. «Ретро» ВЭ это выкатные элементы, применяемые для модернизации КРУ производства бывшего СССР и стран совета экономической взаимопомощи (СЭВ) [17].
Рисунок 5.1 – Выкатанные элементы для КРУ2-10: а) старый; б) новый
Стоимость различных вариантов ретрофита в процентном отношении от стоимости установки новой ячейки КРУ представлены на рисунке 5.2.
Рисунок 5.2 – Стоимость различных вариантов ретрофита в
сравнении с заменой на новую ячейку
При анализе современных технических решений [17–20] отдано предпочтение устройствам BB/TEL группы компаний «Энреготехмонтаж».
Преимущества ретрофита с использованием выключателя BB/TEL:
Простота и удобство переоборудования. Минимум трудозатрат при модерни зации;
Полная совместимость с модернизируемой ячейкой КРУ. Выполнение необ ходимых блокировок, обеспечивающих безопасность обслуживания;
Минимальное время простоя ячейки. Обесточивается только одно присое динение, подлежащее модернизации.
Обеспечение долговременной и надежной работы выключателя;
Учитывая многообразие эксплуатируемых ячеек, «РК Таврида Электрик» разработала более 60 проектов ретрофита для шкафов КРУ и камер КСО.
В соответствии со способом модернизации все проекты ретрофита можно разделить на 4 группы:
1. «Модуль ВМП». Данный комплект адаптации предназначен для замены старых выключателей в ячейках КРУ210, КР10/500, КXII, KXIII, KXXVI, К37. Так же имеется ряд проектов по замене выключателей в ячейках каркасного типа, КIIу, КIIIу, КIV, КVIу, КIX, КВС09, КР10У4 и других.
2. «Модуль КСО». Комплект адаптации применяется при модернизации яче ек КСО2У, КСО2УМ, КСО266, КСО272, КСО285, КСО292, КСО2200, КРНIII 10, КРН10, КРНIV, Д13Б, Ш164, КVI, МКФН, КП03, ЛП318 и др.
3. ВЭ/TEL выкатной элемент производства «РК Таврида Электрик». Постав ляется взамен выкатных элементов КРУ серий К47; К49; К59; К104; К 104М; КМ1Ф; КМ1; КМ1М; КМВ, КРУН6(10)ЛМ как при ретрофите, так и для нового строительства.
4. Модернизация выкатных элементов производства бывших стран СЭВ, се рий SCI 110, SCI 412, HL47, RSW 10/I, ST7(9), К302 и других, с заменой ста рых масляных выключателей на комплекты адаптации с вакуумным выключа телем ВВ/TEL, либо с полной заменой выкатного элемента на выкатной эле мент производства «РК Таврида Электрик».
-
Замена выключателей КСО 35 кВ
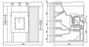
Согласно типу КСО-35 (батон) на рассматриваемой трансформаторной подстанции произведем ретрофит выключателей 35 кВ. При помощи комплекта адаптации для ячейки серии КСО шириной 2400 мм (рисунок 5.3) можно выполнить установку вакуумного выключателя ВВУ-СЭЩ-П2-35.
Комплект адаптации содержит типовой комплект металлоконструкции: муфты, болты, шайбы, гайки, тяги, втулки, вилки, стрежни, уголки, шины, скобы, фланцы, изоляторы и т.д.
Рисунок 5.3 – Схема адаптации для ячейки серии КСО-35 кВ (бетон)
Выбор и проверку вакуумного выключателя ВВУ-СЭЩ-П2-35 выполним по методике, изложенной в литературе [21].
Проверка условия по напряжению и току:
, 51\* MERGEFORMAT (.)
, 52\* MERGEFORMAT (.)
где
и
– ближайшие большие напряжения, и ток выбираемого высоковольтного выключателя;
и
– рабочее напряжение и максимальный рабочий ток цепи, в которой должен быть установлен выключатель.
Проверка выключателя на электродинамическую стойкость:
, 53\* MERGEFORMAT (.)
, 54\* MERGEFORMAT (.)
где
– эффективное значение периодической составляющей предельного сквозного тока короткого замыкания по паспорту, кА;
– установившееся значение тока трехфазного короткого замыкания в цепи, где установлен выключатель, кА;
– амплитудное значение предельного сквозного тока по паспорту, кА.
Проверка выключателя на термическую стойкость по тепловому импульсу тока короткого замыкания
, 55\* MERGEFORMAT (.)
где
– среднеквадратичное значение тока за время его протекания (ток термической стойкости) по паспорту, кА;
– длительность протекания тока термической стойкости по паспорту, с;
– тепловой импульс тока короткого замыкания, кА2с.
Если выключатели отвечают требованиям электродинамической стойкости, то они отвечают также требованиям термической стойкости, поэтому для них не обязательна проверка на термическую стойкость [21].
Проверка по отключающей способности:
, 56\* MERGEFORMAT (.)
, 57\* MERGEFORMAT (.)
где
– номинальный предельно отключаемый ток выключателя по паспорту при его номинальном напряжении, кА;
– ток трехфазного короткого замыкания, кА;
– номинальная предельно отключаемая мощность выключателя по паспорту, МВА;
– мощность трехфазного короткого замыкания по расчету, МВА.
Паспортные характеристики вакуумного выключателя ВВУ-СЭЩ-П2-35 [35] (рисунок 5.4) сведены в таблицу 5.1.
Рисунок 5.4 – Вакуумный выключатель ВВУ-СЭЩ-П2-35: 1 – полюс; 2 – рама; 3 – привод пружинно-моторный с валом; 4 – рукоятка ручного взвода; 5 – пружина отключающая; 6 – буфер масляный;
7– тяга
Таблица 5.1 – Основные технические параметры вакуумных выключателей
ВВУ-СЭЩ-П2-35
| Наименование параметров | ВВУ-СЭЩ-П2-35-25/1000 | ВВУ-СЭЩ-П2-35-25/1600 |
| Номинальное напряжение, кВ | 35 | |
| Номинальный ток, А | 1000 | 1600 |
| Номинальный ток отключения, кА; | 25 | 25 |
| Номинальные токи включения, кА:
| 25 62,5 | 25 62,5 |
| Пред, сквозные токи, кА:
| 25 62,5 | 25 62,5 |
| Собственное время включения, с, не более | 0,04 | |
| Собственное время отключения, с, не более | 0,06 | |
| Ток потребления электромагнита отключения, А не более при ~230 В при = 220 В | 1,5 1,0 | |
| Ток потребления электромагнита включения, А не более при -230 В при = 220 В | 1,5 1,0 | |
| Ток потребления двигателя заводки включающей пружины, А, не более | 1,5 | |
| Электромагнит и отключения независимого питания (YAV) | По заказу | |
| Электромагниты отключения с токами ЗА или 5 A (YAA) | По заказу | |
| Время заводки включающей пружины, с, не более | 10 | |
| Ресурс по механической и коммутационной стойкости, циклов ВО | 10000 | |
| Масса, кг | 240 | |
Выполним проверку вакуумного выключателя ВВУ-СЭЩ-П2-35-25/1000 в соответствии с условиями (5.1–5.7), результаты сведем в таблицу 5.2.
Таблица 5.2 – Результаты проверки выключателей КСО-35 кВ
| н/п | Наименование проверки | Условие | Результат |
| | по напряжению |
|
|
| | по току |
|
|
| | на электродинамическую стойкость |
|
|
|
|
| ||
| | по отключающей способности |
|
|
|
|
|
Номинальная отключаемая мощность и мощность 3-ф корытного замыкания рассчитывались по формулам:
, 58\* MERGEFORMAT (.)














