ПЗ (1214126), страница 14
Текст из файла (страница 14)
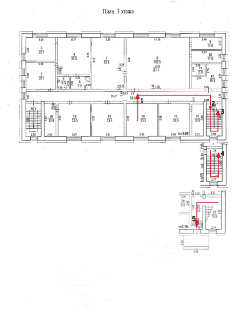
3-участок движения по лестничному маршу до второго этажа
4-участок движения по лестничному маршу до первого этажа
5
-участок движения в холе здания до входной двери
Рисунок 9.2 Схема эвакуации сотрудников предприятия:1,2,3,4,5 этапы эвакуации
Для определения времени движения людей по первому участку (рис 9.2), с учетом габаритных размеров кабинета 6 x 5,6 м, определяется плотность движения людского потока на первом участке по формуле (9.3) :
По таблице 9.2 определяем скорость движения составляет 100 м/мин, интенсивность движения 1 м/мин, т.о. время движения по первому участку:
мин
Длина дверного проема принимается равной нулю, интенсивность движения в проеме шириной 0,8 м рассчитывается по формуле (9.7):
м/мин
поэтому движение через проем проходит беспрепятственно.
Время движения в проеме определяется по формуле (9.8) :
мин
Так как на третьем этаже работает 10 человек, плотность людского потока третьего этажа составит:
По таблице скорость движения составляет 100 м/мин, интенсивность движения 5 м/мин, т.о. время движения по второму участку (из коридора на лестницу рис.2):
мин
Для определения скорости движения по лестнице рассчитывается интенсивность движения на третьем участке (рис.2) по формуле (9.4):
м/мин
Это показывает, что на лестнице скорость людского потока снижается до 95 м/мин. Время движения по лестнице вниз (3-й участок):
мин
При переходе на второй этаж происходит смешивание с потоком людей, двигающихся по второму этажу. Плотность людского потока для первого этажа:
при этом интенсивность движения составит около 5 м/мин.
При переходе на 4-й участок (рис.9.2) происходит слияние людских потоков, поэтому интенсивность движения определяется по формуле (9.6):
м/мин
По таблице 9.2 скорость движения равняется 52 м/мин, поэтому скорость движения по лестнице вниз до первого этажа:
При переходе на первый этаж происходит смешивание с потоком людей, двигающихся по первому этажу. Плотность людского потока для первого этажа:
при этом интенсивность движения составит около 5 м/мин.
При переходе на 5-й участок (рис 9.2) происходит слияние людских потоков, поэтому интенсивность движения определяется по формуле (9.6):
м/мин
По таблице 9.2 скорость движения равняется 40 м/мин, поэтому скорость движения по холлу до выходной двери этажа:
мин
При максимальной плотности людского потока интенсивность движения через дверной проем на улицу шириной 1,4 м – 7,75 м/мин, время движения через него:
мин
Расчетное время эвакуации рассчитывается по формуле (9.1):
мин
Расчётное время 1,41 минута соответствует необходимому времени, согласно которому оно должно быть не более 2 минут. Таким образом, требование
выполнено.
Заключение
В дипломном проекте на основе данных о вагонопотоков станции из натурных листов и справках о выполнении основных показателях были определены размеры движения в поездах, рассмотрены и проанализированы основные показатели работы станции Хабаровск-2 за 2015 начало 2016 года. Представлена технико-эксплуатационная характеристика станции, рассмотрено осуществление административного и оперативного руководства и планирования работы станции. Для разработки суточного плана-графика работы станции кроме вагонопотоков были определены нормы времени на выполнение маневровой работы, на основе действующих методик. Разработана технология обработки поездов и вагонов различных категорий, на основе данных построены технологические графики.
В разделе организация местной работы определен объем погрузки выгрузки и путях необщего пользования построена балансовая таблица местных вагонов и производен расчет числа подач.
Итогом произведенных расчетов стала разработка суточного плана-графика работы станции, с учетом устраненных причин, вызывающих завышенный простой местного вагона.
Анализ простоя местного вагона произведенный на основе справочных данных, полученных на станции Хабаровск - 2, показал что, при поступлении больше среднесуточного числа вагонов простой местных вагонов возрастает в сортировочном парке в ожидании подачи в связи значительного поступления вагонов в адрес клиентов превышающий фронт выгрузки.
Кроме того, превышение нормы простоя местных вагонов происходит из–за недоработок с вагонами, как работников станции, так и грузополучателей и грузоотправителей, выполняющих грузовые операции, в результате чего простои местных вагонов на станции значительно превышают технологический план.
Разработанный в дипломном проекте суточный план-график работы станции отражает работу четной и нечетной сортировочной системы, а рассчитанные на его основе показатели, которые отличаются от фактических на станции, показывают более рациональную работу станции. Два варианта суточного плана – графика работы станции разработаны с целью сравнения, первый вариант рассматривал поступление среднее количество местных вагонов в обычном режиме приходящее на станцию, второй вариант при увеличении количества местных вагонов. Простой местного на первом варианте суточного плана – графика составляет 21,73 часа, а на втором варианте 22,01 часа, что на 0,28 часа больше, в случае занятости фронтов произойдет увеличение простоя местного вагона в сортировочном парке в ожидании подачи, и на путях необщего пользования под грузовыми операциями.
Экономические расчеты, приведенные в восьмом разделе, отражают доходы и расходы станции, связанные с дополнительными операциями при поступлении местных вагонов, а также показывают прибыль станции от этих операций.
В заключении дипломного проекта рассмотрен вопрос организации пожарной безопасности на станции Хабаровск-2. Произведен расчет пути эвакуации людей из помещения административного корпуса станции Хабаровск-2, в результате которого было выявлено расчетное время 1,41минута эвакуации всего персонала из здания.
Список использованных источников
-
Типовые нормы времени на маневровые работы, выполняемые на железнодорожном транспорте. - МПС России. М.: Транспорт, 2006. 206с.
-
Управление эксплуатационной работой на железнодорожном транспорте : в двух томах. Том 1. Технология работы станций : учебник для вузов ж.-д. транспорта / под ред. А.Т. Ковалева и А.Т. Осьминина. - М. : ГОУ УМЦ, 2009. - 263 с.
-
Кочнев,Ф.П. Управление эксплуатационной работой железнодорожных дорог / Ф.П. Кочнев, И. Б. Сотников. – М. : Транспорт,1990.
-
Железнодорожные станции и узлы: учеб. для вузов ж.-д. трасп. / В.Г. Шубко, Н.В. Правдин, Е.В. Архагельский [и др.].- М: УМК МПС России, 2002.-368с.
-
Правила тяговых расчетов для поездной работы. - М.: Транспорт, 1985.-287с.
-
Правила пожарной безопасности на железнодорожном транспорте [утв. 1992 г. № ЦУО/112]. – М.,2003.
-
Грибков, О.И. Эвакуация людей при пожаре: методическое указание / Грибков О.И., В.Д. Федосов. - М.: МИИТ, 2003. - 33с.
-
Тесленко, И.М. Вопросы безопасности жизнедеятельности в дипломном проектировании: методические указания / И.М. Тесленко, К.В.Пупатенко. - Хабаровск: Изд-во ДВГУПС,2009.-23с.
-
Инструкция пожарной безопасности в здании постов ЭЦ прилегающей территории на станции Хабаровск-2
-
Инструкция по использованию прибора пожарной сигнализации «СИГНАЛ-2»
-
Об утверждении Правил применения сборов за дополнительные операции, связанные с перевозкой грузов на федеральном железнодорожном транспорте (Тарифное руководство N 3)" (с изменениями и дополнениями). Постановление ФЭК РФ N 35/15. Введ. 2002-19-06.
-
Постол, Б.Г. Тяга поездов: учеб.пособие / Б.Г.Постол, Е.Н.Кузьмичев. -Хабаровск: Изд-во ДВГУПС,2011.-74 с.: ил.
-
Несветова,Е.А.Требования к выполнению выпускных квалификационных работ и курсовых проектов и правила их оформления: методическое пособие / сост. Е.А. Несветова, К.В. Китанина. - Хабаровск: Изд-во ДВГУПС, 2014. - 50 с.: ил.
-
Широкова, В.В. Организация работы сортировочной станции : учеб. пособие / В.В. Широкова, Е.А. Несветова. - Хабаровск : Изд-во ДВГУПС, 2006. - 98 с.
-
Технологический Процесс работы сортировочной станции Хабаровск-2 Дальневосточной железной дороги – филиала ОАО «РЖД» [Электронный ресурс].- Хабаровск, 2015 г.- 211 с.
-
Техническо-Распорядительный Акт железнодорожной станции Хабаровск-2 Дальневосточной железной дороги – филиала ОАО «РЖД» [Электронный ресурс]: утвержден начальником Дальневосточной дирекции управления движением В. Н. Зеленько 29.03.2013 г.- 295 с.
ПРИЛОЖЕНИЕ А
План формирования станции Хабаровск-2
| Станция назначения | Род поезда | Наименование и состав групп вагонов | Интервалы кодов станций |
| 1 | 2 | 3 | 4 |
| Красноярск-Вост. | Сквозной | Красноярск-Вост. и далее, включая вагоны на ст.Базаиха и далее, Укладочный и далее, включая порожние вагоны, цистерны | 01000 - 84111 |
| Тында | Сквозной | Штурм (рзд) и далее до ст.Тайшет искл., включая вагоны на ст.Маревая, включая порожние вагоны | 90220 - 91180 |
| Иркутск-Сорт. | Сквозной | Тайшет и далее до ст.Укладочный, Красноярск-Вост., Базаиха искл., включая вагоны на ст.Гончарово и далее, включая порожние крытые, платформы, цистерны, полувагоны | 84117 - 84191 |















