3. Аналитическое обоснование (1209994), страница 5
Текст из файла (страница 5)
В связи с большим объемом работ монтажных и пуско-наладочных, приемо-сдаточных и контрольных испытаний целесообразно привлечение сотрудников специализированной организации, имеющей лицензии на деятельность по технической защите персональных данных.
-
Оценка материальных, трудовых и финансовых затрат на разработку и внедрение системы защиты МИС ЦОД.
-
Затраты на технические и программные средства защиты
-
Ориентировочная стоимость предлагаемых к использованию сертифицированных средств защиты информации представлена в таблице 10.1
Таблица 10.1 - ориентировочная стоимость предлагаемых технических средств
| Продукт | Кол-во | Цена розничная, 1 шт., руб. | Общая стоимость, руб. |
| Межсетевой экран | 1 | 253 000,00 | 253 000 |
| Программный комплекс DallasLock 8.0-K | 6 | 6 000 | 36 000 |
| Программный комплекс DallasLock Linux 8.0-K | 8 | 6 000 | 48 000 |
| Сервер безопасности для комплекса DallasLock 8.0-K | 1 | 70 000 | 70 000 |
| Система защиты ВИ DallasLock ВИ 8.0 | 3 | 15 000 | 45 000 |
| Dr.Web Enterprise Security Suite на 5 рабочих мест и 12 серверов, включая центра цправления | 1 | 62 460 | 62 460 |
| Предоставление прав на использование XSpider 7.8, лицензия на 16 хостов, гарантийные обязательства в течение 1 года | 1 | 29 100. | 29 100 |
| Acronis Backup & Recovery 11 Advanced Server | 6 | 25 900 | 155 400 |
| Итого | 698 960 | ||
-
Затраты на установку и настройку средств защиты информации специалистами
Перечень работ по разработке проектной документации и расчет стоимости трудозатрат на их проведение приведен в таблице 2.2. В стоимость проектной документации входит разработка технического задания на создание СЗИ в ЦОД, разработка технического проекта на создание СЗИ и разработка необходимых организационно-распорядительных документов по защите конфиденциальной информации, обрабатываемой в ЦОД.
Таблица 2.2 – Расчет стоимости проектной документации
| Название | Ед. изм. | Кол-во | Цена за ед., руб, | Стоимость, руб. |
| Разработка технического задания на создание СЗИ в ИС | ИС | 1 | 7 000 | 7 000 |
| Разработка технического проекта на создание СЗИ | ИС | 1 | 22 000 | 22 000 |
| Разработка необходимых организационно- распорядительных документов по защите конфиденциальной информации в ИС | ИС | 1 | 65 000 | 65 000 |
| Итого: | 94 000 | |||
-
Затраты на установку и настройку средств защиты информации специалистами
К установке и настройке средств защиты информации могут привлекаться специалисты по защиты информации оператора, разработчики информационной системы и специалисты сторонних организаций, специализирующихся на защиты информации. Расчет стоимости работ по установке СЗИ приведен в таблице 10.2
Таблица 10.2 – затраты работа на установку и настройки СрЗИ
| Название | Стоимость, руб |
| Установка и настройка межсетевого экрана | 50 000 |
| Установка и настройка средств защиты от несанкционированного доступа на 16 рабочих станций и 1 сервер | 30 000 |
| Установка и настройка средства анализа защищенности | 3 000 |
| Установка и настройка средств защиты виртуальной инфраструктуры | 5 000 |
| Установка и настройка системы создания резервных копий | 5 000 |
| Установка и настройка программного обеспечения Dr.Web Desktop Security Suite | 35 000 |
| Итого | 128 000 |
-
Проведение испытаний системы защиты МИС ЦО
Проведение испытаний системы защиты МИС ЦОД сопровождается выдачей документа, подтверждающего соответствие принятых мер защиты в соответствии с классом МИС.
Проведение работ по оценке соответствия требованиям руководящих документов по защите информации в МИС ЦОД может проводить организация, имеющая лицензию на право проведения работ по защиты конфиденциальной информации. Стоимость работ приведена в таблице 10.3
Таблица 10.3 – перечень работ по аттестации информационной системы
| № п/п | Продукт | Кол-во | Цена розничная, 1 шт., рублей | Общая стоимость, рублей |
| | Предварительное обследование МИС ЦОД (изучение технологического процесса обработки и хранения защищаемой информации, анализ информационных потоков, определение состава использованных для обработки персональных данных средств). | 1 | 10000,00 | 10000,00 |
| | Анализ исходных данных, необходимых для изучения и анализа циркулирующей информации. | 1 | 5000,00 | 5000,00 |
| | Анализ организационной структуры МИС ЦОД и условий ее эксплуатации, фиксация состава технических средств, входящих в аттестуемый объект, системы ЗИ на объекте, разработанной документации и её соответствия требованиям нормативной документации по ЗИ. | 1 | 10000,00 | 10000,00 |
| | Разработка программы и методик аттестационных испытаний | 1 | 15000,00 | 15000,00 |
| | Проверка состояния организации работ и выполнения организационно-технических требований по защите информации, оценка правильности классификации МИС ЦОД, оценка уровня разработки организационно-распорядительной, проектной и эксплуатационной документации, оценка уровня подготовки кадров и распределения ответственности за выполнение требований по обеспечению безопасности информации в МИС ЦОД. | 1 | 20000,00 | 20000,00 |
| | Комплексные испытания на соответствие требованиям по защите от несанкционированного доступа (НСД) к информации, обрабатываемой в МИС ЦОД (за 1 АРМ) | 8 | 6000,00 | 48000,00 |
| | Контрольные испытания МИС ЦОД на соответствие требованиям по защите информации от несанкционированного доступа в соответствии с определенным классом защищенности от НСД для межсетевого обмена | 8 | 3000,00 | 24000,00 |
| | Подготовка отчетной документации (протоколы испытания и заключения по результатам аттестационных испытаний, аттестат соответствия) | 1 | 20000,00 | 20000,00 |
| ИТОГО: | 152 000,00 | |||
-
Ориентировочные сроки разработки и внедрения
Предпроектная стадия – разработка технического (частного технического) задания на создание системы защиты МИС ЦОД в течение двух недель.
Стадия проектирования – разработка проектов, включающая разработку технического проекта СЗИ в составе МИС ЦОД в течение трех недель.
Стадия ввода в действие СЗИ – включает установку, настройку, опытную эксплуатацию и приемо-сдаточные испытания средств защиты информации, а также аттестацию объекта информатизации на соответствие требованиям безопасности информации в течение одного месяца.
-
Приложение А. Конфигурация МИС и топология ЛВС ЦОД
Рис. А.1 – конфигурация МИС ЦОД
Рисунок А.2 – Топология локальной вычислительной сети ЦОД
-
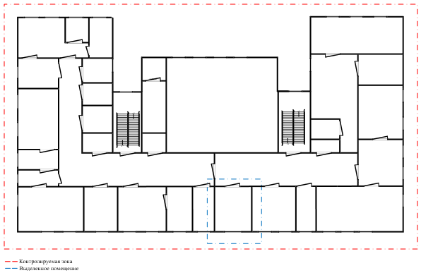
Приложение Б. Размещение элементов относительно границ контролируемой зоны
На схемах ниже представлены план этажей здания администрации поселка Ванино, расположения ЦОД и элементов МИС ЦОД относительно границ контролируемой зоны.
Рис. Б.1 – Размещение ЦОД относительно границ контролируемой зоны на третьем этаже здания Администрации.
Рис. Б.2 – Размещение технических средств и систем МИС ЦОД















