5. Технический проект (1209910), страница 9
Текст из файла (страница 9)
Рисунок Б.1 – Конфигурация ГИС «МИРС 49»
Рисунок Б.1 – Топология локальной вычислительной сети ГИС «МИРС 49»
-
Приложение В. Эскизный проект системы защиты ГИС «МИРС 49»
Рисунок В.1 – эскизный проект системы защиты ГИС «МИРС 49»
-
Приложение Г. Размещение элементов относительно границ контролируемой зоны
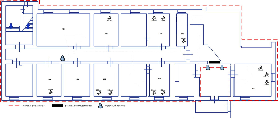
Рисунок Г.1 – 1 этаж сегмента г. Магадан
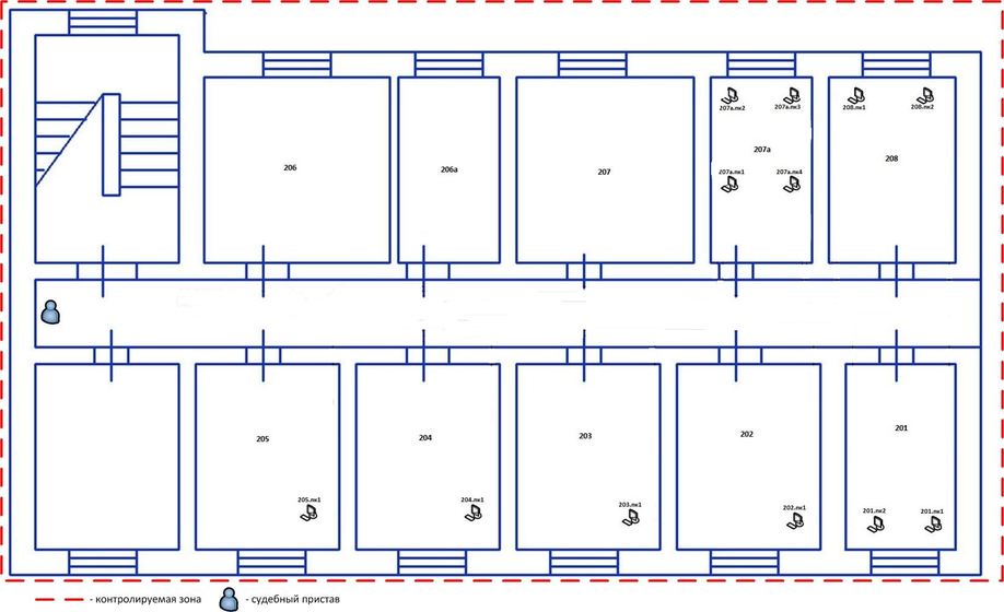
Рисунок Г.2 – 2 этаж сегмента г. Магадан
Рисунок Г.3 – 3 этаж сегмента г. Магадан
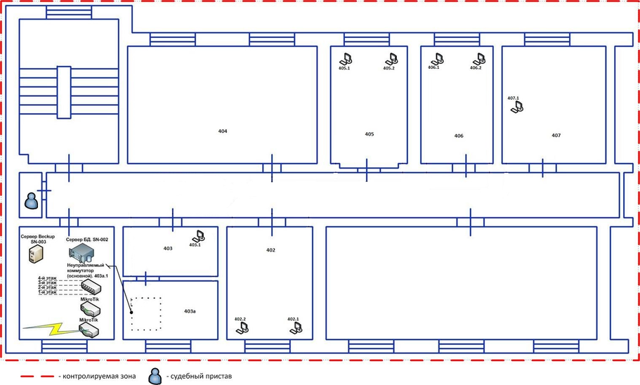
Рисунок Г.4 – 4 этаж сегмента г. Магадан
Рисунок Г.5 – сегмент Сусуманского городского округа
Рисунок Г.6 – сегмент Ягоднинского городского округа
Рисунок Г.7 – Сегмент Омсукчанского городского округа
-
-
Рисунок Г.8 – Сегмент Хасынского городского округа
-
Приложение Д. Средства защиты информации, устанавливаемые на АРМ пользователей
-
В таблице Д.1 представлен перечень АРМ пользователей, серверы и АРМ Администратора с указанием местоположения и необходимых для установки и настройки средств защиты информации.
-
Таблица Д.1 – Перечень АРМ и средств защиты
-
-
Местоположение
-
Элемент ГИС
-
Средства защиты
-
Примечание
-
Сегмент в г. Магадан
-
АРМ 101.1
-
СЗИ Dallas Lock 8.0-K,
-
СДЗ Dallas Lock,
-
Kaspersky Endpoint Protection 10
-
Параметры настройки в разделе 6.2.1
-
АРМ 101.2
-
АРМ 102.1
-
АРМ 102.2
-
АРМ 104.1
-
АРМ 106.1
-
АРМ 107.1
-
АРМ 107.2
-
АРМ 108.1
-
АРМ 110.1
-
АРМ 110.2
-
АРМ 110.3
-
АРМ 201.1
-
АРМ 201.2
-
АРМ 202.1
-
АРМ 203.1
-
АРМ 204.1
-
АРМ 205.1
-
АРМ 206.1
-
АРМ 206.2
-
АРМ 206.3
-
АРМ 206.4
-
АРМ 207а.1
-
АРМ 207а.2
-
АРМ 207а.3
-
АРМ 207а.4
-
АРМ 301.1
-
АРМ 301.2
-
АРМ 302.1
-
АРМ 303.1
-
АРМ 303.2
-
АРМ 304.1
-
АРМ 304.2
-
АРМ 305.1
-
АРМ 306.1
-
АРМ 306.2
-
АРМ 307.1
-
АРМ 308.1
-
АРМ 308.2
-
АРМ 309а.1
-
АРМ 402.1
-
АРМ 402.2
-
АРМ 405.1
-
АРМ 405.2
-
АРМ 406.1
-
АРМ 406.2
-
АРМ 407.1
-
АРМ 403.1 Администратора
-
Сервер безопасности
-
Dallas Lock 8.0-K,
-
СДЗ Dallas Lock,
-
VipNet Administrator 3.2
-
XSpider 7.8.24,
-
Kaspersky Endpoint Protection 10
-
Серверы БД
-
СЗИ Dallas Lock 8.0-K,
-
СДЗ Dallas Lock,
-
Kaspersky Endpoint Protection 10
-
Сегмент Сусуманского городского округа
-
АРМ 1
-
СЗИ Dallas Lock 8.0-K,
-
СДЗ Dallas Lock,
-
Kaspersky Endpoint Protection 10
-
АРМ 2
-
АРМ 3
-
АРМ 4
-
АРМ 5
-
Сервер БД
-
СЗИ Dallas Lock 8.0-K,
-
СДЗ Dallas Lock,
-
XSpider 7.8.24,
-
Kaspersky Endpoint Protection 10
-
Сегмент Ягоднинского городского округа
-
АРМ 1
-
СЗИ Dallas Lock 8.0-K,
-
СДЗ Dallas Lock,
-
Kaspersky Endpoint Protection 10
-
Параметры настройки в разделе 6.2.1
-
АРМ 2
-
АРМ 3
-
АРМ 4
-
АРМ 5
-
Сервер БД
-
СЗИ Dallas Lock 8.0-K,
-
СДЗ Dallas Lock,
-
XSpider 7.8.24,
-
Kaspersky Endpoint Protection 10
-
Сегмент Сусуманского городского округа
-
АРМ 1
-
СЗИ Dallas Lock 8.0-K,
-
СДЗ Dallas Lock,
-
Kaspersky Endpoint Protection 10
-
Параметры настройки в разделе 6.2.1
-
АРМ 2
-
АРМ 3
-
АРМ 4
-
АРМ 5
-
Сервер БД
-
СЗИ Dallas Lock 8.0-K,
-
СДЗ Dallas Lock,
-
XSpider 7.8.24,
-
Kaspersky Endpoint Protection 10
-
-
Приложение Е
-
Информационное письмо
-
Рисунок Е.1 – Информационное письмо
-
Лист регистрации изменений в техническом проекте
-
Номера листов
-
Всего листов в документе
-
Номер документа
-
Входящий № сопроводительного документа и дата
-
Подпись
-
Дата
-
Изм.
-
Измененных
-
Замененных
-
Новых
-
Аннулированных
-
1
-















