Тихомиров 34И (1208012), страница 4
Текст из файла (страница 4)
Рассмотрим, что произойдет, если компьютер 1 из сети А, захочет отправить пакет данных, находящемуся в сети к компьютеру №5.
В процессе отправки Компьютер №1 определит, что не входит в адресный диапазон сети, а адрес получателя пакета и тогда перешлет его на пункт промежуточной доставки – шлюз А, который является функциональным компонентом маршрутизатора.
Рисунок 1.8 - Объединение двух подсетей
Получивший пакет данных маршрутизатор, просмотрев свою таблицу маршрутизации (RoutingTable) определит, что нужно отправлять пакет через шлюз В. Когда через шлюз В пакет данных попадет в соответствующую сеть, он будет благополучно принят компьютером.
2 Организация локальной сети для КПК «Умножить»
2.1 Постановка задачи
Цель дипломного проекта состоит в планировании сети активного оборудования и в проектировании сети пассивного оборудования для КПК Умно жить.
Выполнить планирование сети КПК, состоящей из центрального офиса и двух филиалов, находящихся в разных городах.
Центральный офис располагается в одном многоэтажном здании, расположение филиалов аналогично центральному офису. Количество рабочих мест во всех офисах приблизительно одинаковое. Планировка этажей во всех зданиях также одинаковая.
Задачи планирования:
-
для сети каждого подразделения КПК выполнить вручную разработку эскизов общего плана проекта и многоуровневого проекта (в виде рисунков для каждого плана: рабочей группы, план этажа, здания.
-
выполнить построение моделей многоуровневого проекта сети корпорации с использованием инструментальных средств приложения MSVisio.
-
для каждой сети:
а) выбрать сетевую технологию и физическую топологии, конкретизировать архитектурные особенности с учетом ролевого распределение компьютеров.
б) осуществить выбор активного сетевого оборудования (рабочих станций, серверов, коммуникационного оборудования) и выписать его основные характеристики (наименование, тип, производитель, количество портов и т.п.).
в) осуществить выбор среды передачи и номинальную битовую скорость протокола для линий связи всех уровней. Длины кабельных сегментов назначить произвольно в рамках технологических ограничений (витая пара до 100 м.).
-
выбор сетевой архитектуры для компьютерной сети метод доступа, топология, тип кабельной системы;
-
выбор способа управления сетью;
-
конфигурация сетевого оборудования – количество серверов, концентраторов, сетевых принтеров;
-
управление сетевыми ресурсами и пользователями сети;
-
рассмотрение вопросов безопасности сети;
-
расчет затрат на создание сети.
2.2 Функциональная схема локальной вычислительной сети
Рассмотрим организационно-штатную структуру подразделения. Возглавляет КПК директор. В состав предприятия входит 3 филиала. В каждом филиале имеется директор. В филиале KHBтакже имеются следующие отделы: Служба безопасности, финансовый отдел, отдел займов.
Все вышесказанное иллюстрирует рисунок 2.1.
Рисунок 2.1 - Организационная структура КПК Умножить
Всего в подразделении задействовано 22 человека, каждому из которых предполагается выделить в пользование персональный компьютер.
2.3 Планирование структуры сети
Компьютерная сеть (ComputerNetwork) – это множество компьютеров, соединенных линиями связи и работающих под управлением специального программного обеспечения. Под линией связи обычно понимают совокупность технических устройств, и физической среды, обеспечивающих передачу сигналов от передатчика к приемнику. Можно создать сеть, используя беспроводные технологии, но по требованию информационной безопасности, решено отказаться от этого решения.
В модели клиент / сервер связь по сети делится на две области: сторону клиента и сторону сервера. По определению, клиент запрашивает информацию или услуги из сервера. Сервер в свою очередь, обслуживает запросы клиента. Часто каждая сторона в модели клиент / сервер может выполнять функции, как сервера, так и клиента. При создании компьютерной сети необходимо выбрать различные компоненты, определяющие, какое программное обеспечение и оборудование вы сможете использовать, формируя свою корпоративную сеть. Компьютерная сеть – это неотъемлемая часть современной деловой инфраструктуры, а корпоративная сеть – лишь одно из используемых в ней приложений и, соответственно, не должна быть единственным фактором, определяющим выбор компонентов сети.
2.4 Способы управления сетью
Каждая фирма формулирует собственные требования к конфигурации сети, определяемые характером решаемых задач. В первую очередь необходимо определить, сколько человек будут работать в сети. От этого решения, по существу, будут зависеть все последующие этапы создания сети.
Количество рабочих станций напрямую зависит от предполагаемого числа сотрудников. Другим фактором является иерархия компании. Для фирмы с горизонтальной структурой, где все сотрудники должны иметь доступ к данным друг друга, оптимальным решением является простая одноранговая сеть.
Фирме, построенной по принципу вертикальной структуры, в которой точно известно, какой сотрудник и к какой информации должен иметь доступ, следует ориентироваться на более дорогой вариант сети – с выделенным сервером. Только в такой сети существует возможность администрирования прав доступа (рисунок 2.2).
В данном случае на предприятии имеется 22 рабочих станции, которые и требуется объединить в локальную сеть. Причем они объединены в следующие группы:
– директор КПК – 1 рабочая станция;
– директора филиалов – 2 рабочих станции;
– филиал KHB – 3 рабочих станции;
– филиал KMS – 2 рабочих станции;
– филиал VDK – 3 рабочих станции;
– финансовый отдел – 4 рабочих станции;
– служба безопасности – 4 рабочих станции;
– отдел займов – 3 рабочих станции.
Рисунок 2.2 – Выбор типа сети
Следуя из схемы выбора типа сети, можно решить, что в данном случае требуется установка сервера, так как мы имеем вертикальную структуру предприятия, то есть разграниченный доступ к информации.
Одним из главных этапов планирования является создание предварительной схемы. При этом в зависимости от типа сети возникает вопрос об ограничении длины кабельного сегмета. Это может быть несущественно для небольшого офиса, однако если сеть охватывает несколько этажей здания, проблема предстает в совершенно ином свете. В таком случае необходима установка дополнительных репитеров (repeater) или коммутаторов.
В ситуации с нашей организацией вся сеть будет располагаться в разных городах. Необходимо будет по средствам маршрутизации и VPNтуннелей, объединить их в одну локальную сеть.
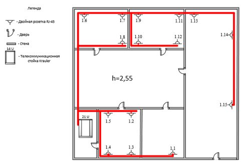
2.5 План помещений
План помещения (рисунок 2.3) влияет на выбор топологии сети значительно сильнее, чем это может показаться на первый взгляд .
Рисунок 2.3 - План помещения KHB
Рисунок 2.4 - План помещения KMS
Рисунок 2.5 - План помещения VDK
Сервер будет устанавливаться в центральном филиале – KHB.
2.6 Размещение сервера
В отличие от установки одноранговой сети, при построении ЛВС с сервером возникает еще один вопрос – где лучше всего установить сервер.
На выбор места влияет несколько факторов:
-
из-за высокого уровня шума сервер желательно установить отдельно от остальных рабочих станций;
-
необходимо обеспечить постоянный доступ к серверу для технического обслуживания;
-
по соображениям защиты информации требуется ограничить доступ к серверу.
Таким образом, было выбрано единственное, возможное место установки сервера, не требующее перестройки внутренних помещений. Сервер было решено установить в помещении с соответствующим названием, так, как только это помещение удовлетворяет требованиям, то есть уровень шума в помещении кассы минимален, помещение изолированно от других, контролируется службой безопасности, следовательно, доступ к серверу будет ограничен (рис 2.3). В то же время более удобно проводить обслуживание сервера, так как при установке сервера в кабинете директора или зам. директора обслуживание будет затрудненно в связи с выполнением ими своих служебных обязанностей, а в кабинете финансового и клиентского отдела, доступ к серверу посторонних лиц не сильно затруднен. Размещение же сервера в других кабинетах не отвечает ни одному условию. Для остальных филиалов, установка серверной комнаты не предусмотрено.
2.7 Сетевая архитектура
Сетевая архитектура – это сочетание топологии, метода доступа, стандартов, необходимых для создания работоспособной сети.
Выбор топологии определяется, в частности, планировкой помещения, в котором разворачивается ЛВС. Кроме того, большое значение имеют затраты на приобретение и установку сетевого оборудования, что является важным вопросом для фирмы, разброс цен здесь также достаточно велик.
Топология типа «звезда» представляет собой более производительную структуру, каждый компьютер, в том числе и сервер, соединяется отдельным сегментом кабеля с центральным концентратором или коммутатором (HAB).
Основным преимуществом такой сети является её устойчивость к сбоям, возникающим вследствие неполадок на отдельных ПК или из-за повреждения сетевого кабеля.
Важнейшей характеристикой обмена информацией в локальных сетях являются так называемые методы доступа (accessmethods), регламентирующие порядок, в котором рабочая станция получает доступ к сетевым ресурсам и может обмениваться данными.
За аббревиатурой CSMA/CD скрывается английское выражение «Carrier Sense Multiple Accesswith Collision Detection» (коллективный доступ с контролем несущей и обнаружением коллизий). С помощью данного метода все компьютеры получают равноправный доступ в сеть. Каждая рабочая станция перед началом передачи данных проверяет, свободен ли канал. По окончании передачи каждая рабочая станция проверяет, достиг ли адресата, отправленный пакет данных. Если ответ отрицательный, узел производит повторный цикл передачи / контроля приема данных и так до тех пор, пока не получит сообщение об успешном приеме информации адресатом.
Так как этот метод хорошо зарекомендовал себя именно в малых и средних сетях, для предприятия данный метод нам подойдет. К тому же сетевая архитектура FastEthernet, которую и будет использовать сеть предприятия, использует именно этот метод доступа.
Спецификацию Ethernet в конце семидесятых годов предложила компания XeroxCorporation. Позднее к этому проекту присоединились компании DigitalEquipmentCorporation (DEC) и IntelCorporation. В 1982 году была опубликована спецификация на Ethernet версии 2.0. На базе Ethernet институтом IEEE был разработан стандарт IEEE 802.3.
В настоящее время технология, применяющая кабель на основе витой пары (100Base–TХ, Стандарт FastEthernet IEEE 802.3u), является наиболее популярной. Такой кабель не вызывает трудностей при прокладке.
Сеть на основе витой пары, в отличие от тонкого и толстого коаксиала, строится по топологии звезда. Чтобы построить сеть по звездообразной топологии, требуется большее количество кабеля (но цена витой пары не велика). Подобная схема имеет и неоценимое преимущество – высокую отказоустойчивость. Выход из строя одной или нескольких рабочих станций не приводит к отказу всей системы. Правда если из строя выйдет хаб, его отказ затронет все подключенные через него устройства.
Еще одним преимуществом данного варианта является простота расширения сети, поскольку при использовании дополнительных хабов (до четырех последовательно) появляется возможность подключения большого количества рабочих станций (до 1024). При применении неэкранированной витой пары (UTP) длина сегмента между концентратором и рабочей станцией не должна превышать 100 метров (рекомендуется 90 м.), чего не наблюдается в предприятии.
Выбранная топология КПК «Умножить» представлена в приложении А.
2.8 Сетевые ресурсы
Следующим важным аспектом планирования сети является совместное использование сетевых ресурсов (принтеров, факсов, модемов).
Перечисленные ресурсы могут использоваться как в одноранговых сетях, так и в сетях с выделенным сервером. Однако в случае одноранговой сети сразу выявляются её недостатки. Чтобы работать с перечисленными компонентами, их нужно установить на рабочую станцию или подключить к ней периферийные устройства. При отключении этой станции все компоненты и соответствующие службы становятся недоступными для коллективного пользования.
В сетях с сервером такой компьютер существует по определению. Сетевой сервер никогда не выключается, если не считать коротких остановок для технического обслуживания. Таким образом, обеспечивается круглосуточный доступ рабочих станций к сетевой периферии.
На предприятии имеется десять принтеров: в каждом обособленном помещении. Администрация пошла на расходы для создания максимально комфортных условий работы коллектива.















