Раздатка (1208009)
Текст из файла
Министерство транспорта Российской Федерации
Федеральное агентство железнодорожного транспорта
федеральное государственное бюджетное образовательное учреждение
высшего образования
«ДАЛЬНЕВОСТОЧНЫЙ ГОСУДАРСТВЕННЫЙ УНИВЕРСИТЕТ
ПУТЕЙ СООБЩЕНИЯ»
Кафедра «Финансы и бухгалтерский учет»
К ЗАЩИТЕ ДОПУСТИТЬ
Заведующий кафедрой
«Финансы и бухгалтерский учет»
____М.А. Немчанинова
«____»________20___г.
ПРОЕКТИРОВАНИЕ КОРПОРАТИВНОЙ СЕТИ КПК «Умножить»
Графический материал выпускной квалификационной работы
ВКР 38.03.05. ПЗ – 34И
| Студент гр. 34И | К.О. Тихомиров | |
| Руководитель старший преподаватель | С.А. Приходько | |
| Нормоконтроль старший преподаватель | О.И. Карус |
Хабаровск – 2017
34И
Рисунок 1.4 - Топология типа «звезда» локальных сетей
Тихомиров К.О.
2017
Лист 1
34И
Рисунок 2.1 - Организационная структура КПК Умножить
Тихомиров К.О.
2017
Лист 2
34И
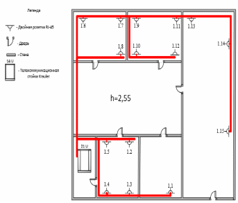
Рисунок 2.3 - План помещения KHB
Тихомиров К.О.
2017
Лист 3
34И
Таблица 3.2 Стоимость ПО
Тихомиров К.О.
| Программное обеспечение | Цена (руб) | Кол-во | Стоимость (руб) |
| Windows Server 2016 Essentials | 52920,00 | 1 | 52920,00 |
| 2016 Single OLP C User CAL | 2154,00 | 22 | 47388,00 |
| Remote Desktop Services CAL 2016. Лицензия OpenLicensePack Single Level C User | 7458,00 | 22 | 164076,00 |
| Microsoft Windows 10 PRO | 8500,00 | 22 | 187000,00 |
| Microsoft Office 2013 Russian | 2500,00 | 22 | 55000,00 |
| Лицензия на сервер 1С предприятие 8.3 | 86400,00 | 1 | 86400,00 |
| Лицензия на 20 пользователей | 70000,00 | 1 | 70000,00 |
| Лицензия на 1 пользователя | 6300,00 | 2 | 12600,00 |
| Конфигурация 1С: Бухгалтерия | 13000,00 | 1 | 13000,00 |
| Всего: | 688384,00 |
2017
Лист 4
34И
Таблица 3.3 - Расчет затрат на приобретение оборудования
Тихомиров К.О.
| Наименование оргтехники | Количество шт. | Цена за ед., руб. | Сумма, руб. |
| СерверHPDL100 1U / IntelXeon E5-1650V4 (3.60GHz, 6C/12T, 15Mb, 140W) / 2xDDR4 16GB PC17000 ECC REG (up8) / 2xSDD 400Gb SATA / 1xHDD 4Tb SATA 7200rpm / 2xGbLAN / IPMI / VGA / 2x400W | 1 | 256000,00 | 236000,00 |
| ИБП Ippon Smart Winner 2000 | 1 | 21300,00 | 21300,00 |
| КоммутаторMikroTikCRS125-24G-1S-IN | 1 | 7835,00 | 7835,00 |
| Маршрутизатор MikroTikRB2011iLS-IN | 3 | 6840,00 | 20520,00 |
| UTP 4 пары solid кат. 5e, PCnet, (бухта 305 м.) | 3 | 3450,00 | 10350,00 |
| Патч-корд UTP, Категория 5е, 2 метра | 22 | 60,00 | 1320,00 |
| Короб 20*15мм., с крышкой (2м) U060806020 | 26 | 26,00 | 676,00 |
| Розетка внешн., Категория 5е1xRJ-45 UTP | 22 | 100,00 | 2200,00 |
| Патч панель KRAULER 19" кат.5e 1U 24 порта RJ45 | 1 | 1500,00 | 1500,00 |
| Стойка двухрамная KRAULER KRR-042 19" 42U | 1 | 10300,00 | 10300,00 |
| Кабельные стяжки (100 шт в упаковке) | 1 | 230,00 | 230,00 |
| Итого: | 312231,00 | ||
2017
Лист 5
34И
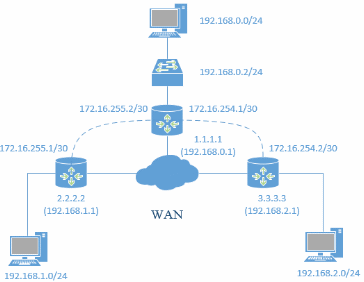
Приложение А. Топология сети
Тихомиров К.О.
2017
Лист 6
Характеристики
Тип файла документ
Документы такого типа открываются такими программами, как Microsoft Office Word на компьютерах Windows, Apple Pages на компьютерах Mac, Open Office - бесплатная альтернатива на различных платформах, в том числе Linux. Наиболее простым и современным решением будут Google документы, так как открываются онлайн без скачивания прямо в браузере на любой платформе. Существуют российские качественные аналоги, например от Яндекса.
Будьте внимательны на мобильных устройствах, так как там используются упрощённый функционал даже в официальном приложении от Microsoft, поэтому для просмотра скачивайте PDF-версию. А если нужно редактировать файл, то используйте оригинальный файл.
Файлы такого типа обычно разбиты на страницы, а текст может быть форматированным (жирный, курсив, выбор шрифта, таблицы и т.п.), а также в него можно добавлять изображения. Формат идеально подходит для рефератов, докладов и РПЗ курсовых проектов, которые необходимо распечатать. Кстати перед печатью также сохраняйте файл в PDF, так как принтер может начудить со шрифтами.















