диплом (1198149), страница 2
Текст из файла (страница 2)
Перед сваркой металлических сосудов (цистерны, баки и т. п.), в которых находились жидкое топливо, ЛВЖ, ГЖ или горючие газы, их необходимо очистить от остатков жидкости с последующей промывкой горячей водой с каустической содой, затем пропарить, просушить и провентилировать, после чего провести лабораторный анализ воздушной среды в них. Во всех случаях эти сосуды должны быть отключены от коммуникации заглушками. Сварку следует производить при открытых люках, лазах, пробках и при действующей переносной вентиляции. Запрещается приступать к работе при неисправной сварочной аппаратуре, производить работы на свежеокрашенных конструкциях и изделиях, пользоваться промасленной спецодеждой и рукавицами, хранить в сварочных кабинах одежду, горючие жидкости и другие легкосгораемые предметы и материалы
Постоянные электросварочные работы проводят в специальных, отведенных для этого вентилируемых помещениях, сооружениях из несгораемых материалов. Место для проведения работ ограждается сплошной перегородкой из несгораемого материала высотой не менее 2,5 м. Пол в помещении должен быть несгораемый.
Установка для ручной электросварки оборудуется выключателем, плавкими предохранителями или автоматом в цепи питания, а также амперметром или шкалой на регуляторе сварочного тока. Это необходимо для предотвращения перегрузки проводов и обмоток сварочного агрегата.
Большую пожарную опасность представляют работы, выполняемые в цехах и на участках окраски и пропитки изоляции с использованием материалов, содержащих ЛВЖ и ГЖ.
Во время окраски деталей и изделий необходимо быстро удалять из зоны работы образующиеся пожаро и взрывоопасные смеси. Для этого предусматривается вытяжная вентиляция камер окраски с устройством водяной завесы, ограничивающей поступление горючих смесей в вентиляционную систему.
Окрасочные и сушильные камеры оборудуются устройствами автоматического пожаротушения.
Краскозаготовительные отделения следует размещать в изолированном помещении, оборудованном вентиляцией и имеющем отдельный выход наружу.
Применяемые для окраски и пропитки лаки, краски и растворители следует хранить в раздаточной кладовой цеха в металлической герметичной посуде или в заводской упаковке в количествах, не превышающих суточной потребности. Кладовая оборудуется у наружной стены здания.
Ванны для окраски и пропитки изделий способом погружения оборудуются местной вытяжной вентиляцией (бортовыми отсосами). Если объем ванны превышает 0,5 м3, то она устанавливается в отдельной вентилируемой камере. На случай пожара предусматривается слив жидкости из ванны в резервуар по трубопроводу.
В процессе окраски методом пневматического распыления возможна электростатическая зарядка аппаратуры, что представляет опасность искрения при разрядах на землю. От искровых разрядов возможно воспламенение пожаро и взрывоопасных смесей, поэтому во избежание накопления электрических зарядов аппаратуру для распыления краски заземляют.
Растворители, применяемые для промывки кистей, шлангов и другого оборудования, следует хранить в раздаточной кладовой в количестве не более сменной потребности. Распылители и шланги, поступающие в кладовую после окончания работы, должны быть очищены от остатков краски и лака. Кисти, щетки, краскораспылители, тряпки после работы надо хранить в закрытой посуде под вытяжкой или в вентилируемых закрытых шкафах.
Краска, оседающая в процессе работы на стенках воздуховодов, камер и другого оборудования, удаляется регулярно по мере ее накопления. Собранные отходы краски надо немедленно удалять из цеха, поскольку они пожароопасны.
Окрашенные изделия помещают в сушильную камеру только после стекания лишнего лакокрасочного материала. Вблизи сушилки не должны находиться какие-либо сгораемые материалы или предметы. В процессе сушки окрашенных деталей и изделий необходимо соблюдать правильный режим, не допускать работу сушильной печи с неисправными электронагревателями и терморегуляторами.
Запрещается очистка рабочих мест и инструмента с помощью ЛВЖ и ГЖ и с применением скребков, от которых при работе может возникнуть искрение, приводящее к вспышке паров этих жидкостей.
В деревообрабатывающих цехах особую пожарную опасность представляют отходы производства - стружка и пыль. Поэтому необходима систематическая очистка помещения и оборудования от древесной пыли, стружки и других отходов не реже 1 раза в смену. Очистка строительных конструкций и светильников от пыли должна производиться не реже 1 раза в неделю.
Трубы парового обогрева сушильных камер должны быть гладкими, что облегчает очистку их от пыли.
Клееварки оборудуются в отдельных помещениях или специально отведенном месте. Они должны иметь паровой подогрев или подогрев закрытыми электронагревателями.
Для хранения лесоматериалов в цехе отводится специальная площадка. Их запасы не должны превышать односменной потребности.
Значительную пожарную опасность представляют промышленные печи, применяемые при обработке металлов и работающие на жидком топливе. Во избежание взрыва от скопившихся газов печи, работающие на жидком и газовом топливе, перед розжигом должны быть провентилированы механической вентиляцией.
1.3 Технические характеристики цеха по производству мебели
Противопожарная защита предприятия – это комплекс мероприятий, направленный в первую очередь на предупреждение пожара. А случае если пожар все таки возник – то на скорейшую ликвидацию с минимальным ущербом для людей и имущества.
Для того что бы определить пожароопасные ситуации производственного цеха необходимо проанализировать опасности каждого технологического процесса и предусмотреть выбор наиболее опасных ситуаций, при возникновении которых может возникнуть опасность для людей. К пожароопасным ситуациям не относятся ситуации, в результате которых не возникает опасность для жизни и здоровья людей. Эти ситуации не учитываются при расчете пожарного риска.
Для каждой из ситуаций должно быть произведено описание причин возникновения и их развития, следовательно, необходимо определить события, реализация которых может привести к образованию горючей среды и появлению источника зажигания.
Во время изучения технологии производства определяются станки (оборудование), в которых содержатся ЛВЖ и ГЖ, горючие газы и ТГВ, устанавливается химический состав веществ и их количество, применяемое при производстве. К пожароопасным веществам можно отнести такие вещества, свойства которых тем или иным образом способствуют возникновению или развитию пожара.
Цех по производству мебели ООО «Фартуна» располагается по адресу г. Хабаровск, ул. Горького, 61 на территории производственной базы. Водоснабжение в здание осуществляется от городской сети, система отопления – центральная, теплоноситель – горячая вода, вентиляция – естественная, сброс канализации осуществляется в городскую канализационную сеть, к зданию подведена линия электропередач.
Согласно ст. 32 [1] здание относится к классу функциональной пожарной опасности Ф 5.1 (производственные здания, сооружения, производственные и лабораторные помещения, мастерские).
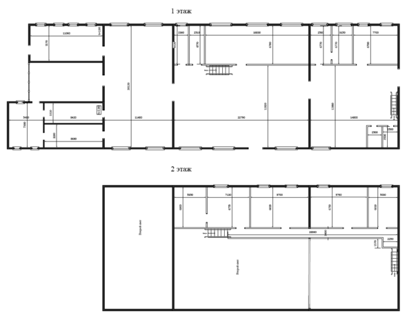
Здание имеет прямоугольную форму, представляет собой систему простой геометрической конфигурации (рисунок 1.1).
Рисунок 1.1 План размещения помещений
Первый этаж разделен на 16 помещений.
Помещение №1 оборудовано станком SCM Tech 80 Plus. На этом станкеосуществляют фрезеровку и раскройку ДСП. Станок оборудован системой местной вентиляции и двумя агрегатами для улавливания стружки и пыли. Для обслуживания данного станка необходим один человек.
Помещение №2 предназначено для погрузки и выгрузки рабочих материалов. Постоянного пребывания людей в данном помещении нет.
Помещение №3 предназначено для офиса склада. В офисе располагаются столы, стулья, диваны, оргтехника. В данном помещении постоянно находится заведующий складом. Так же в данном помещении находится пульт пожарно-охранной сигнализации.
Помещения №4 и №5 – склады фурнитуры и кромки.
Помещение №6 – обработка ДСП, сборка и упаковка готовой продукции. В помещении находится 5 станков. SCM Tech 80 Plus для раскройки ДСП, оборудованный системой местной вентиляции и пятью агрегатами для улавливания стружки и пыли; Borino System 23 и Borino System 29 для сверления отверстий в заготовках; фрезерный станок с ЧПУ Deaver 25 AVLT8, оборудованный системой местной вентиляции и двумя агрегатами для улавливания стружки и пыли; станок для упаковки готовой продукции. Для обслуживания каждого станка необходим один сотрудник. Так же в данном помещении находится стол, на котором мастер вручную собирает мебель.
Помещения №7 и №8 – помещение для приема пищи и уборная для сотрудников предприятия.
В помещении №9 находится печь для разогрева искусственного камня Staron. Во время работы печи для ее обслуживания необходим один сотрудник.
Помещение №10 используется как склад готовой продукции и в обслуживании не нуждается.
Помещение №11 используется для хранения и смешивания лаков и красок. Склад оборудован электронными весами.
Помещение №12 предназначено для шлифовки и обработки заготовок из искусственного камня. В данном помещении находится 2 шлифовальные машинки и два сотрудника
Помещение №13 оборудовано станком для раскройки пленки. Пленка используется для упаковки и транспортировки готовой продукции предприятия. Для работы на данном станке необходим один человек.
В помещении №14 располагаются два станка. Станок Laminator для ламинирования стекла и станок Cehisa EP-7 для облицовки готовой продукции.
Помещения №15 и №16 предназначены для пневматической и ручной покраски соответственно. В каждом помещении находится по одному человеку.
Первый этаж имеет четыре выхода на прилегающую территорию, которые расположены рассредоточено.
На втором этаже находятся пять офисов. В них располагается офисная техника, мебель, серверные шкафы, документы, на окнах - жалюзи
Эвакуация со второго этажа может осуществляться по двум открытым лестницам второго типа, состоящим из одного марша, которые ведут на первый этаж. Характеристики здания и его конструктивные особенности представлены в таблицах ниже.
Таблица 1.1
Характеристика здания
| № п/п | Характеристика помещений, мест для размещения людей | Условные обозначения | Значение |
| 1 | Количество выходов из помещения на первом этаже здания | шт. | 4 |
| 2 | Количество выходов из помещения на втором этаже здания | шт. | 2 |
| 3 | Высота помещений | м | 2,80-6,0 |
| 4 | Площадь помещений первого этажа | м2 | 1106,39 |
| 5 | Площадь помещений второго этажа | м2 | 253,2 |
| 6 | Ширина наружных дверных проемов | м | не менее 0,8 |
| 7 | Количество людей в помещениях | чел. | 26 |
Таблица 1.2
Конструктивные особенности здания
| № п/п | Характеристика конструкций | Материал |
| 1 | Фундамент | Железобетонный ленточный |
| 2 | Наружные и внутренние стены, перегородки | Кирпичные |
Продолжение таблицы 1.2
| № п/п | Характеристика конструкций | Материал |
| 3 | Перекрытия | Железобетонные плиты |
| 4 | Крыша | Совмещенная рулонная профлист |
| 5 | Полы | Бетонные, дощатые |
| 6 | Внутренняя отделка стен | Штукатурка |
Степень огнестойкости здания - II. Класс конструктивной пожарной опасности - С0.
Класс пожарной опасности строительных конструкций:
-
несущих элементов и перекрытий - К0
-
наружных стен – К0
Пожарная нагрузка на первом этаже – заготовки и готовые изделия из древесины, ДСП и ЛДСП, древесная стружка, производственные станки, агрегаты для улавливания стружки и пыли, лаки, краски, материалы упаковки (картон, бумага, пластик).
Пожарная нагрузка на втором этаже – мебель, оргтехника, бумага, краска образующая декоративный слой на поверхности конструкций, жалюзи.
Конструктивную пожарную нагрузку в здании составляют электропроводка, дверные и оконные проемы. Проводка проложена двумя способами: скрыто и открыто. Скрытая располагается в штукатурке и пустотах здания, образованных конструкциями из негорючих материалов, в вентиляционных камерах и технических помещениях, а открытая – по конструкциям из негорючих материалов.
2 Определение категории помещений и здания по взрывопожароопасности
В соответствии сo ст. 27 [1] выясним, к какой категории относится производственное предприятие. Для этого нужно определить, к какой категории относится каждое помещение в здании и по этой совокупности определить категорию самого здания.
В здании находятся помещения, в которых находятся и обращаются ЛВЖ. Это помещения №11, №15 и №16. Необходимо определить температуру вспышки, находящихся в этих помещениях ЛВЖ. В соответствии с [5]4 температура вспышки технического ацетона равняется минус 18 градусов.















