диплом рудюк (1195645), страница 7
Текст из файла (страница 7)
Технологические трубопроводы на станции выполняются стальными. Диаметры труб назначаются в зависимости от рекомендаций скорости движения воды в них гидравлическим расчетом, который приводится в табличной форме (таблица 5.4). Гидравлический расчет производится по схеме (рисунки 5.4, 5.5). При расчете коммуникаций между сооружениями к расчету принимается самый протяженный трубопровод, соединяющий наиболее удаленные друг от друга сооружения – расчетная ветвь.
Р
исунок 5. - Схема первого этажа зала фильтров.
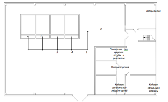
Рисунок 5. - Схема второго этажа зала фильтров
Таблица 5.4 – Гидравлический расчет технологических трубопроводов фильтров
| Номер | Длина | Диаметр | Расход | Скорость | Гидравл. | ∑ξуч | Потери напора, м | |||
| Участка | l, м | d, мм | q, л/с | V, м/с | уклон i | I L | ∑ξуч∙v2/2g | hwуч | ||
| От НС-I к фильтрам | ||||||||||
| 1-2 | ||||||||||
| 2-3 | 6,94 | 350 | 108 | 1,04 | 0,00429 | 0,5 | 0,030 | 0,028 | 0,057 | |
| 3-4 | 2,8 | 350 | 72 | 0,78 | 0,00261 | 1,5 | 0,007 | 0,047 | 0,054 | |
| 4-5 | 2,8 | 250 | 36 | 1,02 | 0,00654 | 1,5 | 0,018 | 0,080 | 0,098 | |
| 5-6 | 5,3 | 150 | 36 | 1,38 | 0,0223 | 3,5 | 0,118 | 0,340 | 0,458 | |
| Итого | 0,667 | |||||||||
| Отвод фильтрата к РЧВ | ||||||||||
| 7-8 | 7,2 | 200 | 36 | 1,05 | 0,0092 | 4 | 0,066 | 0,225 | 0,291 | |
| 8-9 | 2,9 | 250 | 72 | 1,36 | 0,0113 | 1,5 | 0,033 | 0,142 | 0,174 | |
| 9-10 | 2,9 | 350 | 108 | 1,04 | 0,00444 | 1,5 | 0,013 | 0,083 | 0,096 | |
| 10-11 | 23,4 | 350 | 108 | 1,04 | 0,00444 | 0,5 | 0,104 | 0,028 | 0,131 | |
| Итого | 0,693 | |||||||||
| Подача промывной воды от РЧВ на фильтры | ||||||||||
| 12-13 | 17 | 400 | 100,8 | 0,758 | 0,00207 | 0,1 | 0,035 | 0,003 | 0,038 | |
| 13-14 | 2,3 | 400 | 100,8 | 0,758 | 0,00207 | 0,35 | 0,005 | 0,010 | 0,015 | |
| 14-15 | 4,5 | 400 | 100,8 | 0,758 | 0,00207 | 0,6 | 0,009 | 0,018 | 0,027 | |
| 15-16 | 3,7 | 400 | 100,8 | 0,758 | 0,00207 | 2 | 0,008 | 0,059 | 0,066 | |
| 16-17 | 11,5 | 400 | 100,8 | 0,758 | 0,00207 | 5 | 0,024 | 0,147 | 0,170 | |
| Итого | 0,317 | |||||||||
| Отвод грязной промывной воды к резервуару-отстойнику | ||||||||||
| 18-19 | 31,3 | 400 | 100,8 | 0,758 | 0,00207 | 5 | 0,065 | 0,147 | 0,211 | |
Полученные в результате гидравлического расчета потери напора на участке меньше ранее принятых (пункт 5.2), поэтому уточнение высотной схемы не требуется.
Этажи вспомогательных помещений и зала фильтров соединяются самостоятельными лестницами, размещенными в удобных для эксплуатации местах.
В конструктивном отношении здание станции водоочистки проектируется каркасным. Колонны квадратного сечения 30х30 см. Шаг колонны прямоугольного в плане здания принимается 6 м. Пролет определяется стандартным размером балок и ферм перекрытия и принимается 18 м. Стены выполняются железобетонными. Здание двухэтажное.
Здание станции очистки оборудуется приточно-вытяжной вентиляцией,естественным иискусственным освещением,отоплением,хозяйственно-питьевым водопроводом, хозяйственно-бытовой канализацией.
Устраиваются следующие вспомогательные помещения:
-
лаборатория
-
помещение для хранения посуды и реактивов
-
операторская
-
кабинет заведующего лабораторией
-
кабинет начальника станции
-
средоварочная и моечная
-
весовая
-
щитовая
-
душевая
-
санузел
-
помещения для трансформаторов (2 шт.)
6 Подбор оборудования обеззараживания.
Метод очищения воды с помощью ультрафиолетовых лучей относится к очень результативным и удобным способам. Имеется одно немаловажное качество: в ходе очистительных работ вода не изменяет своих физических и химических показателей даже при воздействии высоких доз излучения.
- высокий показатель по уничтожению вредоносных бактерий, имеющихся в воде;
- метод является экологически безопасным для жизни и здоровья человека;
- экономичная цена на монтаж системы ультрафиолетовой очистки;
- в процессе эксплуатации не требуется больших финансовых затрат;
- легкость применения и ухода
7 Проектирование и расчет насосной станции второго подъема
Насосная станция второго подъема предназначена для подачи очищенной воды в водоводы и распределительную сеть, а также для обеспечения подачи воды на нужды пожаротушения
Режим работы насосной станции двухступенчатый. В первую ступень работает один насос Д 320-50, во вторую работают параллельно два насоса Д320-50. В качестве пожарного принят Д 1000-40.
На рисунке 7.1 представлены характеристики сети, совмещенные с характеристиками насосов.
1 – характеристика работы насоса Д 320-50; 2 – характеристика параллельной работы двух насосов Д 320-50; характеристика работы пожарного насоса Д 1000-40; 4 – нормальнаяхарактеристика сети; 5 – характеристика сети при аварии; 6 – характеристика сети при пожаре.
Рисунок 7.1 – Характеристики сети, совмещенные с характеристиками насосов.
7.2 Установка насосов
Насосы и электрооборудование устанавливаются на фундаментной плите заводского изготовления. Расстояние от края рамы до крепежных болтов принимаем 50 мм. В плите сопряжения фундаментов с полом устраиваем осадочные швы. Окончательно высоту фундамента всех агрегатов определяем после составления схемы коммуникаций внутри насосной станции. Основные параметры насосов находятся на рисунке 7.1 и в таблице 7.1.
Таблица 7.1 – Основные параметры насосов














