ПЗ_ГОТОВ ПОЛНОСТЬЮ (1194735), страница 12
Текст из файла (страница 12)
- осмотр и замер габарита опор;
- осмотр переходов линий электропередачи через контактную сеть;
- осмотр оборудования пунктов группировки;
- осмотр заградительных щитов (вертикальных).
При работах со снятием напряжения и заземлением, а также вблизи частей, которые находятся под напряжением, запрещено:
- работать в согнутом положении, если расстояние от работающего при его выпрямлении до электроопасных элементов окажется менее 0,8 м;
- работать при наличии электроопасных элементов с двух сторон на расстоянии менее 2 м от работающего;
- работать над электроопасными элементами, не имеющими ограждений;
- выполнять работы на расстоянии менее 20,0 м от места секционирования
Бригада должна быть обеспечена заземляющей штангой для выполнения работы под напряжением и вблизи элементов (частей), которые находятся под напряжением.
-
Организационные мероприятия по обеспечению техники безопасности
Следующие мероприятиями по обеспечению безопасности работающих являются организационными:
- выдача наряда или распоряжения;
- инструктаж выдающим наряд производителя работ;
- выдача энергодиспетчером (ЭЧЦ) разрешения (приказа, согласования) на подготовку места работы;
- инструктаж производителем работ бригады и допуск к работе;
- надзор во время работы;
- оформление перерывов в работе, переходов на другое рабочее место, окончание работы.
Любые работы на контактной сети, воздушной линии и связанном с ними оборудовании должны выполняться по распоряжениям, нарядам. Только после получения приказа, согласования от ЭЧЦ можно приступить к подготовке места работ по наряду или распоряжению.
До допуска к работам по наряду или распоряжению электромонтер обязан получить инструктаж непосредственно на месте работ, в этом инструктаже производитель работ должен указать:
- содержание предстоящих работ;
- условия производства работ (их категорию, технологию);
- распределение обязанностей между членами бригады;
- точные границы зоны и места работы для каждого из членов бригады;
- расположение поблизости нейтральных частей и токоведущих частей, остающихся под рабочим или наведенным напряжением (в случае работ вблизи элементов находящихся под напряжением или со снятием напряжения и заземлением); а также расположение заземленных и нейтральных частей (при работах под напряжением);
- места прохода воздушных линий с другим потенциалом и другим родом тока (воздушных линий освещения, телеуправления и т.п.);
- места секционирования;
- места, на которых запрещается работа, а также опасные места;
- места установки заземляющих штанг с выделением специальных лиц для их установки;
- особенности в ограждении места работы;
- порядок перемещения в зоне работы;
- порядок применения дрезины или автомотрисы, изолирующей съемной вышки, механизмов.
После проведения указанного инструктажа все члены бригады должны расписаться в специальной графе наряда.
При работах по распоряжению оформление инструктажа не требуется.
При работах со снятием напряжения и заземлением инструктаж следует проводить до установки первой заземляющей штанги. Расписываться за него в наряде нужно после проверки производителем работ правильности установки заземляющих штанг и допуска к работе.
Допуск к работам осуществляется производителем работ после выполнения всех необходимых мероприятий по обеспечению безопасности работающих непосредственно в зоне (на месте) проведения работ.
Производитель работ должен осуществлять надзор за работающими. В случае, если работы выполняются по единому наряду двумя или большим числом групп работников, в каждой группе должен быть назначен отдельный наблюдающий при выписке наряда. В этом случае производитель работ должен осуществлять общее руководство работами и контролировать выполнение требований безопасности всеми группами.
Если наблюдающий выявил нарушение требований безопасности при выполнении работ, он имеет право приостановить дальнейшее выполнение работ и поставить в известность об этом производителя работ. Работники отстраненные наблюдающим от работ, могут продолжить работу по данному наряду только после проведения повторного инструктажа, и повторного допуска производителем работ с соответствующей подписью в наряде.
Наблюдающему запрещяется:
- совмещать надзор с какой-либо работой;
- отвлекаться от надзора за работающими;
- передавать свои обязанности другому работнику;
- отлучаться с места работы.
Указания наблюдающего в части соблюдения требований инструкций и инструктажа обязательны для всех работающих.
После перерыва или после перехода на новое место приступать к работе можно лишь после инструктажа бригады, проведенного производителем работ, и после подписи всех членов бригады и производителя работ в таблице наряда "Рабочее место подготовлено". О начале и окончании всех работ на участке железной дороги должен быть уведомлен энергодиспетчер.
Следующие мероприятия по обеспечению безопасности работающих являются техническими :
- закрытие путей перегонов и станций для движения поездов, выдача предупреждений на поезда и ограждение места работ;
- снятие рабочего напряжения и принятие мер против ошибочной подачи его на место работы;
- проверка отсутствия напряжения;
- наложение заземлений, шунтирующих штанг или перемычек, включение разъединителей;
- освещение места работы в темное время суток.
-
Расчёты напряженности электрического поля контактной сети переменного тока
Поскольку основным вредным производственным фактором при работах на контактной сети является электрическое поле, произведем расчет напряженностей этого поля в разных точках пространства и сделаем заключение о возможности и длительности пребывания электромонтеров на определенных расстояниях от контактной подвески.
Рассматриваемый в настоящей работе участок железной дороги является двухпутным участком с подвеской ПБСМ-95+МФ-100. Соответственно, проведём расчёты напряженностей электрического поля контактной сети переменного тока двухпутного участка с подвеской ПБСМ-95+МФ-100 для следующих условий работ (таблица 6.1) характерных для рассматриваемого участка. Методика расчетов представлена в [19].
Таблица 5.1 – Условия работ, необходимые для расчетов
| Напряжение контактной сети, кВ | 25 |
| Высота подвеса контактного провода, hк м. | 5,8 |
| Радиусы контактного провода / несущего троса, мм | 5,8 / 6,2 мм |
| Среднее расстояние между КП и НТ, аКТ, м | 1,2 |
| Расстояние между осями путей d, м | 4,3 |
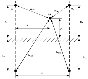
Изобразим расчетную схему, используемую для определения напряженностей электрического поля на рисунке (5.1).
Рисунок 5.1 – Расчетная схема для определения Еу для двухпутного участка.
Цепную подвеску заменяем одним эквивалентным проводом
с радиусом
в соответствии с формулой, м
, (5.1)
здесь n – число проводов;
– радиус окружности, по которой расположены провода расщеплённой фазы, м;
– радиус окружности по которой расположены контактный и несущий провода, м.
Высоту подвеса эквивалентного провода
можно рассчитать по формуле (5.2), м
. (5.2)
Напряженность электрического поля Eу определяется следующим выражением, В/м
(5.3)
Здесь а11 и а12 потенциальные коэффициенты определенные как:
(5.4)
(5.5)
Рассчитываем величину напряженности Eу на уровне головы человека, который стоит на земле (y=1,8 м)
Аналогичным образом рассчитываем величину напряженности Eу на уровне головы человека, работающего на изолирующей съемной вышке (y=5,79 м)
Подставив различные значения координаты х в соответствующие выражения при у=1,8 м и при у=5,79 м, рассчитываем значения напряженности электрического поля Еу . Результаты расчетов сведены в таблице 5.2.
Таблица 5.2 – Рассчитанные напряженности электрического поля
| Напряженность | Расстояние х, м | ||||||||||
| 0 | 0,5 | 1 | 1,5 | 2 | 2,5 | 3 | 4 | 5 | 6 | 8 | |
| Двухпутный участок у=1,8 м | 2,61 | 2,68 | 2,73 | 2,76 | 2,77 | 2,77 | 2,75 | 2,65 | 2,47 | 2,22 | 1,66 |
| Двухпутный участок у=5,79 м | 8,63 | 5,58 | 3,11 | 2,21 | 1,93 | 1,99 | 2,46 | 7,16 | 4,19 | 1,66 | 0,88 |
По рассчитанным данным строим на рисунке (5.2) график зависимости напряженности электрического поля от удаления контактной подвески на высотах 1,8 м и 5,8 м.
Рисунок 5.2 – Графики зависимостей напряженности электрического
поля от расстояния до оси путей для двух характерных значений высоты y.
Согласно, межгосударственному стандарту по электрическим полям промышленной частоты [20] допускается нахождение электротехнического персонала в электрических полях с напряженностью до 5 кВ/м включительно в течении рабочего дня.
Полученные результаты показывают, что при работах на высоте 5,8 м над осью пути величина напряженности электрического поля превышает установленный уровень. В соответствии с указаниями стандарта [20], в этом случае необходимо ограничивать время пребывания работников в таких зонах до 4,5 часов.
-
ТРЕБОВАНИЯ ЭЛЕКТРОБЕЗОПАСНОСТИ ПРИ РАБОТАХ НА ЗАЩИТНЫХ ЗАЗЕМЛЕНИЯХ ОПОР КОНТАКТНОЙ СЕТИ
Пробой изоляции контактной сети вызывает попадание высокого потенциала на металлических частях поддерживающей конструкции и железобетонной опоре. Этот высокий потенциал может привести к поражению электрическим током обслуживающего персонала. Для предотвращения этой ситуации, выполняется электрическое соединение металлических частей, попадающих в этом случае под напряжение, с рельсом – распределенным заземлителем тяговой сети. Такое соединение с рельсом называют защитным заземлением [21].
-
Общие требования техники безопасности при работах на цепях заземления
Выполнение работ на цепях заземления должно осуществляться с применением исправных и испытанных средств защиты. В соответствии с установленными нормами электромонтер должен быть обеспечен спецодеждой и спецобувью. Также он должен быть снабжен исправными и испытанными защитными и монтажными средствами.
Следующие сотрудники являются тветственными за безопасность при выполнении работ на защитных заземлениях опор контактной сети: дежурный энергодиспетчер, который выдает приказ на производство работ; лицо, отдающее распоряжение на производство работ; ответственный руководитель работ; производитель работ; наблюдающий; члены бригады [22].
, кВ/м














