ПЗ (1194392), страница 2
Текст из файла (страница 2)
По способу отображения все макеты подразделяются на:
1. Планировочные
2. Архитектурные
3. Механические
4. Художественные
5. Технические
Для досконального изучения местности при проектировке групп зданий или коттеджных поселков, как правило, пользуются планировочными макетами. Позволяют с высоты «птичьего полета» рассмотреть весь комплекс работ и сооружений. На рисунке 2.1 представлен пример планировочного макета.
Рисунок 2.1 – Планировочный макет
Для того чтобы с разных ракурсов рассмотреть будущее здание и в деталях увидеть все особенности и характеристики постройки используют архитектурный макет, который позволяет получить объемное и целостное изображение в пространстве. На рисунке 2.2 представлен пример архитектурного макета.
Рисунок 2.2 – Архитектурный макет
Механический макет, как правило, используют для эффектного отображения различных технологических приемов в строительстве. К примеру, миниатюрный проект электрифицированных ворот для железнодорожных путей и т.п. На рисунке 2.3 представлен пример механического макета.
Рисунок 2.3 – Механический макет
Для демонстративных целей и наглядного отображения внешней схожести будущего сооружения с оригиналом применяют художественные макеты. В данном случае не требуется раскрывать функциональность проекта и его технические особенности - художественный макет показывает внешние факторы и детали постройки. На рисунке 2.4 представлен пример художественного макета.
Рисунок 2.4 – Художественный макет
Технические макеты применяются для акцентирования внимания заказчиков на электрических или механических элементах проекта. К примеру, модели самолетов, автомобилей или домов снабжаются электрифицированными и подвижными элементами - светом, лифтами, дверьми и т.д. На рисунке 2.5 представлен пример технического макета.
Рисунок 2.5 – Технический макет
В данной работе будет рассмотрен художественный тип макета.
2.2 Проектирование
На следующем этапе при изготовлении макетов используется технология 3D проектирования на ПК. Такой способ позволяет более качественно подойти к проработке деталей и максимально приблизить макет к будущему оригиналу. В процессе построения 3D модели весь проект разбивается на отдельные элементы, которые последовательно отображают в объемной модели. С помощью разрабатываемой модели с легкостью возможно отобразить виртуальное здание - информационная 3D-модель здания в виде архитектурного проекта, одновременно с получением согласованной двумерной рабочей документации.
Для проектирования существует множество мощных программных средств, как платных, так и бюджетных:
-
Autodesk Revit
-
Autoesk AutoCAD
-
КОМПАС 3D
Autodesk Revit – полнофункциональная САПР, предоставляющая возможности архитектурного проектирования, проектирования инженерных систем и строительных конструкций, а так же, моделирования строительства. Обеспечивает высокую точность выполняемых проектов. Основана на технологии информационного моделирования зданий – BIM. Данная система обеспечивает высокий уровень совместной работы специалистов различных дисциплин и значительно сокращает количество ошибок. Позволяет создавать строительные конструкции и инженерные системы любой сложности. На основе проектируемых моделей специалисты имеют возможность выработать эффективную технологию строительства и точно определить требуемое количество материалов. На рисунке 1.6 представлен интерфейс программы.
Рисунок 2.6 – Интерфейс Autodesk Revit
Autoesk AutoCAD - самая популярная 2-х и 3-х мерная система автоматизированного проектирования и черчения. Данная система настолько универсальна, что используется повсеместно. Знание AutoCAD является первостепенным требованием для определения профпригодности проектировщика. Первоначально AutoCAD создавалась как система автоматизированного проектирования, предназначенная для двухмерных чертежей. Разработка этой системы ведется с 1982 года. За это время были созданы тысячи дополнений и специализированные решения от сторонних фирм и самой компании Autodesk. На данный момент в мире насчитывается около 6 млн пользователей AutoCAD. На рисунке 2.7 представлен интерфейс программы Autodesk AutoCAD.
Рисунок 2.7 – Интерфейс программы Autodesk AutoCAD
Ранние версии AutoCAD оперировали элементарными объектами, такими как круги, линии, дуги и др., из которых составлялись более сложные объекты. Однако на современном этапе программа включает в себя полный набор средств, обеспечивающих комплексное трёхмерное моделирование, в том числе работу с произвольными формами, создание и редактирование 3D-моделей тел и поверхностей, улучшенную 3D-навигацию и эффективные средства выпуска рабочей документации. Начиная с версии 2010, в AutoCAD реализована поддержка параметрического черчения, то есть возможность налагать на объект геометрические или размерные зависимости. Это гарантирует, что при внесении любых изменений в проект, определённые параметры и ранее установленные между объектами связи сохраняются.
КОМПАС 3D – система автоматизированного проектирования проектной документации, а также ее оформления согласно стандартам единой системы конструкторской документации (ЕСКД). Разработан российской компанией «АСКОН». Поставляющаяся в одном из двух вариантов КОМПАС-График и КОМПАС-3D, данная система предназначена соответственно для двухмерного черчения и пространственного проектирования. КОМПАС-График может входить в состав КОМПАС-3D в качестве модуля для работы с эскизами и чертежами, а может использоваться самостоятельно, полностью выполняя задачи двухмерного проектирования и создания соответствующей документации. Система полностью поддерживает стандарты ЕСКД, при этом все ассоциативные виды пространственных моделей (включая разрезы и сечения, а также различные виды – местные, с разрывом, по стрелке, и пр.) автоматически генерируются КОМПАС-График, а все изменения в модели автоматически изменяются на чертеже. Шаблонные виды создаются в проекционной связи программой автоматически. Все данные чертежа (такие как геометрические размеры, наименование, масса и пр.) полностью синхронизированы с данными трехмерной модели. Входящее в систему огромное количество библиотек объектов, автоматизирует выполнение всевозможных специализированных задач. На рисунке 2.8 представлен интерфейс программы КОМПАС 3D.
Рисунок 2.8 – Интерфейс программы КОМПАС 3D
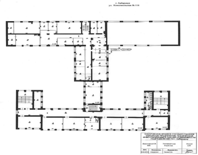
В дальнейшем была выбран программный пакет КОМПАС 3D. Последовательно были спроектированы стены здания по чертежам предоставленным заказчиком. На рисунке 2.9 представлен план первого этажа.
Рисунок 2.9 – Первый этаж
На рисунке 2.10 представлен план 2 этажа.
Рисунок 2.10 – Второй этаж
Для удобства последующей сборки каждому элементу модели были присвоены имена улиц, параллельно которым расположены стены. На рисунке 2.11 представлена 3D модель стены проходящей параллельно улице Истомина.
Рисунок 2.11 – Стена по улице Истомина
На рисунке 2.12 представлена 3D модель стены проходящей параллельно улице комсомольская.
Рисунок 2.12 – Стена по улице Комсомольская
На рисунке 2.13 представлена 3D модель стены, выходящей во внутренний двор, видимой с главного входа.
Рисунок 2.13 – Стена внутренний двор
На рисунке 2.14 представлена 3D модель стены, выходящей на внутренний двор, видимая с главного входа.
Рисунок 2.14 – Стена внутренний двор с главного входа
На рисунке 2.15 представлена 3D модель стены, расположенной с наружной стороны, видимой со стороны улицы Амурский бульвар.
Рисунок 2.15 – Стена по улице амурский бульвар
На рисунке 2.16 представлена 3D модель стены, внутреннего двора, видимой с главного входа.
Рисунок 2.16 – Стена внутреннего двора с главного входа
На рисунке 2.17 представлена 3D модель стены, внутреннего двора, видимой с главного входа.
Рисунок 2.17 – Стена внутреннего двора с главного входа
На рисунке 2.18 представлена 3D модель стены, внутреннего двора, видимой с главного входа.
Рисунок 2.18 – Стена внутреннего двора с главного входа
На рисунке 2.19 представлена 3D модель стены, внутреннего двора, видимой с главного входа.
Рисунок 2.19 – Стена внутреннего двора с главного входа
На рисунке 2.10 представлена 3D модель стены, внутреннего двора, видимой с главного входа.















