пояснительная (1190626), страница 3
Текст из файла (страница 3)
Требования должны быть направлены на устранение неблагоприятного влияния факторов окружающей среды (физических, химических, биологических) на состояние здоровья населения и санитарно-бытовые условия проживания.
Размещение, величина и состав земельного участка здания общественного назначения определяются согласно требованиям [16] . Площадь земельного участка принимается из расчета 10-15 м2 на 1 посетителя.
Земельный участок офисного здания разделяется на следующие зоны:
-
общественная или представительная (площадки перед входами из расчета не менее 0,2 м2 на 1 посетителя);
-
зона отдыха (места для отдыха посетителей);
-
хозяйственная (площадка для транспортных средств, мусоросборник).
Стоянки индивидуальных автомашин посетителей офисного центра следует предусматривать не далее 400 м от входов в здание из расчета 2-5 мест для автомашин на 100 посетителей.
На месте автомобильной стоянки необходимо выделить место с отличительными знаками для парковки автомобилей инвалидов. Ширина парковочного места для автомобиля инвалида должна быть не менее 3,5 м.
В зданиях необходимо обеспечивать ориентацию основных помещений по сторонам света.
1.4.5. Требования к применяемому оборудованию.
Офисные помещения оснащены современной офисной мебелью, персональными компьютерами и множительной техникой. Компьютеры установлены на специально приспособленных для их установки столах. Для персонала работающего на компьютерах установлены специальные рабочие кресла с подъемным сиденьем и регулируемым по высоте и углам наклона сиденья и спинки.
В комнатах для приема пищи установлены холодильные шкафы бытовой, микроволновые печи, потеры.
Душевые, раздевальные и массажные, служебные помещения для административного и инженерно-технического персонала, бытовые помещения для рабочих, технические помещения должны быть обеспечены самостоятельными системами приточной и вытяжной вентиляции.
Все технологическое оборудование должно иметь сертификаты соответствия.
1.5. Проверка условий эвакуации людей из здания
Эвакуация представляет собой процесс организованного самостоятельного движения людей наружу из помещений, в которых имеется возможность воздействия на них опасных факторов пожара. Эвакуацией также следует считать самостоятельное перемещение людей, относящихся к мало мобильным группам населения, осуществляемое обслуживающим персоналом. Эвакуация осуществляется по путям эвакуации через эвакуационные выходы.
Допускается: эвакуационные выходы из подвалов предусматривать через общие лестничные клетки с обособленным выходом наружу, отделенным от остальной части лестничной клетки глухой противопожарной перегородкой 1-го типа; эвакуационные выходы из фойе, гардеробных, курительных и санитарных узлов, размещенных в подвальных или цокольных этажах зданий классов Ф2, ФЗ и Ф4, предусматривать в вестибюль первого этажа по отдельным лестницам 2-го типа; оборудовать тамбуром выход непосредственно наружу из здания, из подвального и цокольного этажей.
Двери эвакуационных выходов из поэтажных коридоров, холлов, фойе, вестибюлей и лестничных клеток не должны иметь запоров, препятствующих их свободному открыванию изнутри без ключа.
Двери лестничных клеток, ведущие в общие коридоры, двери лифтовых холлов и двери тамбур-шлюзов с постоянным подпором воздуха должны иметь приспособления для самозакрывания и уплотнения в притворах. Двери тамбур-шлюзов с подпором воздуха при пожаре и двери помещений с принудительной противодымной защитой должны иметь автоматические устройства для их закрывания при пожаре и уплотнение в притворах.
Высота дверей в свету на путях эвакуации должна быть не менее 2 м.
Все пути эвакуации ведут через коридоры, лестничные клетки непосредственно к наружным выходам или в вестибюль первого этажа.
Из помещения техподполья предусмотрено два эвакуационных выхода.
Первый – непосредственно наружу через дверь размером 0,75х1,5м для выхода в приямок, который оборудован стремянкой. В помещении техподполья выполнено два приямка.
Второй – непосредственно наружу через лестничную клетку, оборудованную тамбур-шлюзом и отделенный от остальной части лестничной клетки глухой противопожарной перегородкой 1-го типа, расположенной между лестничными маршами от пола техподполья до промежуточной площадки лестничных маршей между этажа автостоянки.
Помещение венткамеры оборудовано окнами-продухами размерами 0,6х0,9. Вход в лифты и лестничную клетку осуществляется через тамбур-шлюз 1-го типа с избыточным давлением воздуха при пожаре для функциональной связи помещений, расположенных на отметке минус 4,500 с административным зданием.
Эвакуационные выходы из технического этажа предусмотрены таким образом, что они ведут непосредственно наружу и обособлены от общей лестничной клетки глухой противопожарной перегородкой 1-го типа, расположенной между лестничными маршами от пола техподполья до промежуточной площадки лестничных маршей второго этажа административного здания.
В проектируемом здании предусматривается охранно-пожарная сигнализация, оповещение о пожаре. В проекте применена система “Орион”. Система пожарной сигнализации и оповещения о пожаре выполнена во всем здании. Система предназначена для сбора, обработки, передачи изображения и регистрации извещений о состоянии шлейфов охранно-пожарной сигнализации, с устройств, устанавливаемых в охраняемых помещениях на пульт, расположенного в помещении пожарно-сторожевого поста на отметке 0.000. Помещения инженерного оборудования оборудуются однорубежной охраной. Постановка и снятие помещения с охраны производится с помощью клавиатуры. Данная система позволяет каждое помещение индивидуально ставить и снимать с охранной сигнализации.
Блокировка первого рубежа выполняется датчиками С2000-СМК. Для приема сигналов о пожаре и тревоги в помещении пожарно-сторожевого поста устанавливается пульт С-2000М, преобразователь интерфейса, блок индикации С2000-ПИ, контроллер двухпроводной линии С2000-КДЛ, блок контрольно- пусковой С2000-КПБ. Приборы связаны между собой по интерфейсу.
Пожарные извещатели адресные приняты ИП-212-34А, которые устанавливаются во всех помещениях, кроме помещений туалетных и инженерного оборудования, на выходах устанавливаются ручные оповещатели адресные типа ИПР-513-3А. Пожарные извещатели ИП 212- 34А устанавливаются на потолке, ручные извещатели ИПР-513-3А на стене на высоте 1.5м от пола. Помещение серверного оборудования оборудовано автономными и установками пожаротушения типа МГПТ-65.
1.6. Мероприятия по обеспечению доступа инвалидов
Проектом учтена возможность свободного передвижения маломобильных групп населения по территории, прилегающей к административному зданию. Ширина пути движения по территории при встречном движении инвалидов на креслах-колясках принята не менее 1,8 м с учетом габаритных размеров кресел-колясок. Продольный уклон пути движения не превышает 5 процентов, поперечный уклон пути движения в пределах 1-2 процента.
Высота бортового камня в местах пересечения тротуаров с проезжей частью, а также перепад высот бордюров не превышает 0,04м.
Вход на территорию административного здания оборудуется доступными для инвалидов элементами информации об объекте. На площадке для автомашин клиентов предусмотрено 4 места для транспорта маломобильных групп населения вблизи входа в здание, не далее 50 метров. Ширина парковочного места для парковки автомобиля инвалида – 3,5м.
Для инвалидов и маломобильных групп населения предусмотрено крыльцо с пандусом, уклон которого 1:12, радиусом закругления 5,5 м с бортиками и ограждениями по боковым сторонам. Глубина тамбура при входе в административное здание – 1,80м, при ширине – 4,4м.
При ширине лестницы на основном подходе к зданию более 2,5м предусмотрены разделительные поручни. Ширина ступеней 0,4м, высота подступенка – 0,12м.
Ширина дверных и открытых проемов в стене, а также выходов из помещений и из коридоров на лестничную клетку – 1,5м. Двери – распашные, шириной проема 1,5м; 1,3м; 1,0м; 0,9м остеклены армированным стеклом. Дверные проемы не имеют порогов и перепадов высот пола. При необходимости устройства порогов их высота или перепад высот не превышает 0,025 м. Покрытия полов – твердые, нескользкие.
Здание оборудовано лифтами грузоподъемностью 630 и 1000кг, кабины которых имеют размеры 1100х1400мм и 1100х2100 мм, ширина дверного проема – 1,10м.
В вестибюльной зоне и на этажах отм.0,000 и плюс 14,400 предусмотрены санитарно-гигиенические помещения (универсальная кабина) для маломобильной группы населения.
Конструкции эвакуационных путей относятся к классу К0 (непожароопасные), предел их огнестойкости, что соответствует требованиям таблицы 6, а материалы отделки и покрытия полов – КМ3 и КМ4 с учетом требований [7].
Для обеспечения эвакуации инвалидов в случае пожара или стихийного бедствия в проекте предусмотрены эвакуационные выходы с нормативными размерами и конструктивным исполнением путей эвакуации и выходов, с обеспечением беспрепятственного движения.
1.7. Разработка эскизов объёмно-планировочного решения здания.
1.7.1. Объемно планировочные решения.
Объемно-планировочным решением здания называется расположение (компоновка) помещений заданных размеров в одном комплексе, подчиненное функциональным, архитектурно-художественным и экономическим требованиям.
Этажность здания зависит от его назначения, экономических соображений, градостроительных требований и природных условий строительной площадки.
Этажность здания определяется количеством наземных этажей, в том числе мансардных, а также наличием цокольного этажа, если верх его перекрытия возвышается над уровнем тротуара или отмостки не менее чем на 2 м.
Если отдельные части здания имеют разное количество наземных этажей, его этажность определяется по наибольшему количеству этажей в здании.
Высота помещений в чистоте (от пола до потолка) принимается для общественных зданий, как правило, не менее 3 м. Высота технических этажей определяется в каждом отдельном случае в зависимости от вида размещаемых в них инженерного оборудования и инженерных сетей, условий их эксплуатации. В техническом этаже (техническом подполье), предназначенном для размещения только инженерных сетей с трубопроводами и изоляцией трубопроводов из негорючих материалов, высота от пола до потолка должна быть не менее 2,1 м. Высота в местах прохода обслуживающего персонала до низа выступающих конструкций должна быть не менее 1,8 м.
Отметка пола помещений у входа в здание должна быть выше отметки тротуара перед входом не менее чем на 0,15 м.
В общественных зданиях вестибюль принимается – 0,2-0,3 м2, гардеробные – 0,15 м2 на одного расчётного посетителя.
Ширина лестничного марша в общественных зданиях должна быть не менее ширины выхода на лестничную клетку с наиболее населенного этажа, но не менее 1,2м для лестниц ведущих в помещения, не связанные с пребыванием в них зрителей и посетителей.
Ширина лестничных площадок должна быть не менее ширины марша. Ширина дверных проёмов должна быть не менее 1 м, не считая помещений санузлов и душевых. Ширина вестибюля не менее 2,4 м.
Здание представляет собой 6 этажный офисный центр с двумя техническими этажами. Общие габариты здания в осях – 35,15х34,50 м. Высота этажей административной части 3,60м, на отметке минус 8,100 и минус 4,500 расположены технические помещения: электрощитовая, ИТП, водомерный узел.
Объемно - планировочное решение здания построено следующим образом. В офисном центре с 1 по 5 этаж располагаются офисные помещения, а также на последнем этаже располагаются зимний сад для психологической разгрузки персонала и посетителей центра, детская комната, помещение для йоги, массажный кабинет, парикмахерский кабинет.
1.7.2. Разработка эскизов планов, разрезов, фасадов здания
Разрез здания выполняется на основе решения плана с учётом принятой конструктивной системы. Плоскость разреза должна проходить по наиболее характерным частям здания для полного представления его объёмно-планировочного и конструктивного решения. Как правило, разрез выполняется по лестничной клетке или входу здания. На разрезе должны быть показаны основные конструкции.
Разработка архитектурного решения фасада здания - завершающая и очень важная часть эскизного проектирования. Архитектура фасада выявляет художественные и конструктивные достоинства и недостатки здания, определяет его выразительность и цельность архитектурного образа. Поэтому при решении фасадов здания учтены основные положения теории архитектурной композиции:
а) тектоника здания;
б) приёмы и средства архитектурной композиции;
в) принцип единства и соподчинённости
Рисунок 1.3. План на отметке 0.000.
Рисунок 1.4. План на отметке +18.000.
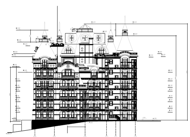
Рисунок 1.5. Фасад в осях 13-3
1.8. Конструктивная система здания.
Для здания принята каркасная конструктивная схема с использованием колонн, диафрагм жесткости - стен и ядра жесткости (лестничный и лифтовой блоки из монолитного железобетона); монолитные балочные железобетонные перекрытия, жестко опёртые по контуру на диафрагмы жесткости и наружные и внутренние колонны в уровне каждого этажа. Пространственная жесткость и устойчивость обеспечивается жёстким соединением неразрезных монолитных железобетонных перекрытий с колоннами и балками и включением в работу элементов жесткости (диафрагм и ядер жесткости).















