ДЗ-2 Рубцов -ИСПРАВИТЬ (1053444)
Текст из файла
Домашнее задание №2
ДОМАШНЕЕ ЗАДАНИЕ № 2
по учебным дисциплинам
«ПНТО» и «ПОЭТ»
(выдача – 6 неделя, срок сдачи – 8 неделя)
Вариант № 21
Задание:
Мотор-редуктор, который должен (полностью или частично) заменить в установке выращивания монокристалла кинематическую цепь вращения ванны с расплавом, состоит из планетарной передачи (см. схему) и регулируемого электродвигателя. Электродвигатель обеспечивает постоянство крутящего момента в диапазоне скоростей: nэ.д. = 20..195 об/мин. Рассчитайте требуемое передаточное отношение и подберите зубчатые колёса передачи, если вращение ванны должно изменяться в пределах n = 1,90..11,2 об/мин. Приведите кинематическую схему модернизированной установки
Ведущим звеном здесь является ВОДИЛО (Н). На это указывает стрелка, показывающая вращение ведущего звена.
студент гр. МТ11-71 Рубцов М. А.
Реферат
Расчетно-пояснительная записка: 9 с., 3 рис., 3 источника.
УСТАНОВКА ВРАЩЕНИЯ ЗАТРАВКИ, КИНЕМАТИЧЕСКИЕ ЦЕПИ, ВЫБОР ЭЛЕМЕНТОВ ПЛАНЕТАРНОЙ ПЕРЕДАЧИ, РАСЧЁТ ПЕРЕДАТОЧНОГО ОТНОШЕНИЯ
Объектом расчёта является кинематическая цепь вращения затравки, входящая в состав установки выращивания монокристалла.
Цель работы – модернизация кинематической цепи путём полной замены входящих в неё передач и подбор зубчатых колёс планетарного редуктора.
В процессе выполнения задания проводился расчёт передаточного отношения кинематической цепи стандартной и модернизированной установки.
Подобраны зубчатые колёса планетарной передачи, входящей в состав мотор-редуктора, предложена принципиальная схема модернизированной кинематической цепи.
Расчётно- пояснительная записка выполнена по ГОСТ 7.32-2001.
Введение
Выращивание монокристаллов проводится с помощью метода Чохральского.
Метод Чохральского — метод выращивания кристаллов путём вытягивания их вверх от свободной поверхности большого объёма расплава с инициацией начала кристаллизации путём приведения затравочного кристалла (или нескольких кристаллов) заданной структуры и кристаллографической ориентации в контакт со свободной поверхностью расплава.
Может использоваться для выращивания кристаллов элементов и химических соедине-ний, устойчивых при температурах плавления-кристаллизации. Метод наиболее известен применительно к выращиванию монокристаллического кремния.[3]
Установка выращивания монокристаллов состоит из отдельных кинематических цепей:
Цепь вращения затравки (электродвигатель, червячная передача, двухпарная гитара, цилиндрическая передача, ременная передача и ещё одна цилиндрическая передача)- вращение затравки в зоне кристаллизации.
Цепь вращения ванны (тигеля) ( электродвигатель, червячная передача, двухпарная гитара, цилиндрическая передача).
Цепь вертикального перемещения(подъёма) затравки. (электродвигатель, червячная передача, двухпарная гитара, червячная передача, волновая передача, винтовая передача).
1.Формулировка задачи
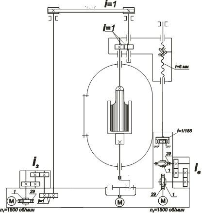
1.1 Схема стандартной установки выращивания монокристалла
(Рис.1)
1.2 Описание исследуемой кинематической цепи
(Рис.2)
1.3 Расчёт звена настройки стандартной кинематической цепи
Уравнение баланса цепи, описывающее движение цепи, дающей вращательное движение ванны:
(ванны (тигля))
Т.к. у нас двухпарная гитара :
1) минимальная скорость вращения ванны nt=1,9
2) максимальная скорость вращения ванны nt=11,2
Рассчитаем передаточное отношение при минимальной скорости вращения двигателя и ванны и максимальной скорости вращения двигателя и ванны
Min
Max
(Рис.3)
Примем
значит 11Z1=Z3
Из условия соостности:
R3=2R2+R1 т.к. в планетарном зацепление модуль одинаковый:
Z3=2Z2+Z1
Z2=(Z3-Z1)/2;
Примем Z1=20 тогда Z3=220 Z2=100;
Условие заклинивания передачи и подрезание зубьев Zmin>17(для внешнего зацепления)
Zmin>85(для внутреннего) – выполняется.
Условие сборки:
где Z1=20
=12 k=3(число сателлитов) P и Ц- целые числа
выполняется при любых P\
Заключение
В данной работе описана установка выращивания монокристаллов по методу Чохральского. Проанализирована заданная кинематическая цепь вращения ванны с расплавом, рассчитаны колеса для гитар для заданной частоты вращения. Была проведена модернизация кинематической цепи путём частичной замены входящих в неё передач и подбор зубчатых колёс планетарного редуктора, представлена схема модернизированной установки.
Список использованных источников информации
1. Лекции и семинары по учебным дисциплинам «ПНТО» и «ПОЭТ» Каменихин А.Т.
2. Онлайн методичка кафедры ТММ МГТУ им. Баумана (http://tmm-umk.bmstu.ru/main/menu/variant/metods/html/mtimofeeva1.htm)
3. Информационный портал «Википедия» ru.wikipedia.org
7
Характеристики
Тип файла документ
Документы такого типа открываются такими программами, как Microsoft Office Word на компьютерах Windows, Apple Pages на компьютерах Mac, Open Office - бесплатная альтернатива на различных платформах, в том числе Linux. Наиболее простым и современным решением будут Google документы, так как открываются онлайн без скачивания прямо в браузере на любой платформе. Существуют российские качественные аналоги, например от Яндекса.
Будьте внимательны на мобильных устройствах, так как там используются упрощённый функционал даже в официальном приложении от Microsoft, поэтому для просмотра скачивайте PDF-версию. А если нужно редактировать файл, то используйте оригинальный файл.
Файлы такого типа обычно разбиты на страницы, а текст может быть форматированным (жирный, курсив, выбор шрифта, таблицы и т.п.), а также в него можно добавлять изображения. Формат идеально подходит для рефератов, докладов и РПЗ курсовых проектов, которые необходимо распечатать. Кстати перед печатью также сохраняйте файл в PDF, так как принтер может начудить со шрифтами.
















