записка (1053021), страница 2
Текст из файла (страница 2)
Данное шлицевое соединение проходит.
Данное шлицевое соединение проходит.
4. Расчет болтов крепления опоры крана к стене.
Исходные данные.
4.1 Определение реакций в опорах.
Определение вертикальной реакции:
Определение горизонтальной реакции:
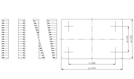
4.2. Габаритные размеры и схема установки болтов.
4.3 Расчет верхней опоры.
4.3.1Стрела крана перпендикулярна стене.
Условие нераскрытия стыка.
Расчетная нагрузка, действующая на болт.
4.3.2Стрела крана параллельна стене.
Нераскрытие стыка.
Условие несдвигаемости.
Расчетная нагрузка, действующая на болт.
4.4 Расчет нижней опоры.
4.4.1Стрела крана перпендикулярна стене.
Реакцию, действующую в горизонтальном направлении, воспринимает подшипник.
4.4.2Стрела крана параллельна стене.
Условие несдвигаемости.
Нераскрытие стыка.
Расчетная нагрузка, действующая на болт.
4.5Расчет болтов.
Целесообразно установить в верхней и нижней опорах одинаковые болты, поэтому выбираем max расчетную нагрузку
Выбираем болт М30.
Список литературы.
-
Подъемно-транспортные машины. Атлас конструкций. Под ред. Решетова
-
Учебное пособие по курсовому проектированию средств механизации машиностроительного производства. Под ред. Гадолина, Решетова
-
Конструирование узлов и деталей машин. Леликов, Дунаев. М., “Высшая школа”, 1998 г.
-
Расчет механизмов кранов. Учебное пособие. Под ред. Решетова
-
Учебное пособие по проектированию и расчету металлоконстукций подъемно-транспортных устройств. Снесарев, Тибанов.
23
















