6. Корпусные конструкции (1041861), страница 3
Текст из файла (страница 3)
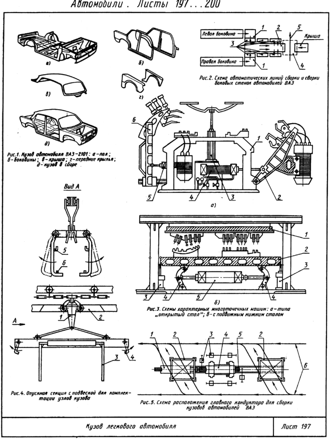
На ВАЗе используют первый прием, причем подаче готовых узлов в главный кондуктор предшествует их комплектация в одной подвеске толкающего подвесного конвейера. Для этого сваренные боковины кузова (правая и левая) подаются к месту комплектации 4 напольным конвейером. С противоположной стороны к месту комплектации поступает и крыша кузова. Комплектация осуществляется с помощью опускной секции подвесного конвейера 5.
Навеску проводят путем опускания секции 2 (рис. 4) несущего пути подвесного конвейера вместе с подвеской 1 так, чтобы крюки 5 рычагов 3 оказались на уровне проемов окон боковин, подаваемых напольным конвейером. Крыша подается центрально и подхватывается крюками. Скомпонованная таким образом "виноградная гроздь" подъемом секции 2 перемещается вверх, захватывается выступом тяговой цепи толкающего конвейера и автоматически направляется к месту установки последнего узла компоновки — настила пола, располагаемого в подвеске на опорах б, а затем отправляется на склад.
Со склада подвески "виноградные грозди" системой автоматического адресования подаются к главному сборочному кондуктору (рис. 5) челночного типа, включающего многоточечную сварочную машину J, шесть подвесных сварочных машин 3 и две связанные между собой кондукторные тележки 1 и 4. Подвеску 2 с узлами кузова опускают на приемную тележку, узлы снимают, устанавливают в кондуктор тележки и фиксируют прижимами. Затем тележку подают в многоточечную машину 5. Здесь узлы окончательно фиксируются зажимными устройствами и свариваются снизу электродами многоточечной машины. Остальные точки сваривают с помощью подвесных сварочных машин. В это время вторая тележка находится на другой позиции, где ранее собранный кузов захватывается рычагами подвески. Опускная секция толкающего конвейера 6 поднимается, и подвеска с кузовом отправляется на линию окончательной сварки.
Автоматические линии, оснащенные многоточечными контактными машинами, как правило, предназначены для выпуска кузовов автомобиля определенной марки, и переход на изготовление кузовов автомобиля другой модификации требует значительной перестройки оборудования.
Для прихватки и сварки кузовов все шире используют роботы (лист 198, рис. 6) , имеющие клещи для контактной точечной сварки.
Использование роботов (рис. 7) вместо многоэлектродных машин делает производство более гибким, т.е. позволяет переходить от изготовления кузова одной модификации к изготовлению кузова другой модификации путем простой смены программы у роботов, обслуживающих отдельные рабочие места.
Кабина грузового автомобиля (листы 199,200).
Приемы изготовления кабин грузовых автомобилей подобны приемам изготовления кузовов легковых автомобилей. На рис. 1 (лист 199) показана автоматическая линия сборки и сварки настила кабины грузового автомобиля ЗИЛ, обеспечивающая сборку и сварку одного изделия за 55 с. Работа этой линии осуществляется следующим образом. Два оператора укладывают детали каркаса на приемное устройство многопозиционного пресса 9 рельефной сварки. Сваренный каркас выдается шаговым устройством и с помощью механической руки 10 перекладывается на очередную тележку-спутник 8, когда она находится на платформе гидроподъемника 3 в нижнем положении. Другие два оператора снимают панель пола с подвесного конвейера, укладывают ее на приемное устройство многопозиционного клепального станка 1 и вставляют в отверстия панели 32 резьбовые втулки. Панель с втулками подается в станок, в котором за один рабочий ход развальцовываются все резьбовые втулки. Затем панель пола шаговым устройством выдается из станка, захватывается механической рукой 2 и укладывается на ту же тележку-спутник, на котором ранее был установлен каркас пола.
Укладка панели пола механической рукой 2 осуществляется в тот момент, когда тележка-спутник находится на платформе подъемника 3 в верхнем положении. На следующей позиции 4 на эту тележку-спутник механической рукой 11 подается подставка сиденья, которая контактной сварочной установкой прихватывается в двух точках. Затем полностью собранный узел вместе с тележкой-спутником шаговым конвейером последовательно подается на операции сварки на пяти контактных много-электродных машинах 5, сваривается в 204 точках и попадает на платформу гидроподъемника б, находящуюся в верхнем положении. Здесь сваренный пол кабины снимается с приспособления механической рукой 7 и передается на линию сборки кабины.
Сборку и сварку кабин грузового автомобиля ЗИЛ осуществляют методом последовательного наращивания. Поскольку трудоемкость сборочных операций выше, чем сварочных, то сборку кабин осуществляют в двух параллельных механизированных линиях I и II (рис. 2) , а сварку—в одной автоматической линии IV.
В начале каждой сборочной линии два оператора снимают с подвесных конвейеров и устанавливают в жесткое приспособление многоэлектродной машины 1 пол и передок кабины, фиксируя их по технологическим отверстиям с зажатием пневмоприжимами. После выполнения сварочной операции шаговый конвейер последовательно передает собранный узел на сборочные стенды 2, 3, 4 и 5 для установки каркасов боковин, каркаса задка и панели крыши. На каждой из этих позиций подъемные столы снимают узел с конвейера и фиксируют его по технологическим отверстиям, затем на узел устанавливают очередную сборочную единицу и прихватывают.
Поперечный конвейер III связывает параллельные линии сборки, и на загрузочную позицию 6 конвейера сварочной линии IV собранные кабины поступают попеременно или с линии I, или с линии II.
Поскольку линия сварки кабин имеет четыре контактные многоэлектродные машины 7 и работает автоматически, то надежность ее работы непосредственно зависит от точности подачи свариваемых кромок под электроды машины на каждой позиции. Суммарные отклонения, вызываемые ограниченной точностью позиционирования кабины, погрешностями изготовления ее элементов и их сборки в пространственный узел, оказываются настолько значительными, что требуется их компенсация. В рассматриваемой линии такая компенсация достигается использованием самоустанавливаюищхся сварочных пистолетов (рис. 3). Само установка обеспечивается возможностью поворота корпуса 2 сварочного пистолета вокруг оси 1, что позволяет подводить ограничительную планку 4 до упора в свариваемые кромки, если их отклонения от проектного положения не выходят за пределы сжатия пружины 3.
Работа на линии сварки кабины осуществляется следующим образом. Собранная на прихватках кабина поступает на первую сварочную машину, где фиксируется в рабочем положении с помощью подъемного устройства 7 (рис. 4). Сварочные пистолеты 4, закрепленные на траверсах 1,6,8 шарнирами 2 с пружинами 3, подводятся к свариваемым кромкам до упоров 5. После выполнения сварочной операции кабина опускается на шаговый конвейер и передается на следующую позицию.
В дополнение к сварочному участку IV (см. рис. 2) описанной линии сборки и сварки кабин смонтирован участок V, оснащенный 14 роботами типа "Unimate". Эти роботы выполняют контактную сварку кабин в автоматическом цикле. Участок V может работать одновременно с участком IV.
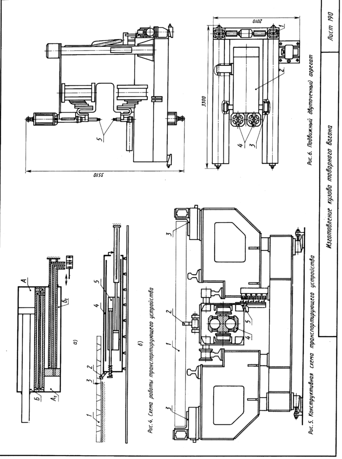
Кабина автомобиля КамАЗ-5410 (рис.5) сваривается на автоматической линии (лист 200, рис. 6) приблизительно в 520 точках. Линия рассчитана на сварку кабин двух типов: без спального места и со спальным местом. Переналадка линии на кабину другого типа осуществляется с пульта управления включением или отключением дополнительных групп фиксаторов, зажимов и сварочных электродов. Линия имеет 11 сварочных позиций из 13:9 позиций оснащены многоточечными сварочными машинами, а две позиции — подвесными сварочными машинами для подварки и исправления дефектов.
На позицию I опускными секциями подвесного конвейера подаются пол и передок кабины и устанавливаются операторами на центровочные устройства сварочной машины и тележки. Передок подается на тележке к сварочной машине, блокируется с полом, фиксируется шестью зажимами, сваривается и подается на сварочную машину позиции II. На эту позицию опускаются две боковины и привариваются, затем узел подъемником подается на устройство, которое обеспечивает передачу свариваемых узлов от позиции Ы до позиции XIII. После доварки на позиции III узел подается на позицию IV, куда доставляется задок или без спального места — справа от линии, или со спальным местом — слева от линии. Узел сваривается и подается на позицию V доварки пропущенных точек. На позиции VI производится завальцовка и сварка нижней части, а на позиции VII — завальцовка и сварка верхней панели задка. На позиции VIII устанавливается крыша, которая подается с одной или другой стороны линии в зависимости от того, кабина какого типа собирается. Приварка крыши к кабине осуществляется на позициях VIII и IX. На позиции Х кабина поворачивается на 90° в горизонтальной плоскости, а на позиции XI производится сварка. После доварки пропущенных и дефектных точек подвесными сварочными машинами на позиции XII собранные кабины на позиции XIII навешиваются на конвейер и направляются на участок комплектовки.
285
















