задача 1.3 (1021762)
Текст из файла
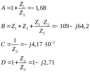
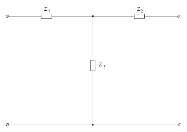
Рис. 1. Схема №1
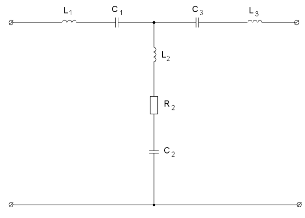
Рис. 2. Символическое замещение
Расчёт значений комплексных сопротивлений ветвей:
Определение коэффициентов А-формы четырехполюсника через внутреннее сопротивление.
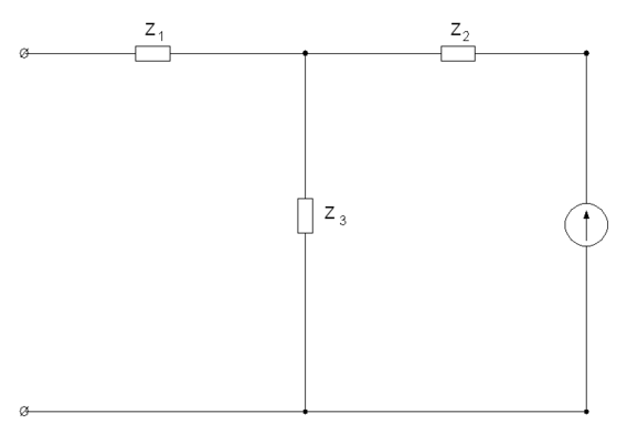
Рис. 3. Прямое включение, режим холостого хода
Рис. 4. Прямое включение, режим короткого замыкания
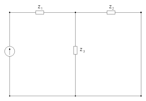
Рис. 5. Обратное включение, режим холостого хода
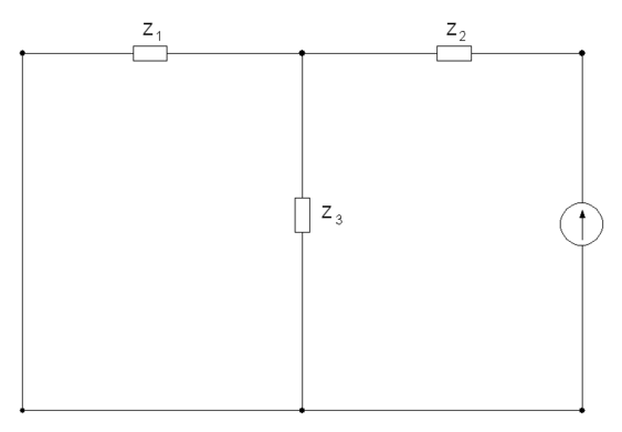
Рис. 6. Обратное включение, режим короткого замыкания
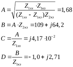
Найдем коэффициенты A,B,C,D четырехполюсника:
Второй способ расчета коэффициентов A,B,C,D четырехполюсника:
Расчет коэффициентов двумя способами привел к одинаковым результатам.
Окончательная проверка:
Уравнения А формы:
П-схема замещения четырехполюсника
Для «П» схемы найдем Z4,Z5,Z6.
Так как активное сопротивление одной из ветвей «П» схемы отрицательно, то мы можем сделать вывод, что замещение четырехполюсника «П» схемой не возможно.
Расчёт задачи в программе Mathcad 11.A
Расчет полных сопротивлений ветвей четырехполюсника ( Z11,Z12,Z21,Z22 - внутреннее сопротивление холостого хода и короткого замыкания при прямом и обратном включении соответственно):
Расчет коэффициентов A,B,C,D (двумя способами):
Нахождение полных сопротивлений ветвей четырехполюсника «П» схемы (Z4,Z5,Z6):
Характеристики
Тип файла документ
Документы такого типа открываются такими программами, как Microsoft Office Word на компьютерах Windows, Apple Pages на компьютерах Mac, Open Office - бесплатная альтернатива на различных платформах, в том числе Linux. Наиболее простым и современным решением будут Google документы, так как открываются онлайн без скачивания прямо в браузере на любой платформе. Существуют российские качественные аналоги, например от Яндекса.
Будьте внимательны на мобильных устройствах, так как там используются упрощённый функционал даже в официальном приложении от Microsoft, поэтому для просмотра скачивайте PDF-версию. А если нужно редактировать файл, то используйте оригинальный файл.
Файлы такого типа обычно разбиты на страницы, а текст может быть форматированным (жирный, курсив, выбор шрифта, таблицы и т.п.), а также в него можно добавлять изображения. Формат идеально подходит для рефератов, докладов и РПЗ курсовых проектов, которые необходимо распечатать. Кстати перед печатью также сохраняйте файл в PDF, так как принтер может начудить со шрифтами.
















