Ответ на вопрос по инженерной графике №943468: На рисунке в разрезе показан: a. нисходящий лестничный марш с фризовой ступенью b. восходящим лестничный марш без фризовой ступени c. нисходящий лестничный марш без фризовой ступени d. восходящий лестничный марш с фризовой ступенью На рисунке в разрезе показан: a. нисходящий - Ответ на вопрос по инженерной графике №943468На рисунке в разрезе показан: a. нисходящий - Ответ на вопрос по инженерной графике №943468
2025-08-212025-08-21СтудИзба
На рисунке в разрезе показан: a. нисходящий - Ответ на вопрос по инженерной графике №943468
Вопрос
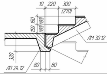
На рисунке в разрезе показан:
- a. нисходящий лестничный марш с фризовой ступенью
- b. восходящим лестничный марш без фризовой ступени
- c. нисходящий лестничный марш без фризовой ступени
- d. восходящий лестничный марш с фризовой ступенью
Ответ
Этот вопрос в коллекциях
-43%

📚Помощь в сдаче любых видов работ✒️Более 6000 готовых студенческих работ и тестов для НСПК, ОСЭК, НИИДПО, НАДПО и других ВУЗов👨🏫Гарантирую результат или полностью верну деньги!✅💰


















