Прочие элементы производственных зданий
Лекция 13.
Прочие элементы производственных зданий (лестницы, перегородки, этажерки, ворота).
Лестницы в промзданиях подразделяются на аварийные, служебные, пожарные. Основные лестницы служат для сообщения между этажами ( в многоэтажных производственных зданиях или в АБК), служебные – для подъема или перехода к одиночным рабочим местам, пожарные – для противопожарных целей, а аварийные – для эвакуации персонала.
Основные лестницы могут иметь до 5 маршей между этажами, располагаются они в лестничных клетках, выполняются обычно из сборного или монолитного железобетона и имеют обычно уклон в 30°. Конструкции и геометрические параметры этих лестниц аналогичны применяющимся в каркасных и бескаркасных гражданских зданиях.
Служебные лестницы имеют уклон от 45 до 90°. Они выполняются из листового, полосового, стержневого и уголкового металла. Ширина марша – до 900мм. Такие лестницы используются для подъема на этажерки, к рабочим площадкам или к крановому оборудованию.
Пожарные лестницы устраиваются вертикальными, из металла, шириной до 700мм. Их устраивают наружными, у простенков здания или торцов фонарей – надстроек и не доводят до земли на 1,5-2м.
Аварийные лестницы выполняются многомаршевыми из металла, с уклоном маршей до 45°, шириной марша до 700мм, с расстоянием между площадками не более 3,6м. Их обязательно доводят до земли.
Рекомендуемые материалы
Перегородки в промзданиях подразделяются на выгораживающие и ограждающие.
Выгораживающие перегородки («выгородки», инвентарные перегородки) устраиваются сборно-разборными на высоту, меньшую чем высота цеха. Они делаются из щитов с различным заполнением (из стекла, дерева, металла и т.д.). Выгораживающие перегородки отделяют друг от друга различные технологические участки производственного здания с одинаковыми микроклиматическими параметрами.
Технологические участки с различным температурно-влажностным режимом, с опасностью возгорания, взрыва или вредными технологическими выделениями отгораживаются друг от друга стационарными ограждающими перегородками из кирпича, мелких блоков или стеновых панелей. Они устраиваются на всю высоту помещения и часто требуют сооружения дополнительного фахверка для крепления крупноразмерных элементов таких перегородок или устройства пилястр при строительстве ограждающих перегородок из мелкоразмерных элементов.
В последнее время значительно расширилось применение выгораживающих перегородок из стеклоблоков, стеклопрофилита, стеклопластика и т.д. с легким каркасом из алюминиевых или гнутых стальных профилей. Также возможно применение легких трансформируемых перегородок – откатных, складчатых, раздвижных и т.д. Конструкции таких перегородок аналогичны конструкциям соответствующих типов ворот.
Ворота в промзданиях устраиваются для ввода в них транспортных средств, перемещения грузов или оборудования и прохода большого количества работающих в здании людей.
Размеры ворот устанавливаются в соответствиями с требованиями технологического процесса, протекающего в промздании и с требованиями унификации конструктивных элементов здания.
Размеры проемов ворот принимаются кратными укрупненному модулю 600мм. Основные размеры ворот имеют следующие значения (ВхН): 2,4х2,4м; 3,0х3,0м; 3,6х3,0м; 3,6х3,6м; 3,6х4,2м; 4,8х5,4м.
По способу открывания ворота подразделяются на распашные, раздвижные, складчатые, откатные, подъемные и шторные.
Конструктивные элементы ворот выполняются из дерева или металла. Они могут быть утепленными или холодными, с калитками для прохода или без них.
Наиболее широко в настоящее время используются распашные и раздвижные ворота, полотна которых могут открываться как вручную, так и при помощи специальных механизмов.
Двери в промышленных зданиях по своему конструктивному решению, способу открывания и расположению в здании практически аналогичны рассмотренным ранее типам дверей для гражданских зданий.
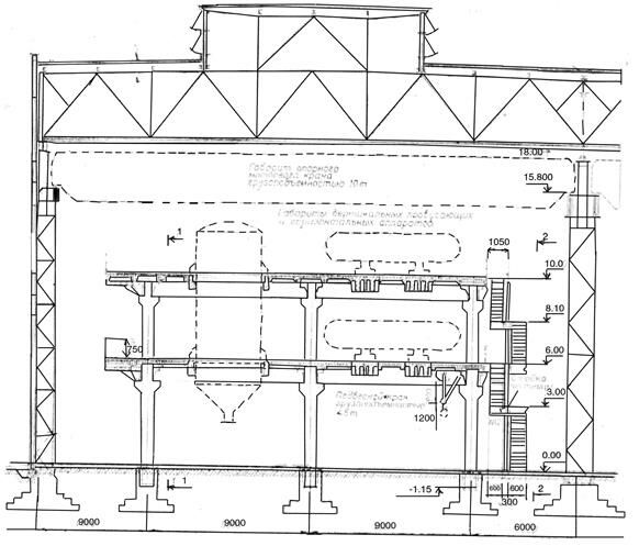
Этажерки предназначены для размещения технологического оборудования в производственных зданиях и вне него. Они имеют открытую ярусную каркасную конструкции и выполняются из стали, сборного и монолитного железобетона.
Этажерки – это обобщающий термин, который охватывает рабочие или технологические площадки, эстакады и собственно этажерки.
Рабочие, или технологические площадки устанавливаются для обслуживания кранов, промышленных вентиляторов и технологического оборудования. Их подразделяют на переходные, посадочные, ремонтные или смотровые.
Если на рабочих площадках устанавливается технологическое оборудование, то они носят название эстакад (при высоте в 1 ярус) или этажерок (при высоте в несколько ярусов).
Этажерки подразделяются на низкие (до 4 ярусов) и высокие, на стальные или железобетонные, на стационарные и сборно-разборные.
Для подъема на площадки и этажерки устраиваются специальные лифты, и даже подъемники.
Конструкции площадок, эстакад и этажерок, как правило, состоит из балочной клетки с настилом, которые образуют перекрытия и системы опор.
В качестве опор используются либо существующие колонны каркаса промзданий, либо собственно оборудование, либо специальные колонны.
Рамы каркаса этажерок располагаются в поперечном направлении и между их колоннами устраиваются связи.
Рисунок 1. Основные лестницы в промышленных зданиях.

а – двухмаршевая лестница; б – трехмаршевая лестница.
Рисунок 2. Конструктивное решение служебных лестниц.



а – маршевая стальная лестница; б – верхний узел опирания марша; в – нижний узел опирания марша.
1 – косоур из швеллера;
2 – опора проступи из уголка.
Рисунок 3. Пример ограждающей панельной перегородки.

1 – доборные асбоцементные листы;
2 – тонкие железобетонные панели;
3 – обвязочный стальной ригель;
4 – проем ворот;
5 – стойка фахверка перегородки.
Рисунок 4. Примеры щитовых выгораживающих перегородок.











а – деревянные;
б – железобетонные;
в – стальные.
1 – стекло;
2 – металлическая сетка;
3 – деревянная панель щитовой перегородки;
4 – железобетонная панель щитовой перегородки;
5 – металлическая панель щитовой перегородки;
6 – стена;
7 – колонна каркаса.
Рисунок 5. Основные виды ворот промышленных зданий.

а – распашные; б – раздвижные; в – складчатые; г – подъемные; д – подъемно-складчатые; е – откатные.
Рисунок 6. Примеры конструктивного решения ворот.



а – распашные ворота; б – раздвижные ворота.
1 – металлическая полоса; 2 – ригель рамы ворот; 3 – деревян-ная обвязка; 4 – двутавр; 5 – швеллер; 6 – резиновый нащельник; 7 – утеплитель полотна ворот (войлок, минвата и т.д.); 8 – стальной лист; 9 – асбоцементный лист по цементно-песчаной стяжке с уклоном; 10 – швеллер (верхняя и нижняя направляющие).
Рисунок 7. Пример этажерки для технологического оборудования в производственном здании павильонного типа.
Люди также интересуются этой лекцией: 4 Трудовой договор.
Фрагмент плана.
![]() | ![]() | ![]() |




![]() |
Фрагмент разреза.






























