Многоэтажные промздания
Лекция 9.
Многоэтажные промздания.
Для предприятий легкой промышленности и для различных точных производств как правило, применяются многоэтажные каркасные производственные здания.
Элементы каркаса многоэтажных промзданий выполняются из сборного или монолитного железобетона или из стали. Каркасы применяются как балочные, так и безбалочные.
В настоящее время в нашей стране возведение многоэтажных промзданий осуществляется в более широких масштабах, чем раньше, однако еще в меньшей степени, чем за рубежом.
К основным достоинствам многоэтажных промзданий относится: малая площадь застройки и, как следствие, экономия территории; минимальная площадь ограждающих конструкций при заданной рабочей площади здания; возможность развития технологического процесса по вертикали и возможность получения выразительного архитектурного решения.
К основным недостаткам многоэтажных промзданий относятся: относительная сложность возведения; сложность обеспечения необходимого естественного освещения и вентиляции интерьеров; сложность обеспечения эвакуации персонала; большой расход площади на вертикальные коммуникации; относительно малая допустимая нагрузка на перекрытия.
Рекомендуемые материалы
Увеличение в последнее время объема строительства многоэтажных производственных зданий объясняется следующими основными причинами: увеличением стоимостью земли и общим дефицитом территории; совершенствованием конструктивных систем промзданий; повышением архитектурной и градоформирующей роли промышленных зданий.
Традиционными отраслями промышленности, в которых используется многоэтажные промздания, являются: отрасли легкой промышленности (обувная, ткацкая, швейная и т.д.), приборостроение и электроника, пищевая и горнорудная. Многоэтажные промздания также широко используются в химических и машиностроительных отраслях промышленности.
Многоэтажные промздания классифицируются:
По назначению: производственные (включая подсобные и складские) и вспомогательные (АБК);
По ширине застройки: узкие (до 30м) и широкие (свыше 30м);
По конструктивным системам: каркасные, бескаркасные, с неполным каркасом, с ядрами жесткости;
По конструкциям перекрытий: балочные и безбалочные;
По материалу конструкций каркаса: со стальным, железобетонным или деревянным каркасом. Последний тип до сих пор широко используется за рубежом, а в отечественной практике встречается в стальных промзданиях.
По способу возведения: традиционным методом и методом подъема перекрытий (подъема этажей);
По планировочному решению: с постоянной сеткой колонн на всех этажах, с увеличенной сеткой колонн на верхнем этаже и с техническими этажами.
Многоэтажные промздания с балочными перекрытиями из сборных железобетонных элементов являются основным типом таких зданий. Как правило, они выполняются высотой до 5 этажей с сеткой колонн 6х6 и 6х9м.
Основными элементами каркаса являются фундаменты, колонны, ригели, плиты перекрытий и покрытия и связи жесткости. Ригели в сочетании с колоннами образуют рамы (как правило, поперечные).
Плиты перекрытий и связи обеспечивают жесткость и устойчивость здания в продольном направлении; в поперечном направлении это достигается за счет жесткости узлов рам.
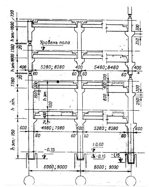
Высоты этажей многоэтажных промзданий изменяются в широких пределах и составляют 3,6; 4,8; 6,0; 7,2м (наиболее часто используемые). Применяются также высоты 3,0; 4,2; 8,4м.
Привязки средних колонн каркаса – центральная, а крайних колонн – нулевая или центральная.
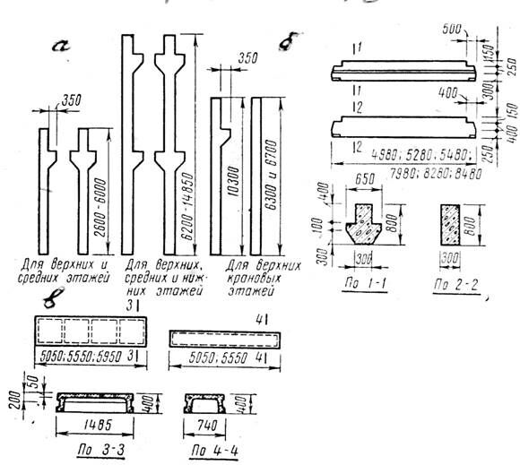
Колонны каркаса многоэтажных промзданий бывают высотой на 1 или на 2 этажа, крайние и средние, сечением 400х400 или 400х600мм, с развитыми консолями, направленными «в пролет» для опирания на них ригелей.
Плиты перекрытий и покрытия – ребристые усиленного профиля высотой 400мм, модульной шириной 1500мм (рядовые плиты) и 750мм (доборные плиты) и модульной длиной 5000, 5500 и 6000мм.
Ригели обычно применяются прямоугольные и типа «обратный тавр» высотой 800мм и шириной соответственно 300 и 600мм. Ригели проектируются на пролет 6м и 9м с модульными длинами 5000, 5300, 5500, 8000, 8300 и 8500мм.
Безбалочные перекрытия, как сборные, так и монолитные, применяются при больших нагрузках на перекрытия или необходимости устройства гладкого потолка для активизации вентиляции или необходимости размещения коммуникаций инженерных систем.
Сборные безбалочные перекрытия выполняются с надколонными (межколонными) плитами в одном или двух направлениях, без надколонных (межколонных) плит, с развитыми или плоскими капителями на колоннах и т.д.
При пролетах каркаса многоэтажных промзданий 12м, их целесообразно перекрывать специальными фермами, высота которых достигает 3 – 4м. Это позволяет использовать их высоту для устройства междуэтажных технических этажей. При этом варианты применяющихся ферм – ригелей могут быть следующими: арочная ферма, безраскосная ферма, безраскосная ферма с восходящими опорными подкосами. Последний тип ферм в настоящее время является наиболее широко применяемой. Плиты перекрытий над и под пространством технического этажа опираются на верхний и нижний пояса ферм.
Рисунок 1. Характерные поперечные разрезы многоэтажных промзданий с различным типом ригелей.

Рисунок 2. Элементы балочного железобетонного каркаса.
а – колонны; б – ригели перекрытий и покрытия; в – плиты перекрытий и покрытия.

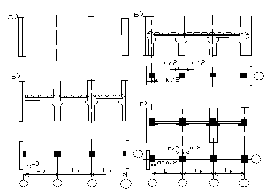
Рисунок 3. Примеры унифицированных каркасов многоэтажных зданий.

а – здание с сеткой колонн 6х6 или 9х9м с опиранием плит на полки ригелей; б – здание с сеткой колонн 6х6 или 9х9м с опиранием плит поверху ригелей.
Рисунок 4. Многоэтажное промздание с техническими этажами с использованием железобетонных безраскосных ферм с восходящими подкосами пролетом 12м.

Рисунок 5. Основные виды безбалочных перекрытий.

а – межколонные (надколонные) плиты в двух направлениях;
б – межколонные (надколонные) плиты в одном направлении;
в – без межколонных (надколонных) плит;
г – с межколонными (надколонными) плитами в двух направлениях и плоскими капителями.
Рисунок 6. Привязка колонн и стен многоэтажных промзданий к модульным разбивочным осям.
"9 Борьба за выбор пути развития страны" - тут тоже много полезного для Вас.
![]() |
а,б – нулевая; в,г – равная половине сечения внутренних колонн.
Рисунок 7. Элементы безбалочного каркаса.




а – монтажная схема; б – колонна; в – капитель; г – надколон-ная (межколонная) плита; д – деталь сопряжения.
























