Система шихтоподачи
3. Система шихтоподачи
Основными составляющими шихты современных доменных печей являются агломерат, окатыши и кокс; загружают также некоторое количество добавок (главным образом, это железная и марганцевая руда и флюсы). Для обеспечения работы доменной печи требуется бесперебойная подача этих материалов к загрузочному устройству на высоту 60—80 м порциями с определенным темпом и в определенной последовательности. Количество загружаемых в современную высокопроизводительную печь рудных материалов достигает 20 тыс. т и кокса 5500 т в сутки.

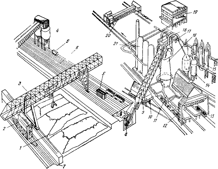
Рис. 2.3. План доменного цеха с конвейерным колошниковым подъемом и бесковшевой уборкой шлака
Все это предъявляет жесткие требования к системе шихтоподачи, которая должна обеспечить прием, транспортировку, хранение, набор, взвешивание и подачу материалов на колошник к загрузочному устройству. В системе шихтоподачи можно выделить три участка или звена: подача материалов с фабрик окускования, коксохимического завода (цеха) и с внешней железнодорожной сети на бункерную эстакаду; подача материалов из бункеров эстакады к колошниковому подъему; колошниковый подъем.
1.1 Подача материалов на бункерную эстакаду
Сооружавшиеся в прежние годы доменные печи имеют в своем составе рудный двор (рис. 3.1). Он предназначался для приемки сырых материалов, хранения необходимого их запаса, усреднения и последующей подачи материалов на бункерную эстакаду, откуда они затем загружались в печь. Такую схему доставки и загрузки материалов использовали тогда, когда основу шихты доменных печей составляла железная руда. Сейчас доменные печи работают преимущественно на окускованном сырье, и с рудного двора в печи поступает незначительное количество материалов, а рудные дворы используют как склады для фабрик окускования или для создания запаса материалов в расчете на непредвиденные обстоятельства в работе шихтоподачи.
Рудный двор представляет собой расположенную вдоль линии доменных печей площадку, ограниченную с одной стороны бункерной эстакадой 6, а с другой — приемной траншеей 7. Материалы хранятся в штабелях 1, их вместимость и площадь двора рассчитывают на обеспечение работы цеха в течение 1,5—2'мес. Бетонированная приемная траншея 7 служит для разгрузки поступающих материалов; вдоль нее проложен железнодорожный путь для прибывающих вагонов и по ширококолейному рельсовому пути перемещается башенный вагоноопрокидыватель 2.
Вся площадь рудного двора обслуживается грейферным краном-перегружателем 3, который передвигается вдоль двора над: штабелями. Поступающие на разгрузочный путь открытые вагоны с материалами принимает башенный вагоноопрокидыватель 2 и переворачивает их вверх колесами, высыпая материалы в приемную траншею 7. Из траншеи материалы перегружают в штабель грейфером крана-перегружателя. Для подачи материалов к печам порцию нужного материала захватывают грейфером из штабеля и подают в перегрузочный вагон 5, который перемещается по рельсам бункерной эстакады 6 и разгружает материал в бункер.
Рекомендуемые материалы

Рис. 3.1 Схема рудного двора
3.2 Бункерная эстакада
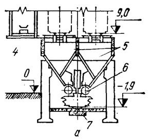
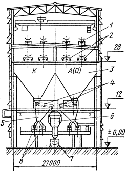
Бункерная эстакада предназначена для хранения у печи требуемого оперативного запаса материалов, их приемки, а также механизации набора и передачи материалов к колошниковому подъему. В строившихся до недавнего времени доменных цехах с печами, оборудованными скиповыми подъемниками, сооружали общую бункерную эстакаду, которая представляет собой вытянутое вдоль цеха и фронта печей, возвышающееся на 9—12 м над уровнем заводского пола железобетонное сооружение, состоящее из ряда отдельных бункеров и обслуживающего их оборудования. Располагают эстакаду вблизи печей со стороны скиповых подъемников. Поперечный разрез показан на рис. 3.2. Бункера в такой эстакаде расположены в два ряда (18—32 бункера на одну печь). Над бункерами проложены два железнодорожных пути 8 для доставки агломерата и добавок в бункера 5. Ленточный конвейер 4 служит для доставки кокса в бункера 3. Под бункерами проложен рельсовый путь 7 для вагон-весов 2, доставляющих материалы от бункеров 5 к скиповой яме 11. Бункера оборудованы барабанными затворами 6 для выдачи материалов в вагон-весы.
Под бункерами эстакады против печей находятся скиповые ямы 11, куда опускается скип 10 для приема материалов, выдаваемых из вагон-весов через направляющий лоток 9, или кокса, выдаваемого из бункеров 3 через весовую воронку 1. Коксовые бункера располагают над скиповой ямой, чтобы уменьшить число перегрузок кокса, при которых он измельчается в связи с малой прочностью.
Другой разновидностью подобных эстакад являются такие, в которых материалы от бункеров 5 доставляют к скипу с помощью продольного конвейера. Бункера в таких эстакадах размещают как в два, так и в один ряд и оборудуют электровибрационными питателями и грохотами для выдачи материалов на конвейер. Доставку материалов в бункера такой эстакады осуществляют как конвейерами, так и железнодорожным транспортом.
Бункера эстакад делают металлическими или железобетонными с покрытием их внутренней поверхности стальными плитами, рельсами. Сверху бункера перекрыты защитными решетками с размером ячеек до 250x250 мм. Для предотвращения смерзания материалов подбункерные помещения отапливаются. Коксовых бункеров обычно два, и иногда четыре; их общую емкость принимают из расчета 0,7 м3 на 1 м3 полезного объема печи (запас примерно на 6 ч работы). Объем бункеров для рудных материалов при их подаче железнодорожным транспортом принимают из расчета 2,5 м3 на 1 м3 полезного объема печи (запас на 20—24 ч работы). При конвейерной подаче с близко расположенных фабрик окускования норма запаса уменьшается.
Отдельные бункерные эстакады. Для доменных цехов и печей с конвейерным колошниковым подъемом вместо общей, расположенной вдоль цеха вблизи печей бункерной эстакады обычно сооружают отдельные на одну-две печи бункерные эстакады, которые в связи с большой длиной конвейера подачи шихты на колошник располагают на значительном (250—450 м) расстоянии от печи.

в
Рис. 3.2 Бункерная эстакада с вагон-весами (а — поперечный разрез по бункерам; б — по скиповой яме) и с конвейерной выдачей материалов (в).
Подача материалов на эстакаду и ее устройство. Материалы на бункерные эстакады подают конвейерным или рельсовым транспортом (передаточные вагоны; специализированные железнодорожные вагоны-окатышевозы, коксовозы; полувагоны с откидывающимися люками в днище). Способ подачи и разгрузки материалов оказывает существенное влияние на устройство эстакады, величину капитальных затрат на ее сооружение и сложность ее обслуживания.
При подаче материалов железнодорожным транспортом и разгрузке вагонов непосредственно на бункерной эстакаде ее высоту делают в пределах 9—12 м. Бункера такой эстакады вследствие ограниченной высоты имеют сравнительно небольшой объем, что предопределяет необходимость сооружения большого числа бункеров, под каждым из которых обычно установлены грохоты для выдачи материалов и отсева мелочи (под бункерами для добавок— питатели), взвешивающие устройства и далее питатели. Получается сложная система выдачи материалов с большим числом механизмов, узлов перегрузки и точек пыления (только в тракте набора, взвешивания и транспортировки агломерата в таких системах устанавливают 20—40 грохотов).
При конвейерной подаче материалов в бункера эстакады; отпадает ограничение в ее высоте и становится возможным создание бункеров большой емкости и уменьшение их числа, благодаря чему существенно упрощается система выдачи материалов из бункеров и уменьшается число точек пыления (в местах перегрузок). Подобные эстакады с конвейерной доставкой и загрузкой материалов в бункера рекомендуются: для вновь сооружаемых цехов (рис. 3.2 в).
При отдаленных источниках снабжения и доставке материалов в цех железнодорожным транспортом в соответствии с разработками Гипромеза рекомендуется сооружение рядом с эстакадой специального разгрузочного отделения. Материалы из вагонов, располагаемых на нулевой отметке, выгружают в приемные бункера разгрузочного отделения и из них наклонным конвейером доставляют на. бункерную эстакаду. По расчетам Гипромеза, создание разгрузочного отделения в сочетании с бункерной эстакадой большой высоты экономичнее сооружения обычных бункерных эстакад высотой до 12 м с разгрузкой вагонов непосредственно на эстакаде.
3.3 Подача шихты на колошник
Разработаны и в настоящее: время применяются: два способа подачи шихтовых материалов на колошник доменной печи к. ее загрузочному устройству — скиповой и конвейерный. Высота подъема материалов для крупных печей достигает 70—80 м.
Скиповой подъемник. Основными элементами скипового подъемника (рис. 3.3) являются наклонный мост 5, два перемещающихся по мосту скипа 3, скиповая лебедка 1 и система канатов 4 и блоков; для подвески и перемещения скипов. Наклонный мост представляет собой сварную пространственную металлоконструкцию, внутри которой проложены два рельсовых пути 7, по; которым движутся скипы. Угол. наклона моста к горизонту составляет 47—54°, а на участке у скиповой ямы 6 достигает 60°. Наклонный мост имеет две опоры - фундамент у скиповой ямы и колонну 2 (пилон), опирающуюся на фундамент доменной печи.
Скип (рис. 3.4) состоит из кузова 3, передних 1 и задних 5 скатов (колес) и упряжного устройства. Кузов сварной из стальных листов, имеет открытый передний торец и закругленное дно. Упряжное устройство двумя продольными тягами 2, связанными поперечной траверсой 6, крепится к цапфам 4 кузова, к траверсе прикреплены балансиры 7, а к ним тяги 9, к которым через блоки 10 крепят два каната, идущие к скиповой лебедке. Балансиры 7 и тяга 8 служат для выравнивания натяжения канатов. Приближенно вместимость скипа Vск = 0,0065V, где V — объем печи. Выпускают скипы вместимостью 4,5; 8; 10; 13,5 и 20 м3.

Рис. 3.3. Схема скипового подъемника

Рис. 3.4 Скип
Перемещение скипов обеспечивает скиповая лебедка 1, размещаемая в машинном зале под наклонным мостом. Грузоподъемность скиповых лебедок возрастает при росте объема печи и скипа и для печей объемом 1033—3200 м3 составляет 15—39 т. Скипы соединяют канатами с барабаном скиповой лебедки таким образом, что обеспечивается уравновешивание скипов; при движении груженого материалами скипа вверх порожний скип опускается вниз, в скиповую яму.
Загрузка материалов в скип 3б происходит в скиповой яме 6, разгрузка — на колошнике в приемную воронку засыпного аппарата путем опрокидывания (наклона) скипа. 3а. Опрокидывание скипа происходит вследствие того, что передние скаты скипа движутся по, рельсам, загибающимся книзу, а задние переходят на более широкую колею, загибающуюся кверху. Время подъема (опускания) скипа обычно составляет 35—45 с, скорость движения по мосту достигает 3—4 м/с.
Конвейерный подъемник. Материалы на колошник печи от бункерной эстакады подают с помощью одного наклонного ленточного конвейера, размещаемого в закрытой наклонной галерее. Угол наклона конвейера к горизонтали делают небольшим чтобы исключить скольжение и скатывание насыпного груза по ленте под действием силы тяжести. При транспортировке агломерата этот угол не должен превышать 12°; обычно угол наклона конвейера к горизонту делают в пределах 10—11°. Малый угол наклона обусловливает большую длину конвейера, которая составляет 250—500 м. В конвейерах колошниковых подъемников применяют резинотросовые ленты из теплостойкой резины, ширина ленты составляет 1,2—2,0 м. Скорость движения, ленты обычно составляет 2,0 м/с.
Конвейер работает непрерывно, а транспортируемые материалы располагаются на нем отдельными порциями с определенными интервалами, величина которых зависит от режима работы загрузочного устройства печи и требуемой интенсивности загрузки, определяемыми заданной программой. Обычно управление режимом подачи материалов автоматизировано. Важным технологическим преимуществом системы является возможность подачи в одной порции агломерата, окатышей и добавок путем послойной их укладки на ленте при ее движении под подающими бункерами. Материалы можно подавать в таких соотношениях и последовательности, какие требуются для гибкого управления работой доменной печи.
Большая длина конвейера требует изменения планировки доменного цеха — бункерную эстакаду необходимо располагать на удалении от печи, а не рядом, как в случае применения: скипового подъемника. Конвейерная система подачи материалов на колошник вызывает также необходимость применения' засыпных аппаратов новой конструкции, отличающихся от широко применяющихся двухконусных аппаратов с вращающимся распределителем. Эти аппараты должны иметь не менее двух специальных воронок-бункеров для приема подаваемых конвейером материалов.
На рис. 3.5 показан общий вид одного из конвейерных колошниковых подъемов. Наклонная галерея, в которой размещен конвейер, смонтирована на нескольких опорах. Материалы с конвейерной ленты поступают в приемную воронку 6 загрузочного устройства печи. Натяжное устройство ленты в этом подъемнике выполнено в виде груза.
На рис. 3.6 показана схема конвейерного подъемника печи объемом 5000 м3 Криворожского металлургического комбината. Конвейер включает ленту 4; приводную станцию 7; хвостовой барабан 8 на натяжной тележке 9; натяжную станцию 14; головной барабан 1, разгружающий материалы в приемную воронку 2 загрузочного аппарата; отклоняющие барабаны 3 и систему роликов, поддерживающих ленту (на схеме не показана). Резинотросовая лента шириной 2 м размещена в наклонной галерее круглого сечения диаметром 6 м; угол наклона ленты составляет 10030', скорость ее движения 2,0 м/с. Разрывное усилие ленты составляет 8 МН, что соответствует запасу прочности, равному 10. Рабочая (груженая) ветвь ленты опирается на трехроликовые желобчатые опоры, расположенные с шагом 1,2 м; холостая ветвь — на двухроликовые опоры с шагом 3 м.

Рис. 3.5. Конвейерный колошниковый подъемник с грузовым натяжным устройством:1 — бункерная эстакада; 2-галерея ленточного конвейера;3— контргруз для натяжения ленты; 4— натяжной вал; 5 —опоры; 6 — загрузочное устройство; 7 — доменная печь
Материалы загружают на ленту в бункерной эстакаде отдельными порциями объемом до 37,5 м3 с минимальными интервалами между ними 17 с (~35 м длины ленты), что обусловлено длительностью срабатывания механизмов, направляющих материалы в один или другой бункер загрузочного устройства лечи.
Приводная станция содержит два барабана 5 и 6, огибаемые лентой по S-образной схеме. Каждый барабан вращают двумя приводами (барабан 5 от двигателей мощностью по 800, барабан 6—по 500 кВт). Натяжная станция обеспечивает за счет груза 16 постоянное натяжение ленты, предотвращая ее провисание между опорными роликами. Груз через канат 15 и систему блоков 10, 11 и 12 воздействует на натяжную тележку 9, вызывая ее перемещение в случае удлинения или укорачивания ленты; возможный ход тележки равен 8 м. Наличие лебедки 13 позволяет сократить ход груза 16. В случае достижения грузом предельных верхнего или нижнего положений включают лебедку, наматывая на ее барабан канат 15 или сматывая его, и возвращают груз в нормальное установочное положение.

Рис. 3.6 Схема конвейерного колошникового подъемника печи объемом 5000 м3
Общая характеристика колошниковых подъемов. Все строившиеся до недавнего времени доменные печи оборудованы скиповыми подъемниками шихты на колошник. Конвейерную систему подачи начали применять в последние годы на новых доменных печах большого объема. Основной причиной, обусловившей применение конвейерной подачи, явилось то, что скиповые подъемники не обеспечивают требуемый темп загрузки печей большой производительности. Преимущества конвейерной системы подъема по сравнению со скиповой состоят в значительно большей производительности, достигающей 30000 т материалов в сутки и более; снижении на 15—20 % удельных капитальных затрат на сооружение колошникового подъема и эксплуатационных расходов; создании единой системы подачи шихты на колошник непрерывным транспортом с полной ее автоматизацией; облегчении строительства доменной печи, так как печь и конвейерный подъемник являются независимыми сооружениями; отсутствии необходимости в сооружении скиповой ямы (все оборудование находится на поверхности, что облегчает обслуживание); освобождении территории около печи для размещения других агрегатов (например, установок припечной грануляции); большем в несколько раз сроке службы ленты конвейера, чем скиповых канатов; возможности подачи в одной порции нескольких материалов путем их послойной укладки на ленте.
С учетом изложенного для вновь сооружаемых доменных печей большого объема рекомендуется применение конвейерного колошникового подъема.
3.4 Подача материалов к колошниковому подъему
Применяют три разновидности систем подачи материалов к скиповому подъемнику — с использованием вагон - весов, ленточных конвейеров и через центральные бункера эстакады.
Система подачи с использованием вагон - весов схематично показана на рис. 3.7. По ближайшему к печи пути 1 к коксовым бункерам 12 с помощью перегрузочных вагонов 7 подают кокс (часто вместо них применяют конвейер), по средним путям 2 и 3 в бункера 5 подают прочие материалы от внешних источников снабжения с помощью железнодорожных вагонов 6, имеющих открывающиеся люки и днище и с рудного двора при помощи перегрузочных вагонов 8. Перегрузочные вагоны 7 и 8 (трасферкары) представляют собой самоходный, управляемый машинистом вагон с бункером, имеющим снизу две створки, открываемые с помощью электро- или пневмопривода. Рудный вагон имеет бункер емкостью 30 м3, коксовый — 60 м3 и одну открываемую створку. Путь 4, расположенный на консоли эстакады над рудным двором, служит для разгрузки вагонов 17 на рудный двор.

Рис. 3.7 Схема подачи материалов к скиповому подъемнику с помощью вагон - весов
Под бункерами 5, оборудованными барабанными затворами 18 для выдачи материалов, проложен вдоль эстакады рельсовый путь для движения вагон - весов 9. Вагон - весы предназначены для набора, взвешивания, транспортировки материалов (кроме кокса) от бункеров к скиповой яме и разгрузки их в скипы. Вагон - весы — это самоходный электровагон грузоподъемностью 30 или 40 т. с двумя бункерами (карманами), имеющими днища в виде открываемых пневмоприводом створок. Вагон оборудован весами, позволяющими контролировать количество набираемых в карманы материалов. Вагон останавливают под определенным бункером 5, после чего имеющийся на вагоне специальный выдвижной механизм приводит во вращение барабанный затвор 18 бункера, обеспечивая тем самым выдачу материалов в карман вагон - весов. Далее вагон движется к скиповой яме, останавливается и выгружает материалы из карманов в скип 11 через направляющий лоток 10.
Кокс из расположенных над скиповой ямой бункеров 12 выдают путем включения грохота-питателя 13. При движении по нему кокса происходит отсев мелочи; крупные куски с грохота поступают в воронку - весы 14, откуда дозированная порция попадает в скип. Коксовая мелочь попадает в бункер 15 с затвором, а из него в скип 16 подъемника коксовой мелочи, выдающий мелочь в сборный бункер (на схеме не показан), откуда ее вагонами отправляют на аглофабрику.
Система набора и подачи материалов с помощью вагон - весов обладает рядом существенных недостатков: ограниченная производительность в связи с наличием холостых пробегов, ожиданий скипа, длительным набором материалов; невозможен отсев мелочи агломерата и других материалов; трудность автоматизации работы вагон - весов; значительное пылевыделение при (выдаче материалов из бункеров (особенно при выдаче агломерата и кокса сухого тушения); напряженные условия работы машиниста. Поэтому для вновь сооружаемых больших печей вагон - весы не применяют. В существующих цехах они используются на печах объемом 1719 м3 и менее. При реконструкциях осуществляется замена их конвейерной системой подачи. Однако, и в этом случае организовать отсев мелких фракций рудных материалов не удается: габаритные размеры подбункерного помещения не позволяют установить грохоты и оборудование для уборки мелочи.
Системы с конвейерной подачей к скиповому подъемнику. Схема одной из подобных систем, разработанной для доменной печи объемом 2002 м3, показана на рис. 3.8. В бункерных эстакадах подобных систем бункера могут располагаться в одном или два ряда; материалы в них подают конвейерами или совместно конвейерами и вагонами. В рассматриваемой системе 20 бункеров эстакады расположены в один ряд по 10 бункеров с каждой стороны скиповой ямы, т. е. созданы две самостоятельные линии, подачи материалов. Агломерат из бункеров А с помощью элактровибрационных грохотов-питателей 3, отсеивающих мелочь, подается на пластинчатый конвейер 4, которым его транспортируют к скиповой яме, и посредством перекидного лотка 5 загружают в одну из двух весовых воронок 16. Для корректировки массы агломерата над скиповой ямой расположены два бункера довеса 6, из которых материал добавляют в весовые воронки малыми порциями. Отвешенную порцию материалов высыпают в скипы 14, открывая: затвор весовой воронки 16.

Рис. 3.8 Схема системы конвейерной подачи шихты к скиповому подъемнику
Отсеянная грохотом мелочь агломерата попадает на конвейер 2 и по нему в бункер мелочи, из которого скиповым подъемником 1 выдается в вагоны для отправки на аглофабрику для повторного спекания. Добавки (железная, марганцевая руда и известняк) через электровибрационные питатели 8 поступают в весовые воронки 10 и далее по конвейеру, через перекидной лоток 12 в промежуточный бункер 15, из которого их загружают в скип с агломератом.
Подачу в скипы кокса производят так же, как и в системе с вагон - весами. Из расположенного над скиповой ямой бункера 7 кокс с помощью электровибрационного грохота-питателя 11, отсеивающего мелочь, поступает в весовую воронку 13 и далее в скип. Мелочь кокса через бункер 18 скиповым подъемником 17 выдают в вагоны для отправки на аглофабрику. Работа системы автоматизирована. Недостатками подобных систем считают большое число бункеров и обслуживающих их механизмов и большое число точек пыления.
Система подачи материалов к скиповому подъемнику через центральные бункера (рис. 3.9) разработана в последние годы и применяется на печах объемом 3200 м3. Эта система является более совершенной, чем две предыдущие, так как обеспечивает загрузку большей части шихты (агломерата и кокса) в скипы непосредственно из расположенных над ними бункеров, позволяя исключить конвейеры подачи агломерата. Эти располагаемые в центре эстакады бункера должны иметь большой объем, чтобы вместить требуемый запас материалов.
Скиповый подъемник при этом делают с раздвоенным наклонным мостом, план такого подъемника показан на рис. 3.9. По каждой из двух сходящихся у доменной печи 17 ветвей 18а и 18б моста передвигается один скип (соответственно 9а и 9б). Под ветвями раздвоенного моста сооружают две скиповые ямы на удалении друг от друга, что позволяет размещать над ними бункера большого объема. Предпочтительным является также применение конвейерной доставки материалов на бункерную эстакаду, поскольку конвейерная система в отличие от рельсовой не ограничивает высоту эстакады, позволяя сооружать бункера большой высоты и объема, без чрезмерного заглубления скиповых ям.

Рис. 3.9 Схема системы подачи материалов к скиповому подъемнику через центральные бункера
Как следует из рис. 3.8, над каждой скиповой ямой установлено по два бункера для кокса и агломерата. У торцов центральных бункеров (справа и слева) расположены по два бункера для добавок и один резервный для агломерата, из которых материалы в скипы подают конвейерами.
Материалы на бункерную эстакаду подают конвейерами 13 и распределяют по бункерам реверсивными передвижными конвейерами 14.
Система загрузки скипов состоит из двух одинаковых независимых линий, каждая из которых подает материалы к одному из скипов. Кокс из бункеров К вибрационными грохотами 12, отсеивающими мелочь, подают в весовые воронки 8 и далее по наклонному желобу (течке) 10 в скип 9 а. Аналогичным образом подают в скип агломерат из бункеров А (вибрационными грохотами 12, отсеивающими мелкие фракции, и далее через весовую воронку 5 и течку 7). Отсеянная грохотами 12 мелочь кокса и агломерата попадает в течки-бункера 15 и далее с помощью специальных скипов 16 или конвейеров (на рис. не показаны) выдается в вагоны для отправки на аглофабрику.
Добавки из бункеров Д электровибрационными питателями 1 подают в весовые воронки 2 добавок и затем на конвейер 3, транспортирующий их в весовую воронку 5 агломерата. Агломерат из резервных бункеров А после грохотов 4 подают конвейером 3 в весовую воронку 5. Весовые воронки для кокса и агломерата снабжены весопроверочными устройствами 6 и 11. Работа системы автоматизирована.
Подача материалов к конвейерному колошниковому подъему Обязательной составной частью рассмотренных ранее систем подачи является скиповой подъемник, который не обеспечивает темпа загрузки, требуемого для сооружающихся в последние годы крупных высокопроизводительных печей. Поэтому для них разработаны системы, где материалы от бункеров до колошника подаются полностью конвейерами.
Можно выделить две разновидности систем с конвейерной подачей материалов от бункеров до колошника. Одна из них предусматривает использование конвейерного колошникового подъема и конвейерную подачу материалов к нему от бункеров. Схема подобной системы, впервые примененной на доменной печи объемом 5000 м3 (печь № 9 Криворожского металлургического комбината, Украина), представлена на рис. 3.10. По обе стороны от наклонного конвейера 8, подающего материалы на колошник, находятся две группы расположенных в два ряда бункеров для агломерата, окатышей, кокса и добавок. Агломерат и окатыши выдают соответственно из бункеров А и О в весовые воронки 2 с помощью самобалансных грохотов 1, отсеивающих мелочь. Из воронок отвешенные порции материалов подаются питателями 3 на сборный конвейер 5, который доставляет их к перегрузочному узлу 19, где их перегружают на наклонный конвейер 5. Кокс из бункеров Д с помощью вибрационных грохотов 9, отсеивающих мелочь, подается в весовые воронки 10 и далее питателями 11 на конвейер 5 с последующей перегрузкой на конвейер 5. Добавки подаются на сборочный конвейер 5 через весовые воронки 7 питателями 6.
Отсеянная грохотами 1 мелочь агломерата и окатышей поступает на конвейер 4 и далее сборочными конвейерами 18 выдается в бункер мелочи 16. Отсеянная мелочь кокса конвейерами 12 и 13 направляется в бункер мелочи 14. В случае необходимости мелочь агломерата и окатышей можно загружать в бункер 14 при помощи перекидных шиберов 17. Из бункеров 14 и 16 отсеянные материалы выдаются в железнодорожные вагоны питателями 15, снабженными увлажнителями. Конвейеры 5 и 8 работают непрерывно и материалы выдаются на них порциями с определенными интервалами в соответствии с заданной программой загрузки. Управление режимом набора, взвешивания и транспортировки шихты автоматизировано.
Более совершенной является вторая разновидность рассматриваемой системы загрузки, в которой исключены сборные конвейеры, передающие материалы от бункеров эстакады к наклонному конвейеру колошникового подъемника, т. е. в которой материалы от бункеров эстакады до колошника подаются одним конвейером. Схема подобной системы загрузки, разработанной для печи объемом 5500 м3, Череповецкого металлургического комбината показана на рис. 3.11. Горизонтально-наклонный конвейер 8 колошникового подъема проходит через размещенную вдоль него бункерную эстакаду; материалы из расположенных над конвейером бункеров эстакады выдаются на движущуюся ленту конвейер а, доставляющую их к колошниковому загрузочному устройству печи.
Бункерная эстакада состоит из пяти каналов выдачи на конвейерный подъемник агломерата, четырех каналов кокса, двух каналов окатышей, четырех каналов добавок и одного канала, предназначенного для окатышей или кокса. В каждом канале агломерата, окатышей и кокса материал из соответствующих бункеров А О и К выдают в весовую воронку 4 емкостью 80 м3 с помощью трех самобалансных (ГСТ-62) грохотов 1, отсеивающих мелочь. Применение в одном канале трех грохотов 1 повышает производительность и улучшает эффективность грохочения. Из весовой воронки 4 материал с помощью самобалансного питателя 2 типа ПТ выдается на конвейер 8. Отсеянная грохотами 1 мелочь поступает на продольные ленточные конвейеры 6, с которых ее перегружают на поперечные конвейеры 7. Добавки из бункеров Д передаются электровибрационными питателями 9 в весовые воронки 5 и далее с помощью питателей 3 на ленту конвейерного подъемника 8. Материалы на конвейер 8 выдаются по заданной программе, работа системы шихтоподачи автоматизирована

Рис. 3.10 Схема системы шихтоподачи печи объемом 5000 м:3 Криворожского металлургического комбината

Рис. 3.11 Схема системы шихтоподачи печи объемом 5500 м3 ЧерМК
3.5 Грохоты и питатели
Ниже дана характеристика широко используемых в доменных цехах грохотов и самобалансного питателя.
Грохоты. Для отсева мелочи агломерата в системах шихтоподачи существующих печей широко применяют электровибрационные грохоты 182-Гр. Для отсева мелочи кокса используют электровибрационные грохоты с резонирующими колосниками (типа ГВК), которые в последние годы заменяют самоцентрирующимися инерционными грохотами (ГИТ); на печах объемом 2700-3000 м3 устанавливали не показавшие высокой эффективности рассева инерционные грохоты ВГО. На сооружаемых в последние годы печах объемом 3200- 5500 м3 для рассева агломерата и кокса используют высокопроизводительные, с хорошей эффективностью рассева самобалансные вибрационные грохоты ГСТ-62.
Грохот с резонирующими колосниками типа ГВК устроен как и электровибрационный, отличаясь конструкцией колосниковой решетки, выполненной из расположенных вдоль короба колосников (стальных полос). В этой решетке чередуются стационарные (жестко прикрепленные к коробу) колосники и резонирующие при вибрации короба, которые прикреплены к коробу концом. Грохоты ГВК,-1 и ГВК-2 имеют соответственно площадь грохочения 2,5 и 4 м2 и максимальную производительность 400 и 550 м3/ч.
Самоцентрирующийся инерционный грохот (рис. 3.12) включает подвешиваемый к бункеру 5 на тягах 4 с пружинами короб 8, в котором закреплены два сита 9 и 10, наклоненные к горизонту на угол 15—25°, и вибратор - эксцентриковый вал 7, на концах которого вне короба размещены диски 3 с противовесами (дебалансами); вал приводится во вращение электродвигателем 1 через клиноременную передачу 2. Вал с помощью подшипников закреплен в боковых стенках короба своей эксцентриковой частью, поэтому при вращении; вала с дебалансами его эксцентриковая часть вызывает перемещение короба по круговой траектории вокруг оси вала 7 с амплитудой 3—6 мм. Для обеспечения равномерной подачи кокса на грохот к бункеру 5 шарнирно подвешены пальцы 6.

Рис. 3.12 Самоцентрирующийся инерционный двухситовый грохот.
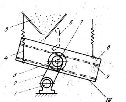
Инерционный грохот с простым дебалансным вибратором похож на самоцентрирующийся инерционный. Отличие его состоит в том, что вал вибратора прямой (не эксцентриковый). При вращении вала он вместе с коробом описывает круговую траекторию. Грохот ВГО-2 имеет производительность до 250 м3/ч.
Самобалансный грохот. На рис. 3.13 показан самобалансный грохот ГСТ-62А. Короб 4 грохота опирается через пружины 5- и опоры 1 на раму 3. В сварном коробе из двух боковых стенок, связанных двумя поперечными трубами-балками, закреплены два сита 9 с колосниковыми решетками. Колебания короба создают два дебалансных вибратора, представляющих собой вмонтированный в трубу-Салку вращающийся вал с дебалансами (противовесами) 8. Вращение валов с одинаковой скоростью, но в противоположных направлениях обеспечивают установленные на опорах 2 электродвигатели 6а и 66 через карданные валы 7. При вращении валов, имеющих дебалансы, возникают направленные инерционные силы, вызывающие колебания короба под углом 45° к горизонту с амплитудой 6 мм.
Вам также может быть полезна лекция "116 Производство по пересмотру судебных постановлений по вновь открывшимся обстоятельствам".
Размеры сита равны 2x5 м, максимальная производительность 400 м3/ч. У грохотов типа ГСТ-81 валы вибраторов соединены зубчатой передачей и вращаются от одного электродвигателя.

Рис. 3.13. Самобалансный грохот ГСТ-62А
Самобалансный питатель типа ПТ (рис. 3.14) устроен и работает так же, как самобалансный грохот. Колебания наклонно установленного на пружинах 3 короба (лотка) 1 вызывают два дебалансных вибратора 2, вращающихся в; противоположные стороны от отдельных электродвигателей. Размеры лотка равны 2,5х4,96 м, амплитуда колебаний под нагрузкой 5—6 мм, частота колебаний 980 мин-1, производительность до 1000 м3/ч.

Рис. 3.14 Питатель самобалансный типа ПТ



















