Эпюры внутренних усилий при прямом изгибе
Лекция № 4. Эпюры внутренних усилий при прямом изгибе.
Прямым изгибом называется такой вид простого сопротивления, когда внешние силы приложены перпендикулярно продольной оси бруса (балки) и расположены в одной из главных плоскостей в соответствие с конфигурацией поперечного сечения балки.
Как известно, при прямом изгибе в поперечном сечении возникают два вида внутренних усилий: поперечная сила и внутренний изгибающий момент.
Рассмотрим пример расчетной схемы консольной балки с сосредоточенной силой Р, рис. 1 а., …

а) расчетная схема, б) левая часть, в) правая часть, г) эпюра поперечных сил, д) эпюра изгибающих моментов
Рис.1. Построение эпюр поперечных сил и внутренних изгибающих моментов при прямом изгибе:
Прежде всего вычислим реакции в связи на базе уравнений равновесия:

Рекомендуемые материалы
После мысленного рассечения балки нормальным сечением 1—1 рассмотрим равновесие левой отсеченной части (рис.1 б), получим:

Таким образом, на первом участке поперечная сила отрицательная и постоянная, а внутренний изгибающий момент изменяется по линейному закону.
Для правой отсеченной части при рассмотрении ее равновесия результат аналогичен рис.1 в. А именно:

На основании полученных значений строятся эпюры поперечных сил (рис.1 г) и внутренних изгибающих моментов (рис.1 д).
Как следует из построенных эпюр
, а
в сечении жесткой связи. Именно это сечение и является наиболее опасным в данной расчетной схеме.
Продифференцируем выражение внутреннего изгибающего момента по координате х:

Как видим, после дифференцирования получено выражение для поперечной силы. Случайность это или закономерность? – Закономерность.
ДИФФЕРЕНЦИАЛЬНЫЕ ЗАВИСИМОСТИ МЕЖДУ ВНУТРЕННИМИ УСИЛИЯМИ ПРИ ИЗГИБЕ
Рассмотрим расчетную схему балки с произвольной распределенной нагрузкой
(рис.2).

Рис.2. Схема изгиба балки:
а) расчетная модель, б) фрагмент балки
Составим уравнение равновесия:


Таким образом, действительно: первая производная от внутреннего изгибающего момента по линейной координате равна поперечной силе в сечении.
Это известное свойство функции и ее первой производной успешно используется при проверке правильности построения эпюр. Так, для расчетной схемы консольной балки (рис.1) эта связь дает следующие проверочные результаты:
и М убывает от 0 до –Pl.
и М
х.
Рассмотрим второй характерный пример изгиба двухопорной балки (рис.3).

а) расчетная схема, б) модель первого участка, в) модель второго участка, г) эпюра поперечных сил, д) эпюра изгибающих моментов
Рис.3. Изгиб двухопорной балки:
Очевидно, что опорные реакции RA = RB
:
- < б) (рис.3 участка первого>

- для второго участка (рис.3 в) –

Эпюры внутренних усилий представлены соответственно на рис.3 г и 3 д.
На основе дифференциальной связи Q и М, получим:
- для первого участка:
Q > 0 и М возрастает от нуля до
.
Q = const и M
x
- для второго участка:
Q < 0 и М убывает с
до нуля.
Q = const и M также пропорционален х, т.е. изменяется по линейному закону.
Опасным в данном примере является сечение балки в центре пролета:
.
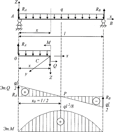
Третий характерный пример связан с использованием распределенной по длине балки нагрузки (рис.4). Следуя методике, принятой ранее, очевидно равенство опорных реакций:
, а для искомого сечения (рис.4 б) выражения для внутренних усилий приобретают вид:


а) расчетная схема, б) отсеченная часть, в) эпюра поперечных сил, г) эпюра внутренних изгибающих моментов
Рис.4 Двухопорная балка с равномерно распределенной нагрузкой:
На обеих опорах изгибающий момент отсутствует. Тем не менее опасным сечением балки будет центр пролета при
. Действительно, исходя из свойства функции и производной при
, внутренний изгибающий момент достигает экстремума. Для нахождения исходной координаты х0 (рис.4 в) в общем случае приравняем выражение поперечной силы к нулю. В итоге получим
Вместе с этой лекцией читают "Реактивность организма".

После подстановки
в выражение изгибающего момента получим:

Таким образом,

Необходимо отметить, что техника построения эпюр при изгибе наиболее трудно усваивается слушателями. Вам представляется возможность научиться «быстрому» построению эпюр на тесторе-тренажере, приведенном в ПРИЛОЖЕНИИ и решить в выходных тестах по сопротивлению материалов Вам знакомые по постановке задачи позиции.




















