Агрегаты, установки и инструмент для капитального ремонта, освоения и промывки скважин
Лекция № 11
«Оборудование для добычи НиГ»
Агрегаты, установки и инструмент для капитального ремонта, освоения и промывки скважин
В промысловой практике к капитальному ремонту скважин организационно относятся не только процессы и операции собственно капитального ремонта, но и целый ряд других процессов и операций. В частности, сложные ловильные операции, разрушение и подъем на поверхность оборудования, находящегося в скважине и не поддающегося извлечению обычными приемами, забуривание второго ствола, добуривание скважины для перехода на эксплуатацию нижнего горизонта, изоляция подошвенных вод и другие работы в призабойной зоне пласта, промывка и освоение скважин.
Оборудование для капитального ремонта, освоения и промывки скважин выполняется, в большинстве случаев, в агрегатированном исполнении на транспортных базах, обычно, самоходных на колесном реже на гусеничном ходу. Агрегаты эти на практике принято называть собственно агрегатами для капитального ремонта, для освоения и для промывки скважин. Агрегаты комплектуются инструментом, номенклатура которого зависит от их названия.
1. Агрегаты для капитального ремонта и освоения скважин
Рекомендуемые материалы
Агрегаты для капитального ремонта скважин представляют собой подъемник, по схеме аналогичный подъемнику для текущего ремонта, дополненный технологическим оборудованием для бурения, т.е. ротором, вертлюгом, манифольдом, промывочным насосом, системой приготовления и очистки бурового раствора. В большинстве случаев это оборудование агрегатировано на колесной транспортной базе, реже в зависимости от содержания операций капитального ремонта, используется группами отдельных узлов.
Агрегаты освоения скважин представляют собой подъемник, аналогичный подъемнику для капитального ремонта, дополненный технологическим оборудованием для освоения скважин после бурения или ремонта. Поэтому схемы и конструкция большей части узлов, машин, оборудования и механизмов, соответствующих агрегатов для капитального ремонта и освоения скважин аналогичны.
Кинематические схемы силового привода подъемных агрегатов для капремонта и освоения , в агрегатах наиболее совершенной конструкции унифицированы с агрегатами подземного ремонта. Эти схемы лишь дополнены передачами на ротор, промывочный насос, компрессорное оборудование и генератор, а в отдельных случаях и на специальное оборудование. В агрегатах большой грузоподъемности (более 30-50 т) привод подъемника осуществляется от дополнительной силовой установки, состоящей из одного - двух двигателей , обычно спаренных с ходовым двигателем транспортной базы.
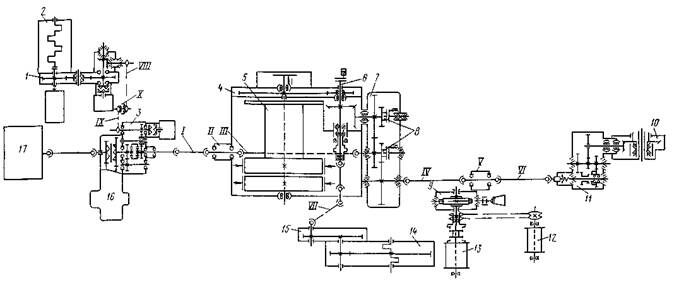
«Азинмашем» разработан агрегат КОРО-80 для выполнения капитального ремонта скважин.

Кинематическая схема агрегата КОРО-80:
1 - редуктор вспомогательного привода; 2 — вспомогательный привод; 3 — коробка отбора мощности; 4 — лебедка; 5 - вал барабанный; 6 - трансмиссионный вал; 7 — раздаточная коробка; 8 — электромагнитная муфта; 9— редуктор; 10 —ротор; 11 — коробка привода ротора; 12 —катушка: 13 — барабан выдвижения вышки; 14 — насос; 15 — редуктор; 16 — раздаточная коробка транспортера; 17 — гидротрансформатор, /, III, IV, VI, VIII— карданные валы; II, V, X —опоры; VII, VIII, I X — цепные передачи
Он предназначен для спуско-подъемных операций с бурильными и насосно-компрессорными трубами, разбуривания цементных мостов и стаканов, для ловильных работ, для нагнетания в скважины растворов и жидкостей, для исследования скважины в процессе капремонта. Агрегат может быть использован для освоения и подземного ремонта глубоких скважин. В качестве транспортной базы используется четырехосный тягач МАЗ 537. Агрегат имеет лебедку для глубинных исследований скважин, гидрораспределитель труб, гидропривод для механических трубных ключей и других средств механизации, оснащен электростанцией. Агрегат комплектуется ротором, вертлюгом. Промывочный насос с мерным баком манифольдом смонтирован в отдельном транспортном блоке – прицепе, мощность которому передается от агрегата карданным валом. Агрегат рассчитан на выполнение спуско-подъемных операций с установкой труб в вертикальное положение.
Грузоподъемность 80 т. Мощность 440 кВт. Высота вышки 28 м. Масса 54 т.
Агрегат А-50 конструкции «Гипронефтемаша» предназначен для спуско-подъемных операций с бурильными НКТ, для разбуривания цементных мостов и стаканов, фрезерования и райбирования, для ловильных работ, для нагнетания в скважину жидкости, для тартальных работ, свабирования и освоения скважин.
|
|
Агрегат А-50:
1 — компрессор; 2 — трансмиссия; 3 — гидроподъемник; 4 — талевая система; 5 — двухбарабанная лебедка; 6 — вышка; 7 — пульт; 8 — ротор
Т.о. агрегат может использоваться при капитальном ремонте и освоении скважин. Агрегат имеет двухбарабанную лебедку, компрессорную установку, промывочный насос, смонтированный на отдельной транспортной базе и соединенный с трансмиссией агрегата карданным валом, а также ротор с гидравлическим приводом и встроенным в него автоматическим спайдером и механическим трубным ключом. Агрегат рассчитан на спуско-подъемные операции с укладкой труб на мостки. В качестве транспортной базы использован автомобиль КРАЗ-257. Грузоподъемность 50 т. Мощность привода 155 кВт. Высота вышки 22 м. Масса 30 т.
Подъемники для капитального ремонта и освоения скважин, которые применяются в настоящее время, выполняются по двум главным схемам: по схеме для встраивания в самоходные агрегаты и по схеме, рассчитанной на использование в сочетании с разными вышками, талевыми системами и другим оборудованием. Подъемники последнего типа применяются на морских промыслах и на кустах скважин в условиях Севера. Подъемники, встраиваемые в самоходные агрегаты для капитального ремонта и освоению скважин, по конструктивной схеме аналогичны подъемникам для текущего ремонта и буровым установкам небольшой грузоподъемности.
2. Агрегаты для промывки скважин
Эксплуатация нефтяных месторождений с коллекторами из рыхлых несцементированных пород, особенно песчаников приводит к вымыванию пластовой жидкостью из породы частиц песка, глины и образованию в стволе скважины песчаной пробки. При перекрытии фильтра скважины пробкой приток жидкости уменьшается и может вообще прекратиться. В связи с этим возникает необходимость удаления из скважины песчаных пробок. Промывка песчаных пробок выполняется с помощью промывочного агрегата, нагнетающего в скважину жидкость, которая размывает пробки, выносит на поверхность песок до полной ликвидации пробки. В качестве промывочной жидкости используются вода, нефть и глинистый раствор. В качестве труб при промывке песчаных пробок применяют НКТ.
Промывка выполняется прямым, обратным и комбинированным способами. При прямой промывке промывочная жидкость нагнетается насосом по манифольду через вертлюг и колонну НКТ, а поднимается по затрубному пространству в приемный чан. Ее используют при прочной, плотной пробке.
При обратной промывке, жидкость нагнетается через манифольд и тройник с герметизатором, уплотняющим НКТ, в затрубное пространство и размывая пробку, поднимается по НКТ до тройника манифольда, а по нему в приемные емкости.
Комбинированный способ применяется при возможности фонтанирования. Агрегаты для промывки песчаных пробок представляют собой транспортную базу, в качестве которой используются колесные или гусеничные машины, на которых смонтирован промывочный насос, емкость и средства контроля и управления процессом промывки. Агрегаты несут на себе манифольд, необходимый для обвязки скважины, насоса и емкостей во время промывки. Промывочный насос агрегата приводится в действие от ходового двигателя, через коробку отбора мощности и коробку передач, позволяющую менять режим работы насоса.
3. Инструмент для капитального ремонта и освоения скважин
Для рассматриваемых процессов применяется несколько групп инструментов:
· Спуско-подъемный – трубные элеваторы, штропы, спайдеры, механические, машинные и ручные ключи. Эта группа нами рассматривалась.
· Буровой – буровые долота, бурильные трубы, УБТ, ведущая труба. Эта группа инструмента рассматривается в курсах бурового оборудования.
· Ловильный, фрезерный, используемый при капитальном ремонте скважин.
К последней группе инструмента относится большая группа инструмента и приспособлений следующих назначений:
Фиксаторы – предназначены для определения зоны расположения муфтового соединения эксплуатационной колонны скважины и обеспечения заливки цементным раствором стакана или моста на заданном расстоянии от муфтового соединения.
|
|
Фиксатор положения муфтового соединения эксплуатационной колонны
1 – центрирующая пружина; 2 – установочный винт; 3 – корпус; 4 – консольная пружина; 5 – защелки; 6 – поршень; 7 – ловушки
10 - Потенциал действия - лекция, которая пользуется популярностью у тех, кто читал эту лекцию.
Для разрушения не поддающихся извлечению из скважины, прихваченных или не прихваченных инструмента, труб, пакеров применяются фрезы, спускаемые на бурильных трубах, врадщаемых ротором с одновременной подачей раствора.

Фрезеры для работы в 146-мм эксплуатационной колонне:
а — для кольцевого офрезерования неприхваченных верхних концов НКТ; б —для сплошного фрезерования прихваченных пакеров, муфт, хвостовиков
Для залавливания и последующего подъема на поверхность штанг, труб, насосов и т.д. служит группа инструментов называемых ловителями и труболовками.
Основным требованием, предъявляемым ко всем видам инструментов, является надежность захвата и удержания трубы или штанги. Это требование выполняется за счет соответствующей конструкции и исполнения устройства.























