Для студентов МГТУ им. Н.Э.Баумана по предмету Технология конструкционных материалов (ТКМ)Разработка технологии изготовления отливок - ШкивРазработка технологии изготовления отливок - Шкив
4,91527
2020-09-222020-09-22СтудИзба
ДЗ 1: Разработка технологии изготовления отливок - Шкив вариант 11, 16
Бестселлер
Описание
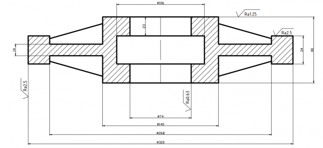
Архив содержит: файл mathcad со всеми необходимыми для выполнения задания расчетами, чертежи детали на всех стадиях ее производства и полностью оформленный и проверенный преподавателем word файл (нужно лишь вписать свою фамилию, номер группы, и отправить на печать, все остальное сделали уже за вас). ![]()

Характеристики домашнего задания
Учебное заведение
Номер задания
Просмотров
541
Качество
Идеальное компьютерное
Размер
1,47 Mb
Список файлов
Дз №1 Вариант №11
Картинки
Рис 1.png
Рис 2.png
Рис 3.png
Рис 4 часть 1.png
Рис 4 часть 2.png
Рис 5.png
Чертежи pdf
Деталь.pdf
Форма.pdf
Чертежи оригиналы
ТКМ.dwg
Дз №1 Вариант №11.docx
Задание.png
Расчеты.mcdx