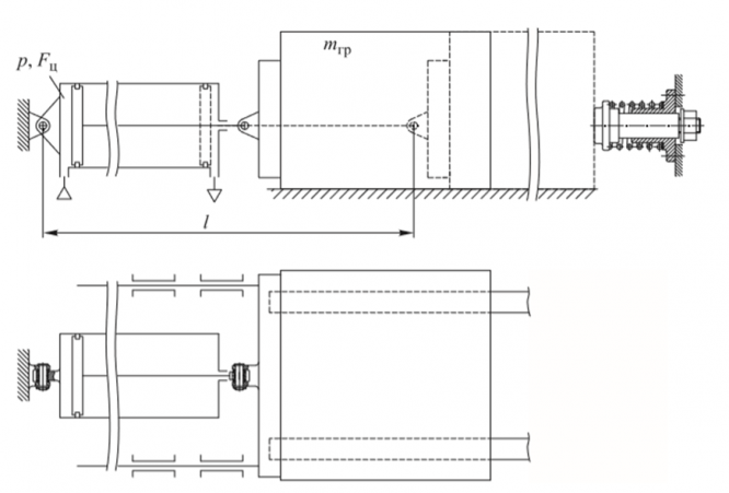
Для студентов МГТУ им. Н.Э.Баумана по предмету Управление техническими системами (УТС)Проектирование пневмопривода транспортного устройстваПроектирование пневмопривода транспортного устройства
4,9851107
2024-03-192024-03-19СтудИзба
ДЗ 1: Проектирование пневмопривода транспортного устройства
Описание
Характеристики домашнего задания
Учебное заведение
Семестр
Номер задания
Теги
Просмотров
9
Размер
388,06 Kb
Список файлов
Принципиальная схема пневмопривода.cdw
ДЗ1.docx

Спасибо за покупку! Я буду очень рад, если поставишь справедливую оценку купленному файлу