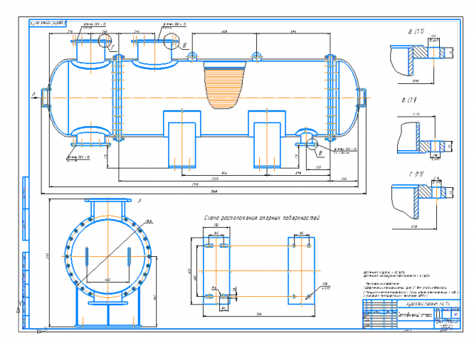
Для студентов МГТУ им. Н.Э.Баумана по предмету Теплообменные аппараты (ТА)Рекуперативный кожухотрубный парожидкостной теплообменный аппарат.Рекуперативный кожухотрубный парожидкостной теплообменный аппарат.
4,9951128
2024-03-172024-03-17СтудИзба
Курсовая работа: Рекуперативный кожухотрубный парожидкостной теплообменный аппарат.
Описание
Техническое задание
Разработать рекуперативный кожухотрубный парожидкостной теплообменный аппарат.
Температура на входе холодного теплоносителя Tв1 = 329 К.
Температура на выходе холодного теплоносителя Tв2 = 388 К.
Давление на входе горячего теплоносителя pп = 0,2 МПа.
Расход холодного теплоносителя Gв = 19,7 кг/с.
Суммарные потери давления ∆pΣ = 2,5%.


Характеристики курсовой работы
Предмет
Учебное заведение
Семестр
Программы
Теги
Просмотров
53
Размер
965,06 Kb
Список файлов
1 лист.cdw
2 лист.cdw
3 лист.cdw
4 лист (крышка).cdw
4 лист (опора).cdw
4 лист (распределительная камера).cdw
РПЗ.docx
спецификация.spw

Спасибо за покупку! Я буду очень рад, если поставишь справедливую оценку купленному файлу