Для студентов МГТУ им. Н.Э.Баумана по предмету Технология конструкционных материалов (ТКМ)Механическая обработка заготовок деталей машин - ВтулкаМеханическая обработка заготовок деталей машин - Втулка
5,0054
2013-10-202024-09-01СтудИзба
ДЗ 3: Механическая обработка заготовок деталей машин - Втулка вариант 41
-51%
Описание
Содержание
- Анализ исходных данных
- Выбор способа обработки
- Выбираем вид заготовки – прокат круглого поперечного сечения
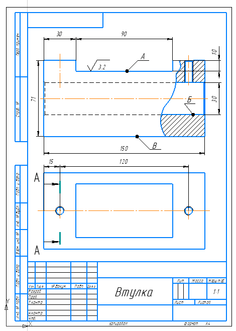
- Поверхность А
- Поверхность Б
- Поверхность В
- Оценка технологичности конструкции детали
Чертежи
- Исходная деталь
- Схемы обработки поверхностей
Характеристики домашнего задания
Учебное заведение
Номер задания
Вариант
Просмотров
2155
Качество
Идеальное компьютерное
Размер
105,81 Kb
Список файлов
Механическая обработка заготовок деталей машин - Втулка
Механическая обработка заготовок деталей машин - Втулка.doc
Чертежи - 1.dwg
Чертежи - 1.frw
Чертежи - 2.cdw

Вам все понравилось? Получите кэшбэк - 40 рублей на Ваш счёт при покупке. Поставьте оценку и напишите положительный комментарий к купленному файлу. После Вы получите деньги на ваш счет.