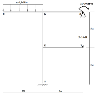
Для студентов по предмету Строительная механикаРассчет статически неопределимой рамы методом сил Вариант 18Рассчет статически неопределимой рамы методом сил Вариант 18
5,00552
2023-09-142023-09-14СтудИзба
Задача: Рассчет статически неопределимой рамы методом сил Вариант 18
Описание

Файлы условия, демо
Характеристики решённой задачи
Предмет
Просмотров
3
Размер
467,78 Kb
Список файлов
Схема Рама МС 18.docx
Комментарии
Нет комментариев
Стань первым, кто что-нибудь напишет!
buldigerov






















