Для студентов МГТУ им. Н.Э.Баумана по предмету Сопротивление материаловСтатически определимые балкиСтатически определимые балки
2016-06-102025-09-08СтудИзба
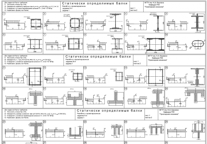
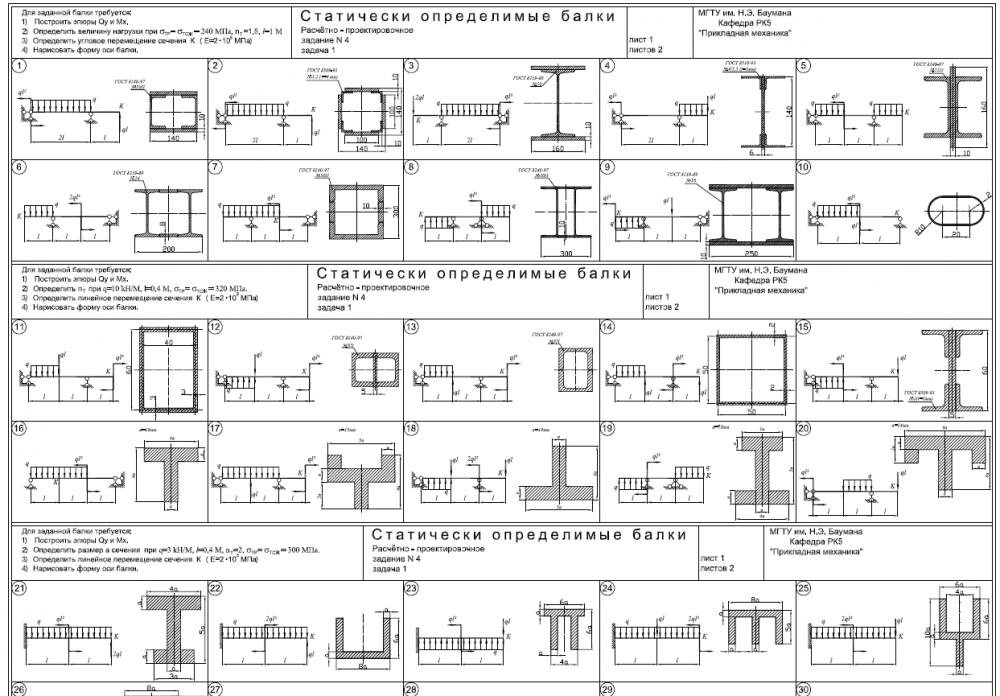
Вопросы/задания к заданиям 3: Статически определимые балки
Описание
Характеристики вопросов/заданий к заданиям
Предмет
Учебное заведение
Семестр
Номер задания
Программы
Теги
Просмотров
887
Качество
Идеальное компьютерное
Размер
886,7 Kb
Список файлов

Вам все понравилось? Получите кэшбэк - 40 рублей на Ваш счёт при покупке. Поставьте оценку и напишите положительный комментарий к купленному файлу. После Вы получите деньги на ваш счет.