Для студентов ИГЭУ им. Ленина по предмету Системы автоматизированного проектирования (САПР)Создания модели привода к скребковому транспортеруСоздания модели привода к скребковому транспортеру
5,005106
2025-06-19СтудИзба

Курсовая работа: Создания модели привода к скребковому транспортеру

Описание

Создания модели привода к скребковому транспортеру

Содержание

  • Введение..................................................................................................................................................3
  • 1. Техническое задание........................................................................................................................4
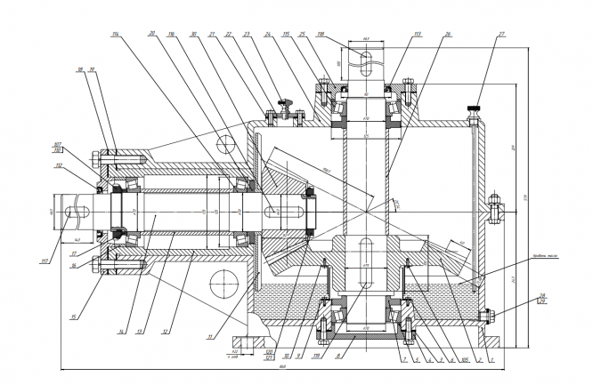
  • 2. Разработка трехмерных моделей деталей конического вертикального привода........5
  • 3. Разработка трехмерной сборки привода к скребковому транспортеру........................14
  • 4. Создание анимации сборки..........................................................................................................22
  • Заключение............................................................................................................................................23
  • Список литературы..............................................................................................................................24
  • Приложения 1-29

Цель работы

Создание анимации движения трехмерной модели редуктора в среде SolidWorks на основание предоставленной технической документации.

Задачи работы

- изучение принципов построения трехмерных моделей в SolidWorks;
- создание кинематической цепи для передачи движений между элементами редуктора;
- создание анимации, отображающей расположение деталей в сборке редуктора;
- проведение анализа полученных результатов и формулирование выводов

Предмет изучения научно-исследовательской практики - проектирование вертикального конического редуктора в SolidWorks.

Техническое задание

Сборочный чертеж:

3D сборка

Файлы условия, демо

Техническое задание
Пример анимации разнесения
Сборка11.avi
ведомый вал анимация2.avi
ведущий вал сборка3.avi
ведущий вал сборка4.avi

Характеристики курсовой работы

Учебное заведение
Семестр
Просмотров
22
Качество
Идеальное компьютерное
Размер
34,24 Mb

Преподаватели

Список файлов

Solid Sborka TG
1 Корпус редуктора (1). готовая.SLDPRT
2 колесо_коническое_2 испр (1).SLDPRT
3 резиновая_прокладка3основания_корпуса.SLDPRT
4 Крышка.SLDPRT
5 стопорное_кольцо5основания_корпуса.SLDPRT
7 мазеудерживающие_кольцо7сверху_тихоходного_вала.SLDPRT
7 мазеудерживающие_кольцо7снизу_тихоходного_вала.SLDPRT
8 вал_тихоходный.SLDPRT
9, 10 металлическая прокладка(9,10).SLDPRT
12 стакан(12).SLDPRT
14 вал_быстроходный.SLDPRT
15 крышка_от_подшипника_15_готовая.SLDPRT
16 стопорное кольцо(16).SLDPRT
18 резиновая прокладка(18).SLDPRT
19 резиновая прокладка(19).SLDPRT
20 мазеудерживающие кольцо(20).SLDPRT
22 крышка смотрового отверстия.SLDPRT
23 Ручка отдушина (23).SLDPRT
25 Крышка подшипнтика (25) готовая..SLDPRT
27 жезловый_маслоуказатель_готовый.SLDPRT
28 пробка сливного отверстия.SLDPRT
29 прокладка резиновая для пробки.SLDPRT
30 шестерня коническая 30 испр (1).SLDPRT
console.log
Готовая крышка (24)...SLDPRT
Подшипник 115.SLDPRT
Сборка быстроходного вала.SLDASM
Сборка быстроходного вала.avi
Сборка готовая.SLDASM
Сборка корпуса.SLDASM
Картинка-подпись
🎓Помощь студентам Ивановских ВУЗов🎓 ❤️ Каждая приобретенная работа служит стимулом для добавления новых материалов и упрощает учебный процесс.

Комментарии

Нет комментариев
Стань первым, кто что-нибудь напишет!
Поделитесь ссылкой:
Цена: 1 500 руб.
Расширенная гарантия +3 недели гарантии, +10% цены
Рейтинг автора
5 из 5
Поделитесь ссылкой:
Сопутствующие материалы

Подобрали для Вас услуги

-61%
-75%
-61%
-61%
-61%
Вы можете использовать курсовую работу для примера, а также можете ссылаться на неё в своей работе. Авторство принадлежит автору работы, поэтому запрещено копировать текст из этой работы для любой публикации, в том числе в свою курсовую работу в учебном заведении, без правильно оформленной ссылки. Читайте как правильно публиковать ссылки в своей работе.
Свежие статьи
Популярно сейчас
Почему делать на заказ в разы дороже, чем купить готовую учебную работу на СтудИзбе? Наши учебные работы продаются каждый год, тогда как большинство заказов выполняются с нуля. Найдите подходящий учебный материал на СтудИзбе!
Ответы на популярные вопросы
Да! Наши авторы собирают и выкладывают те работы, которые сдаются в Вашем учебном заведении ежегодно и уже проверены преподавателями.
Да! У нас любой человек может выложить любую учебную работу и зарабатывать на её продажах! Но каждый учебный материал публикуется только после тщательной проверки администрацией.
Вернём деньги! А если быть более точными, то автору даётся немного времени на исправление, а если не исправит или выйдет время, то вернём деньги в полном объёме!
Да! На равне с готовыми студенческими работами у нас продаются услуги. Цены на услуги видны сразу, то есть Вам нужно только указать параметры и сразу можно оплачивать.
Отзывы студентов
Ставлю 10/10
Все нравится, очень удобный сайт, помогает в учебе. Кроме этого, можно заработать самому, выставляя готовые учебные материалы на продажу здесь. Рейтинги и отзывы на преподавателей очень помогают сориентироваться в начале нового семестра. Спасибо за такую функцию. Ставлю максимальную оценку.
Лучшая платформа для успешной сдачи сессии
Познакомился со СтудИзбой благодаря своему другу, очень нравится интерфейс, количество доступных файлов, цена, в общем, все прекрасно. Даже сам продаю какие-то свои работы.
Студизба ван лав ❤
Очень офигенный сайт для студентов. Много полезных учебных материалов. Пользуюсь студизбой с октября 2021 года. Серьёзных нареканий нет. Хотелось бы, что бы ввели подписочную модель и сделали материалы дешевле 300 рублей в рамках подписки бесплатными.
Отличный сайт
Лично меня всё устраивает - и покупка, и продажа; и цены, и возможность предпросмотра куска файла, и обилие бесплатных файлов (в подборках по авторам, читай, ВУЗам и факультетам). Есть определённые баги, но всё решаемо, да и администраторы реагируют в течение суток.
Маленький отзыв о большом помощнике!
Студизба спасает в те моменты, когда сроки горят, а работ накопилось достаточно. Довольно удобный сайт с простой навигацией и огромным количеством материалов.
Студ. Изба как крупнейший сборник работ для студентов
Тут дофига бывает всего полезного. Печально, что бывают предметы по которым даже одного бесплатного решения нет, но это скорее вопрос к студентам. В остальном всё здорово.
Спасательный островок
Если уже не успеваешь разобраться или застрял на каком-то задание поможет тебе быстро и недорого решить твою проблему.
Всё и так отлично
Всё очень удобно. Особенно круто, что есть система бонусов и можно выводить остатки денег. Очень много качественных бесплатных файлов.
Отзыв о системе "Студизба"
Отличная платформа для распространения работ, востребованных студентами. Хорошо налаженная и качественная работа сайта, огромная база заданий и аудитория.
Отличный помощник
Отличный сайт с кучей полезных файлов, позволяющий найти много методичек / учебников / отзывов о вузах и преподователях.
Отлично помогает студентам в любой момент для решения трудных и незамедлительных задач
Хотелось бы больше конкретной информации о преподавателях. А так в принципе хороший сайт, всегда им пользуюсь и ни разу не было желания прекратить. Хороший сайт для помощи студентам, удобный и приятный интерфейс. Из недостатков можно выделить только отсутствия небольшого количества файлов.
Спасибо за шикарный сайт
Великолепный сайт на котором студент за не большие деньги может найти помощь с дз, проектами курсовыми, лабораторными, а также узнать отзывы на преподавателей и бесплатно скачать пособия.
Популярные преподаватели
Добавляйте материалы
и зарабатывайте!
Продажи идут автоматически
6940
Авторов
на СтудИзбе
265
Средний доход
с одного платного файла
Обучение Подробнее
{user_main_secret_data}