Курсовая работа: Вакуумно-термическая установка получения углеродных нанотрубок
Описание

Курсовой проект
На тему: «Вакуумно-термическая установка получения углеродных нанотрубок »
Расчетно-пояснительная записка
Москва 2015 г.
Содержание
3..... Описание процессной модели. 5
4..... Описание комплексной принципиальной схемы.. 8
Графические работы в объеме 4 листа выполнены на ПК с помощью программы АСКОН КОМПАС V12. Записка выполнена с использованием программного продукта Microsoft Word.
Целью данного курсового проекта является овладение навыками, методами и средствами комплексных разработок механических и электронных компонентов оборудования САУ, а также правилами и методами составления технического задания на программное обеспечение САУ.
Задачи проекта состоят в:
- распределении функций машины между различными компонентами и обоснование этих функций;
- постановке четких технических заданий перед разработчиками отдельных компонентов;
- выполнении технической документации на электронные компоненты.
В проекте разработана система управления вакуумно-термической установки получения УНТ.
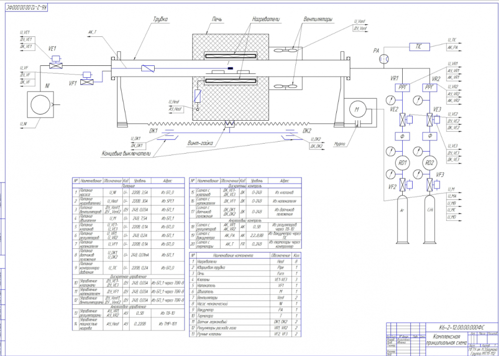
Курсовой проект выполнен в следующем объеме: процессная модель (алгоритм работы системы управления установкой); комплексная принципиальная схема (КПС) установки, включающая разработку КПС механической части и КПС систем энергообеспечения и управления; схема соединений. В расчетно-пояснительной записке приведены необходимые пояснения, описания и отражены принципы построения САУ установки.
Одно из перспективных направлений в наноэлектронике связано с выращиванием нанотрубок и созданием на их основе различных устройств.
Одним из способов получения углеродных нанотрубок является метод каталитического пиролиза углеводородов (CVD). Катализатором является металлические подложки (образцы), на которых будут образовываться углеродные нанотрубки. Сама установка выполнена в виде реактора, в который подается углеводородный газ, уносящийся с помощью вакуумного насоса в зону высоких температур.
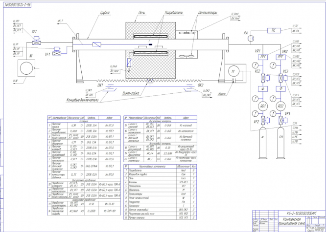
Установка состоит из следующих основных узлов. Правый фланец предназначен для загрузки/выгрузки металлических подложек в кварцевую трубку. Также на нем смонтирован патрубок для соединения с системой подачи рабочих газов. Через левый фланец идет откачка вакуумным насосом, соединенным с ним сильфоном. Насос располагается на полу. Также на левом фланце смонтированы патрубки для соединения с натекателем и термопарой.
Оба фланца закреплены на зеркально расположенных держателях трубки, которые в свою очередь закреплены на рамной конструкции.
Сама печь установлена на каретке, позволяющей перемещаться печи по направляющим, которая закреплена на рамной конструкции. На конце ходового винта каретки установлена муфта, передающая вращательный момент от шагового двигателя. Печь выдает рабочую температуру до 10000С при помощи нагревателей, выполненных в виде галогенных ламп, расположенных радиально внутри печи вокруг кварцевой трубки. После получения нанотрубок, печь перемещается, а область нагрева принудительно остывает при помощи вентиляторов, смонтированных на левой стороне печи.
Основные технические установки:
Табл. 1
Мощность нагрева | До 10 кВт |
Рабочая температура | От 100 до 10000С |
Нагревательные элементы | 8 галогенных ламп |
Максимальная скорость нагрева/охлаждения | 50/100С/мин |
Давление в кварцевой трубке | От 105 до 1 Па |
Скорость перемещения печи | До 60 мм/сек |
Масса установки | 80 кг |
Напряжение питания | 220 В |
В данном курсовом проекте разрабатывалась процессная модель автоматизированного управления вакуумной печью для отжига (см. лист «Процессная модель»).
Установка должна работать в непрерывном цикле. Система управления должна реализовать основные целевые, сервисные функции и функции коррекции цели.
Основные целевые функции и их алгоритмы представлены на листе «Процессная модель». В табл.2 приведен перечень выполняемых в системе управления процессов для реализации целевых функций установки.
Характеристики курсовой работы
Список файлов

Начать зарабатывать